VEENENDAAL
Kerkewijk 70 - 3904 JE
Netherlands

€1,050,000
Living Area
167m2
Plot Size
N/A
Bedrooms
2

Description

An apartment that feels grand and shows every day how luxury living is meant to be.

The moment you step inside this apartment, one thing immediately becomes clear: everything is just right. The sense of space, the abundance of natural light, the high-end finishes, and the tranquility the property exudes elevate this home to an exceptional level. With a generous living area of no less than 167 m², this apartment offers a feeling of freedom and grandeur rarely found. Large windows frame the views and allow daylight to flood in, while premium materials and bespoke solutions create an elegant and warm ambiance.

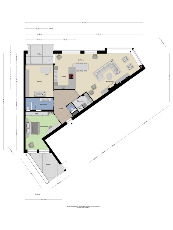
The living area forms the heart of the home and is impressive in size, with seamless transitions between living, cooking, and dining. The kitchen is a statement in itself, featuring a generous cooking island, luxury appliances, and a finish that is both stylish and timeless. The bedrooms are equally spacious and thoughtfully designed, with a master bedroom that feels like a private suite. Add to this the two balconies, a spacious storage room, and two private parking spaces in the underground garage, and you will understand: this is turnkey living at a high level, in the exclusive Rembrandt Résidence complex.

The Neighborhood
Kerkewijk is known as one of the most desirable locations in Veenendaal. Here you live centrally, with all daily amenities within easy reach, without compromising on comfort and privacy. Shops, restaurants, cultural facilities, and public transport are just a short distance away, while main roads toward Utrecht, Arnhem, and the rest of the Randstad are easily accessible. At the same time, the immediate surroundings offer a pleasant balance between vibrancy and tranquility, with the Prattenburg forest and the center of Veenendaal within walking distance, wide avenues, and a well-maintained appearance that perfectly matches the character of the complex.

Ground Floor
The entrance of Rembrandt Résidence immediately makes a neat and representative impression. Through the shared, secure entrance with intercom panel and mailboxes, you reach the stylish staircase and elevator that comfortably take you to the apartment. In the basement level, you have access to a spacious private storage room, ideal for bicycles and additional storage, as well as access to the secured parking garage with two private parking spaces at your disposal. Additionally, two extra parking spaces are optionally available for purchase at €20,000,- per space. Everything is generously designed, well-organized, and at the level you would expect from this apartment.

Apartment Layout
Upon entering the apartment, you are welcomed into a spacious hallway that immediately sets the tone for what follows. The finish is sleek and serene, featuring high-quality materials such as pivot doors and carefully selected lighting. The entire apartment is equipped with underfloor heating. From here, you have access to the separate toilet and the practical utility room, offering space for laundry appliances and storage, neatly out of sight yet perfectly integrated into the overall design.

The home then opens up to the impressive living area, where living, cooking, and dining flow seamlessly together. The living room is spacious and bright, with large windows and an atmospheric electric fireplace that adds extra character to the seating area.

The luxury kitchen is truly a showpiece. The generous cooking island invites long dinners and convivial gatherings, while high-end built-in appliances by Gaggenau, including a combi-oven, steam oven, coffee machine, induction hob with downdraft extractor, Quooker, dishwasher, refrigerator, and freezer, ensure optimal cooking comfort. Adjacent is the luxurious dining area, perfectly positioned in natural daylight.

The apartment features several generously sized (bed)rooms. The master bedroom feels like a luxury hotel suite, complete with bespoke wardrobes, and both bedrooms offer direct access to a covered balcony where you can also enjoy the evening sun. The stylish bathroom is spacious and equipped with a rain shower with sunshower function, a vanity unit with double taps, illuminated mirror, wall-mounted toilet, and high-quality finishes down to the finest detail.

Outdoor Space
The covered balconies are an extension of the living area and provide space for a comfortable seating area and/or dining table. Thanks to their position and size, you can enjoy outdoor living here in complete tranquility, with ample privacy and pleasant views. A perfect place to start your morning peacefully or to unwind at the end of the day. In the basement, you have a large storage room and two parking spaces (with two additional optional spaces available) in the underground garage.

Conclusion
This apartment has been finished with meticulous attention to detail and radiates class, comfort, and tranquility. A home where nothing needs to be done except move in and enjoy. An apartment of this caliber rarely becomes available. We warmly invite you to experience it for yourself during a viewing.

General Information
Property type: Apartment
Year of construction: 2009
Number of rooms: 3
Number of bedrooms: 2
Number of bathrooms: 1
Parking: 2 spaces in the parking garage (2 optional)
Features: 2 covered balconies / storage room
Balcony orientation: 1 north-facing / 1 south-facing

Technical Information
Hot water system: Nefit (2021)
Heating system: Nefit (2021)
Underfloor heating: available
Solar panels: installed on the complex
Electric built-in fireplace
Amenities: air conditioning / exterior sun shading / Gaggenau kitchen appliances / utility room
Mechanical ventilation: available
Insulation: roof / cavity walls / floor
Double glazing: full / partial
Fiber optic cable, TV cable
Window frames: wood

WOULD YOU LIKE TO TAKE A LOOK INSIDE?

For more information about this property, please contact our office in Veenendaal.

You are most welcome! The best impression of this home is, of course, during a viewing. We always aim to schedule viewings in consultation with both seller and buyer and take ample time, so you can explore and experience the property at your leisure.

Please note: The information provided has been compiled with the utmost care. However, no rights can be derived from any inaccuracies or omissions in the details or drawings provided.

Features

Solar panels
Garage
Transfer of ownership
Asking Price
€ 1.050.000
Status
Available
Acceptance
In Concert
Reference
08133
Construction
Kind of house
Apartment
Building type
Portico Flat
Construction period
2009
Energy rating
A
Roof type
flat
Bedrooms
2
Bathrooms
1
Surface Areas And Volume
Living Area
167 m2
Exterior space attached to the buildinge
29 m2
External storage space
58 m2
Volume in cubic meters
551 m3
Facilities
Airco
Balcony
Elevator
Frenchbalcony
Fibreopticcable
Garage
Internetconnection
Outdoorawnings
Solarpanels
Storageroom
Baerz & Co Property Brochure

Brochure

Videos

Zonnenberg Makelaardij

Kerkewijk 108
3904 JG Veenendaal

info@zonnenbergmakelaardij.nl
+31 318 559600

www.zonnenbergmakelaardij.nl

Information / Viewing request

Wistik Zonnenberg profile image
Wistik Zonnenberg
Register Makelaar Taxateur/ Eigenaar

Buying a Luxury Property in Veenendaal

Veenendaal offers a harmonious balance of tranquility, urban sophistication, and diverse amenities. The community values privacy, green living, and international connections, all supported by advanced property services catering to a discerning global clientele.