Villa for sale in ROTTERDAM

ROTTERDAM Molenlaan 15 - 3055 EE The Netherlands


Joris van Oosten profile image
Joris van Oosten
Real Estate Agent
+31 6 42 19 84 37
info@vanoostenmakelaardij.nl

J.J. Van Oosten Makelaardij BV
Straatweg 225
3054 AG Rotterdam
NETHERLANDS
+31 10 422 11 00
www.vanoostenmakelaardij.nl
info@vanoostenmakelaardij.nl

Living area
177m2
Plot size
379m2
Bedrooms
4

Description

Luxurious and Modern Semi-Detached Home on Molenlaan

Located on the highly sought-after Molenlaan in Rotterdam, this spacious semi-detached family home (approx. 180 m²) offers everything a family could wish for: four bedrooms, a generous and light-filled living area, modern open-plan kitchen, large front and back gardens, private driveway with parking, EV charging station, and ample living space. The house was extensively renovated in 2019 under the supervision of an architect and has been meticulously finished. Light, luxury, and comfort are key here, combined with all the practical amenities a family needs.

Surroundings

Molenlaan is one of the most well-known lanes in the Hillegersberg district, surrounded by greenery, excellent schools, sports clubs, and just a short distance from the Bergse Plassen. With shops, restaurants, and public transport nearby—as well as good connections to the city centre and major roads—this is a prime location for those seeking a peaceful, comfortable lifestyle while staying close to the city.

Layout

Front Garden
The spacious, beautifully landscaped front garden offers not only a welcoming entrance but also great convenience. There is private parking for two cars, an EV charging station, and ample space for bicycles.

Ground Floor
The ground floor is bathed in light and exudes a sense of space. In 2019, the property was almost completely renovated, including the installation of a modern open-plan kitchen with high-end built-in appliances, a large refrigerator, freezer, and a wine climate cabinet. The expansive living room features a full-width glass façade with double sliding doors, providing direct access to the back garden. There is also a practical utility room with connections for a washing machine and dryer.

Back Garden
The sunny, deep back garden is beautifully landscaped and child-friendly. There is no rear entrance, offering complete privacy and safety. A play structure is available for children, and there's ample space for adults to enjoy the sun and privacy. The garden also includes a modern shed and atmospheric lighting with a timer switch.

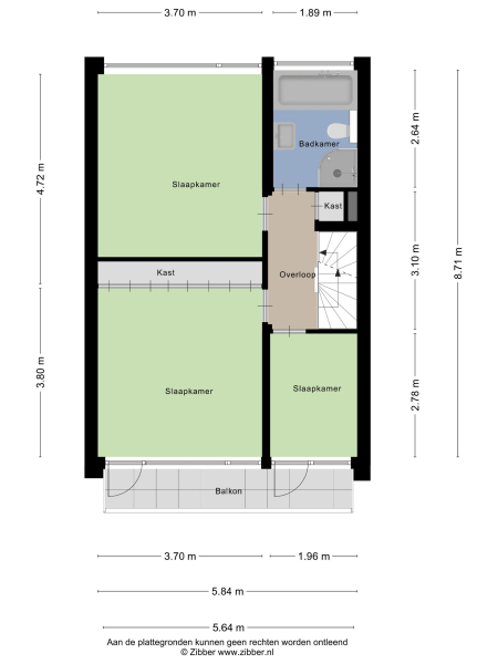
First Floor
The first floor features two spacious bedrooms and a third, smaller room, ideal as a child’s bedroom or home office. The bathroom is neatly finished and includes a bathtub, perfect for families. A large built-in wardrobe provides additional storage.

Second Floor
The second floor is a true eye-catcher and serves as a luxurious master suite of approximately 45 m². This floor was also completely redesigned in 2019 under architectural guidance. It includes a modern open-plan bathroom, air conditioning (which can also be used for heating), a large built-in wardrobe, and additional storage space behind the knee walls—making this a private, luxurious retreat.

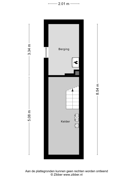
Basement
Finally, the house includes a spacious basement of approx. 16 m², ideal for storage, a wine cellar, or hobby space.

Key Features
- Built in 1956
- Situated on approx. 379 m² of freehold land
- Living area approx. 177 m² (according to BBMI / NEN2580)
- Other internal space approx. 17 m² (according to BBMI / NEN2580)
- Building-related outdoor space approx. 14 m² (according to BBMI / NEN2580)
- External storage approx. 8 m² (according to BBMI / NEN2580)
- Almost completely renovated in 2019 under the supervision of an architect
- Energy label C
- 12 solar panels (installed in 2023)
- Four spacious bedrooms across two floors
- Two modern bathrooms with contemporary finishes
- Beautifully landscaped, sunny, and child-friendly back garden with play structure
- Deep and wide, well-maintained front garden for added privacy and greenery
- Basement offering optimal storage space
- Prime location in Hillegersberg – close to the Bergse Plassen, schools, sports clubs, and the shops of Bergse Dorpsstraat

Delivery in consultation

For more information about this property, please visit the dedicated website (address + house number).

J.J. van Oosten Makelaardij is the NVM real estate agent representing the seller. We recommend engaging your own NVM agent to represent your interests during the purchase process.

No rights can be derived from this property description.

The usable floor area of the home has been measured in accordance with the industry-wide measurement instruction (BBMI), which is based on NEN2580. The BBMI aims to create a more uniform method of measurement for indicating usable area. However, it does not completely rule out differences in measurement results due to, for example, interpretation differences, rounding, or limitations in carrying out the measurement.

Features

Transfer of ownership
price
€ 1.200.000 k.k.
Status
verkocht onder voorbehoud
Acceptance
in overleg
Construction
Kind of house
Eengezinswoning
Building type
twee onder een kapwoning
Construction period
1956
Energy rating
C
Roof type
zadeldak
Bedrooms
4
Bathrooms
2
Surface Areas And Volume
Living area
177 m2
Other indoor space
17 m2
Exterior space attached to the building
14 m2
External storage space
8 m2
Volume in cubic meters
689 m3
Plot size
379 m2
facilities
Mechanische ventilatie
Alarminstallatie
Tv kabel
Airconditioning
Glasvezel kabel
Zonnepanelen
In woonwijk
Beschutte ligging
Baerz & Co Property Brochure

Brochure

Information / Viewing request

Videos

Photos

Floor Plans