ROTTERDAM
Berglustlaan 74 - 3054 BK
Netherlands

€1,295,000
Living Area
172m2
Plot Size
264m2
Bedrooms
5

Description

What a picture! A particularly characteristic townhouse situated on one of the most beautiful leafy avenues in Hillegersberg. The semi-detached house, built in 1929, has been lived in with great love and care by the current owners, meaning many authentic details have been preserved and are in excellent condition. The charm the house exudes upon entering is like stepping into a warm bath. We, at any rate, fell in love instantly. The townhouse, situated on 264 m² of private land, excels in terms of sustainability. For instance, the transition to gas-free living has already taken place, the house is heated by a fully electric heat pump, and HR++ double glazing was installed where possible in early 2026.

Other strong points include parking (with a charging point) on private property, a backyard offering plenty of privacy, cozy seating areas, and ample sunshine. The basement does not quite have sufficient height to be classified as living space, but most people certainly perceive this floor as living space. This floor is ideally suited as a chill-out area for children, for pursuing hobbies, as a home office, guest room, home cinema, etcetera.

The shops on Bergse Dorpsstraat are within walking distance, as are various public transport options, Schiebroekse Park and Bergse Bos, and the recreational areas around the Rotte. Plaswijckpark amusement park, Het Zwarte Plasje natural swimming pool, marinas, and various sports clubs such as tennis park Plaswijck '62, hockey club Rotterdam, and football and cricket club VOC are within easy reach. Furthermore, many excellent schools and daycare centers can be reached on foot or within a few minutes by bicycle and/or car. The A12, A13, A16, and A20 highways are easily accessible. Layout
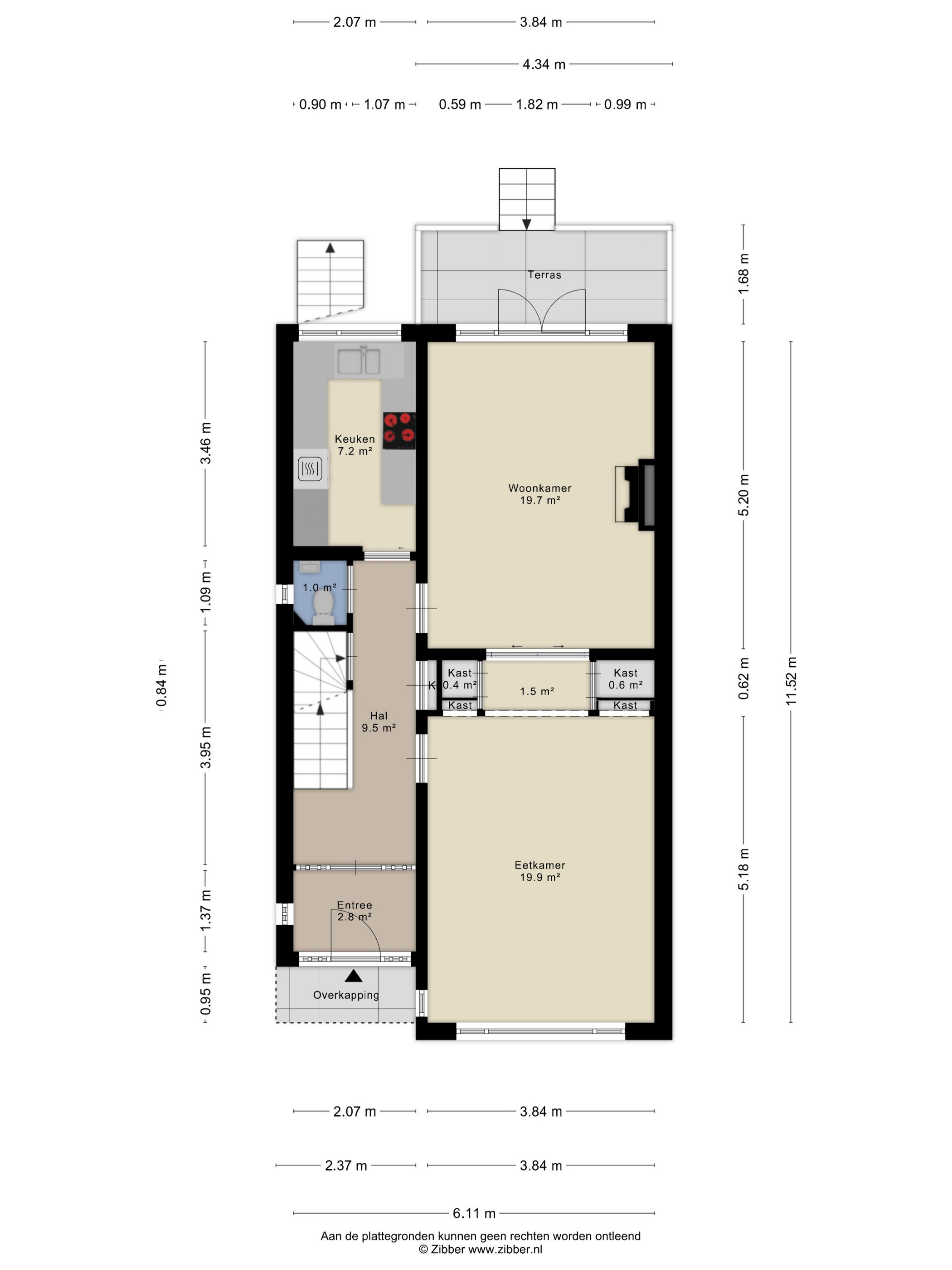
Ground floor:

Entrance, vestibule with wardrobe, hall with staircase and toilet with washbasin, enclosed kitchen featuring a U-shaped layout making it very efficient and offering ample worktop and cupboard space, living room en suite featuring the original en suite sliding doors and built-in cupboards, herringbone parquet flooring, a romantic gas fireplace mantel (recently no longer usable due to gas-free living, but a wood stove could potentially be installed) and French doors to the veranda, which in turn provides access to the back garden.

Basement:

A fantastic space extending under the entire house with a ceiling height of approx. 190cm in the hallway and approx. 175cm in the rooms under the beams and approx. 198cm between the beams, consisting of a hallway with a washing machine and dryer setup and access to the backyard, a pantry (ideal for a wine cellar), and 2 spacious rooms or hobby rooms that can be used for multiple purposes.

First floor:
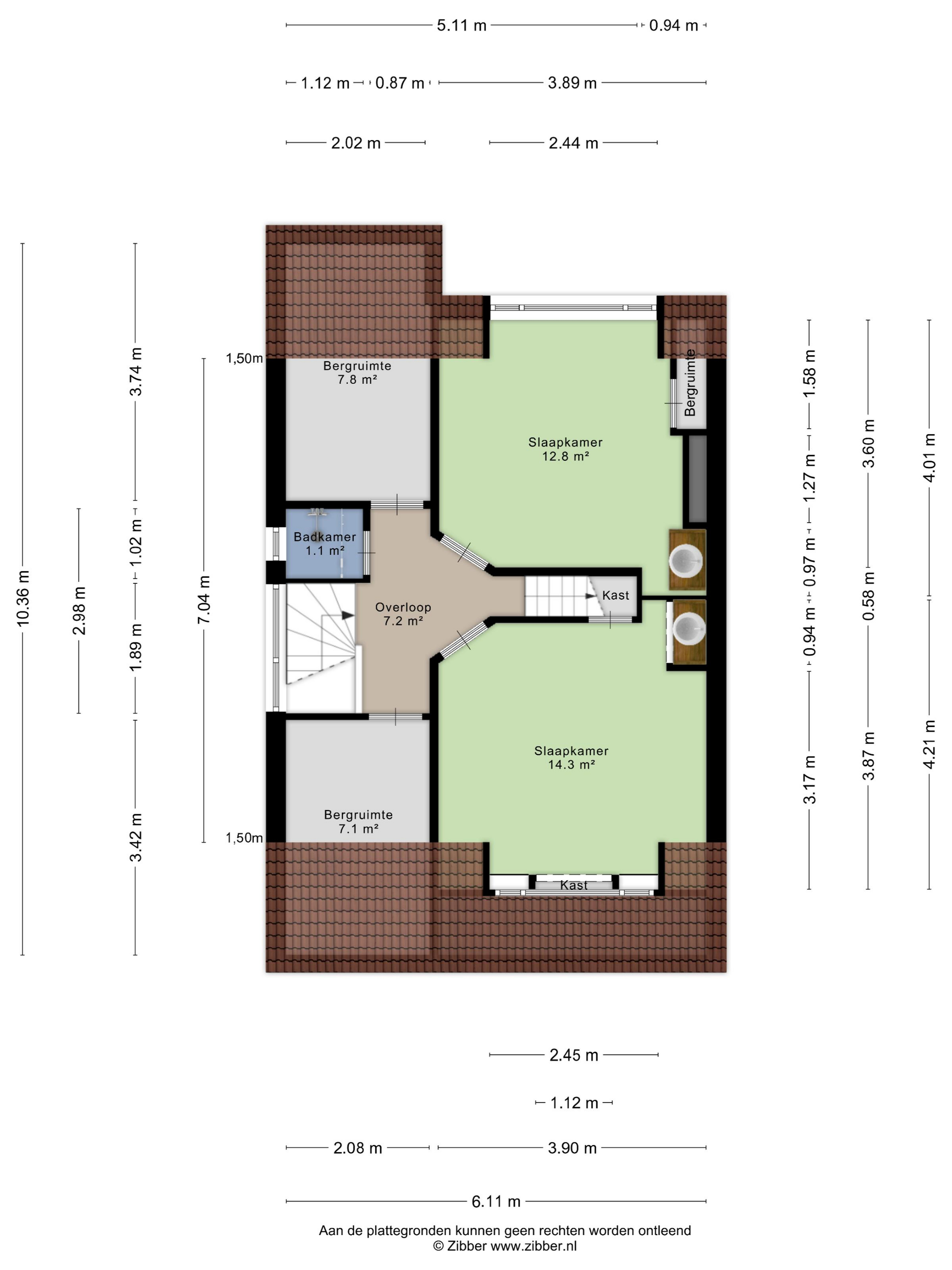
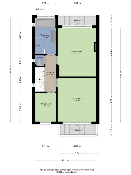
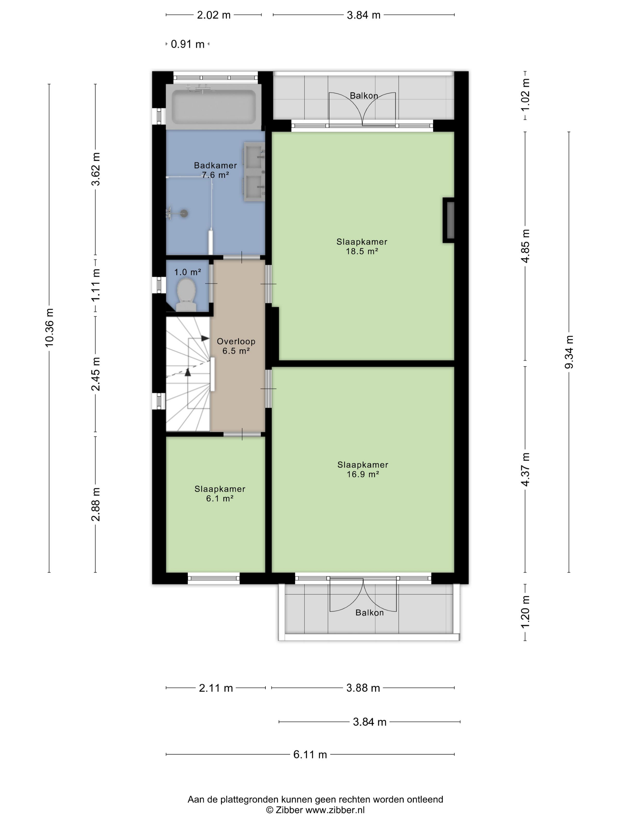
Landing with toilet, spacious master bedroom at the rear featuring French doors to the balcony; this room offers excellent potential for installing a built-in wardrobe, spacious bedroom at the front also featuring French doors to the balcony. This balcony offers beautiful views over the leafy Berglustlaan. At the front, there is another smaller bedroom currently used as a dressing room. At the rear is the bathroom equipped with a bathtub, walk-in shower, and vanity unit with double sink. Second floor:

Landing with plenty of natural light, 2 spacious and charming bedrooms with dormer windows and each with its own vanity unit; the 2nd bathroom/shower room is located on the landing, and there are 2 spacious storage areas under the sloping roof.

Attic:

Accessible via a fixed staircase, currently used as a gym with skylights providing plenty of light and ventilation.

Back garden:

Approx. 10 meters deep by 11.3 meters wide, facing northeast. Due to its depth, width, and unobstructed position on the west side, the back garden offers ample hours of sunshine. The back garden features various seating areas and offers plenty of privacy.

Front garden/side garden:

The front garden is approx. 475 cm deep by 840 cm wide and offers space for parking (with a charging station) on private property, potentially even for one large and one smaller car. The front garden faces southwest, thus offering many hours of sunshine. The side garden is nicely wide and offers space for storing bicycles etc., and there is a storage shed.

Particulars;

- year of construction 1929
- situated on 264 m² of private land
- living area approx. 172 m² (in accordance with BBMI / NEN 2580)
- other indoor space area approx. 72 m² (in accordance with BBMI / NEN 2580)
- building-related outdoor space area approx. 10 m² (in accordance with BBMI / NEN 2580)
- external storage space area approx. 5 m² (in accordance with BBMI / NEN 2580)
- fully equipped with wooden frames, largely fitted with double glazing, and the remaining windows are fitted with secondary glazing
- heating and hot water by means of electric heat pump from December 2025
- energy label C
- exterior sun blinds (awnings) on the front facade
- alarm system present
- charging station for electric car present

Completion date by mutual agreement.

For additional information about this house, please visit the property's own website (address + house number).

J.J. van Oosten Makelaardij is the seller's NVM real estate agent. We advise you to engage your own NVM real estate agent to represent your interests regarding the purchase of this property.

No rights can be derived from this listing text.

The usable floor area of ??the home has been measured in accordance with the industry-wide measurement instruction (BBMI). The BBMI is based on NEN2580. The BBMI is intended to apply a more uniform method of measurement to provide an indication of the usable floor area. The measurement instruction does not completely rule out differences in measurement results, for example due to differences in interpretation, rounding, or limitations in carrying out the measurement.

Features

Solar panels
Transfer of ownership
Asking Price
€ 1.295.000
Status
beschikbaar
Acceptance
in overleg
Construction
Kind of house
Herenhuis
Building type
twee onder een kapwoning
Construction period
1929
Energy rating
C
Roof type
samengesteld dak
Bedrooms
5
Bathrooms
2
Surface Areas And Volume
Living Area
172 m2
Other indoor space
72 m2
Exterior space attached to the buildinge
10 m2
External storage space
5 m2
Volume in cubic meters
864 m3
Plot Size
264 m2
Facilities
Mechanische ventilatie
Tv kabel
Buitenzonwering
Rookkanaal
Glasvezel kabel
Zonnepanelen
Natuurlijke ventilatie
In woonwijk
Baerz & Co Property Brochure

Brochure

Videos

Floor Plans

J.J. Van Oosten Makelaardij BV

Straatweg 225
3054 AG Rotterdam

info@vanoostenmakelaardij.nl
+31 10 422 11 00

www.vanoostenmakelaardij.nl

Information / Viewing request

Joris van Oosten profile image
Joris van Oosten
Real estate agent

Buying a Luxury Property in Rotterdam

Rotterdam offers sophisticated living for a discerning international community, with exceptional cultural, business, and lifestyle opportunities. Residents benefit from world-class services, distinctive homes, and a globally connected urban environment.