Villa for sale in ROERMOND

ROERMOND Roerderweg 34 - 6041 NS The Netherlands


Peet Donkers profile image
Peet Donkers
Real Estate Agent
+31 613786703
p.donkers@jackfrenken.nl

Jack Frenken Makelaars & adviseurs
Graaf Reinaldstraat 1
6041 XB Roermond
NETHERLANDS
+31 475335225
https://www.jackfrenken.nl/
info@jackfrenken.nl

Living area
159m2
Plot size
729m2
Bedrooms
5

Description

Charming villa in the popular Roer-Zuid district
Welcome to this stylish and excellently maintained villa, situated in a prime location in Roer-Zuid. This house, thoroughly renovated, made sustainable and expanded in 2003, offers a comfortable and luxurious living experience for those who want to live on the ground floor, with extra space on the first floor this house is also suitable for families. Thanks to the well-thought-out layout and the high-quality finish, this is a house where living comfort and elegance come together.

A warm welcome
When you enter the spacious hall, you immediately feel the atmosphere of this special house. The bright living room is divided into three attractive rooms: a sitting room, a TV room and a dining room, which flow into each other harmoniously. The large windows provide beautiful light and a magnificent view of the beautifully landscaped garden. Through the French doors you walk straight onto the terrace, where you can enjoy peace and privacy.

The luxurious Poggenpohl kitchen is equipped with high-quality built-in appliances and offers all the conveniences for those who love to cook. The combination of a well-thought-out layout and high-quality materials ensures a wonderful cooking experience. In the evening, you can relax by the atmospheric gas fireplace with a good book or a glass of wine.

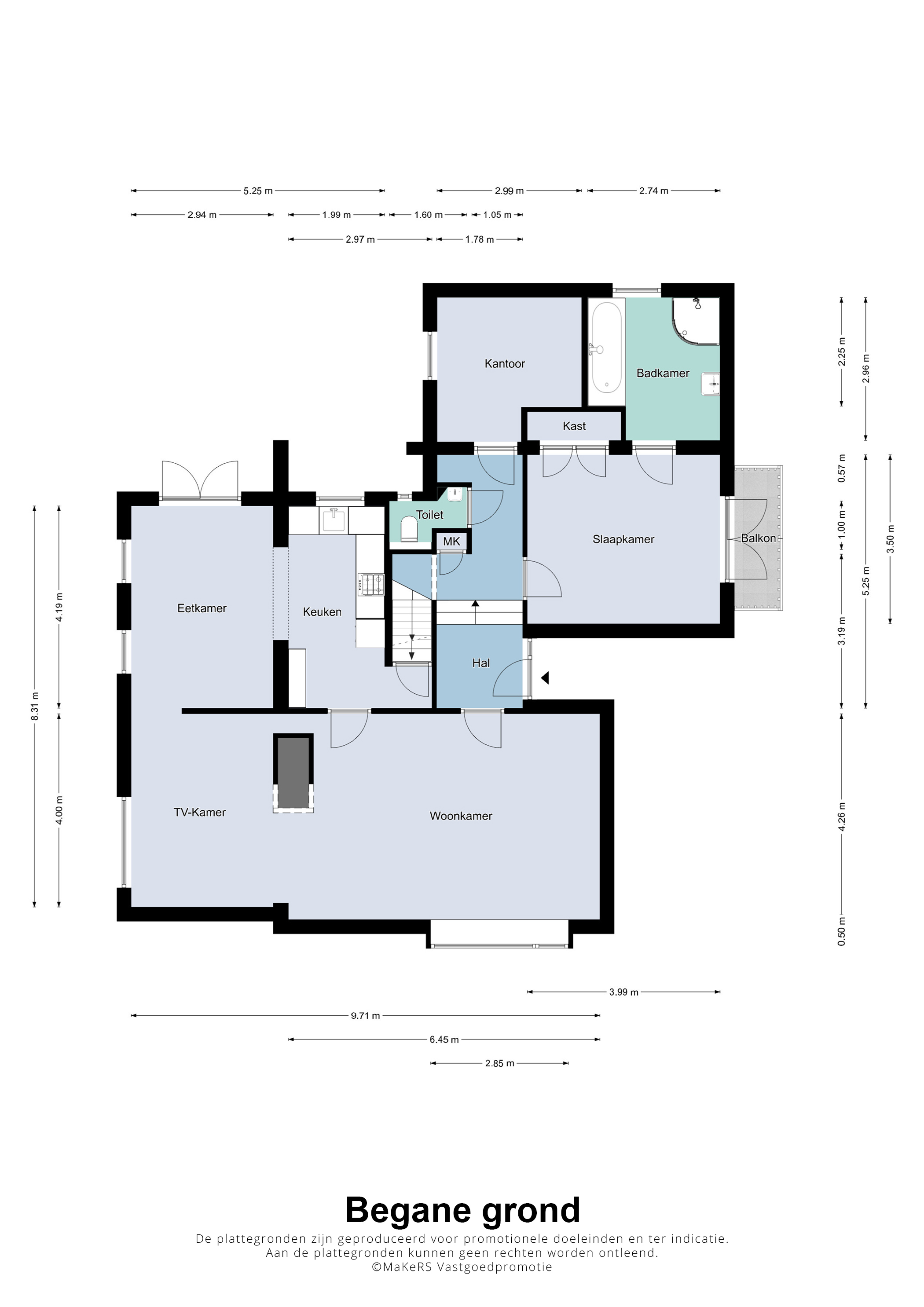
Comfortable ground-floor living
The ground floor offers a spacious master bedroom with its own bathroom and balcony, an ideal private space to relax. The bathroom has a bath, extra spacious shower, washbasin and comfortable underfloor heating. In addition, there is a practical office room and a toilet on this floor. Thanks to this layout, the house is extremely suitable for those who mainly want to live on the ground floor, with the option of offering guests their own space on the first floor.

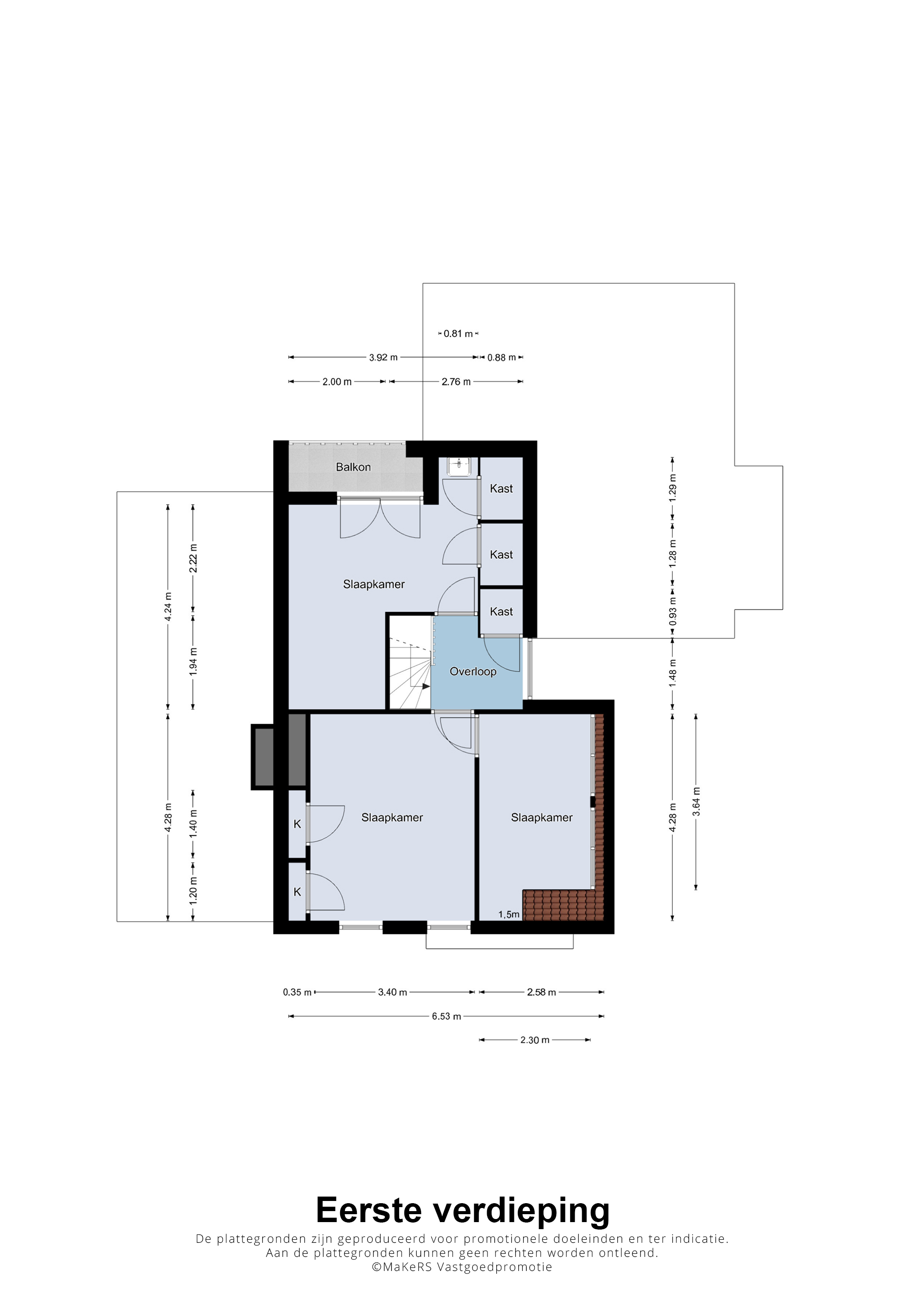
Additional bedrooms on the first floor
On the first floor there are three more bedrooms, one of which has its own washbasin and access to a second balcony. The built-in wardrobes offer sufficient storage space and make the rooms practical and efficient to use.

Basement: practical and versatile
In the basement you will find the indoor garage, an attractive wine cellar and various pantries. There is also a separate room for white goods and the central heating system, which offers extra convenience and storage space.

Beautiful garden with lots of privacy
The beautifully landscaped garden around the villa offers plenty of peace and privacy. The sunny location, the well-thought-out design and the luxurious canopy (2016) make this outdoor space a wonderful place to relax and enjoy the outdoors. The finish with natural stone, clinkers and gravel fits in perfectly with the high-quality appearance of the house.

Sustainable and energy-efficient living
During the renovation in 2003, the house was made much more sustainable, without making concessions to living comfort. The most important energy-saving measures include:

- Renovated roof with high-quality insulation (2003)
- Cavity wall insulation and floor insulation (Tonzon)
- Hardwood frames with HR++ glass
- 18 solar panels (yield approx. 5200 kWh per year)
- Underfloor heating in the living room, bathroom and toilet
- Nefit central heating boiler Trendline HRC30CW6 (2023)

Thanks to energy label B, this home combines luxury with responsible energy consumption, resulting in a comfortable and efficient living environment.

A unique opportunity in a beautiful location
This attractive villa offers a rare combination of luxury, comfort and privacy in one of the most beautiful locations in Roermond. Located in the quiet and popular Roer-Zuid district, a short distance from the center and all amenities.

Are you looking for a stylish home that is perfectly suited for comfortable living with space for guests? Contact us for a viewing and discover the charm and elegance of this villa!

Features

Transfer of ownership
price
€ 750.000 k.k.
Status
verkocht onder voorbehoud
Acceptance
in overleg
Construction
Kind of house
Eengezinswoning
Building type
vrijstaande woning
Construction period
1955
Energy rating
B
Roof type
zadeldak
Bedrooms
5
Bathrooms
1
Surface Areas And Volume
Living area
159 m2
Other indoor space
63 m2
Exterior space attached to the building
6 m2
Volume in cubic meters
724 m3
Plot size
729 m2
facilities
Rolluiken
Tv kabel
Buitenzonwering
In woonwijk
Baerz & Co Property Brochure

Brochure

Information / Viewing request

Videos

Photos

Floor Plans