NIJMEGEN
Batavierenweg 44 - 6522 EB
Netherlands

Freek van Camp profile image
Freek van Camp
Real Estate Agent
€945,000 k.k.
Living Area
226m2
Plot Size
17m2
Bedrooms
3

Description

Unique apartment with panoramic views and a garage, within walking distance of the city centre

With sweeping views over the River Waal, the Ooijpolder and the skyline of Nijmegen, this exceptional apartment offers a living experience that is rarely found. This bright residence is located on the sixth floor of a well-maintained building with a total of nine storeys, on the edge of the highly sought-after Nijmegen-Oost district. The combination of generous space, spectacular views and an excellent location creates an extraordinary living experience, further enhanced by the comfort of a central yet pleasant setting.

Situated close to the city centre and with excellent access to major roads, this is one of the most desirable residential areas in Nijmegen. All amenities are within walking distance. Bicycles can be stored in the communal bicycle storage on the ground floor. On-street parking is available directly in front of the building by permit. In addition, a private garage is just around the corner, in which a car can be stalled. This garage has a value of €50,000. Purchase of the apartment without the garage is also possible.

The apartment was created in 2009 by combining two separate units (numbers 44 and 46), resulting in an exceptionally spacious and well-organised home with a clear separation between the living area (44) and the sleeping wing (46). During this process, the apartment was fully and high-quality renovated. A solid oak floor in the living room and hallway, combined with clean finishes and abundant natural light, creates a warm and luxurious atmosphere. Large windows on all sides provide impressive sightlines and panoramic views over the Waal Bridge, the Ooijpolder and the city. Privacy, comfort and refined finishes come together here in a truly unique living experience.

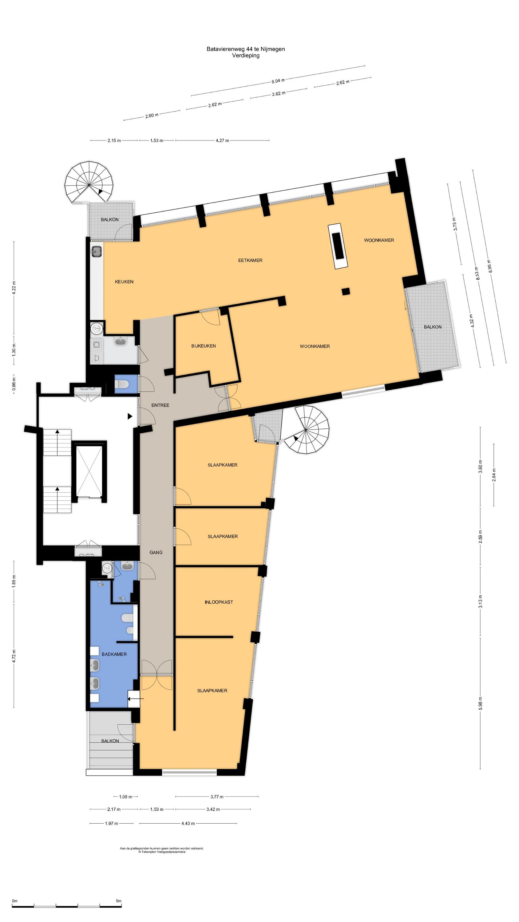
Layout:

Ground floor
Well-maintained and spacious communal entrance with doorbells, stairwell, lift and central bicycle storage. A private storage unit is also located here.

Sixth floor
Entrance to the apartment via a secure front door. Thanks to windows on all sides, the apartment is exceptionally bright. It features a long, wide hallway that serves as the central connection to all rooms. Upon entering, you will find the cloakroom, guest toilet, laundry room and the open-plan kitchen. Both the kitchen and the living room are directly accessible from the hallway, creating a loft-like atmosphere and a logical, flowing layout.

The kitchen is equipped with various built-in appliances and provides access to the first, south-facing balcony. Adjacent to the kitchen is an internal utility room offering additional storage and workspace. From the living room and the balcony there are beautiful views over the city of Nijmegen and Radboud University. A gas fireplace separates the dining area from the television/lounge area on the south-west side. The west-facing balcony offers lovely views towards the River Waal and the iconic Waal Bridge.

On the right-hand side of the hallway is the sleeping wing, consisting of three spacious bedrooms and two bathrooms. The master bedroom is a comfortable private retreat with a generous walk-in wardrobe, a luxurious en-suite bathroom and a north-facing balcony. The bedroom is equipped with air conditioning. The en-suite bathroom features a walk-in bathtub, walk-in shower, toilet, bidet and double washbasin.

The two additional bedrooms are also spacious and, like the rest of the apartment, benefit from ample daylight and unobstructed views. One of these bedrooms has its own west-facing balcony, perfect for enjoying the afternoon and evening sun. The second bathroom is fitted with a shower and washbasin.

Details:
- Renovated in 2009 under the guidance of an interior architect
- Living area approx. 226 m²
- Four balconies with a total area of approx. 16 m²
- Nearby garage of approx. 15 m²
- Ample parking available in front of the building for residents and visitors
- Communal bicycle storage on the ground floor with four spaces
- Private storage room on the ground floor of approx. 5 m²
- Final energy label C, valid until 16-05-2035
- Heating via central block heating system
- Modern intercom system

Features

Air conditioning
Transfer of ownership
Asking Price
€ 945.000 k.k.
Status
beschikbaar
Acceptance
in overleg
Construction
Kind of house
Portiekflat
Building type
appartement
Construction period
1958
Energy rating
C
Roof type
plat dak
Bedrooms
3
Bathrooms
1
Surface Areas And Volume
Living Area
226 m2
Other indoor space
0 m2
Exterior space attached to the buildinge
16 m2
External storage space
5 m2
Volume in cubic meters
728 m3
Plot Size
17 m2
Facilities
Tv kabel
Lift
Airconditioning
Schuifpui
Natuurlijke ventilatie
Aan rustige weg
In woonwijk
Vrij uitzicht
Baerz & Co Property Brochure

Brochure

Videos

Floor Plans

Verbeek Makelaars

Mariaplein 6
6522 AV Nijmegen

f.van.camp@verbeek-makelaars.nl
+31 24 22 00 111

www.verbeek-makelaars.nl

Information / Viewing request

Freek van Camp profile image
Freek van Camp
Real Estate Agent

Buying a Luxury Property in Nijmegen

Nijmegen unites historic elegance, academic vibrancy, and refined amenities. Residents enjoy tailored property services, a cosmopolitan community, and access to exceptional cultural, business, and recreational opportunities year-round.