LAGE VUURSCHE
Karnemelksweg 2 - 3749 AH
Netherlands

Marquiette Schaap profile image
Marquiette Schaap
Real estate agent
€2,750,000 k.k.
Living Area
350m2
Plot Size
2095m2
Bedrooms
4

Description

Living in a Dream – A Villa in Enchanting Lage Vuursche

There are places that capture your heart instantly. Lage Vuursche is one of them. A charming, almost fairytale-like village tucked away among the woods, where time seems to slow down and life regains its calm rhythm. In this idyllic setting stands a villa that you don’t simply visit — you experience it. A home that evokes the feeling of a holiday in the South of France, yet right in the heart of the Netherlands.

From the moment you drive through the private gate, the atmosphere changes. The beautifully landscaped garden, complete with fruit trees and an herb garden, embraces the villa. The house radiates understated elegance, inviting you to look closer. At the front awaits the veranda — a place to linger endlessly, basking in the sun or sheltered during a gentle rain.

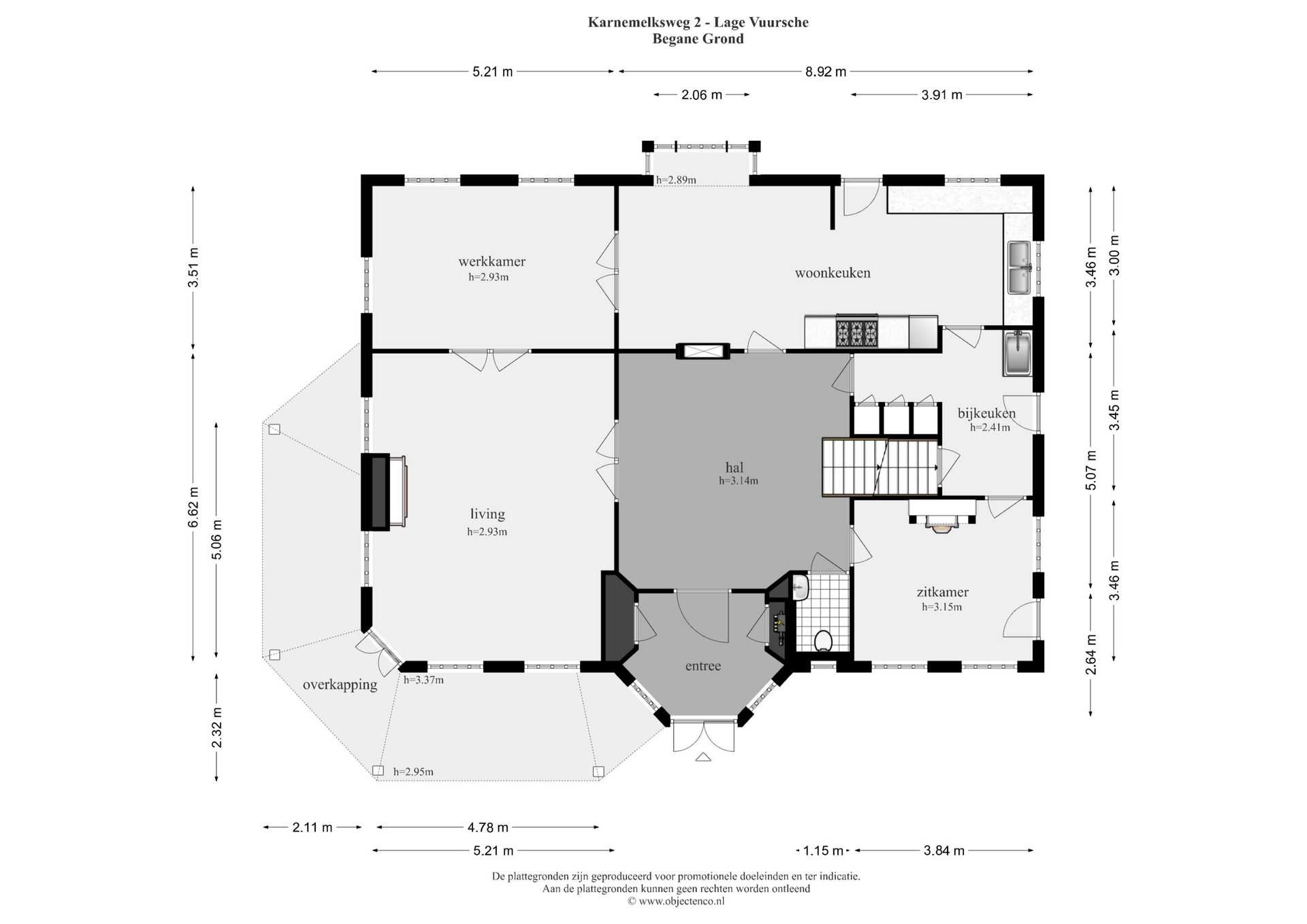
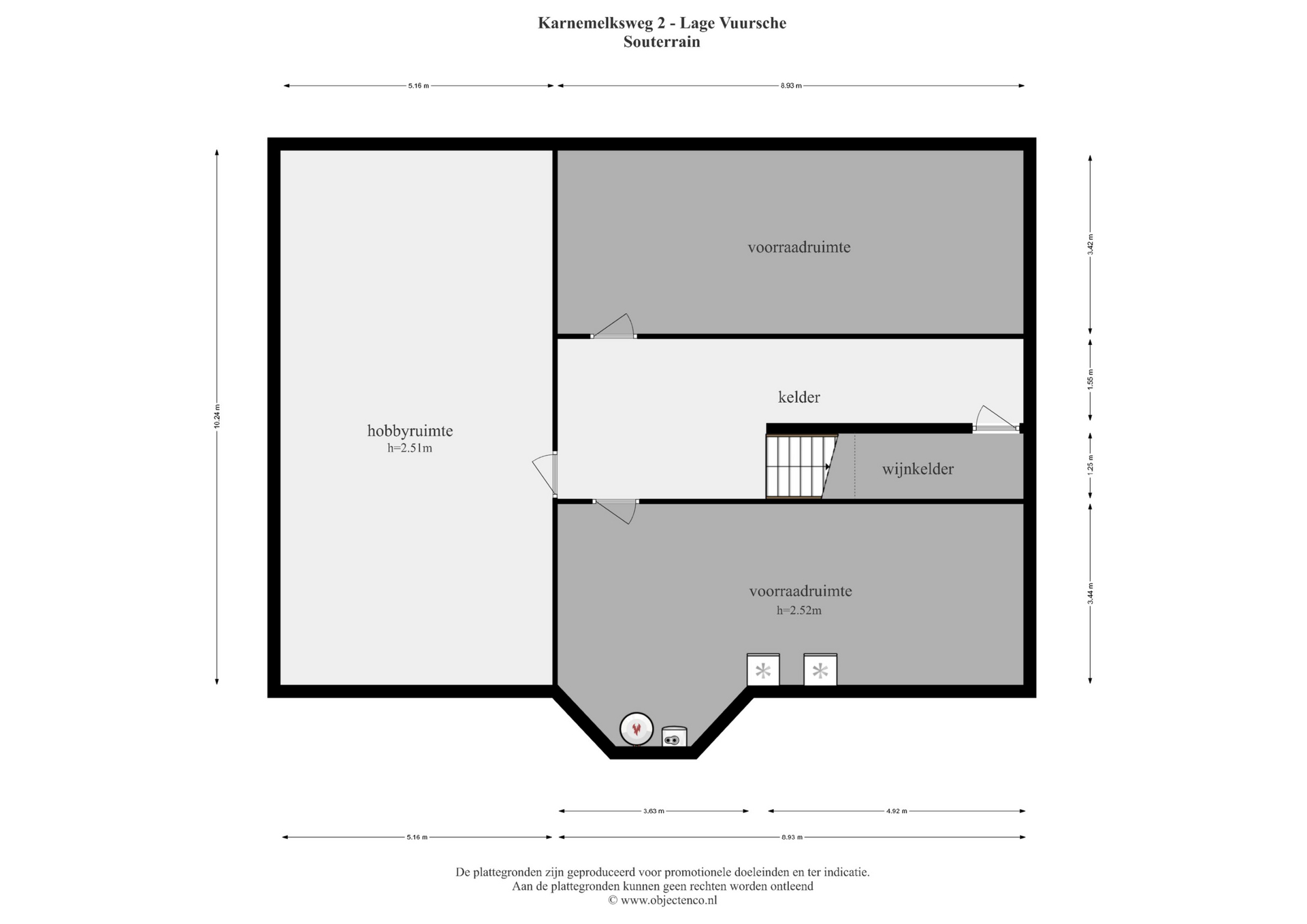
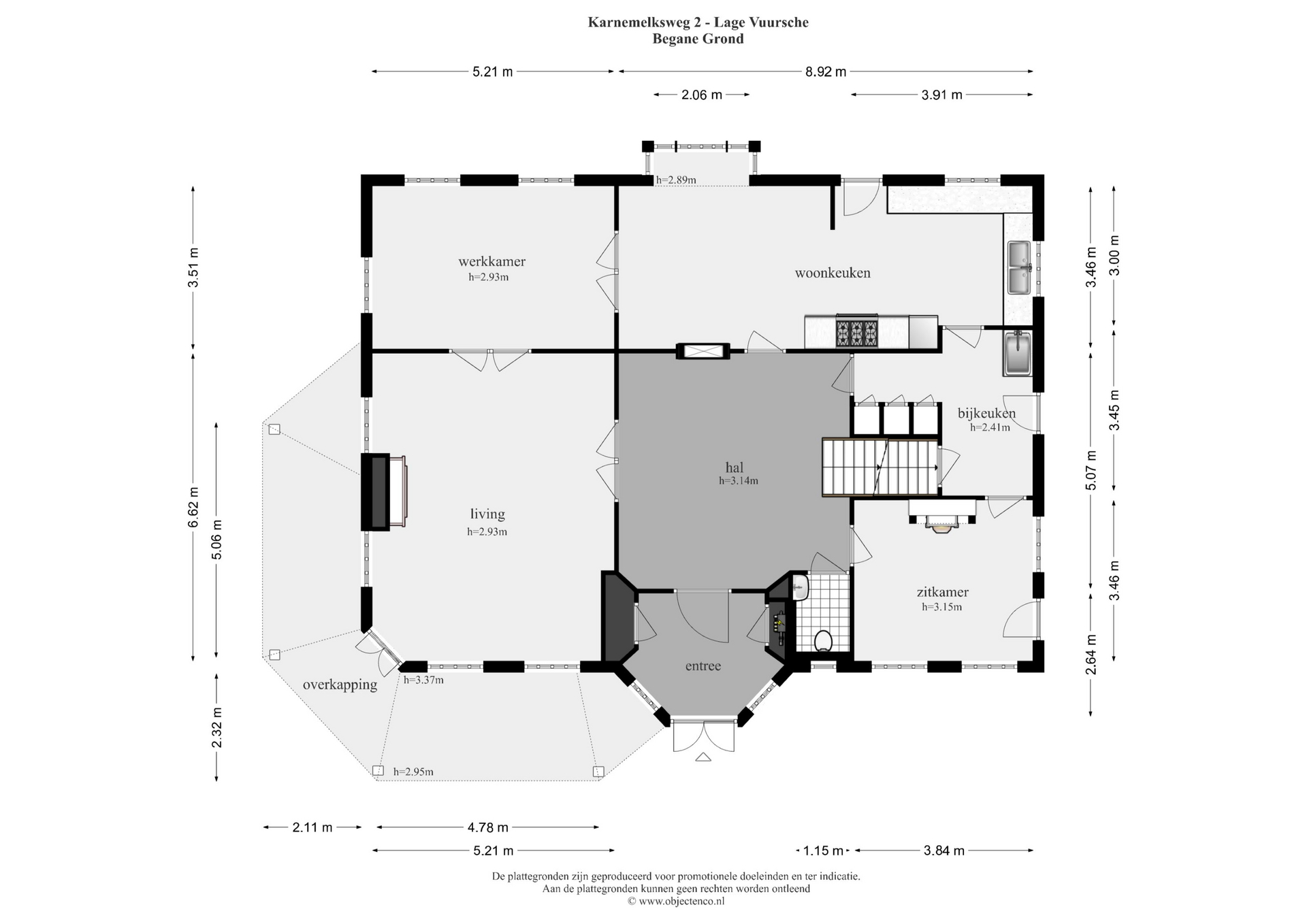
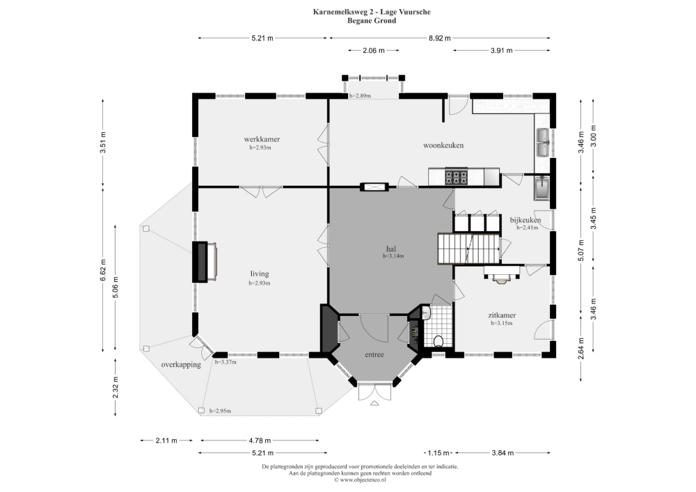
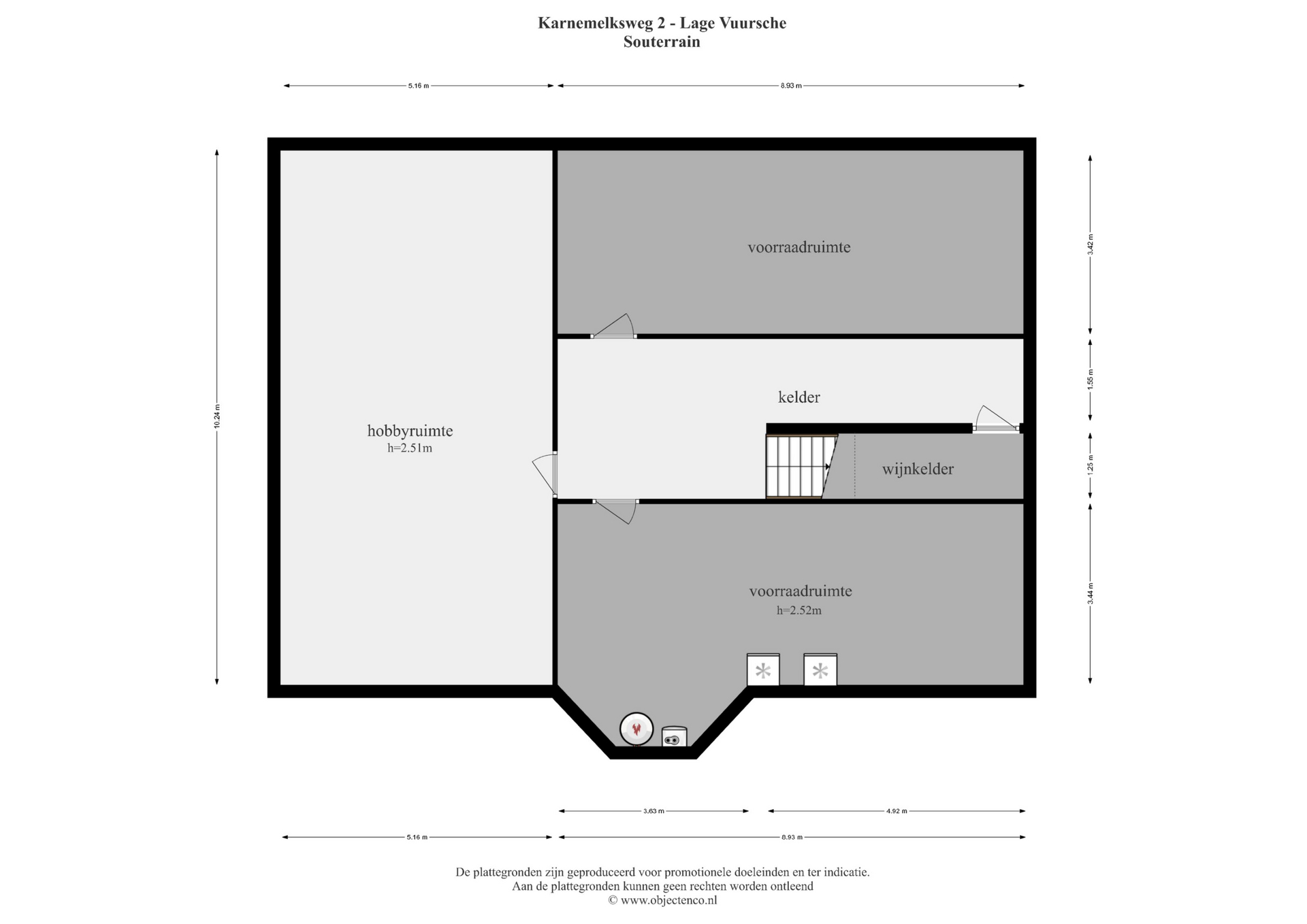
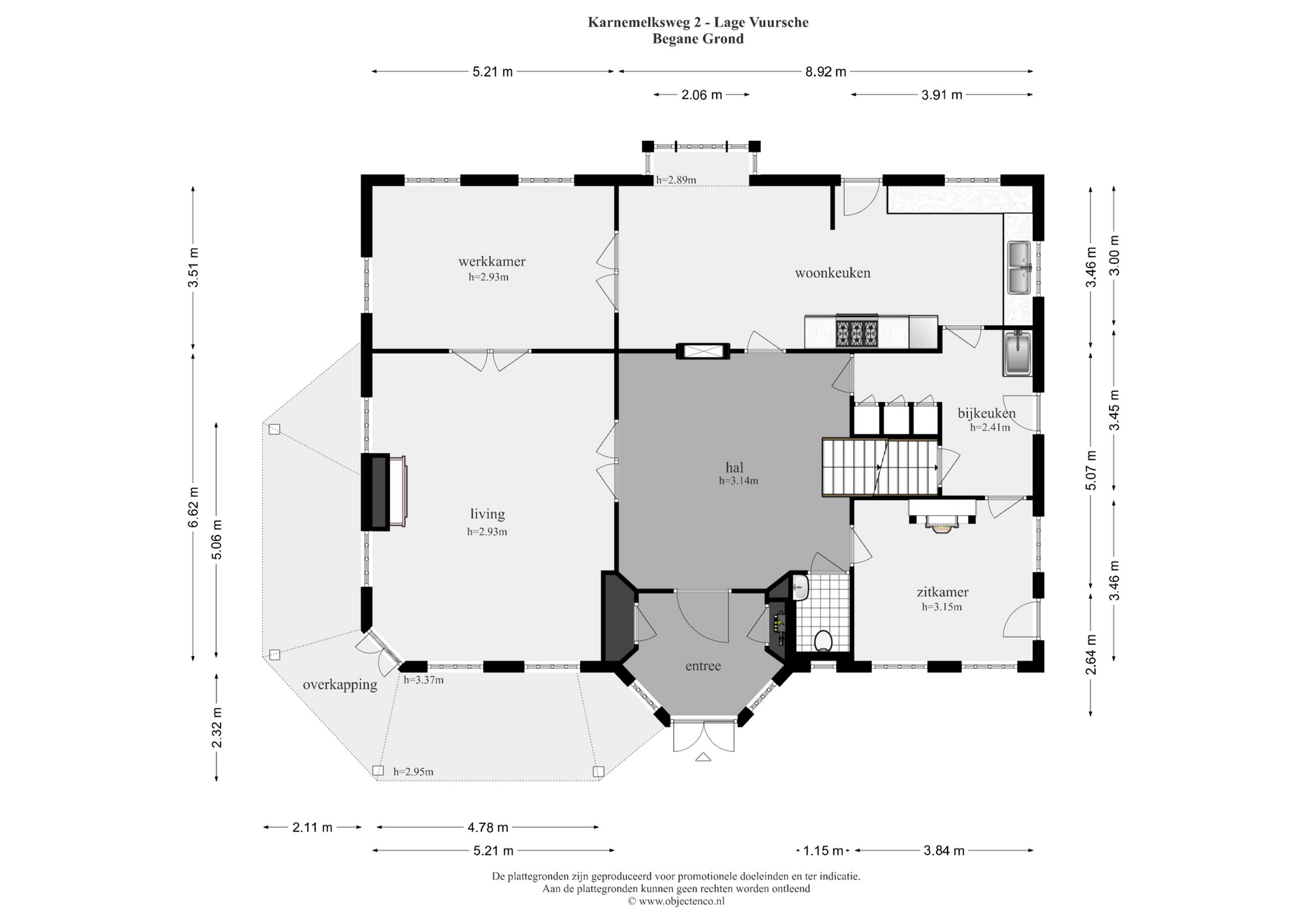
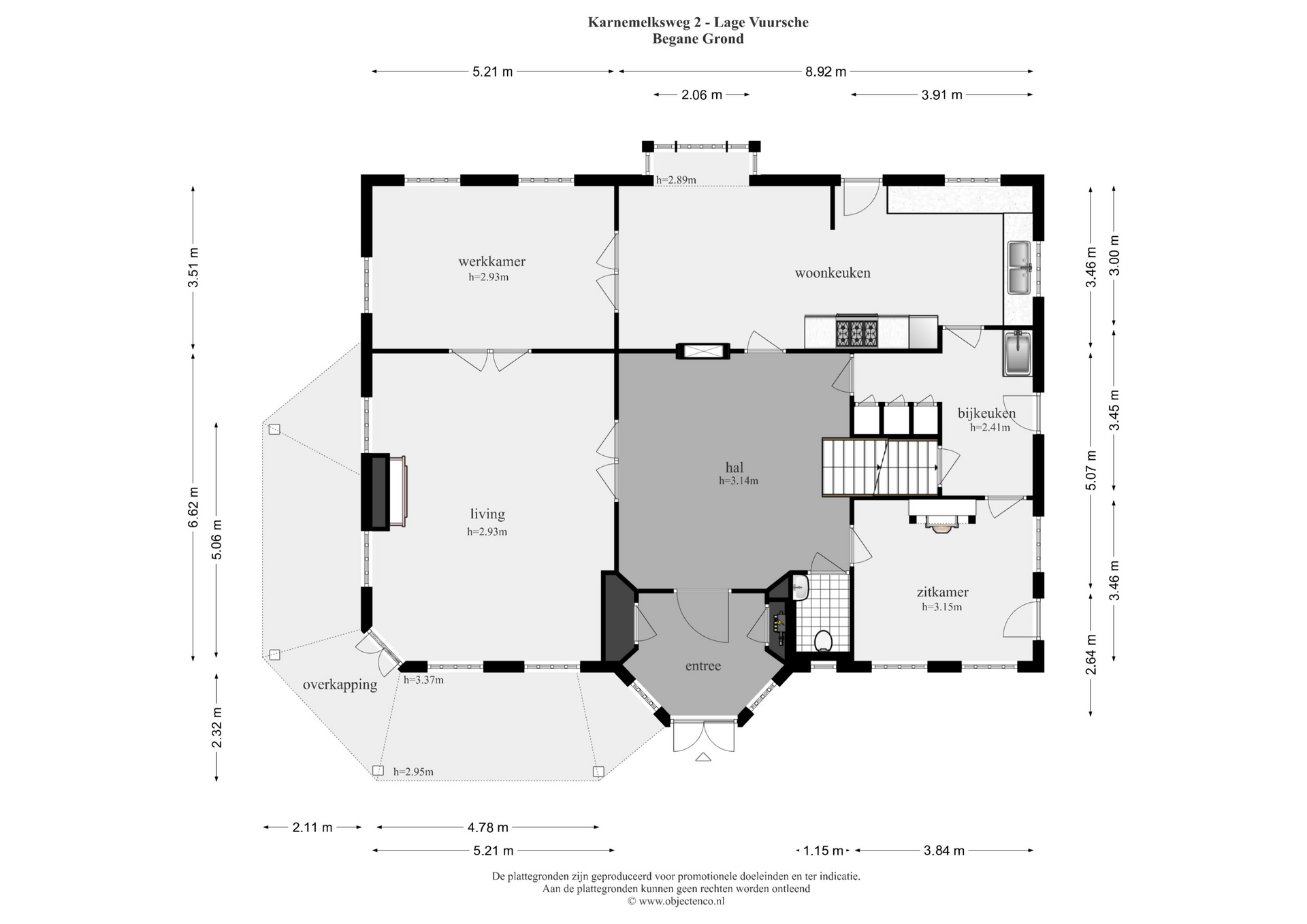
Inside, the villa is as surprising as it is enchanting. With a living area of approximately 350 m² and an additional 150 m² in the basement, the house offers an abundance of space. The ceilings on the ground floor reach nearly three meters high, giving every room a sense of airy openness. The stately entrance hall, with its fireplace and sweeping staircase, feels like a promise of what’s to come.

What truly sets this home apart is the soul with which it was built. Designed in 2012 by architect Van Asbeck, the villa owes its unique character to the carefully sourced, reclaimed materials. Parquet floors that once graced historic buildings, centuries-old children’s play tiles incorporated into the skirting and kitchen, doors with a story, roof tiles from a former Utrecht barracks, and even old cheese boards that have found a new purpose. In the kitchen stands a cabinet from an Amsterdam canal house — fitting seamlessly into the home’s atmosphere. Every detail breathes history and authenticity, together giving the house a rare sense of spirit and depth.

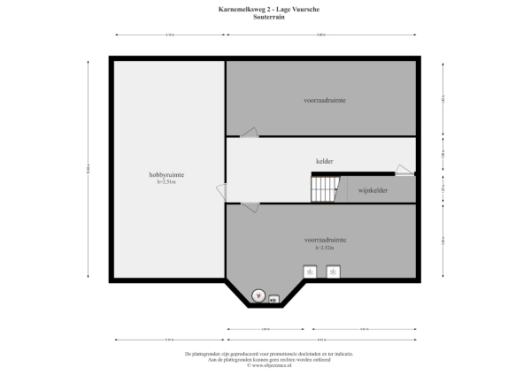
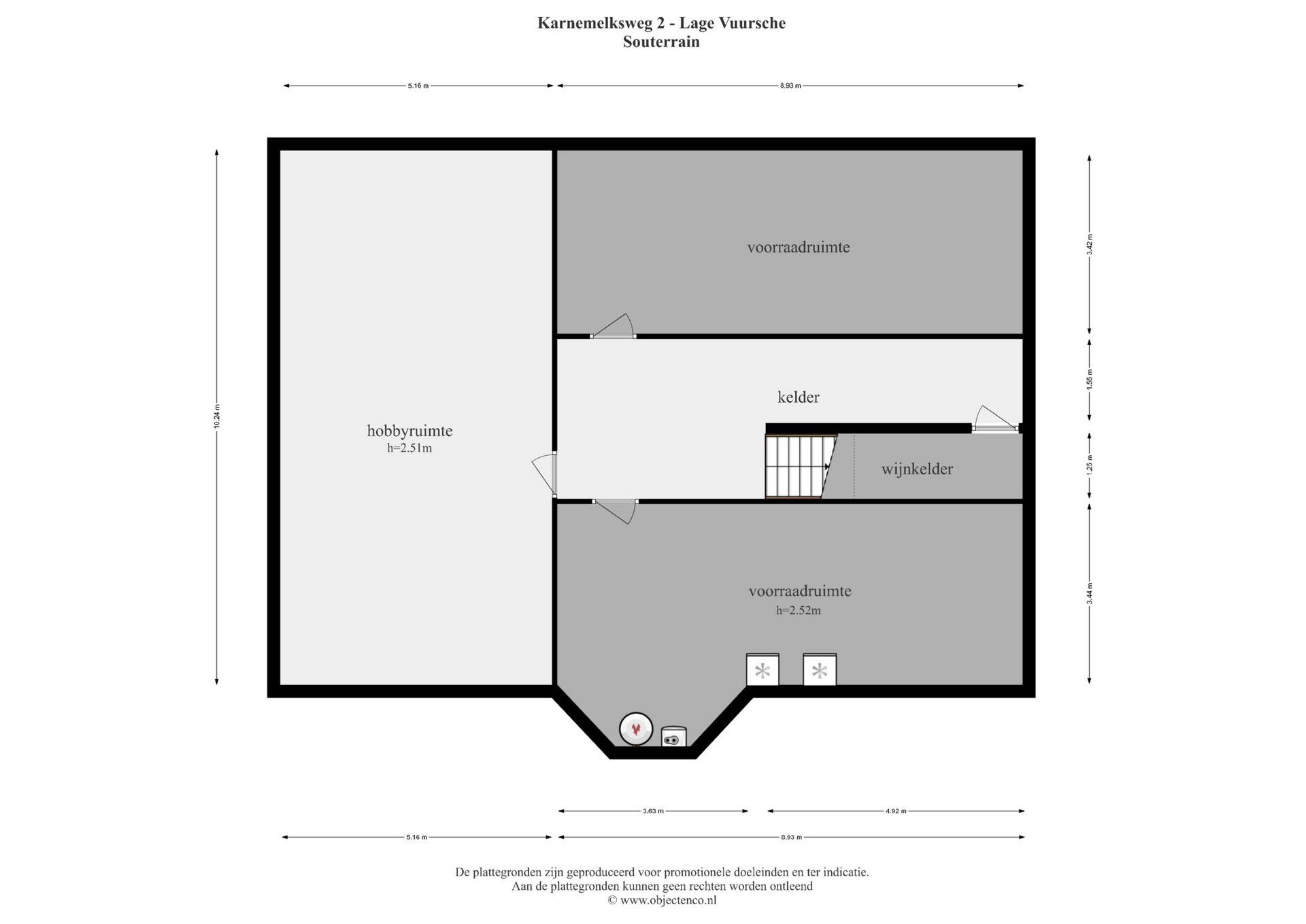
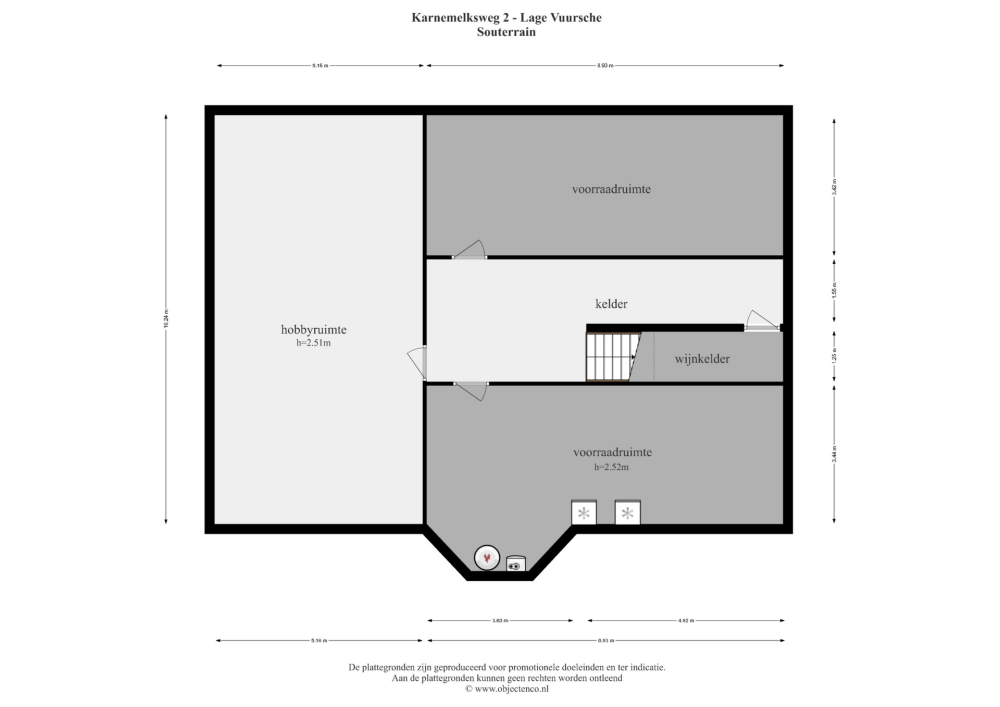
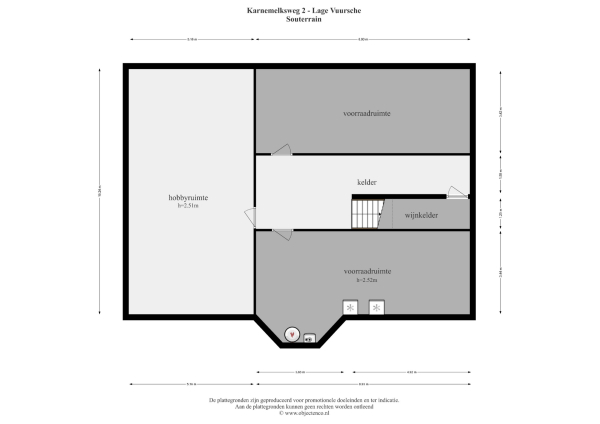
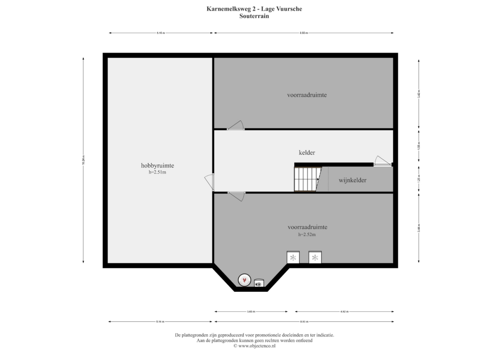
Surrounding the hall are the living spaces: a warm living room with an open fireplace where winter evenings naturally linger, a light-filled atelier perfect for creativity, a study where silence reigns, and a generous kitchen-diner inviting long, convivial dinners. In the basement, there’s space for a gym, a games or pool room, or a wine cellar.

The staircase leads to the first floor, where the master level unfolds like a private suite: a spacious bedroom overlooking the garden, a luxurious bathroom, a dressing room, and direct access to the laundry room. There are also two additional bedrooms, each with its own bathroom, plus a separate toilet.

Continuing up the staircase, the second floor reveals a charming attic room, also with a private bathroom.

What makes this house so special is not only its generous layout or exquisite detailing — it’s the atmosphere. The light streaming through the tall windows, the refined touches present in every room, the way the house invites you not just to live, but to truly live well.

This villa is not a standard villa. It is a home with stories, built with love for old materials and an eye for detail. A place that breathes warmth and character, where every stone, every plank, and every tile carries a piece of history. A place you don’t just buy — you experience.

At a glance
•Living area: approx. 350 m²
•Basement: approx. 150 m²
•Year built: 2012
•Architect: Van Asbeck
•Energy label: A
•Garage and private entrance gate
•Fruit trees and herb garden
•Multiple fireplaces
•Unique features using reclaimed historical materials

And then, the location. Lage Vuursche is a village that stirs the imagination: an intimate community surrounded by forest, rich in history, yet conveniently close to Baarn, Hilversum, and major roads. A place where you step outside and immediately find yourself in nature — where silence is a luxury, and safety a given.

Features

Alarm system
Transfer of ownership
Asking Price
€ 2.750.000 k.k.
Status
beschikbaar
Acceptance
in overleg
Construction
Kind of house
Villa
Building type
vrijstaande woning
Construction period
2012
Energy rating
A++
Roof type
samengesteld dak
Bedrooms
4
Bathrooms
3
Surface Areas And Volume
Living Area
350 m2
Other indoor space
150 m2
Exterior space attached to the buildinge
29 m2
Volume in cubic meters
1740 m3
Plot Size
2095 m2
Facilities
Mechanische ventilatie
Alarminstallatie
Tv kabel
Rookkanaal
Aan rustige weg
Vrij uitzicht
Beschutte ligging
In bosrijke omgeving
Baerz & Co Property Brochure

Brochure

Videos

Floor Plans

Art of Living by Marquiette & Partners

Meentweg 4
1261 XT Blaricum

hello@artoflivingbymar.com
+31 35 763 54 24

www.artoflivingbymarquiette.com

Information / Viewing request

Marquiette Schaap profile image
Marquiette Schaap
Real estate agent

Buying a Luxury Property in Lage Vuursche

Lage Vuursche offers discerning buyers a harmonious blend of community, tranquility, and refined lifestyle. The area’s heritage, high-quality services, and international accessibility create a discreet yet welcoming environment for those seeking distinction.