KORTENHOEF
Kortenhoefsedijk 198 - 1241 NB
Netherlands

 profile image

 
€1,695,000 k.k.
Living Area
150m2
Plot Size
870m2
Bedrooms
3

Description

Direct aan het Hilversums Kanaal in de vernieuwde luxe haven van Magna Verde bieden wij aan deze stijlvolle, vrijstaande villa met twee ligplaatsen welke luxe combineert met duurzaamheid en een energielabel A+++. Dankzij de volledige isolatie, 6 zonnepanelen, een warmtepomp en vloerverwarming geniet u van optimaal wooncomfort met lage energiekosten.
De moderne afwerking in combinatie met lichte ruimtes en prachtig uitzicht zorgt voor een aangename leefomgeving in elk seizoen.

De villa is volledig gerenoveerd in 2024 en verbouwd met hoogwaardige producten met oog voor detail! Onder andere de lichtinvallen, indeling, vormgeving en zichtlijnen maken deze villa een genot om in te wonen. De villa is gelegen op een riant perceel met water van 870 m², heeft een woonoppervlakte van 150m², beschikt over 4 kamers waarvan 3 slaapkamers en een overvloed aan leefruimte. De riante oprit biedt dan ook de mogelijkheid om meerdere auto’s te parkeren.

De Villa beschikt tevens over twee ligplaatsen en biedt zelfs de mogelijkheid een boothuis te creëren. Vanuit uw eigen tuin vaart u direct op het Hilversums Kanaal dat verbinding biedt tussen Hilversum en Nederhorst den Berg. Maar ook een tochtje richting Amsterdam of Utrecht zijn mogelijk.

Indeling
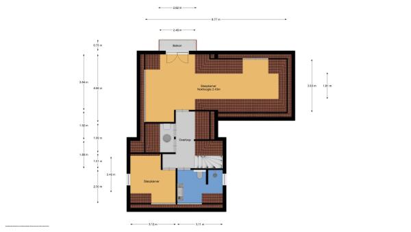
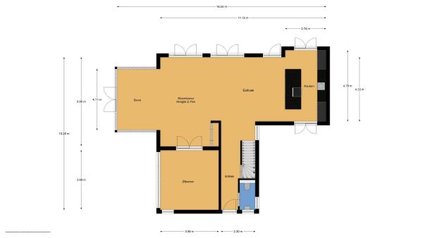
Begane grond: bij binnenkomst in de villa betreedt u de ruime hal, toilet met fonteintje en de trapopgang naar de eerste verdieping. Vanuit de hal loopt u door naar de prachtige, lichte living, die dankzij de openslaande deuren rondom direct in verbinding staat met de tuin en het terras.
De open keuken is volledig uitgerust met hoogwaardige inbouwapparatuur, waaronder een inductiekookplaat met afzuiger, Quooker, koelkast-/vriescombinatie combi-oven, klimaatkast en vaatwasser, en biedt tevens een adembenemend uitzicht over de omgeving.
Daarnaast beschikt de villa over een aparte zitkamer, die ook in te richten is als kantoor of extra slaapkamer.
De gehele begane grond is afgewerkt met een stijlvolle visgraatvloer met comfortabele vloerverwarming, inbouwspots, wandlampen en raambekleding.

Eerste verdieping: op de eerste verdieping geeft de hal toegang tot alle vertrekken. De robuuste badkamer is voorzien van een ruime inloopdouche, een wastafel met meubel en een toilet. Aan de voorzijde bevindt zich een kleinere kamer v.v. airconditioning, ideaal als slaap-, werk- of hobbyruimte.
De technische installatie is slim weggewerkt in een aparte ruimte, waarin o.a. sw warmtepomp zich bevindt, onder het schuine dak vindt u de aansluiting voor de wasmachine en droger.
De royale masterbedroom is tevens uitgerust met airconditioning en beschikt over een eigen balkon, waar u kunt genieten van een prachtig uitzicht over het water.

Bijzonderheden:
- vrijstaande villa direct gelegen aan vaarwater;
- volledig gerenoveerd in 2024;
- twee ligplaatsen met doorvaart naar Hilversums Kanaal
- mogelijkheid creëren boothuis;
- parkeren meerdere auto’s op eigen terrein;
- voorbereiding laadpaal en mogelijkheid elektrische poort aanwezig;
- perceel oppervlak incl. water van ca. 870 m²;
- volledig geïsoleerd met energielabel A+++;
- v.v. 6 zonnepanelen, warmtepomp, vloerverwarming en airco;
- alarm aanwezig;
- luxe afgewerkt met o.a. visgraatvloer, dimbare inbouwspots en wandlampen (LED verlichting);
- riante tuin met prachtig uitzicht over het water;
- separate houten berging in stijl met de villa;
- oplevering kan snel.

Locatie
De villa ligt aan de rand van Kortenhoef en het watersportdorp Oud-Loosdrecht met beide fraaie jachthavens en gezellige restaurants en terrassen. Voor uw dagelijkse boodschappen kunt u terecht in Nieuw-Loosdrecht, Kortenhoef en Loenen aan de Vecht. Meer stadse voorzieningen alsmede een groot aanbod aan middelbare scholen en een NS-station vindt u in o.a. Hilversum, dat u binnen 15 autominuten bereikt. Via de uitvalswegen naar de A2 bent u binnen 20 autominuten op de Amsterdamse Zuidas en binnen 30 autominuten in Utrecht of Amsterdam Centrum/Schiphol.
Kortom: heerlijk riant buiten wonen met alle voorzieningen binnen bereik!

Features

Solar panels
Alarm system
Air conditioning
Transfer of ownership
Asking Price
€ 1.695.000 k.k.
Status
beschikbaar
Acceptance
in overleg
Construction
Kind of house
Villa
Building type
vrijstaande woning
Construction period
1930
Energy rating
A+++
Bedrooms
3
Bathrooms
1
Surface Areas And Volume
Living Area
150 m2
Other indoor space
0 m2
Exterior space attached to the buildinge
2 m2
External storage space
18 m2
Volume in cubic meters
575 m3
Plot Size
870 m2
Facilities
Mechanische ventilatie
Alarminstallatie
Airconditioning
Glasvezel kabel
Zonnepanelen
Natuurlijke ventilatie
Aan water
Aan rustige weg
Vrij uitzicht
Aan vaarwater
Baerz & Co Property Brochure

Brochure

Videos

Floor Plans

Information / Viewing request

 profile image

Buying a Luxury Property in Kortenhoef

Kortenhoef offers a harmonious blend of privacy, natural beauty, and refined amenities. Its close-knit, international community benefits from tailored services and cultural heritage, making it a quietly sophisticated choice for those seeking Dutch village luxury.