HARLINGEN
Achlumerdijk 133 - 8862 AL
Netherlands

Ellen Schoneveld profile image
Ellen Schoneveld
Real Estate Agent
€1,977,000 k.k.
Living Area
1043m2
Plot Size
7744m2
Bedrooms
12

Description

Nature, water, space, living in high-end villa neighborhood!

On a private island on the Elfsteden route, this modernized farmhouse with meadow and unobstructed views over the bird nesting area is located on the edge of a villa district just steps away from the center of the picturesque port city of Harlingen.

Spacious luxury living with the atmosphere of the old days; 7 bedrooms, 5 with en-suite bathroom and 2 with shared spacious bathroom.
The possibilities are numerous, large families, B&B, inspiration center, (old age) group home or working from home.

A long driveway gives access through an ornate wrought iron electric gate to a spacious paved parking area at the rear of the farmhouse.
The imposing wooden former stable doors immediately indicate where the entrance is located. As you enter through these doors into the glass front porch you will discover 3 modern rooms that are set up as offices, but can be used for a variety of purposes. The open center of the large section can be used as a living room, fitness or meeting room. All rooms look light and attractive because of the glass walls and the impressive old beams and trusses left in sight up to the ridge. The spacious pantry and separate toilets are located at the rear of the former barn.
On the right side of the barn downstairs, 4 modern rooms with en-suite bathrooms have been created. The rustic atmosphere and feeling of outdoor living has been retained. Each room has its own entrance.
The spacious upper floor of the barn has 3 more beautiful multi-functional rooms plus a huge hobby or entertainment room, a large storage attic, a cozy bar and a fully equipped cooking studio. All in a modern look while retaining old details. The impressive roof of the barn has been beautifully renovated and panelled.

The modernized front house on the south side of the farmhouse can be entered via the terrace with front door to the hall on the side of the house or inside through a connecting door in the former barn. It has a bright attractive spacious upstairs room used as a living room where the old fireplace and authentic round "box bed" doors catch the eye. The upper room gives a panoramic view of its own pasture, the bird nesting area, the Harlingervaart and the dike with the Wadden Sea beyond. The new modern kitchen with beautiful oak floor is spacious, equipped with a pantry and all possible luxury appliances and has doors to the "conservatory" terrace where you can sit in the shade overlooking the beautiful garden and the waterfront. The wrought iron gas stove gives the kitchen a nostalgic look. Under the kitchen is the former milking parlor with original estriken floor transformed into a recently insulated entertainment room, equipped with radiators.
The hall gives access to the master bedroom equipped with a stylish en-suite bathroom with freestanding bathtub, separate toilet, walk-in rain shower and double washbasins. Between the bathroom and bedroom a generous walk-in closet with frosted-glass doors is situated. The master bedroom has a door to the south terrace and insulated characteristic stable windows. The bed with an electrically integrated recessed TV cabinet stands prominently in the room with behind it a large fixed cabinet wall as "dressing room". These rooms all have underfloor heating.
A spacious 2nd large bathroom with bath, shower, radiator, underfloor heating, 2 washbasins, separate toilet, bidet and enclosed laundry room is also located on the first floor.
The front house has 2 more cosy bright bedrooms upstairs, each with its own staircase, landing and closet space.

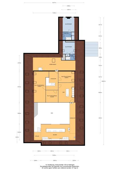
GROUD FLOOR
The ground floor is divided into two parts.
-The old modernized front house with a modern kitchen with all possible built in appliances with French doors to the terrace / conservatory on the waterfront, an upstairs room with fabulous views as a living room, a former milking parlor as an entertainment room, a luxury master bedroom with stylish en-suite bathroom and walk-in closet. The central hall also gives access to a 2nd large downstairs bathroom with separate toilet and enclosed white goods room.
-The former stable, has been converted and has 4 generous rooms all with en-suite bathroom and private entrance. In this part downstairs 4 modern rooms/offices are situated with a pantry and toilets. All around a modern large open-plan multi-functional space with open view to the beautiful ridge.
-It is quite easy to transform the barn or just the first floor into a fully independent home for a large family. Please see our artist impressions.

1st FLOOR
The 1st floor of the front house has 2 cozy bedrooms, each accessible by its own staircase with landing, closet space, dormers and skylights.
The floor of the former barn has 3 generous rooms plus a large entertainment room, a cozy bar and a professional cooking studio.

ATTIC
At the top of the former barn is a spacious attic with headroom. The attic can be reached via a staircase in the entertainment room on the first floor.

THE FORMER BARN/EXTENSION
The former barn has been professionally renovated and completely modernized. Imposing open stable doors with glass entrance, is a striking feature upon arrival at Harlingen Staete. There are now 4 beautiful fully furnished rooms with en-suite bathroom. Furthermore, downstairs are 3 spacious multifunctional rooms situated around a large open-plan hall with a view of the imposing ridge in the middle of the barn. All rooms are light and atmospheric due to the use of a lot of glass, the preservation of the old stable windows and the beautiful old beams of the 6-sided part of the barn in sight. It goes without saying that all high-tech connections/wiring for internet, light, presentations etc. are present as well as a pantry and separate toilet groups.
Via two staircases you can reach the 1st floor of the barn where you will also notice the beautiful old wooden trusses and the modern and attractively panelled ridge. This floor has 3 large multifunctional rooms, a large entertainment room with loft, a cozy bar and a professional cooking studio.
The entire downstairs floor has floorheating and is connected to the front house through a connecting door.
It is quite easy to transform the barn or just the ground floor into a fully independent home for a large family. See our artist impressions.

GARDEN / MEADOW / YARD
The farmhouse is situated on an island, it is bordered by water with the Elfsteden Harlingervaart on the south side of the plot. The beautiful trees and weeping willows along the jetties and canoe/boat ramp emphasize the maritime environment. The hardwood jetties provide ample mooring for numerous boats.
The meadow with crisp white fencing is located in front of the home and is suitable for keeping small livestock or horses. The well-kept and beautifully landscaped garden has several sun and shade terraces, borders, various types of trees including even a small orchard. There is ample parking space with electric charging stations.

PARTICULARS
-energy label A
-well renovated farmhouse
-modernised house with a live-in kitchen
-possibilities for B&B, cooking studio, 5 modern offices & meeting room
-possibilities for double occupancy/group living/parental care or kangaroo living
-located at the famous "elfsteden" water with beautiful sailing routes
-possibilities for keeping horses/small stock on own property
-asbestos-free certificate
-4 electric car charging stations
-hardwood jetties for several boats
-boat ramp
-paintwork 2020
-Amsterdam 1 hour driving distance
-10min cycling from Wadden / departure ferries
HARLINGEN
Harlingen on the Wadden Sea is the most beautiful port city in Friesland. It has six hundred monuments in town. This is living at the Wadden Sea with its beautiful flora and fauna, just steps away from the Wadden Islands, beaches and all amenities such as cozy restaurants, shopping streets, schools and a train station.
The port city has a history dating back to the early 13th century. The nautical slant still determines the atmosphere in and around the characteristic port area where in summer it is pleasantly filled with (international) tourists, sailors and wadden area lovers.
Thanks to its location north of the afsluitdijk, Amsterdam can be reached within the hour.

Features

Alarm system
Transfer of ownership
Asking Price
€ 1.977.000 k.k.
Status
beschikbaar
Acceptance
in overleg
Construction
Kind of house
Woonboerderij
Building type
vrijstaande woning
Construction period
1832
Energy rating
A
Roof type
zadeldak
Bedrooms
12
Bathrooms
6
Surface Areas And Volume
Living Area
1043 m2
Other indoor space
0 m2
Exterior space attached to the buildinge
21 m2
Volume in cubic meters
4264 m3
Plot Size
7744 m2
Facilities
Mechanische ventilatie
Alarminstallatie
Tv kabel
Rookkanaal
Dakraam
Aan water
Aan rustige weg
Vrij uitzicht
Beschutte ligging
Aan vaarwater
Landelijk gelegen
Baerz & Co Property Brochure

Brochure

Videos

Floor Plans

Villa Friesland Makelaardij

Lange Marktstraat 1
8911 AD Leeuwarden

info@villafriesland.nl
+31 (0)58 - 23 006 23

www.villafriesland.nl

Information / Viewing request

Ellen Schoneveld profile image
Ellen Schoneveld
Real Estate Agent

Buying a Luxury Property in Harlingen

Harlingen offers distinguished buyers a harmonious blend of heritage living, cultural charm, and waterfront elegance. The community values privacy and personal service, with international appeal grounded in authenticity and sophisticated lifestyle opportunities.