DINTELOORD
Galgendijk 3 - 4671 RH
Netherlands

Erwin Schuurbiers profile image
Erwin Schuurbiers
Makelaar / Taxateur
€950,000 k.k.
Living Area
241m2
Plot Size
1640m2
Bedrooms
5

Description

On the quiet, green and water-rich Galgendijk in Dinteloord, where water and nature blend seamlessly, you will find this unique detached residential property with not one, but two house numbers (3 and 3a). Situated in what may well be the most beautiful location in Dinteloord, on the edge of the built-up area and at the end of a cul-de-sac, you will enjoy optimal peace, privacy, and unobstructed views. A place where privacy, space and versatility take center stage, and where living, working and recreation flow effortlessly together.

This charming home is set on a generous plot of no less than 1,640 m² and has a green energy label C. Thanks to the single-level living program, the property is suitable for a wide range of buyers. Inside, you will find a comfortable layout with a spacious living room and a bright conservatory offering beautiful views of the landscaped garden, adjoining a waterway with private mooring docks. In total, there are four bedrooms and the home benefits from extensive insulation and, among other features, air conditioning, contributing to a pleasant indoor climate in all seasons.

The garden forms a true oasis of tranquility and has been carefully designed in Japanese style. Atmospheric seating areas, green sightlines and a harmonious layout create a unique outdoor experience. Here, you can enjoy peaceful views over the water and surrounding nature.

An absolute highlight of this property is the multifunctional and sustainable outbuilding with its own house number (3a), built in 2016 and featuring energy label B. This fully self-contained second residence offers numerous possibilities: from a home office or practice space to guest accommodation, a care home, or even recreational rental.
The outbuilding has recently been used for group sessions and has also been rented out via natuurhuisje.nl. The layout is practical and complete with on the ground floor a spacious living room/group area, a full kitchen and bathroom. On the first floor there is a landing with washing machine and dryer connections, its own central heating system and a second (bed)room equipped with air conditioning.

For lovers of water and watersports, this location is truly a paradise. The plot is directly connected to navigable water and includes six private boat moorings, with the possibility to expand to as many as eleven berths. From your own dock, you can easily sail towards the Volkerak, the Haringvliet and, slightly further, the Grevelingen. The moorings are not only ideal for personal use, but also offer attractive investment opportunities with appealing returns to help cover monthly costs. Six berths are owned and five additional berths can optionally be taken over under lease.

In addition, the property offers ample on-site parking for multiple cars and features a practical enclosed area with double gates, suitable for various storage purposes or for parking a camper, trailer, etc.

In short, a rare combination of comfortable living, business opportunities and recreational enjoyment in a unique waterfront location. A place that feels like a holiday every day!

LAYOUT:
Ground floor:
Hall/entrance in two sections with staircase to the first floor, wardrobe and utility space with HR combi boiler and washing machine/dryer connections;

tiled toilet with washbasin;

living room with air conditioning, staircase cupboard with hatch to the tiled cellar and open access to the conservatory with gas fireplace, skylight and glass façade with garden doors overlooking the garden and waterway;

meter cupboard with 8 circuits, 3 power groups and residual-current devices;

kitchen-diner with an L-shaped fitted kitchen featuring a granite countertop with 1½ sink, built-in induction hob, fridge/freezer combination, combi oven/microwave, electric oven, raised dishwasher and extractor hood, tiled wall finish, tiled floor, ceiling with recessed lighting;

tiled bathroom with bathtub, shower, washbasin and toilet;

master bedroom with air conditioning and wardrobe wall, tiled floor, insulated stud walls for extra comfort, sprayed ceiling.

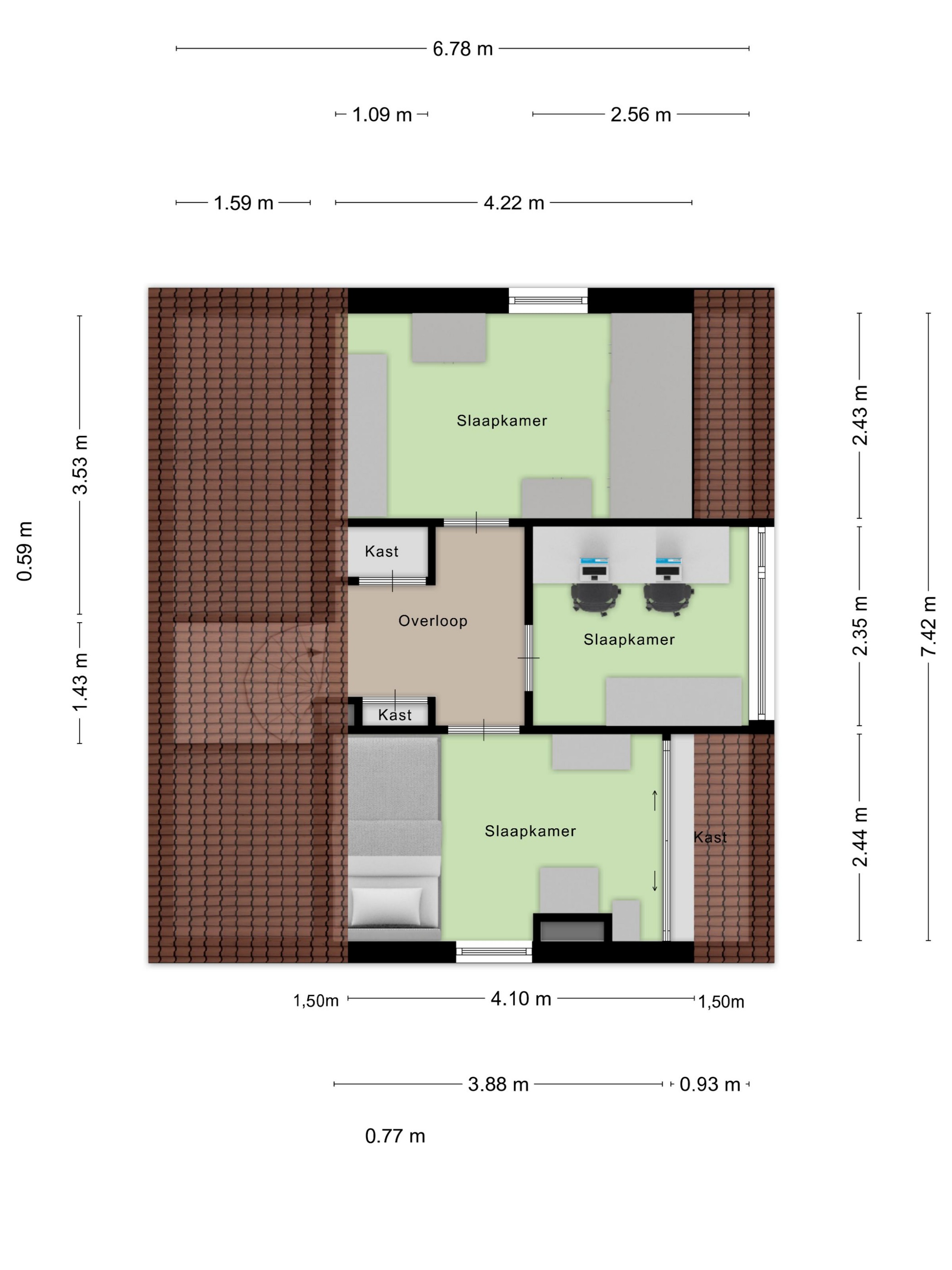
First floor:
Landing with two storage cupboards;

3 bedrooms, the middle bedroom with dormer window overlooking the waterway and the bedrooms on the right with built-in wardrobes.

Outbuildings:
Multifunctional and fully insulated outbuilding from 2016 with full amenities suitable for guest accommodation, B&B, independent office/practice/workspace, etc. Layout as follows:

open space / living room / group area / workspace with garden doors to garden/terrace, underfloor heating, camera system, air conditioning, side door and separate front entrance from the street side, open kitchen with all desired amenities (including gas hob, dishwasher, refrigerator, combi oven/microwave, extractor hood), fixed staircase to the first floor;

complete bathroom with vanity unit, wall-mounted toilet and walk-in shower;

First floor:

landing with 2 storage cupboards with HR combi boiler, sub distribution board and washing machine/dryer connections;

multifunctional open space with sound-reducing subfloor, 4 roof windows, air conditioning, vanity unit, independent thermostat and possibilities for one or more (bed)rooms.

More of this multifunctional outbuilding? Feel free to take a look at www.natuurhuisje.nl
and click on location number 34465.

Garden:
Stylishly landscaped and inspiring surrounding garden with Greenlabel A certification, designed in Japanese style with abundant greenery and multiple terraces, poured concrete paths (with steel mesh), borders, gravel paths, level differences, water bowls, wooden veranda, bird enclosure;

terrace by the water with access to the mooring docks, all equipped with electricity points (with sub meters) allowing individual use/rental (approx. € 1,500 per year per berth). All docks were constructed in 2017 with 9-meter Azobé piles including Azobé hardwood decking. Permit for rental of the berths is available. A second path at the far side of the plot provides independent access to the docks while maintaining privacy;

driveway laid in asphalt with parking for multiple cars;

double gate to side garden with possibilities for outdoor storage, parking camper/caravan, etc.

Construction:
Residence:
Traditionally built, constructed in masonry brick, ground floor in concrete, first floor in wood, pitched roof covered with tiles and flat roof sections with bituminous roofing, exterior walls previously injected.

Outbuilding:
Constructed using FSC-certified European larch wood, oak post frame with Douglas horizontal cladding executed as double-wall construction, concrete ground floor, wooden first floor with sound-reducing material for extra comfort, pitched roof covered with tiles.

Insulation:
The house is equipped with floor, cavity wall (main building via insulated stud walls, extension traditional cavity insulation) and roof insulation, as well as (mostly HR++) insulating glazing.

The outbuilding is equipped with floor, wall and roof insulation as well as HR++ insulating glazing.

Heating and hot water:
The house is equipped with central heating. The HR combi boiler (Remeha, 2010/2011) is located on the ground floor and also provides hot water. The outbuilding also has its own independent HR combi boiler from 2016.

Additional information:
Despite its free location on the edge of the countryside, standard utilities such as sewerage, fiber optic internet and a gas connection are available;

The adjacent road is owned by residents but maintained by the municipality;

Electrical installation expanded, upgraded and fully renewed in 2016;

Dinteloord offers peace, space and a village atmosphere, while all daily amenities are available. The location is centrally positioned relative to major roads, making Rotterdam, Breda and Antwerp reachable within approximately 30–45 minutes. There is also a direct bus connection to Bergen op Zoom and Rotterdam Zuidplein (approx. 30–45 minutes). Beautiful nature areas such as the Dinteloordse Gorzen, the Dinteloord harbour and extensive walking and cycling routes are all within easy reach.

Features

Air conditioning
Transfer of ownership
Asking Price
€ 950.000 k.k.
Status
beschikbaar
Acceptance
in overleg
Construction
Kind of house
Eengezinswoning
Building type
vrijstaande woning
Construction period
1926
Energy rating
C
Roof type
samengesteld dak
Bedrooms
5
Bathrooms
2
Surface Areas And Volume
Living Area
241 m2
Other indoor space
0 m2
Exterior space attached to the buildinge
2 m2
External storage space
23 m2
Volume in cubic meters
894 m3
Plot Size
1640 m2
Facilities
Airconditioning
Dakraam
Glasvezel kabel
Natuurlijke ventilatie
Vrij uitzicht
Aan vaarwater
Baerz & Co Property Brochure

Brochure

Floor Plans

Helmig Makelaardij en Taxatieburo o.z. B.V.

Dorpsstraat 107
4661 HN Halsteren

info@helmigmakelaardij.nl
+31 164-685925

www.helmigmakelaardij.nl

Information / Viewing request

Erwin Schuurbiers profile image
Erwin Schuurbiers
Makelaar / Taxateur

Buying a Luxury Property in Dinteloord

Dinteloord offers a refined community, discreet living, and seamless connectivity. Residents enjoy high-caliber services and tranquil surroundings, making it a compelling destination for international buyers seeking elegance and privacy.