DENEKAMP
Slotsdijk 5 - 7591 GN
Netherlands

Bert Kock profile image
Bert Kock
Real Estate Agent
€875,000 k.k.
Living Area
247m2
Plot Size
1205m2
Bedrooms
6

Description

Zo veel ruimte op zo’n prachtige locatie in het charmante dorp Denekamp, een echte verrassing!
Deze vrijstaande woning is in 2017 volledig gerenoveerd en biedt maar liefst zes royale slaapkamers, met zelfs de mogelijkheid om er nog twee extra te realiseren. Rondom de woning ligt een prachtige, groene tuin die volop privacy en rust biedt.

En dan de locatie, dat maakt het plaatje compleet.
Binnen één minuut fietsen ben je in het bruisende centrum van Denekamp, waar je altijd de gezelligheid kunt opzoeken. Liever wat meer rust? Vanuit dit huis wandel je zó het buitengebied in en geniet je van een prachtige route langs de Dinkel. Ook de uitvalsweg richting Oldenzaal ligt op korte afstand.
Kortom: je woont hier centraal, met volop rust én alle gezelligheid binnen handbereik.

Indeling:
Begane grond: overdekte entree met toegang tot het toilet, de hal en de badkamer. Vanuit de hal bereik je de wasruimte, de berging en de eerste kamer. Deze kamer wordt momenteel gebruikt als salon en is ideaal dankzij de eigen ingang. Vanuit de hal naar de salon zit nog een extra met de toegang naar de kelder.

Via de hal kom je in de eetkamer, een lichte en uitnodigende ruimte dankzij de grote schuifpui. De eetkamer is voorzien van een houtkachel. Hier bevindt zich ook de trapopgang naar de eerste verdieping. Vanuit de eetkamer loop je door naar de woonkamer en de keuken. De woonkamer is ook voorzien van een sfeervolle houtkachel. De dichte keuken heeft een speels effect dank zij de bar aan het keukenblad. De keuken is uitgerust met diverse inbouwapparatuur, waaronder een 4-pits inductiekookplaat met afzuigkap, oven, koelkast, vaatwasser, stoomoven, warmhoudlade en een keukenboiler.

Aansluitend aan de eetkamer ligt een lange gang waaraan vier ruime slaapkamers grenzen. Twee slaapkamers zijn voorzien van een eigen wastafel, de derde slaapkamer heeft wel de aansluiting voor een wastafel. De master bedroom bevindt zich direct naast de badkamer. Deze badkamer is uitgerust met een ligbad, douchecabine, toilet, wastafel met meubel en een designradiator.

De royale achtertuin loopt volledig rondom de woning en biedt volop groen, meerdere fijne terrassen en zelfs een vijver. In de tuin staat bovendien een vrijstaande tuinkamer, welke is voorzien van een toilet. Deze ruimte is ideaal te gebruiken als kantoor, salon of hobbyruimte. De tuinkamer is in 2023 geheel gerenoveerd en geïsoleerd.

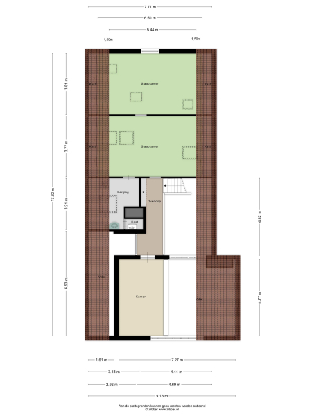
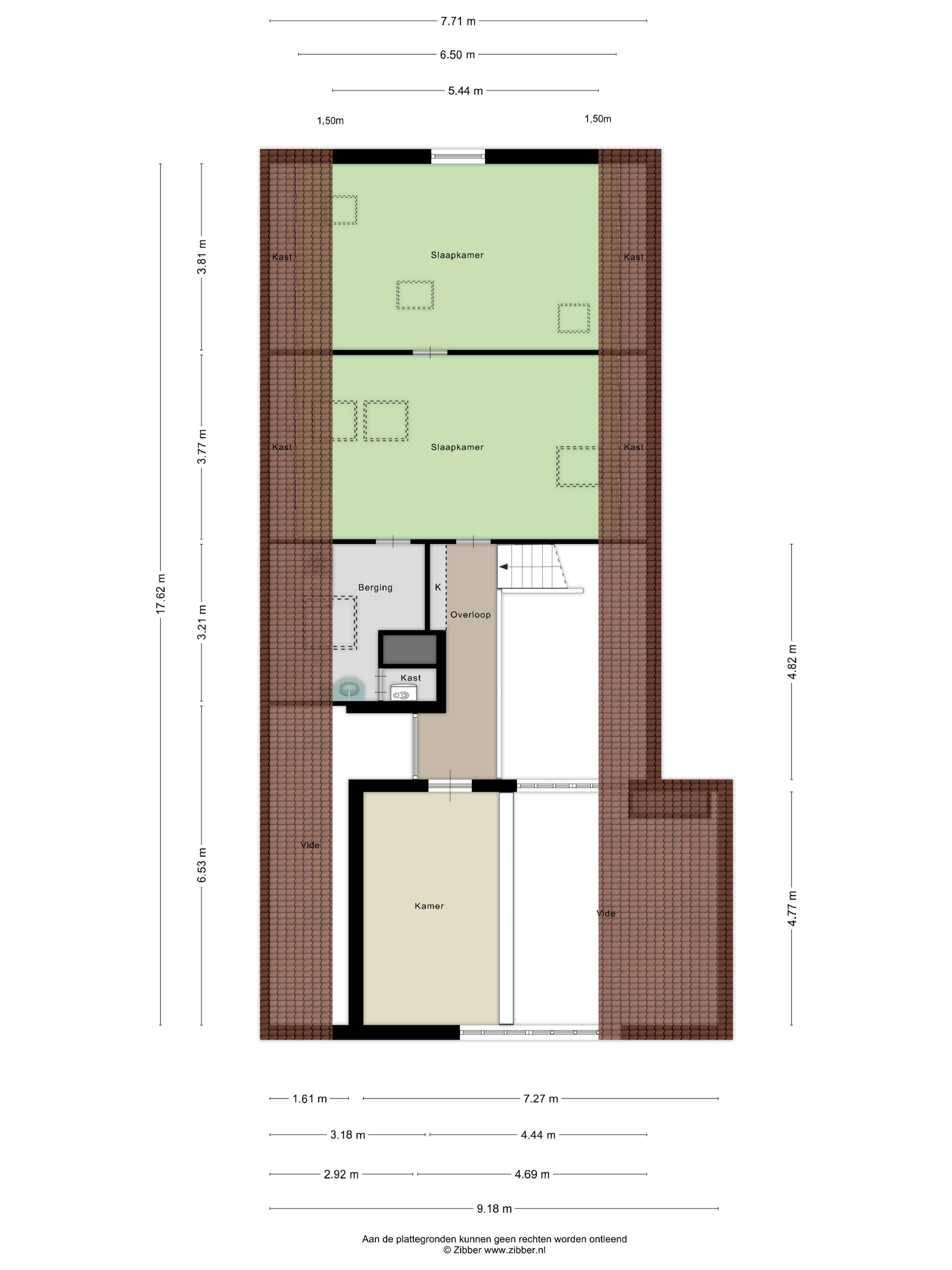
Eerste verdieping: bordes met toegang tot de vide die nu wordt gebruikt als atelier, de berging en de twee hele ruime kamers (30 m²). De berging is voorzien van een wastafel en daar zit tevens de CV-ketel. De ene kamer wordt nu gebruikt als slaapkamer en de ander als extra living. Dit kan uiteraard ook prima gebruikt worden als slaapkamer.

Bijzonderheden:
* Bouwjaar 1966
* Kaveloppervlakte 1205 m² * Woonoppervlakte 247 m²
* Ruime vrijstaande woning;
* Gelegen op een perfect locatie in Denekamp;
* Voorzien van 6 slaapkamers, met mogelijkheid tot 8 slaapkamers;
* Alle ramen vervangen in 2018;
* De schuifpui en de erker zijn in 2023 vervangen;
* Tuin geheel rondom de woning;
* Vrijstaande tuinkamer, ideaal als kantoor, salon of hobbyruimte;
* Voorzien van 10 zonnepanelen (2025);
* Bij koop is een waarborgsom/bankgarantie van 10% van de koopsom vereist!
* Interesse in deze woning? Schakel direct uw aankoopmakelaar in. Uw NVM-aankoopmakelaar komt op voor uw belang en bespaart u tijd, geld en zorgen. Adressen van collega NVM-aankoopmakelaars in Twente vindt u op Funda en op de website van nvmtwente.

Disclaimer
De informatie is door ons met de nodige zorgvuldigheid samengesteld, echter aan de inhoud hiervan kunnen geen rechten worden ontleend. Alle opgegeven maten en oppervlakten zijn indicatief, kunnen afwijken van de werkelijke situatie en zijn uitsluitend bedoeld om een indruk te geven van de indeling. Onzerzijds wordt geen enkele aansprakelijkheid aanvaard voor enige onvolledigheid, onjuistheid of anderszins, dan wel de gevolgen daarvan.

Features

Solar panels
Transfer of ownership
Asking Price
€ 875.000 k.k.
Status
beschikbaar
Acceptance
in overleg
Construction
Kind of house
Eengezinswoning
Building type
vrijstaande woning
Construction period
1966
Energy rating
C
Roof type
zadeldak
Bedrooms
6
Bathrooms
1
Surface Areas And Volume
Living Area
247 m2
Other indoor space
0 m2
Exterior space attached to the buildinge
3 m2
External storage space
30 m2
Volume in cubic meters
918 m3
Plot Size
1205 m2
Facilities
Schuifpui
Zonnepanelen
Natuurlijke ventilatie
Aan bosrand
Aan rustige weg
Vrij uitzicht
In bosrijke omgeving
Baerz & Co Property Brochure

Brochure

Videos

Floor Plans

KockvanBenthem Makelaars

Bisschopstraat 18
7571 CZ Oldenzaal

bk@kvbm.nl
+31 541 52 20 22

www.kvbm.nl

Information / Viewing request

Bert Kock profile image
Bert Kock
Real Estate Agent

Buying a Luxury Property in Denekamp

Denekamp offers a sophisticated blend of privacy, culture, and refined countryside living. Residents enjoy personalized service, strong community ties, and lifestyle opportunities that resonate with international buyers seeking both tranquility and connectivity.