 
	        		 
								This charming, detached villa, built by architect H.W. van Kempen, is beautifully situated in the Duin en Daal villa park. 
The villa exudes a Mediterranean feel with its light blue Louvre shutters, hipped roof and French tiles in the hallway. Set on a sunny plot spanning no less than 4420 m², it is surrounded by beautiful trees. The generously-sized driveway leads to the double carport with round point. There is ample parking space for several cars, as well as an indoor garage. The property has a comfortable and welcoming layout, with rooms that are nicely sized. Most of the rooms open onto the garden through French doors, which is unexpected because of the varied nature of the plot.  The original architecture was reflected in an extension that was built in 2001.
Build year: 1953 Living space: 221 m². Volume: 1112 m³. Plot: 4420 m².
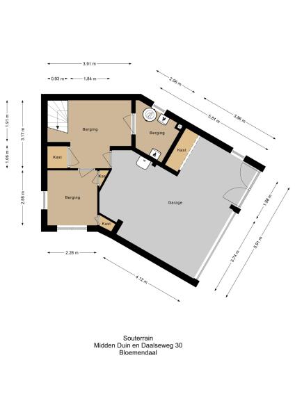
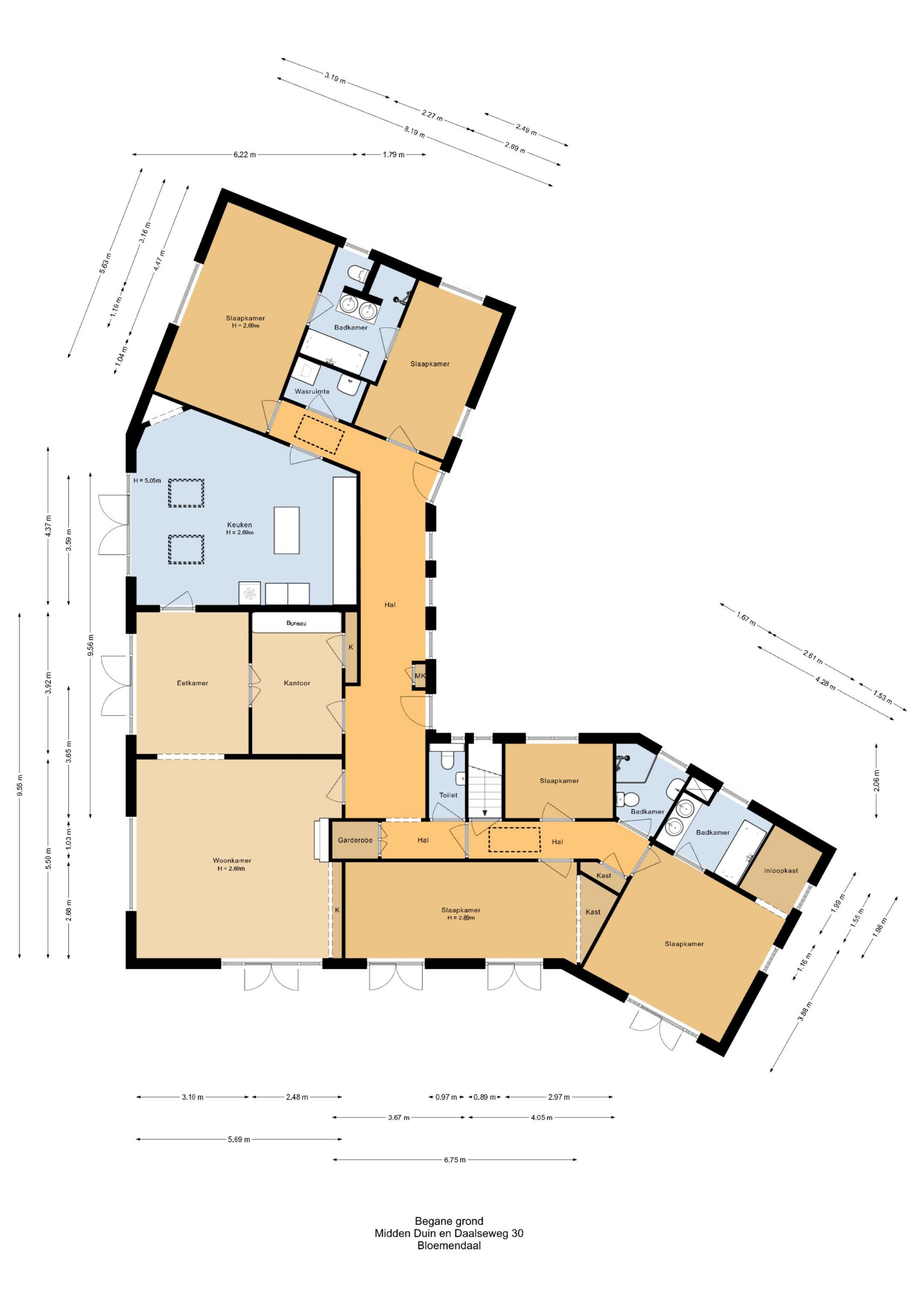
Ground floor:
The house comprises an original section and an extension built in 2001.
Original part: entrance, welcoming hallway with Piet Jonker tiled floor, passageway to separate cloakroom and WC with hand basin. Light and airy living room overlooking the beautiful garden fitted with a fireplace, parquet floor, custom-made bookcase and French doors to the garden. The living room has an open-plan connection to the dining room with a study that adjoins it. The hallway leads to the basement and garage, as well as three bedrooms and a second bathroom. The master bedroom comes with an en suite bathroom with a bathtub, a double vanity unit and underfloor heating, plus walk-in wardrobe and French doors that open onto a balcony and garden.
Attic: large open space.
Cellar: central heating room, wine cellar with pantry and garage with utility sink.
Extension from 2001: a lovely, spacious kitchen with high ceilings, a fireplace, a terrazzo floor with underfloor heating, and French doors that open onto a sunny terrace. The Bulthaup kitchen comes with a kitchen island and a range of appliances, including a Gaggenau steam oven. Deep pantry/utility room with utility sink. Two bedrooms, both of which join a bathroom with WC, bathtub, walk-in shower, double vanity unit and underfloor heating.
Attic: large open space.
•	This beautiful location in Bloemendaal boasts a generously sized plot that is unique to Dune and Daal. 
•	Plot 4420m² of private land.
•	This detached plot is elevated above the road for optimal privacy. 
•	Fitted with an alarm system 
•	Substantial scope for expansion under the zoning plan
•	All facilities within easy reach: the village centres of Bloemendaal and Overveen, Overveen railway station, primary and secondary schools, sports fields
 
				 
                             
                 
                 
                 
                 
                 
                 
                 
                 
                 
                 
                