BERGEN (NH)
Rondelaan 2 - 1861 ED
Netherlands

Romy van de Leygraaf profile image
Romy van de Leygraaf
Real Estate Agent
€1,995,000 k.k.
Living Area
267m2
Plot Size
1310m2
Bedrooms
5

Description

Living in the National Monument Villa “De Reigertoren” with no less than 267 m² of living space, close to the forest, dunes, and the beach!

On a generous plot of 1,310 m², directly at the edge of the forest in Bergen, lies Villa De Reigertoren. This characteristic villa, built in 1918, is a listed National Monument, designed by architect J.B. van Loghem on behalf of the Selleger-Elout couple. The combination of geometric shapes, organic lines, and meticulous detailing makes this a residence of exceptional class.
The most distinctive feature is the heron tower (“Reigertoren”), probably named because heron nests in the forest could be counted from the tower. The first residents, passionate about astronomy, gave stargazing lessons here to local children using a telescope. The tower also contains a stained-glass window referencing the theosophical background of the first owners.

Architect J.B. (Han) van Loghem was an influential representative of the Nieuwe Bouwen movement. Van Loghem was not only an architect, but also an urban planner and furniture designer. In the 1920s and 1930s, he worked on leading projects in North Holland, including villas and residential areas in which light, space, and a sleek design language were central.

Van Loghem is characterized by a combination of idealism and design. He was strongly involved in the garden city movement and social housing, and strove to ensure that modern architecture was not only functional but also human and community-oriented. In his later work, his style evolved into what is now sometimes described as Nieuwe Bouwen (New Building) or Nieuwe Zakelijkheid (New Objectivity): sleek in form, clear in lines, with attention to light, space, and honest use of materials.

Ground floor
The villa is approached via a spacious driveway with room for several cars. At the front, the imposing thatched roof immediately catches the eye. From the entrance hall, you reach both the living room and the kitchen.
The kitchen is equipped with a Bosch combination oven, AEG induction hob, dishwasher, fridge-freezer, recirculation hood, and underfloor heating. French doors open out to a large terrace and the rear garden. Adjacent to the kitchen is the utility room, also with underfloor heating, washing machine and dryer connections, and a shower with toilet and washbasin.
From the kitchen you enter the TV room with solid oak flooring, built-in cupboards, and large windows with historic monument glass. Next to it lies the spacious living room with bay window, wood-burning stove, and original built-in cabinets. This room also features solid oak flooring, and the beamed ceiling gives the living area a wonderfully authentic character. Both the living room, kitchen, and TV room include an original fireplace. From the hallway, you can also access the deep and spacious cellar, ideal for wine storage and more.

First floor
The first floor offers four generous bedrooms, two of which have access to a sunny balcony at the front. At the rear, a charming study—also with a characteristic fireplace—opens onto a balcony at the back of the villa. The fourth bedroom includes a convenient side room and also has access to the rear balcony.
From the large landing you reach the bathroom and a separate toilet with washbasin. The bathroom is bright and well-maintained, featuring a bathtub, walk-in shower, and washbasin with cabinet. Both the bathroom and toilet have underfloor heating.

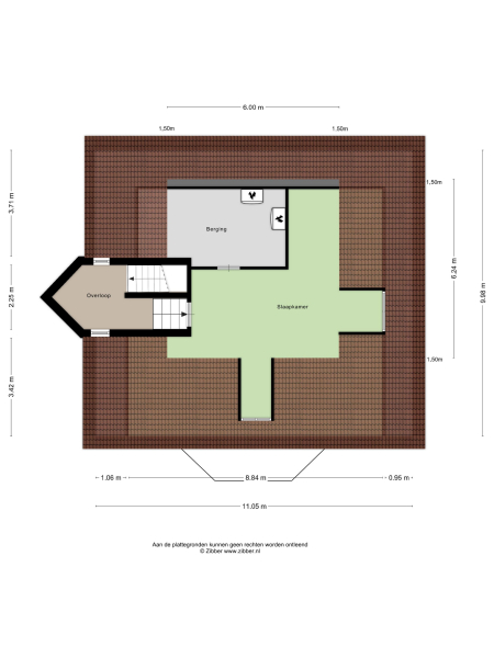
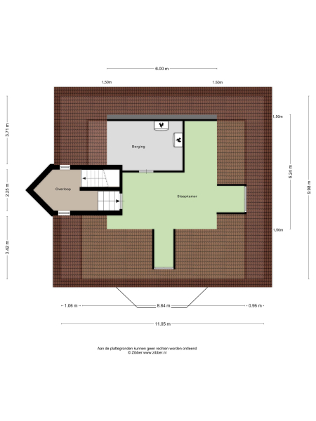
Second floor
The second floor is spacious and full of possibilities. Whether you prefer one large additional bedroom or to create multiple rooms for hobbies, guests, or children—the space is there. This floor also contains a storage room with the hybrid central heating system (installed in 2023).

Third floor / Tower room
The iconic tower room is reached via a staircase inside the “Reigertoren.” From here you enjoy a unique view from the platform and can almost feel the history of the stargazing lessons once given here.
Both the crawl space and the roof have insulation, and most of the windows are fitted with insulating monument glass. A significant advantage of owning a listed monument is that subsidies of up to 38% are available for maintenance of the property’s exterior.

The garden
The villa’s garden is a lush green haven. On the expansive 1,310 m² plot you’ll find mature trees, landscaped borders, and several sunny as well as sheltered terraces, offering a pleasant spot at any time of day. The large driveway provides space for multiple cars and includes a charging station with a separate meter—ideal for both private and business use. A groundwater pump makes garden irrigation easy.
The property also includes a spacious garage/barn with 8 solar panels installed on the roof.

Location
This villa is situated in one of Bergen’s most beautiful areas, directly at the edge of the Bergerbos and close to the Schoorl Dunes. The beach of Bergen aan Zee is just 4 km away.
The charming village center of Bergen offers a wide variety of shops, cafés, and restaurants. Here you can enjoy fine dining, a glass of wine, or a coffee in the sun. The town also hosts the famous annual Art 10-day festival, and Museum Kranenburgh is within walking distance.
Primary and secondary schools are nearby, and within just 10 minutes you can reach Alkmaar, while Amsterdam is only a 45-minute drive away.

Financing & subsidies for national monuments:
Attractive opportunities are available for the purchase, restoration, and further sustainability improvements of this national monument through the National Restoration Fund and other monument organizations. For example, a low-interest Restoration Fund mortgage of up to approximately €300,000 can be used for maintenance work such as repairing the roof, facade, foundation, window frames, stained glass, and stucco. A Sustainable Monuments loan is also available for sustainability measures that fit within the monumental context, such as HR glass or a (hybrid) heat pump. Private owners of national monuments with a residential function can also receive a 38% subsidy on eligible maintenance and restoration costs. For applications above €70,000, an inspection report is required.

Unique features
• National Monument from 1918, designed by J.B. van Loghem, rich in history
• Living area of 267 m²
• Geometric and organic architectural style
• Attractive subsidies (up to 38%) for exterior maintenance of the monument
• Major maintenance on thatched roof (2023)
• Hybrid central heating system (2023)
• Equipped with insulation and 8 solar panels
• Original brick fireplaces and built-in cabinets
• Very spacious plot of 1,310 m²
• Electric car charging station with private meter
• Forest-edge location, close to beach and town center
• Centrally located with all amenities nearby
• Transfer in consultation

Features

Solar panels
Alarm system
Transfer of ownership
Asking Price
€ 1.995.000 k.k.
Status
beschikbaar
Acceptance
in overleg
Construction
Kind of house
Villa
Building type
vrijstaande woning
Construction period
1918
Roof type
mansarde dak
Bedrooms
5
Bathrooms
2
Surface Areas And Volume
Living Area
267 m2
Other indoor space
9 m2
Exterior space attached to the buildinge
27 m2
External storage space
21 m2
Volume in cubic meters
1024 m3
Plot Size
1310 m2
Facilities
Mechanische ventilatie
Alarminstallatie
Tv kabel
Rookkanaal
Dakraam
Glasvezel kabel
Zonnepanelen
Aan bosrand
In centrum
Beschutte ligging
In bosrijke omgeving
Baerz & Co Property Brochure

Brochure

Videos

Floor Plans

Leygraaf Makelaars

Kennemerstraatweg 67
1814 GC Alkmaar

romy@leygraafmakelaars.nl
+31 725114318

www.leygraafmakelaars.nl

Information / Viewing request

Romy van de Leygraaf profile image
Romy van de Leygraaf
Real Estate Agent