AMSTERDAM
Valeriusstraat 255 2 - 1075 GB
Netherlands

Igor Veendrick profile image
Igor Veendrick
Real estate agent
€1,400,000 k.k.
Living Area
150m2
Plot Size
N/A
Bedrooms
3

Description

Valeriusstraat 255-2, 1075 GB Amsterdam
At a fantastic location in the popular Amsterdam Oud-Zuid, we offer this wonderfully bright and spacious double upper house. The beautiful roof terrace provides plenty of privacy, and you can enjoy the sun all day long. Multiple seating areas can be created. The house has three bedrooms, a spacious walk-in closet, and a roof terrace structure that can also be set up as a home office or yoga space. At the front of the house, there is also a lovely balcony.

Location & Accessibility
The apartment is located in one of the most charming spots on Valeriusstraat in Amsterdam Oud-Zuid, between Valeriusplein and Amstelveenseweg. The Vondelpark, as well as the many (neighborhood) shops, lunchrooms, restaurants, and supermarkets, are in the immediate vicinity of this beautiful house. By bike, you can reach the city center and Zuid station in 10 minutes. Various primary and secondary schools and the VU Medical Center are easily and quickly accessible. Additionally, The British School of Amsterdam is just a 2-minute walk from the house. Valeriusstraat is a one-way street. The neighborhood is well connected to public transportation, with taxi, tram, and bus connections at Haarlemmermeerstation within walking distance, and you can reach the A10 Ring Road (S108) by car in 5 minutes. A parking permit for one car can be obtained immediately.

Valeriusstraat
Adriaan Valerius (1575-1626), notary in Veere. Known for his collection of folk songs, still known today as ‘Nederlandtsche Gedencklanck’. (Source: Amsterdam City Atlas)

Layout
Ground Floor
A private entrance and staircase. Through the spacious landing, where there is also a built-in closet, you have access to the stairs leading to the entrance of the house on the second floor.

Second Floor
On the landing, you will find a separate toilet with a sink. From the landing, you have access to the spacious through-living room. At the front of the living room, there is enough space for both a formal sitting area and a cozy TV corner. There is also a beautiful balcony with a view of Valeriusstraat and Amstelveenseweg. At the rear of the house is the dining area, open kitchen with island, and a French balcony. The kitchen is equipped with a 5-burner gas stove, oven, microwave, and a fridge/freezer combination. Due to the abundance of glass and the ceiling height of 3.07 meters, this floor is particularly light and spacious.

Third Floor
Landing. Here you will also find a separate toilet with a sink. At the rear is a well-sized bedroom with two built-in closets and large windows. The bathroom features a spacious bathtub, walk-in shower, wide sink with mirror, and a built-in closet that provides access to the bedroom at the rear of the house. At the front of the house are two bedrooms. One bedroom has space for a king-size bed with a built-in closet, and the other bedroom has a practical and cozy custom-made bunk bed with spacious drawers both under the bed and in the bed’s stairs. These also function as steps to reach the top bed. The bottom bed can be easily removed, leaving a loft bed. Centrally located on this floor, you will also find a very spacious walk-in closet, which can also be set up as a study.

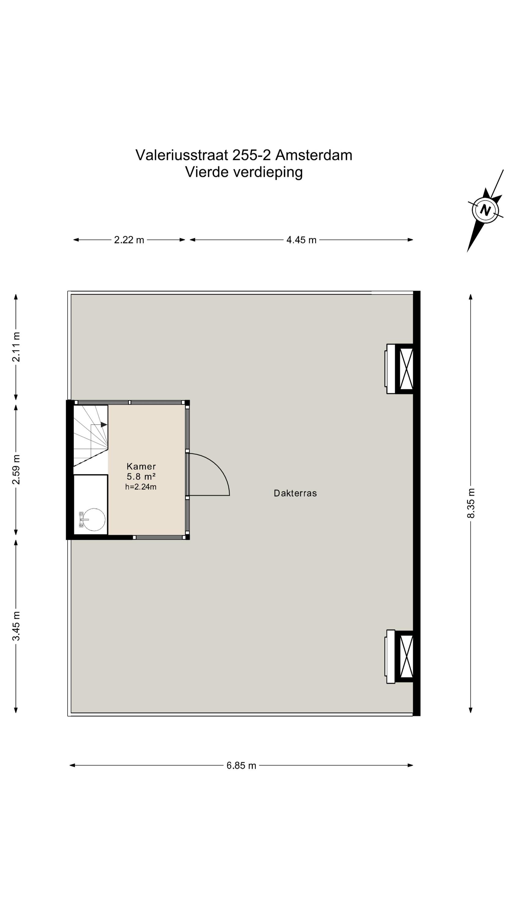
Fourth Floor
Here you get access to the very spacious, cozy, and beautifully finished roof terrace. On this floor, you also have a sink and cooling at your disposal. It is also convenient that the access to the roof house can be closed off, creating a nice space of about 6m². In short, enough space to create a home gym, for example for practicing yoga, or a wonderful home office.

Particulars:
Apartment right of approximately 150m² with balcony (NEN2580 measurement report available)
Unique roof terrace (approx. 50m²) with unobstructed views and lots of privacy
Bright family home with plenty of storage space and high ceilings
Located on freehold land, so no leasehold
Resident parking permit
Original details such as stained glass windows and fireplaces
All windows double glazing
Spacious through-living room (60 m²)
VVE (Homeowners Association) is dormant, but a long-term maintenance plan is available
Private entrance
Lots of storage space
Delivery in consultation

This information has been compiled with due care. However, no liability is accepted for any incompleteness, inaccuracy, or otherwise, or the consequences thereof. All stated sizes and surfaces are indicative. The buyer has a duty to investigate all matters that are important to him or her. The broker is the seller’s advisor regarding this property. We recommend that you engage an expert (NVM) broker to guide you through the purchase process. If you have specific wishes regarding the property, we advise you to make these known to your purchasing broker in good time and to investigate these independently. If you do not engage an expert representative, you consider yourself sufficiently expert according to the law to be able to oversee all matters that are important. NVM conditions apply.

Features

Transfer of ownership
Asking Price
€ 1.400.000 k.k.
Status
verkocht onder voorbehoud
Acceptance
in overleg
Construction
Kind of house
Bovenwoning
Building type
dubbel bovenhuis
Construction period
1914
Energy rating
B
Bedrooms
3
Bathrooms
1
Surface Areas And Volume
Living Area
150 m2
Other indoor space
0 m2
Exterior space attached to the buildinge
52 m2
Volume in cubic meters
573 m3
Facilities
Mechanische ventilatie
Tv kabel
Frans balkon
Aan rustige weg
In woonwijk
Vrij uitzicht
Baerz & Co Property Brochure

Brochure

Videos

Heeren Makelaars

Stadionweg 75
1077 SE Amsterdam

info@heerenmakelaars.nl
+31 204702255

www.heerenmakelaars.nl

Information / Viewing request

Igor Veendrick profile image
Igor Veendrick
Real estate agent

Buying a Luxury Property in Amsterdam

Amsterdam offers a cosmopolitan lifestyle defined by heritage, connectivity, and discreet luxury. Residents benefit from a robust international community, curated services, and vibrant culture. The city’s enduring appeal lies in its blend of history, sophistication, and progressive spirit.