AMSTERDAM
Tweede Helmersstraat 87 H - 1054 CE
Netherlands

Igor Veendrick profile image
Igor Veendrick
Real estate agent
€1,350,000 k.k.
Living Area
124m2
Plot Size
N/A
Bedrooms
4

Description

Tweede Helmersstraat 87 H, 1054 CE Amsterdam

A charming double ground-floor apartment of 124 m² with a spacious garden and distinctive character details. This beautiful home combines authentic charm with modern living comfort. Think of stained glass windows, ornate ceiling decorations, fireplaces, and paneling, perfectly balanced with a contemporary finish. With a generous and bright en-suite living area, open kitchen, four bedrooms, two balconies, and an exceptionally large sunny backyard with a covered terrace, this property offers everything for comfortable and atmospheric living. Situated on freehold land and featuring a practical layout, this is a unique and complete family home.

Accessibility and Location

Tweede Helmersstraat is located in the popular Helmersbuurt in the Oud-West district of Amsterdam. This characteristic neighborhood enjoys a very central location, just west of the city center, and is known for its charming streets, historic buildings, and lively yet relatively ????? character.

The Helmersbuurt offers an attractive living environment with a wide range of amenities nearby. Within walking distance, you will find various shops, supermarkets, and restaurants. Well-known locations such as Leidseplein and Vondelpark are close by, as well as cultural hotspots like the Rijksmuseum and the Van Gogh Museum.

The neighborhood features a mix of young professionals and urban amenities, creating a vibrant yet pleasant residential atmosphere. Despite its central location, the area is experienced as relatively quiet compared to busier streets such as Overtoom or Nassaukade.

In terms of accessibility, the location is excellent. The property is within cycling distance of Amsterdam’s city center and within walking distance of daily amenities. Public transport is widely available, with several tram and bus connections nearby. Major train stations such as Amsterdam Central Station and Amsterdam Zuid are also just a few kilometers away. The property is easily accessible by car as well: the A10 ring road can be reached within minutes, providing quick connections to the rest of the Randstad. Parking is available via a permit system.

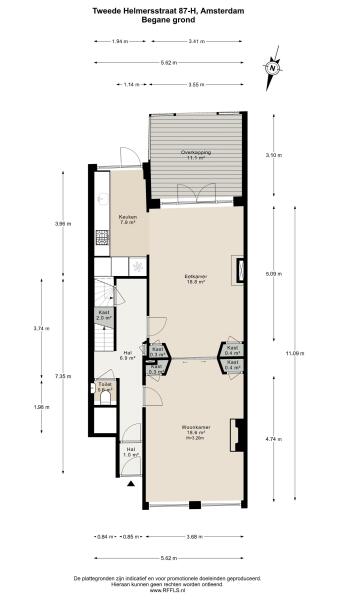
Layout

Ground floor:

Through your private entrance on the ground floor, you enter the property. You arrive in a vestibule, after which the long central hallway provides access to all rooms on this level. The hallway also includes a separate toilet.

At the front is the living room, featuring beautiful built-in cabinets. Large windows with stained glass provide stunning natural light and enhance the authentic atmosphere. The original fireplace forms a stylish centerpiece of the room. Adjacent, separated by sliding doors, is the dining room. Here too, you will find a characteristic fireplace and built-in cabinets. Thanks to the French doors, there is plenty of daylight, and in summer a seamless connection between indoor and outdoor living is created. Both rooms are spacious and can be used either as an open or separate layout.

The open kitchen adjoins the dining room and is slightly elevated, creating a playful and spacious effect. The kitchen is finished in dark oak and equipped with floor-to-ceiling built-in cabinets and appliances, including a double oven, refrigerator, freezer, dishwasher, induction hob with integrated extraction, and a Quooker tap.

Through the dining room, French doors lead to the exceptionally large and, for this location, unique backyard. The garden faces southeast and therefore enjoys plenty of sunlight. Directly adjacent to the house is a covered terrace, ideal for long summer evenings and outdoor dining. The backyard, approximately 50 m² in size, offers ample possibilities for further design and use.

First floor:

Via the staircase in the hallway, you reach the sleeping quarters. Under the stairs, there is a practical built-in storage cupboard. On the landing, you will find a second separate toilet.

At the front are two bedrooms. The first is spacious and features a French balcony. The second room is ideal as a child’s room, office, or study. At the rear are two additional bedrooms, including a generous third bedroom with French doors leading to a balcony. This room has beautiful natural light, an authentic fireplace, and practical built-in cabinets. The fourth room is also perfect as a child’s room, office, or guest room.

The bathroom is spacious and luxuriously finished, featuring a bathtub, a double walk-in shower, and a double washbasin with vanity unit.

Storage:

There is also a storage room in the basement of 7.4 m², which also houses the central heating system.

Key features:
- Apartment right of 124 m² (in accordance with NEN 2580)
- Spacious sunny garden with covered terrace of 61 m² + two balconies
- Double ground-floor apartment
- 4 bedrooms
- Basement storage
- Classic details
- Situated on freehold land
- Small homeowners’ association (VvE) consisting of 3 apartments, service costs: €115 per month
- Transfer date in consultation

This information has been compiled with due care. However, no liability is accepted for any inaccuracies, omissions, or consequences thereof. All stated measurements and surfaces are indicative. Buyers have their own duty to investigate all matters relevant to them. The selling agent represents the seller. We advise engaging a qualified (NVM) real estate agent to assist you during the purchasing process. Should you have specific requirements regarding the property, we recommend making these known in good time and conducting your own investigations. If you do not engage a professional representative, you declare yourself sufficiently knowledgeable to oversee all relevant matters. NVM conditions apply.

Features

Air conditioning
Transfer of ownership
Asking Price
€ 1.350.000 k.k.
Status
beschikbaar
Acceptance
in overleg
Construction
Kind of house
Benedenwoning
Building type
appartement
Bedrooms
4
Bathrooms
1
Surface Areas And Volume
Living Area
124 m2
Other indoor space
7 m2
Exterior space attached to the buildinge
17 m2
Volume in cubic meters
536 m3
Facilities
Mechanische ventilatie
Airconditioning
Natuurlijke ventilatie
Aan rustige weg
Baerz & Co Property Brochure

Brochure

Videos

Video Tweede Helmersstraat 87 H

Heeren Makelaars

Stadionweg 75
1077 SE Amsterdam

info@heerenmakelaars.nl
+31 204702255

www.heerenmakelaars.nl

Information / Viewing request

Igor Veendrick profile image
Igor Veendrick
Real estate agent

Buying a Luxury Property in Amsterdam

Amsterdam offers a cosmopolitan lifestyle defined by heritage, connectivity, and discreet luxury. Residents benefit from a robust international community, curated services, and vibrant culture. The city’s enduring appeal lies in its blend of history, sophistication, and progressive spirit.