AMSTERDAM, NH
Kalverstraat 218 E - 1012 XJ
Netherlands

Niels Eering profile image
Niels Eering
Real Estate Agent
€3,250 p.m.
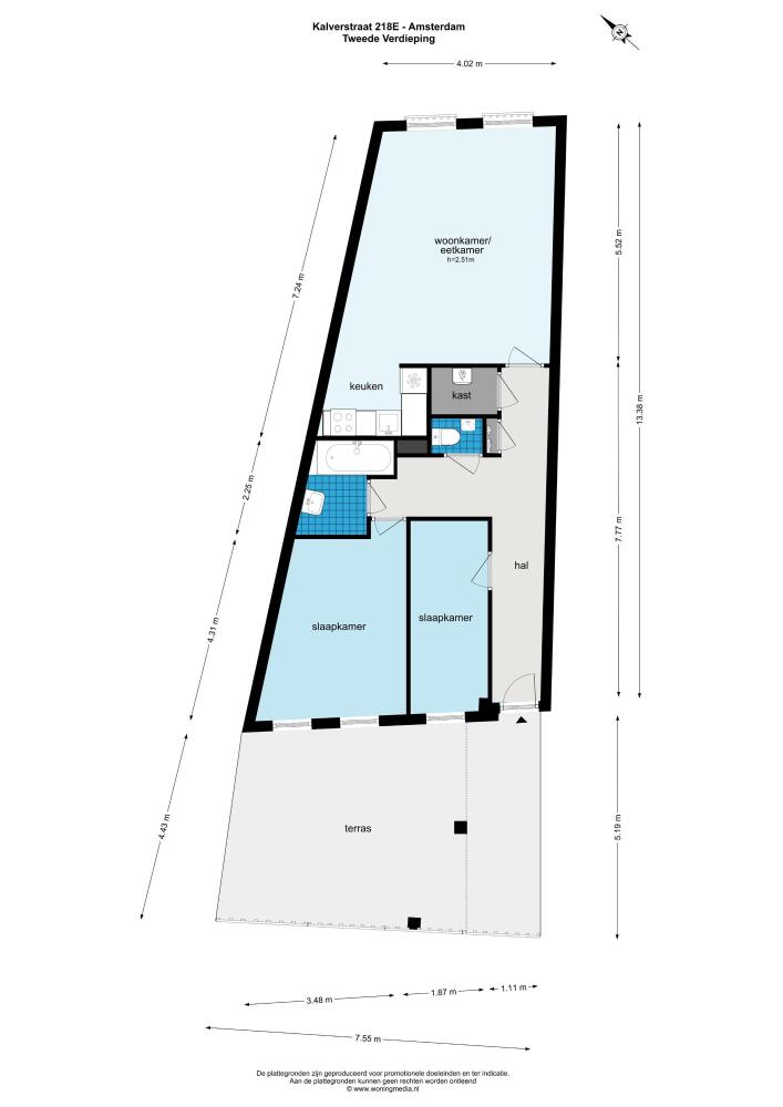
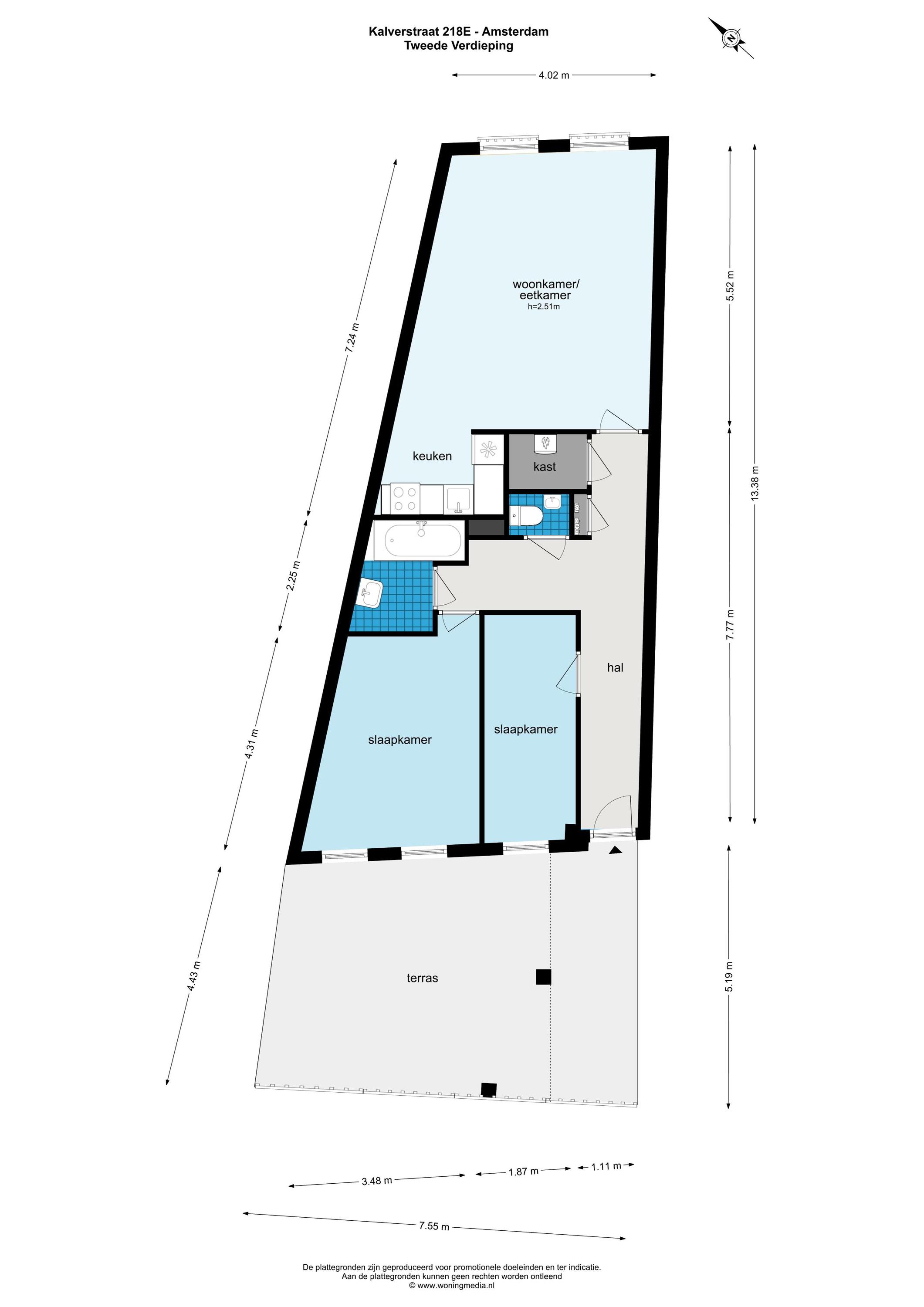
Living Area
72m2
Plot Size
N/A
Bedrooms
2

Description

Apartment Amsterdam City Centre Kalverstraat offers 72 m² of carefully planned living space, set quietly above the energy of the city's iconic shopping street. Enter through the building’s central hall, ascend by lift, and step inside a residence where modern construction and meticulous insulation create rare tranquillity in Amsterdam’s heart.

Two well-sized bedrooms are positioned next to a spacious terrace, lending flexibility for work, guests, or personal retreat. A bright living room, fronted by French doors with classic French balconies, opens to the city’s pulse while oak parquet underfoot grounds the atmosphere in warmth. The open kitchen is equipped with integrated appliances and practical storage, seamlessly connecting to the social space.

The bathroom features a bathtub and modern washbasin, complemented by a separate toilet and utility space with laundry connections. A basement storage room of 7 m² adds convenience, while the building’s lift ensures effortless access. Residents enjoy full insulation—roof, wall, floor, and double glazing—supporting comfortable living with energy class C.

Set between Rokin, Singel, and Heiligeweg, this location places boutiques, cultural venues, supermarkets, and transit within a brief walk. Despite proximity to Amsterdam’s vibrant rhythm, this modern apartment remains a peaceful city sanctuary—a rare blend of privacy, accessibility, and understated design.

Explore Amsterdam with Baerz, Your Trusted Personal Property Finder & Advisor

Navigating Amsterdam’s luxury market calls for deep local intelligence, discretion, and negotiation expertise. Top advisors provide access to private listings, clarify nuanced ownership rules, and pinpoint value in a market where opportunities seldom reach public view. Advisory teams offer rigorous asset vetting and representation, strengthening your position during negotiations, ensuring seamless transactions, and protecting your privacy throughout the process.

Features

Transfer of ownership
Rental Price
€ 3.250 p.m.
Status
beschikbaar
Acceptance
in overleg
Construction
Kind of house
Bovenwoning
Building type
appartement
Construction period
1997
Energy rating
C
Roof type
plat dak
Bedrooms
2
Bathrooms
1
Surface Areas And Volume
Living Area
72 m2
Other indoor space
0 m2
Exterior space attached to the buildinge
34 m2
External storage space
7 m2
Volume in cubic meters
220 m3
Facilities
Mechanische ventilatie
Tv kabel
Lift
Frans balkon
In centrum
Beschutte ligging
Baerz & Co Property Brochure

Brochure

Videos

11 Makelaars - Amsterdam Noord

Mt. Lincolnweg 36 - 617
1033SN Amsterdam

info@11makelaars.nl
+31 20 20 50 208

www.11makelaars.nl

Information / Viewing request

Niels Eering profile image
Niels Eering
Real Estate Agent