AMSTERDAM
Gustav Mahlerlaan 132 - 1082 ME
Netherlands

Steijn Schothorst profile image
Steijn Schothorst
Real Estate Agent
€925,000 k.k.
Living Area
106m2
Plot Size
N/A
Bedrooms
2

Description

Gustav Mahlerlaan 132 1082 ME Amsterdam

Luxurious living on the 8th floor of New Amsterdam on the Zuidas. In the New Amsterdam building, we present a modern apartment of approximately 105 m² with stunning views over the Zuidas. This residence features two spacious bedrooms, a contemporary bathroom, and a generous balcony of approx. 11 m². Here, comfort and luxury truly come together.

New Amsterdam: high-end apartments with exceptional finishes. Residents have access to premium facilities including a private health club (fitness and saunas) and swimming pool. Urban convenience meets luxury living.

Accessibility & Location

Gustav Mahlerlaan is a spacious boulevard on the Zuidas, stretching from De Boelelaan to Beethovenstraat. In addition to the area's business focus, there’s a wide range of restaurants and cafés nearby, including Nela, Happyhappyjoyjoy, and Green Gastrobar. Within five minutes by bike, you can reach the lively Beethovenstraat with trendy boutiques, restaurants, and specialty shops. For true shopping enthusiasts, the Gelderlandplein — a luxurious indoor shopping mall — offers a wide range of stores and options for daily groceries.

For sports, leisure, and relaxation, you’re just around the corner from Beatrixpark and within 10 minutes of the Amsterdamse Bos, ideal for a refreshing walk or outdoor activity. The apartment is extremely well connected: it offers quick access to the A9 and A10 motorways. Just a few minutes’ walk away lies Station Zuid, from where frequent trains, trams, and buses depart. You can reach Schiphol Airport in just six minutes by train and Amsterdam Central Station in under 10 minutes.

Layout

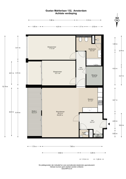
Upon entering the 8th floor, you step into a spacious hallway with a meter cupboard, separate toilet, and room for a wardrobe. From here, you enter the bright and airy living area, where the views immediately catch your eye, creating a sense of openness and calm. At the front, sliding glass doors give access to the generous balcony that spans the full width of the apartment — an ideal spot to relax, enjoy breakfast, or take in the view. The open-plan kitchen is situated at the rear and is equipped with modern built-in appliances, including a fridge, freezer, induction hob, Quooker, and dishwasher.

A second hallway connects the living area to the bedrooms at the front and the bathroom at the rear. Both bedrooms are remarkably spacious and benefit from large windows, enhancing the open and serene atmosphere. The primary bedroom also features a sunroom, adding to the sense of space and comfort. At the back, you’ll find a contemporary bathroom fitted with a vanity unit, bathtub, bidet, and walk-in shower. The hallway also provides access to a large internal storage room, perfect for additional storage needs.

There is an extra storage present in the basement of the complex.

Looking to combine luxury, comfort, and a prime location? Then this apartment on the Zuidas is the perfect match.

Highlights:
- Located on the 8th floor of the New Amsterdam building on the Zuidas
- Access to multiple facilities: Health Club, swimming pool, sauna, gym, service centre, 24/7 concierge service
- Apartment rights: approx. 105 m² (NEN280 measurement report available)
- Generous balcony of approx. 11 m²
- Elevator present
- Energy label A+
- Active and professionally managed HOA (VvE); monthly service charges €559.49 apartment and € 4,72 storage
- Leasehold under AB 2016, perpetually bought off
- Project notary: Maatschap van Buttingha Wichers Notaries in The Hague
- Non-owner-occupancy clause applies
- Delivery in consultation

This information has been compiled with the utmost care. However, we accept no liability for any incompleteness, inaccuracies, or other errors, nor for the consequences thereof. All stated measurements and surface areas are indicative. The buyer has a duty to conduct their own investigation into all matters of importance to them. Regarding this property, the real estate agent acts as the seller's advisor. We recommend that you engage the services of a qualified (NVM) real estate agent to guide you through the purchase process. If you have specific requirements regarding the property, we advise you to communicate these promptly to your purchasing agent and conduct (or have conducted) independent investigations. If you choose not to appoint a qualified representative, you declare by law that you are sufficiently knowledgeable to assess all matters of importance. NVM conditions apply.

Features

Swimming pool
Transfer of ownership
Asking Price
€ 925.000 k.k.
Status
verkocht onder voorbehoud
Acceptance
in overleg
Construction
Kind of house
Bovenwoning
Building type
appartement
Energy rating
A+
Roof type
plat dak
Bedrooms
2
Bathrooms
1
Surface Areas And Volume
Living Area
106 m2
Other indoor space
0 m2
Exterior space attached to the buildinge
11 m2
Volume in cubic meters
377 m3
Facilities
Tv kabel
Zwembad
Lift
Schuifpui
Sauna
Balansventilatie
Aan drukke weg
Baerz & Co Property Brochure

Brochure

Videos

Floor Plans

Heeren Makelaars

Stadionweg 75
1077 SE Amsterdam

info@heerenmakelaars.nl
+31 204702255

www.heerenmakelaars.nl

Information / Viewing request

Steijn Schothorst profile image
Steijn Schothorst
Real Estate Agent

Buying a Luxury Property in Amsterdam

Amsterdam offers a cosmopolitan lifestyle defined by heritage, connectivity, and discreet luxury. Residents benefit from a robust international community, curated services, and vibrant culture. The city’s enduring appeal lies in its blend of history, sophistication, and progressive spirit.