AMSTELVEEN
Texelstraat 132 - 1181 ES
Netherlands

Sander Bovenkerk profile image
Sander Bovenkerk
Real estate agent
€1,995,000 k.k.
Living Area
226m2
Plot Size
N/A
Bedrooms
4

Description

Texelstraat 132, 1181 ES Amstelveen

Situated at Texelstraat 132 in Amstelveen, within the luxurious Forest Hill Luxury Apartments complex, lies this stylish and spacious corner apartment of approximately 226 m², featuring two sunny terraces with a combined area of around 31 m². Located on the second floor, the residence seamlessly combines luxury, comfort, and space in a unique location on the edge of the Amsterdamse Bos and close to Stadshart Amstelveen.

The impressive living room of about 80 m² includes a modern Siematic kitchen. Large sliding doors connect the living area to the terraces, creating a wonderful indoor-outdoor experience. The apartment further offers four spacious bedrooms, two luxurious bathrooms, and benefits from abundant natural light thanks to its corner position. Multiple parking spaces and boxes are available for purchase in the underground parking garage.
An exceptional apartment for those who wish to live spaciously and comfortably in one of Amstelveen’s most desirable locations.

FOREST HILL LUXURY APARTMENTS

Forest Hill Luxury Apartments in Amstelveen offers a unique opportunity to move into a brand-new, high-quality residence immediately. The 25 exclusive apartments combine luxury, comfort, and elegance with a peaceful setting close to all urban amenities.

The spacious homes feature large windows, a Siematic kitchen with Siemens appliances, and luxury sanitary fittings. Residents enjoy modern conveniences such as an underground parking garage with electric charging points and a lift to all residential floors. Inspired by the Japanese nature therapy Shinrin-Yoku (forest bathing), the complex exudes tranquility and harmony with nature.

Thanks to its central location between Stadshart Amstelveen, Gelderlandplein, and the Amsterdamse Bos, residents enjoy the best of both worlds: serene living quality with all urban comforts within easy reach.

Location and Accessibility

Forest Hill Luxury Apartments is located in the popular and green Randwijck district of Amstelveen—one of the region’s most sought-after residential areas. Here, you live peacefully, surrounded by nature, while still enjoying every urban convenience. In the immediate vicinity you’ll find several schools, including the Amity International School and Brede School Roelof Venema, as well as multiple daycare centers, supermarkets, and the Kostverlorenhof shopping center for daily groceries.

For those seeking a touch of luxury, both Stadshart Amstelveen and Gelderlandplein in Amsterdam are just minutes away. These shopping centers are renowned for their wide range of high-end stores, boutiques, delicatessens, and cosy cafés—from De Bijenkorf to Starbucks and Rituals. Culture lovers will appreciate the Cobra Museum, while the vast Amsterdamse Bos just around the corner offers endless walking and cycling routes, sports facilities, theatres, festivals, and charming restaurants.

For relaxation, Spa & Wellness Zuiver by the Bosbaan offers an oasis of calm, while Restaurant Loetje aan de Amstel is the perfect spot to enjoy a delicious meal with views over the water.

The location of the apartment is exceptionally central and easily accessible. By car, you can reach the A9, A10, and A2 motorways within minutes, providing quick access to Amsterdam, Schiphol Airport, and the rest of the Randstad region. Public transport connections are excellent, with bus and tram lines to Amsterdam-Zuid, the Zuidas, and Amstelveen Stadshart just a short walk away. Cyclists can easily reach both the Zuidas business district and Amstelveen city center, making commuting fast and convenient. After a busy day, it’s a pleasure to return to this quiet, green environment where urban living and nature blend effortlessly.

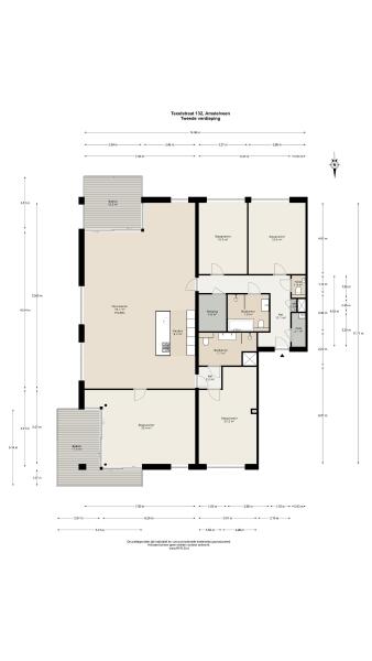
Layout

You can reach the apartment comfortably by lift, entering through a well-maintained central hallway into this beautifully finished home. The entrance leads to a wide corridor opening through double doors into the spacious living room, where natural light, openness, and refined design immediately stand out.

The open-plan kitchen with a large cooking island forms the vibrant heart of the apartment, featuring custom-made wooden cabinetry, a natural stone countertop, and high-end built-in appliances with integrated ventilation. The stylish bar area makes it a perfect space for cooking, entertaining, and enjoying the comfort of home.

Large sliding doors lead to the sunny corner terrace, where you can enjoy open views on two sides and full exposure to the sun throughout the day. The apartment features four generous bedrooms, including a comfortable master bedroom with direct access to the second terrace.

The two luxurious bathrooms are fitted with walk-in showers, modern vanities, toilets, and one includes a bathtub. A practical indoor storage/laundry room completes the layout. Thanks to its corner position, the apartment enjoys exceptional natural light and a serene, spacious atmosphere.

Parking Options: You have the option to purchase one or more parking spaces in the underground garage:
- Asking price for parking space: €62,500 (buyer’s costs) per space
- Asking price for parking box: €82,500 (buyer’s costs) per box

Key Features
- Apartment size: 226 m² (NEN-2580 report available)
- Four bedrooms
- Spacious living area of approx. 80 m²
- Two internal storage rooms
- Two large terraces
- Near the Amsterdamse Bos
- Energy label A++
- Underfloor heating
- HR++ glass
- Parking spaces available for purchase: €62,500 or box for €82,500 (buyer’s costs)
- Service costs (HOA): €396.84 per month
- Available immediately

We have gathered this information with the greatest of possible care. However, we will not accept any liability for any incompleteness, inaccuracy or any other matter nor for the consequences of such. All measurements and surfaces stated are indicative. The purchaser has a duty to investigate any matter that may be of importance to him or her. The estate agent is the adviser to the seller with regard to this residence. We advise you to engage an expert (NVM registered) estate agent who will guide you through the purchasing process. Should you have any specific desires with regard to the residence, we advise you to make these known as soon as possible to your purchasing estate agent and have an independent investigation carried out into such matters. If you do not engage an expert, you will be deemed as considering yourself to be sufficiently expert to be- to oversee all matters that could be important. The NVM conditions apply.

Features

Solar panels
Transfer of ownership
Asking Price
€ 1.995.000 k.k.
Status
beschikbaar
Acceptance
direct
Construction
Kind of house
Tussenverdieping
Building type
appartement
Construction period
2022
Bedrooms
4
Bathrooms
2
Surface Areas And Volume
Living Area
226 m2
Other indoor space
0 m2
Exterior space attached to the buildinge
31 m2
External storage space
5 m2
Volume in cubic meters
715 m3
Facilities
Mechanische ventilatie
Tv kabel
Schuifpui
Glasvezel kabel
Zonnepanelen
Aan bosrand
Aan rustige weg
In woonwijk
Baerz & Co Property Brochure

Brochure

Videos

Floor Plans

Heeren Makelaars

Stadionweg 75
1077 SE Amsterdam

info@heerenmakelaars.nl
+31 204702255

www.heerenmakelaars.nl

Information / Viewing request

Sander Bovenkerk profile image
Sander Bovenkerk
Real estate agent

Buying a Luxury Property in Amstelveen

Amstelveen offers refined residences, a cosmopolitan atmosphere, and exceptional connectivity. The blend of green areas, international amenities, and community sophistication continues to captivate global buyers and families seeking both privacy and vibrant urban connections.