Semi detached house Amstelveen offers an exceptional blend of riverside serenity and timeless design. This elegant, semi detached residence spans approximately 309m² and is set on a generous 1,930m² plot, positioned to offer a rare sense of privacy and connection to the Amstel. From the moment of arrival, a sense of calm sets the tone, with thoughtful landscaping and a wrought iron gate guiding you to the garage and home.
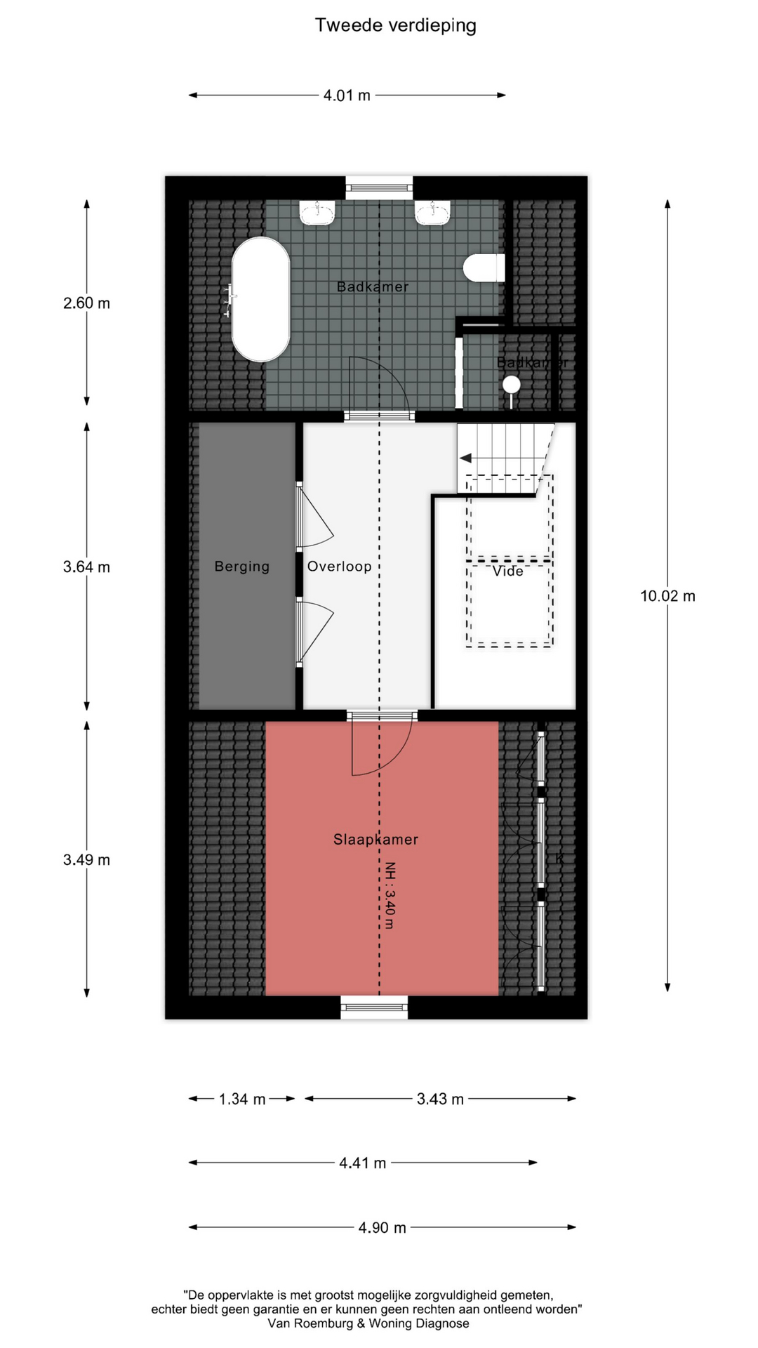
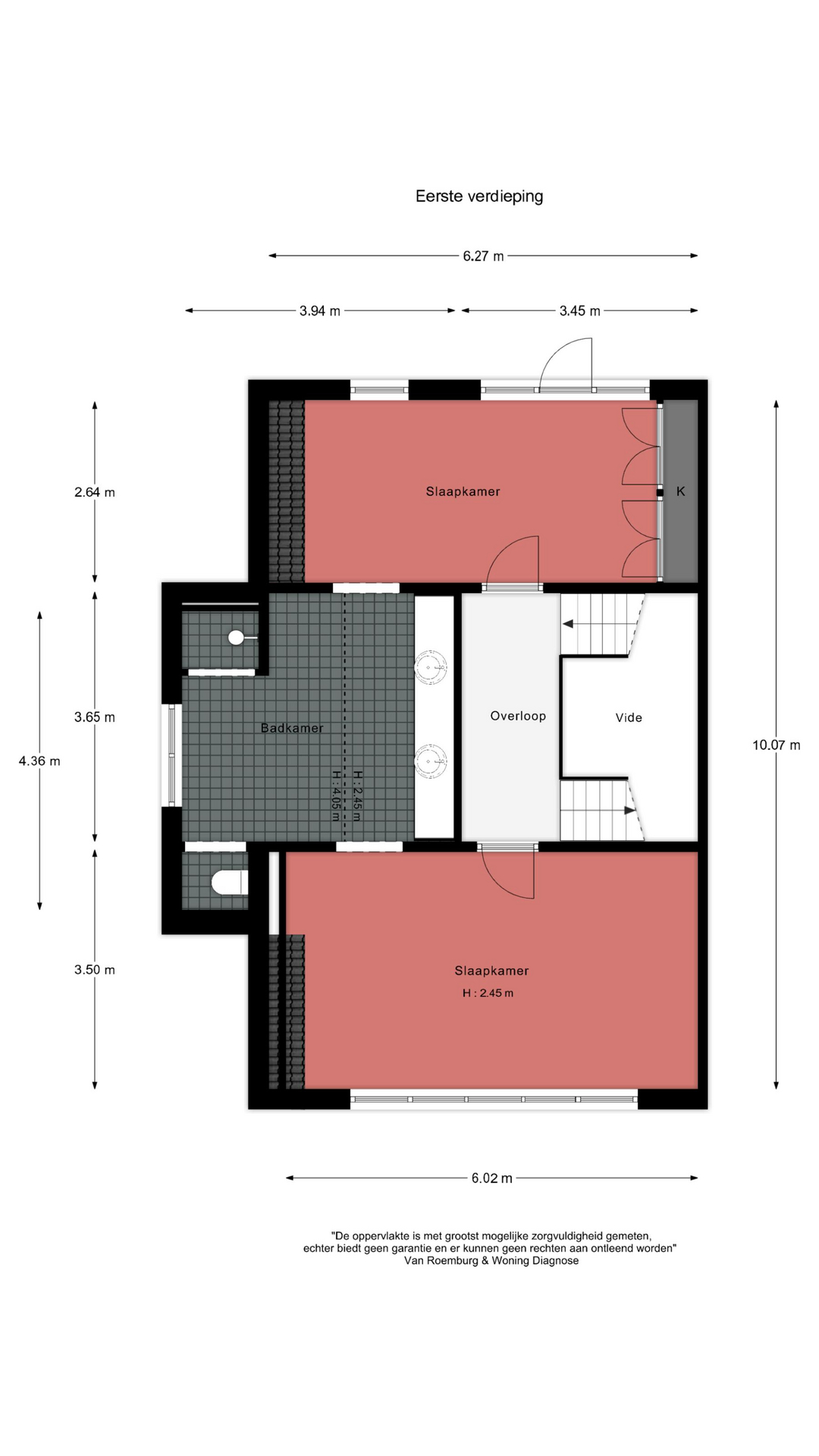
Inside, the house is defined by refined heritage, from stained glass windows originating from the Peace Palace to robust wooden floors reclaimed from historic barracks. Each of the four bedrooms and three bathrooms delivers considered comfort, illuminated by natural light and garden or river views.
Distinctive features include four open fireplaces, handmade oak doors, and a thatched, insulated roof. The semi detached house Amstelveen invites versatile living, with space for family, flexible work arrangements, or hospitality. Outside, the vast garden and terraces offer rare privacy, with direct access to a private mooring on the Amstel. This is a home where tranquility, architectural detail, and access to both city amenities and nature converge with confidence.