'S-HERTOGENBOSCH
Kruisstraat 16 - 5211 DV
Netherlands

€1,650,000
Living Area
350m2
Plot Size
171m2
Bedrooms
4

Description

Large shop/residential home that pays for itself.

In Uilenburg, the coziest neighborhood in the center of 's-Hertogenbosch, you will find perhaps the most unique townhouse in the city. Not only because of its size, but above all because of the atmosphere and the possibilities. It is a residential and commercial property where both functions have their own separate entrance. This makes renting out the shop, with a wonderful rental yield, very attractive indeed. In fact, this tenant will soon be paying your mortgage.

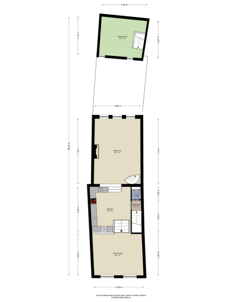
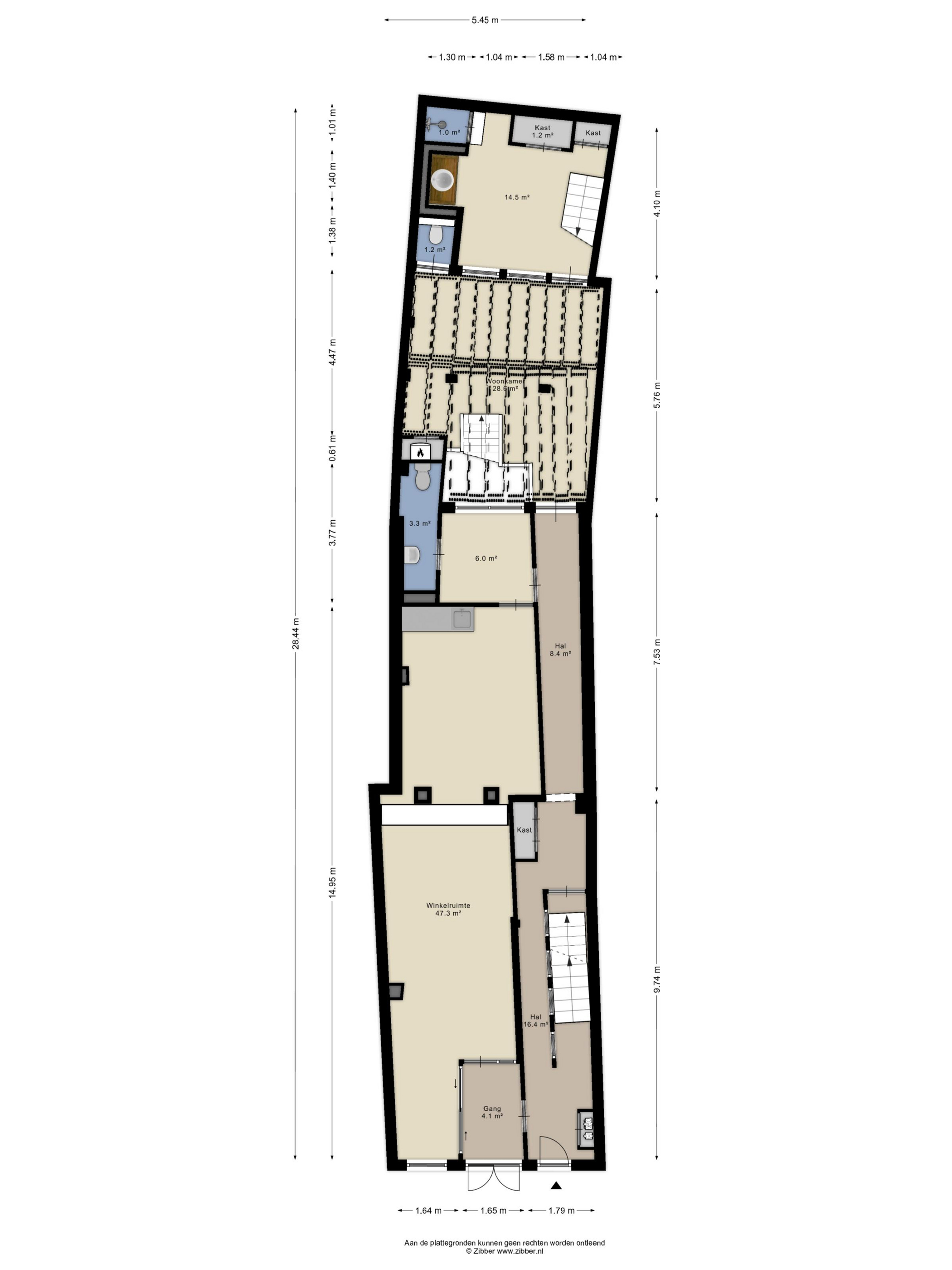
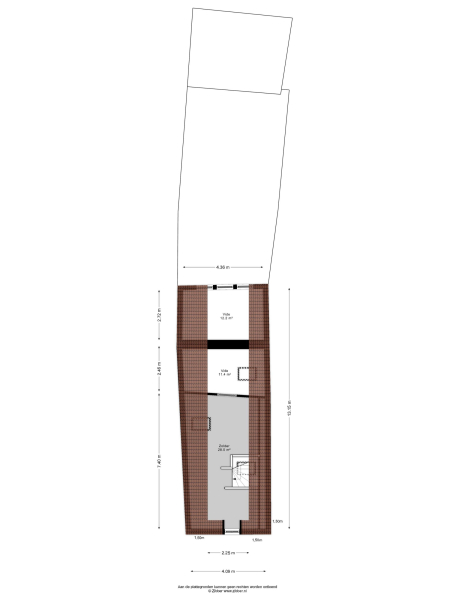
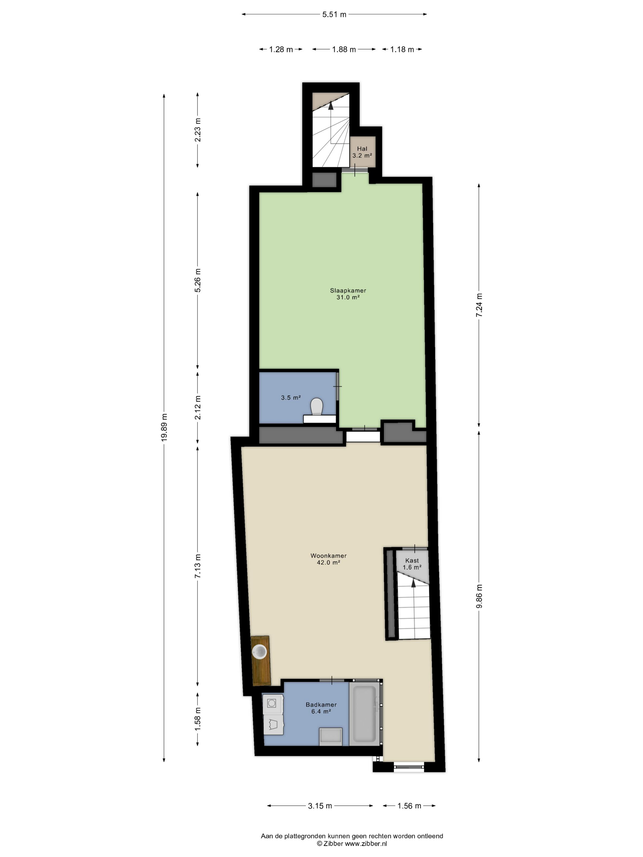
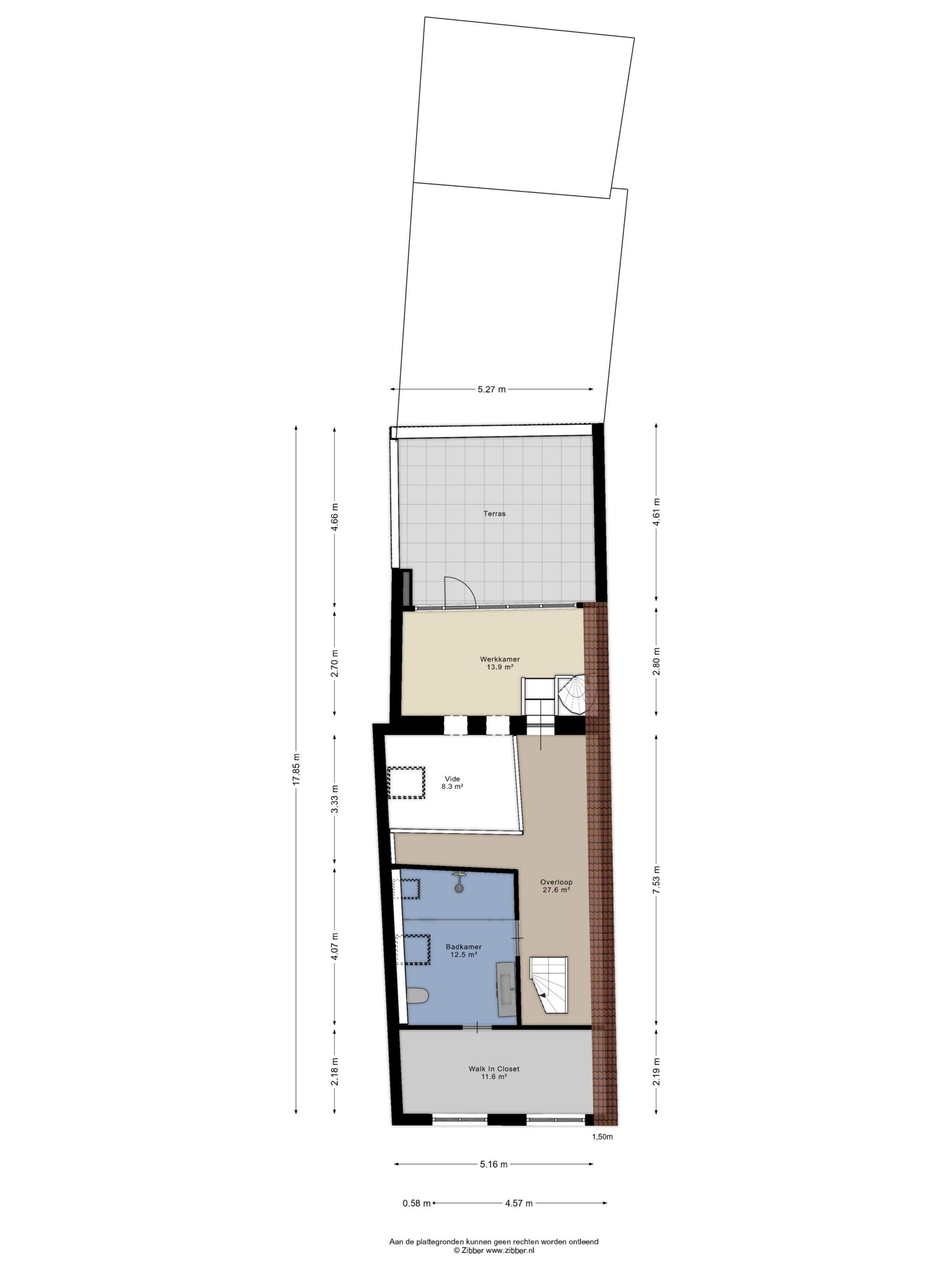
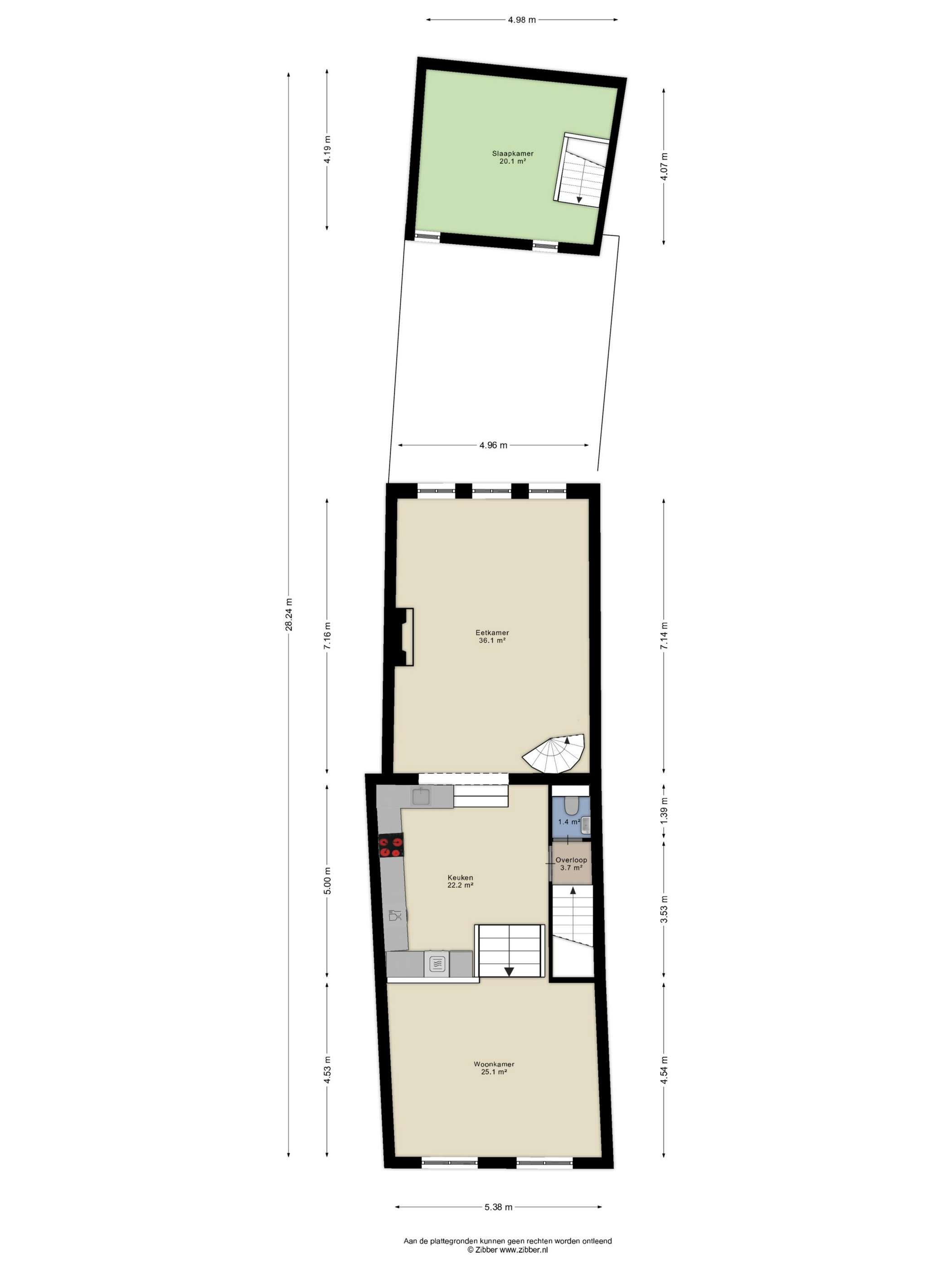
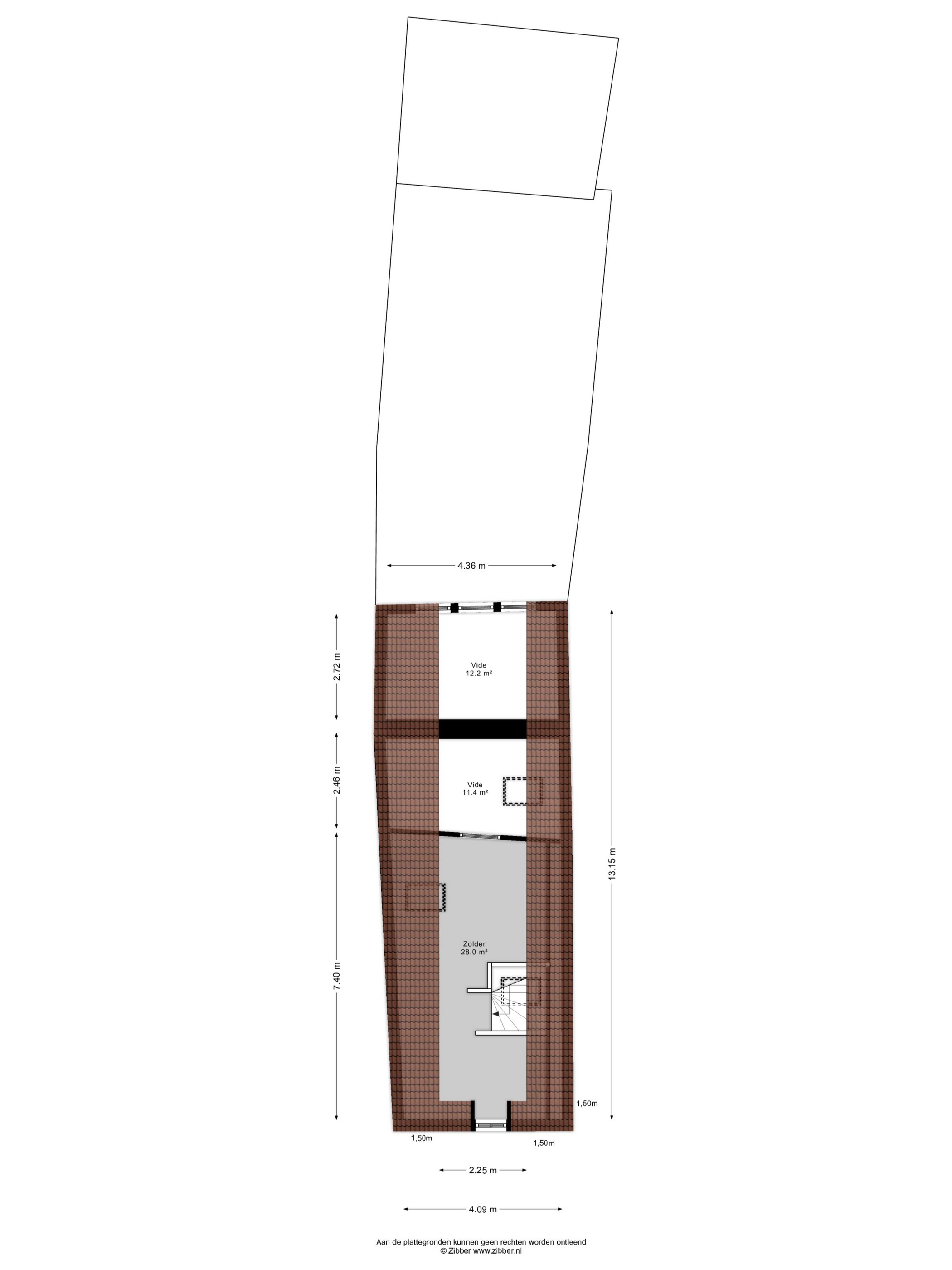
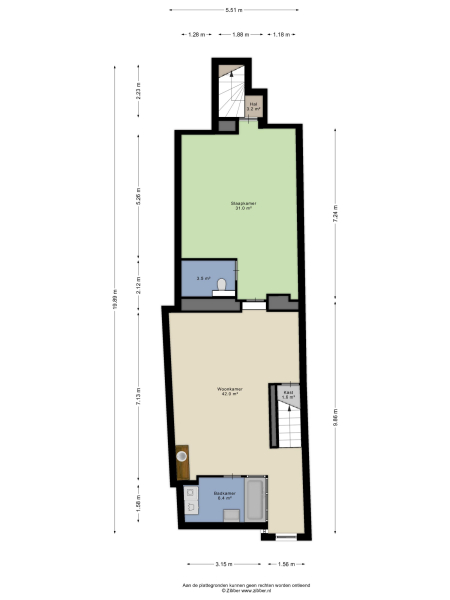
The property features a large, barrel-vaulted cellar, suitable for children or a B&B, for example; an "Ibiza"-style covered courtyard; a rear house; and a very spacious upper house with a roof terrace facing the afternoon and evening sun.

This is the home where you can live with a large family. This is also the home where you live affordably yourself thanks to the rental income from the shop. And this is the home for anyone who has always wanted to start a B&B. But above all, this is the home that embraces you in the nicest part of the city center.

It is a large and surprising house. You will only get a good idea of ??this during a tour. So call soon to make an appointment: (073) 612 22 25

Features

Transfer of ownership
Asking Price
€ 1.650.000
Status
beschikbaar
Acceptance
in overleg
Construction
Kind of house
Herenhuis
Building type
tussenwoning
Construction period
1606
Roof type
zadeldak
Bedrooms
4
Bathrooms
3
Surface Areas And Volume
Living Area
350 m2
Other indoor space
0 m2
Exterior space attached to the buildinge
22 m2
Volume in cubic meters
1461 m3
Plot Size
171 m2
Facilities
Mechanische ventilatie
In centrum
Baerz & Co Property Brochure

Brochure

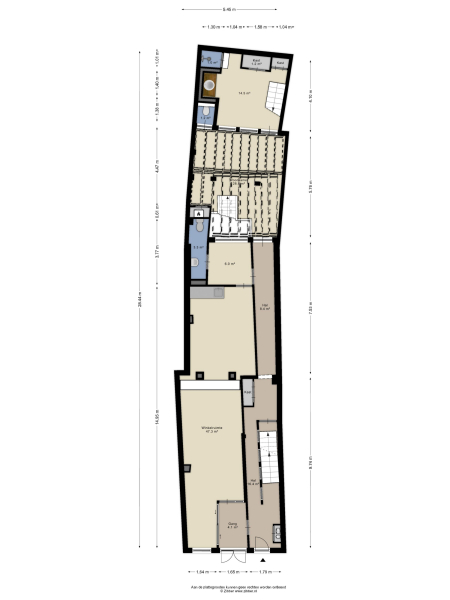
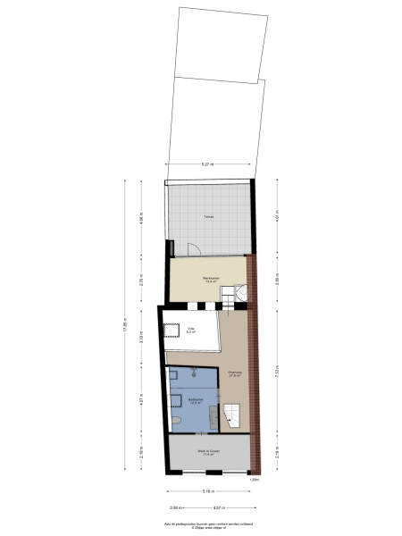
Floor Plans

De Huyzerij Makelaardij

Kruisstraat 2
5211 DV 's-Hertogenbosch

info@dehuyzerij.nl
+31 736122225

www.dehuyzerij.nl

Information / Viewing request

Eric Tiebosch profile image
Eric Tiebosch
Owner / Real Estate Agent

Buying a Luxury Property in 's-Hertogenbosch

's-Hertogenbosch offers a refined blend of history, culture, and contemporary living, attracting a globally minded community who value privacy, aesthetics, and seamless services within a vibrant, authentic Dutch environment.