WOERDENSE VERLAAT
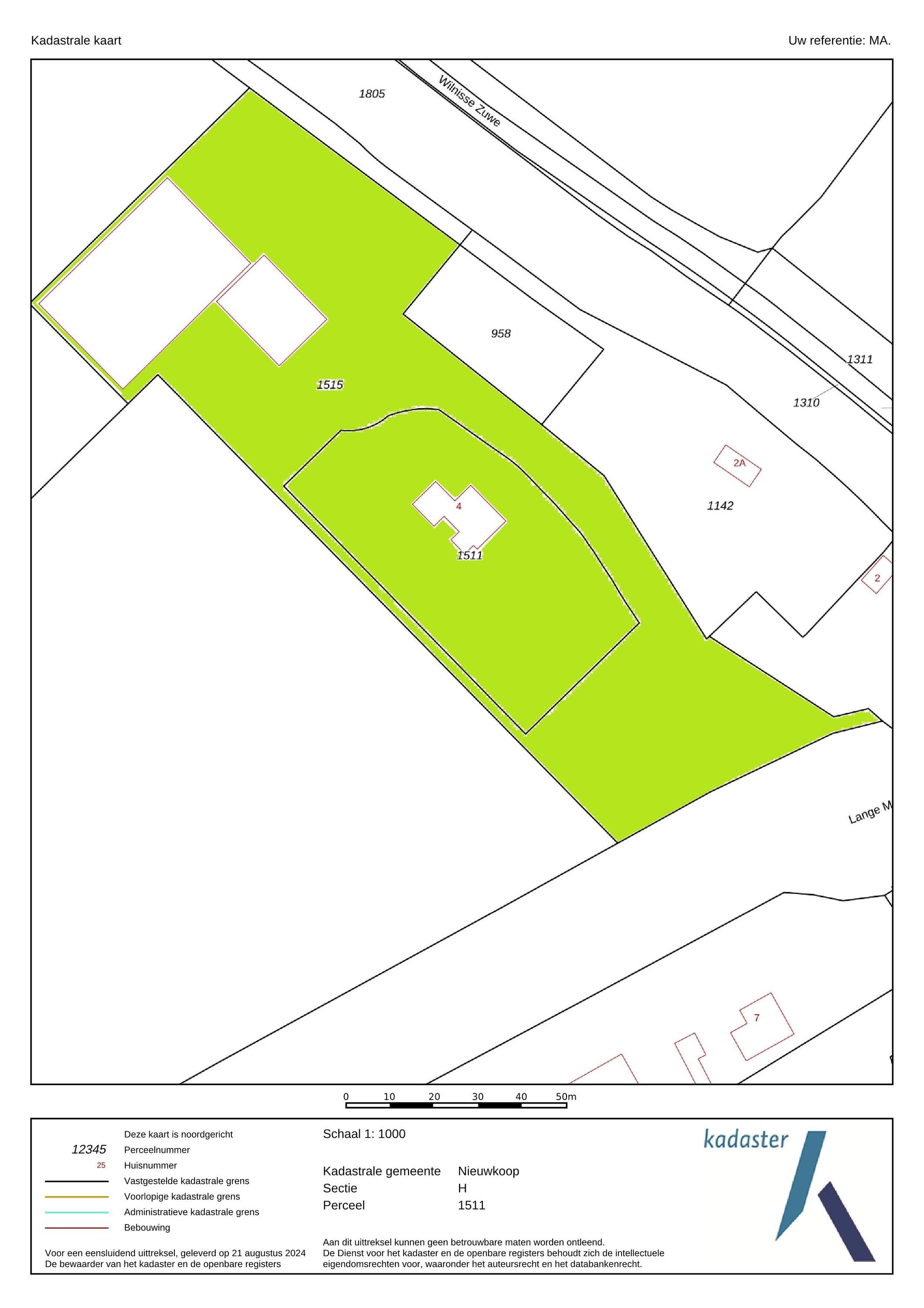
Lange Meentweg 4 - 3652 LB
Die Niederlande

John Korver profile image
John Korver
Real estate agent
€1,965,000 k.k.
Wohnbereich
227m2
Grundstücksgröße
46341m2
Schlafzimmer
4

Beschreibung

Discover the ultimate combination of luxury, comfort, and tranquility in this detached home, surrounded by greenery and freedom. Enter through the electric gate and the stately, long driveway, where you are welcomed by a beautifully landscaped and impeccably maintained garden, and arrive at this spacious, detached villa. Here, you can enjoy your own oasis of peace every day, with an idyllic location by the water and an unparalleled unobstructed view.

This stunning detached property not only offers peace and space but is also in a perfect location. While you enjoy the serene, rural surroundings, you are within a short distance of the lively town of Breukelen, where you can use the train station for quick connections to the four major cities and is comfortably close to Schiphol Airport. With Utrecht and Amsterdam within easy reach via the A2, you experience the best of both worlds: the tranquility of the countryside and the convenience of the city.

The layout of the property is as follows:

GROUND FLOOR You enter the home through the beautiful green and inviting entrance. The first thing you notice is the impressive hall with a stylish wooden staircase leading to the light-filled gallery. From this central hall, you have access to the guest toilet, the cloakroom, the upper floor, the living room, and the kitchen. The home exudes atmosphere and luxury. In the spacious, bright living room, the wood stove and the conservatory with French doors to the garden create a warm and cozy ambiance. The modern, luxurious kitchen is a place where cooking and gathering seamlessly go hand in hand. With a granite countertop, a stylish bar, induction cooktop, dishwasher, oven, refrigerator, and freezer, this kitchen is fully equipped. The ground floor features a hardstone floor with underfloor heating.

Directly from the luxury kitchen, you step into the practical utility room. Here you find a second toilet and the connection for the washing machine. Additionally, the utility room has an external door for direct access to the garden and a door to the adjoining guest accommodation, making this space ideal as a connecting point between the main house and the guest quarters. The attached guest accommodation, with its own entrance, can be used in multiple ways. It includes a spacious living room with a kitchen, French doors to the terrace, a large bedroom, and an en-suite bathroom. The bathroom is equipped with a sink, toilet, and shower cabin. Your guests will feel completely at home here, with all the privacy they could wish for.

FIRST FLOOR The stylish wooden staircase in the central hall leads to the first floor, where three spacious bedrooms and a luxurious bathroom await. The bathroom adjacent to the master bedroom is a true relaxation area with a generous shower cabin with a rain shower, double sinks, illuminated mirror cabinets, a floating toilet, and plenty of storage space. The bathroom is also accessible from the landing. The master bedroom features built-in wardrobes, and the entire floor is covered with oak flooring. The technical room is also on this floor, housing the central heating system. The Heat Recovery Ventilation system in the attic ensures a pleasant temperature in the house throughout the year.

GARDEN Behind the house is a vast area where several cars can be parked effortlessly. Here you will also find an impressive shed of no less than 294 m² and a beautiful greenhouse of 1,093 m², perfect for gardening enthusiasts and for recreational space. The shed is equipped with a large overhead door on both the front and rear sides and also has a convenient walk-in door. Inside, you will find a practical office space and a toilet. The shed is not only spacious and functional but also sustainably equipped. Thanks to an efficient pellet stove, the space stays comfortably warm, while a rainwater storage system provides an eco-friendly water source. The roof is equipped with no less than 68 solar panels, making the shed nearly energy self-sufficient. These smart additions make the shed ideal not only for storage or workspace but also future-proof and environmentally friendly. From the shed, you can walk directly into the greenhouse, a paradise for anyone with green fingers. Here you can grow your own vegetables and fruits, such as juicy tomatoes or delicious grapes. A unique opportunity to realize your dream of your own nursery, with all the space and possibilities you could wish for.

Behind the shed extends an expansive grassy field of over 30,000 m², ideal for nature and space lovers. Keeping animals such as horses, sheep, goats, or chickens is no problem here. The garden around the house is a true masterpiece of greenery and tranquility. With beautifully maintained (fruit) trees, shrubs, blooming plants, and an abundance of greenery, this garden offers an idyllic retreat for relaxation and experiencing nature. Additionally, next to the dike is a captivating natural garden where you can enjoy wildflowers and the beauty of nature in its purest form.

Enjoy the peace, space, luxury, and complete privacy of this dream home on your own estate, where everything is meticulously taken care of. A unique opportunity for those looking for the perfect retreat.

SPECIAL FEATURES

+Detached villa with second living unit
+Quietly located near Mijdrecht, Breukelen, Woerden, Nieuwkoop, and Vinkeveen
+By the water
+Energy-efficient with Heat Recovery Ventilation (HRV), heat pump (2019), and 68 solar panels
+Ample parking on the property, extensive paving
+Spacious, well-maintained shed of 294 m²
+Own greenhouse of 1,093 m²
+68 solar panels
+Rainwater storage

Woerdense Verlaat is a charming and idyllic village located in the Green Heart of the Netherlands. Surrounded by expansive polders, winding waterways, and picturesque nature, it exudes peace and rural charm. The village lies amidst vast vistas and offers an oasis of silence, where nature takes center stage. With the four major cities within reach, you live wonderfully freely but still close to everything.

Woerdense Verlaat is particularly popular with water sports enthusiasts and nature lovers due to its proximity to the Nieuwkoopse Plassen and the surrounding waterways. Here you can enjoy sailing, walking, or cycling along the dikes and green meadows. The mix of historical farms, charming houses, and beautiful nature makes Woerdense Verlaat a hidden gem, where time seems to stand still and life flows in harmony with nature.

Entdecken Sie Woerdense Verlaat mit Baerz, Ihrem vertrauenswürdigen persönlichen Immobilienfinder und Berater

Lokale Marktkenntnisse und Zugang zu diskreten Angeboten machen erfahrene Berater unersetzlich. Experten verschaffen Zugang zu Immobilien, die nur selten öffentlich erscheinen. Ihr Know-how in Bezug auf Transaktionsdetails, Renovierungspotenzial und Denkmalschutz ermöglicht die optimale Auswahl, erfolgreiche Verhandlungen und höchste Diskretion in jeder Phase.

Besondere Merkmale

Solarmodule

Merkmale

Eigentumsübertragung
Verkaufspreis
€ 1.965.000 k.k.
Status
beschikbaar
Annahme
in overleg
Bau
Art des Hauses
Eengezinswoning
Gebäudetyp
vrijstaande woning
Bauzeitraum
2001
Energieausweis
A
Dachtyp
zadeldak
Schlafzimmer
4
Badezimmer
2
Flächen und Volumen
Wohnbereich
227 m2
Andere Innenräume
11 m2
Externer Lagerraum
1387 m2
Volumen in Kubikmetern
863 m3
Grundstücksgröße
46341 m2
Einrichtungen
Mechanische ventilatie
Rookkanaal
Zonnepanelen
Balansventilatie
Natuurlijke ventilatie
Aan water
Vrij uitzicht
Beschutte ligging
Buiten bebouwde kom
Aan vaarwater
Landelijk gelegen
Baerz & Co Property Brochure

Broschüre

Videos

Grundrisse

Korver makelaars

Stationsweg 12
3641RG Mijdrecht

welkom@korvermakelaars.nl
+31 297 25 04 21

www.korvermakelaars.nl

Information / Besichtigungsanfrage

John Korver profile image
John Korver
Real estate agent