VOORHOUT
Jacoba Van Beierenweg 136 a - 2215 KX
Die Niederlande

Rick Broekhof profile image
Rick Broekhof
Real estate agent
€1,175,000 k.k.
Wohnbereich
422m2
Grundstücksgröße
726m2
Schlafzimmer
5

Beschreibung

Come home to a large villa with endless possibilities, a place where space, tranquility, nature, and unobstructed views come together.
• 422m² of living space
• Complete privacy and freedom
• With long driveway and private parking spaces
• Double occupancy possible
• Five spacious bedrooms

Built in 1975, living area 422m², plot area 726m², volume 1387m³, storage room 7m²

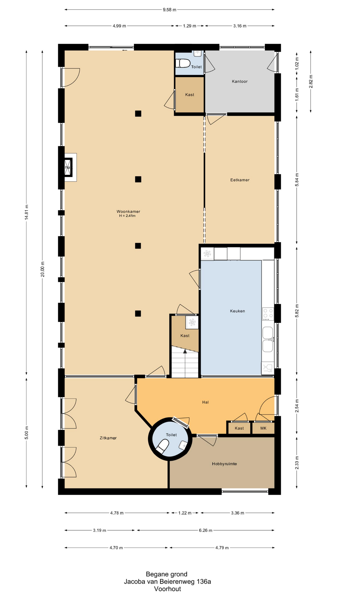
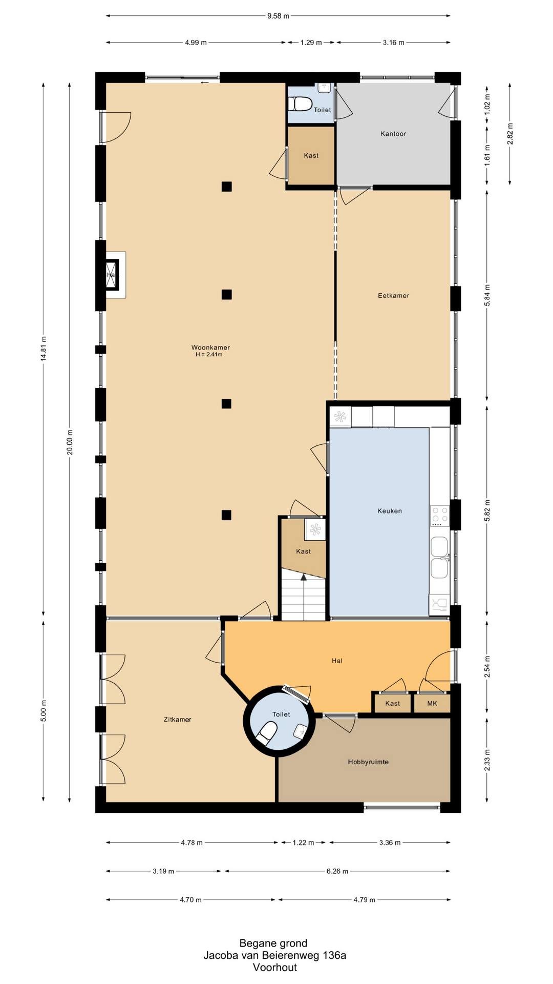
Ground floor;
Upon entering through the spacious entrance hall with cloakroom, toilet, and built-in cupboards, you enter the spacious living room with fireplace and several sitting areas.
Thanks to the large windows, you can enjoy plenty of natural light and a beautiful view.
Adjacent is a separate hobby room and a TV room with a view of the garden. The spacious kitchen is equipped with all necessary appliances. From the kitchen, you have a view of both the courtyard and the meadows.

There is also a separate dining room. At the front and rear of the house are spaces that are ideal for a home office or practice, each with its own entrance. There is also a second toilet here.
The ground floor is finished with attractive parquet flooring and authentic abbey tiles.

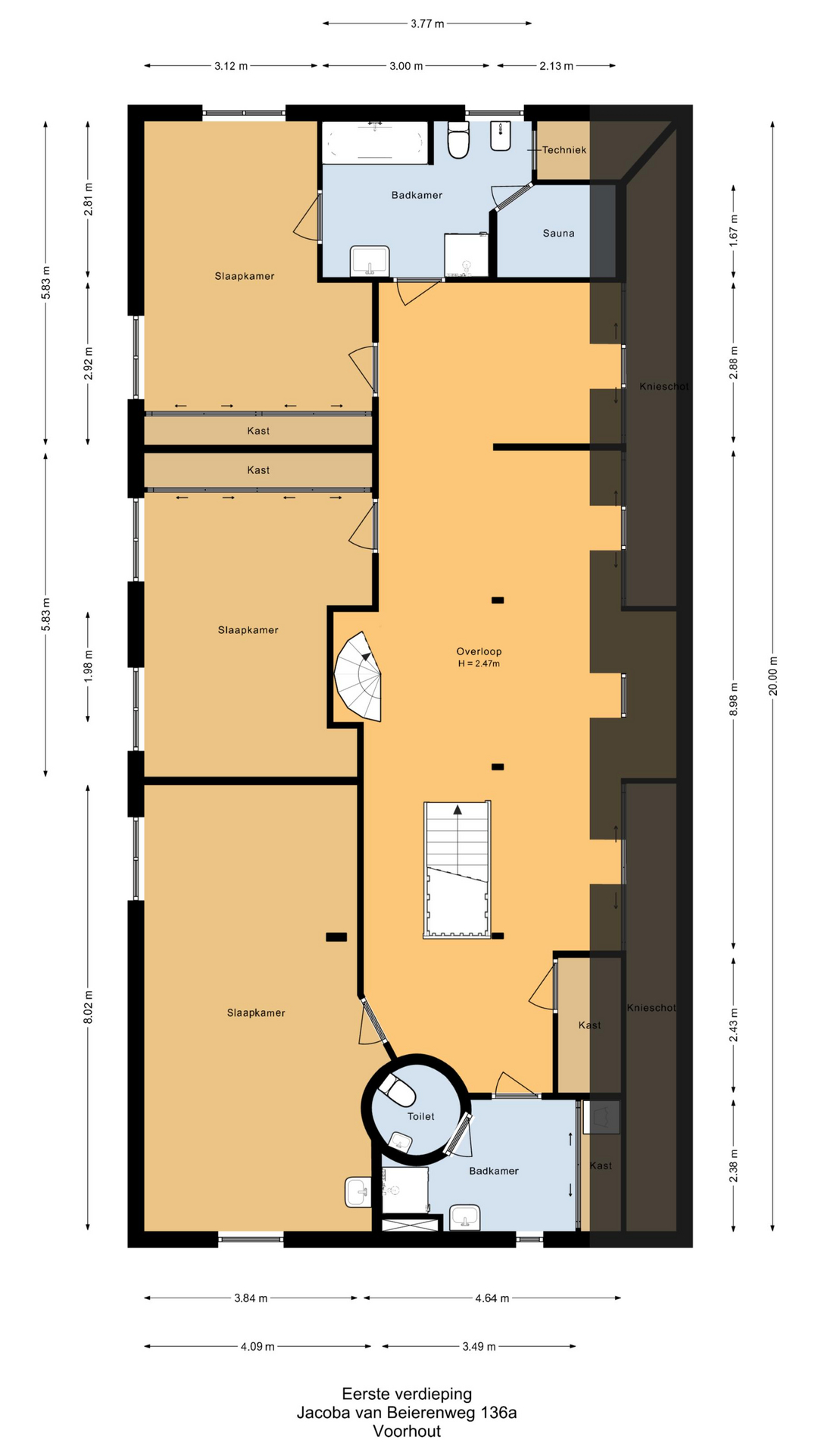
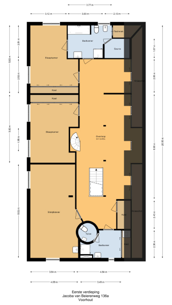
First floor;
The staircase in the hall leads to the spacious landing on the first floor. Here you will find three spacious bedrooms and two bathrooms.
The bathroom at the rear has a small sauna. The second bathroom is equipped with a walk-in shower, connections for washing appliances, and a separate toilet.
The bedrooms are light and spacious, one of which has air conditioning. If desired, the rooms can be divided to create additional bedrooms. The landing also offers space for an extra room or workspace.

2nd floor;
The spiral staircase leads to the second floor. Here are two additional bedrooms, ideal as guest rooms or a home office. There is also plenty of storage space.

Garden;
The house is surrounded by a spacious garden with both sunny and shady spots. Enjoy the peace and privacy here, or organize cozy summer evenings by the brick barbecue. A separate storage room offers space for garden equipment.
Parking is available on site, with space for several cars.

Possibilities:
Thanks to its construction, the house is relatively easy to adapt or renovate. In the past, the property was used partly as a home and partly as an office, making it ideal for dual occupancy or a combination of living and working.

The villa is located in picturesque Voorhout, in the heart of the Bollenstreek region. Here you can enjoy a peaceful and free lifestyle, with beautiful views over the meadows, yet close to all amenities. The village is easily accessible by bike and has a train station in the center.

Special features:
- large living room with lots of light
- secluded but close to the village
- suitable for solar panels
- air conditioning in the bedroom (April 2024)
- possibility for home business
- fiber optic available
- two central heating boilers (2021 + May 2024)
- Sauna available + 4 toilets
- Train station in the center
Call the Wilbrink & v.d. Vlugt office for an appointment and discover the endless possibilities of your new home for yourself. Rick Broekhof will be happy to show you this property!

Entdecken Sie Voorhout mit Baerz, Ihrem vertrauenswürdigen persönlichen Immobilienfinder und Berater

Erfolg bei Kauf oder Verkauf hochwertiger Immobilien in Voorhout basiert auf Marktkenntnis, starken Beziehungen und professioneller Verhandlungsführung. Persönliche Immobilienberater verschaffen Zugang zu exklusiven und Off-Market-Angeboten, begleiten sicher durch lokale Regulierungen und vertreten diskret die Interessen ihrer Klientel. Ob Denkmal oder modernes Anwesen – mit dem richtigen Berater werden Transaktionen optimal strukturiert und Chancen zielgerichtet umgesetzt.

Besondere Merkmale

Klimaanlage

Merkmale

Eigentumsübertragung
Verkaufspreis
€ 1.175.000 k.k.
Status
beschikbaar
Annahme
in overleg
Bau
Art des Hauses
Villa
Gebäudetyp
vrijstaande woning
Bauzeitraum
1975
Energieausweis
C
Dachtyp
zadeldak
Schlafzimmer
5
Badezimmer
2
Flächen und Volumen
Wohnbereich
422 m2
Andere Innenräume
0 m2
Externer Lagerraum
7 m2
Volumen in Kubikmetern
1387 m3
Grundstücksgröße
726 m2
Einrichtungen
Mechanische ventilatie
Tv kabel
Airconditioning
Rookkanaal
Sauna
Glasvezel kabel
Natuurlijke ventilatie
Vrij uitzicht
Beschutte ligging
Landelijk gelegen
Baerz & Co Property Brochure

Broschüre

Videos

Grundrisse

Wilbrink & v.d. Vlugt Makelaars

Heereweg 231
2161 BG Lisse

info@wilbrinkvandervlugt.nl
+31 252 41 90 49

www.onsaanbod.nl

Information / Besichtigungsanfrage

Rick Broekhof profile image
Rick Broekhof
Real estate agent