VOGELENZANG
Bekslaan 58 - 2114 CA
Niederlande

Frits Wilbrink profile image
Frits Wilbrink
Real estate agent
€3,750,000 k.k.
Wohnfläche
297m2
Grundstücksgröße
18030m2
Schlafzimmer
3

Beschreibung

Die freistehende Villa in Vogelenzang liegt in einem seltenen, bewaldeten Areal von 18.030 m² und bietet einen Lebensstil, der von Privatsphäre, Ruhe und einer intimen Verbindung zur Natur geprägt ist. Diese Villa, fertiggestellt im Jahr 2019, bietet 297 m² Wohnfläche und drei Schlafzimmer und vereint zeitgemäßen Komfort mit einer zeitlosen Umgebung. Für Liebhaber von Zurückhaltung und Raffinesse entworfen, ist die Villa mit handgeformten Klinkern, Natursteinplatten aus Burgund und massiven Eichentüren ausgestattet, während Red-Cedar-Verkleidungen dauerhafte Eleganz und minimalen Pflegeaufwand sicherstellen.

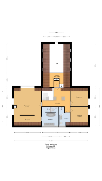
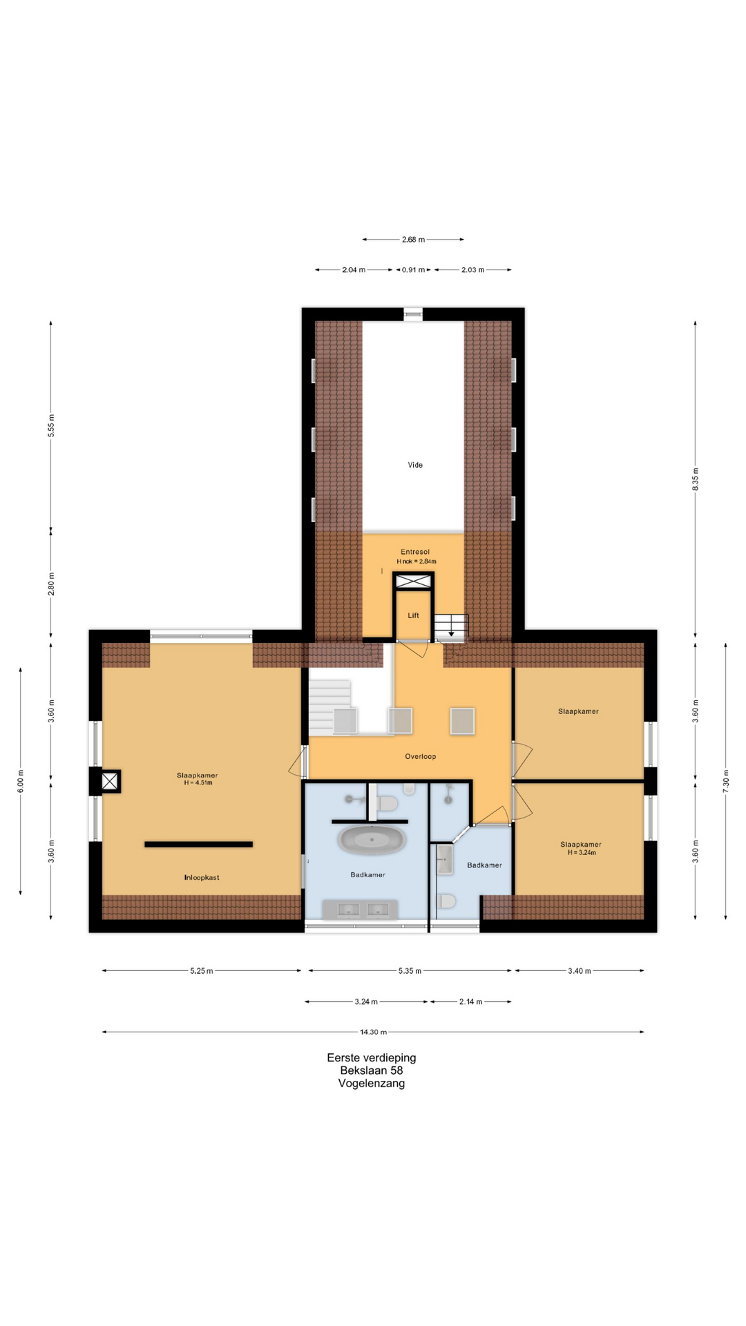
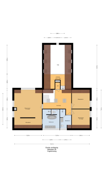
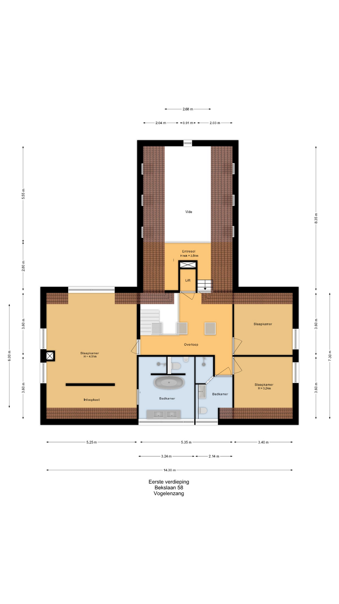
Die Raumgestaltung ist großzügig und dennoch kontrolliert. Eine beeindruckende Halle mit Treppe und Aufzug erschließt das gesamte Haus. Das Wohnzimmer mit Kamin und Fußbodenheizung öffnet sich zu einer Veranda mit Blick auf alten Baumbestand und schafft eine harmonische Verbindung zwischen Innen- und Außenbereich. Die einladende Küche wird durch einen AGA-Induktionsherd, hohe Decken, eine Empore und einen direkten Zugang zum Garten geprägt. Im Obergeschoss sorgen Dachfenster und Gauben für viel Tageslicht. Die Master-Suite verfügt über ein Ankleidezimmer und ein luxuriöses Bad. Zwei weitere Schlafzimmer sowie ein zweites Bad bieten Komfort für Familie oder Gäste.

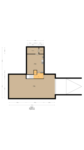
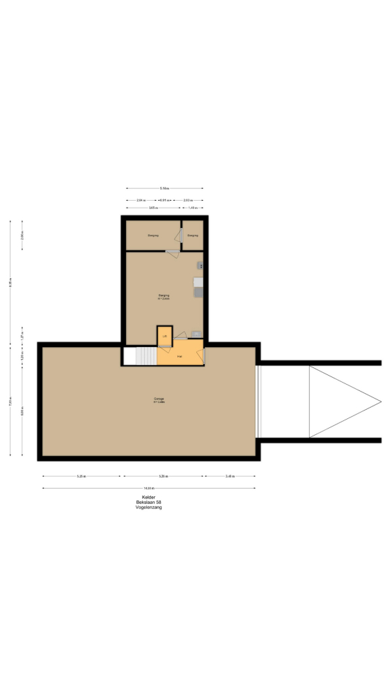
Das geräumige Untergeschoss bietet eine Doppelgarage für bis zu vier Fahrzeuge, eine Ladestation für Elektroautos, Stauraum sowie Heizungs- und Waschkeller. Fortschrittliche Dämmung, HR++-Verglasung, eine Alarmanlage und Energieeffizienzklasse A unterstreichen die Nachhaltigkeit dieser Villa. Jede Etage ist per Treppe oder Lift erreichbar und erleichtert so das tägliche Leben.

Ein privater Bootshafen mit Liegeplätzen für drei Sloepen erstreckt das Erlebnis aufs Wasser und ermöglicht direkten Zugang zur Leidsche Vaart mit Routen in Richtung Haarlem und Kagerplassen. Die täglichen Annehmlichkeiten sind bequem per Fahrrad erreichbar und bieten so einen seltenen Komfort an diesem abgeschiedenen Rückzugsort. Diese Luxusvilla in Vogelenzang vereint Gelassenheit, Handwerkskunst und Zugänglichkeit und spricht jene an, die diskret zwischen den Welten wechseln.

Entdecken Sie Vogelenzang mit Baerz, Ihrem vertrauenswürdigen persönlichen Immobilienfinder & Berater

Der Markt ist diskret, das Angebot eng. Versierte Berater verschaffen Zugang zu Off-Market-Immobilien und begleiten komplexe Verhandlungen von historischen Bauten bis zu Naturschutzgebieten. Ihre Unterstützung ist unverzichtbar für Prüfung, Bewertung und individuelle Investitionsstrategien – stets mit absoluter Diskretion und persönlicher Begleitung.

Vermeiden Sie häufige Fallstricke

Internationale Käufer verschwenden oft wertvolle Zeit mit doppelten, veralteten oder irreführenden Online-Angeboten, insbesondere da fast 30% der Luxusimmobilien nie auf dem öffentlichen Markt erscheinen. Verkäufermakler vertreten die Interessen des Verkäufers, nicht die des Käufers. Selbst die Anfrage nach Informationen zu einer Immobilie kann dazu führen, dass ein Verkäufermakler Sie ohne Ihre Zustimmung als seinen „Kunden“ registriert.
Mit Baerz Property Finders & Advisors vermeiden Sie all diese Fallstricke vollständig. Wir arbeiten ausschließlich in Ihrem Auftrag, bieten unabhängige Vertretung, klare Beratung und Zugang zu allen verfügbaren Immobilien, einschließlich Off-Market-Möglichkeiten, die andere nie zu sehen bekommen.

Interessiert an einem Personal Property Advisor?

Wir zeigen Ihnen alle verfügbaren Häuser an einem Ort. Kontaktieren Sie uns gerne, um zu erfahren, wie wir Ihre Bedürfnisse erfüllen und Ihre Interessen exklusiv schützen können.

Merkmale

Alarmsystem
Eigentumsübertragung
Angebotspreis
€ 3.750.000 k.k.
Status
beschikbaar
Annahme
in overleg
Bau
Art des Hauses
Villa
Gebäudetyp
vrijstaande woning
Bauzeitraum
2019
Energieeffizienzklasse
A
Dachtyp
samengesteld dak
Schlafzimmer
3
Badezimmer
2
Oberflächen und Volumen
Wohnfläche
297 m2
Anderer Innenbereich
97 m2
Außenbereich am Gebäude angebaut
28 m2
Volumen in Kubikmetern
1468 m3
Grundstücksgröße
18030 m2
Einrichtungen
Mechanische ventilatie
Alarminstallatie
Tv kabel
Lift
Rookkanaal
Dakraam
Aan bosrand
Aan water
Aan rustige weg
Vrij uitzicht
Beschutte ligging
Buiten bebouwde kom
In bosrijke omgeving
Landelijk gelegen
Baerz & Co Property Brochure

Broschüre

Videos

Grundrisse

Wilbrink & v.d. Vlugt Makelaars

Heereweg 231
2161 BG Lisse

info@wilbrinkvandervlugt.nl
+31 252 41 90 49

www.onsaanbod.nl

Information / Besichtigungsanfrage

Frits Wilbrink profile image
Frits Wilbrink
Real estate agent

Kauf einer Luxusimmobilie in Vogelenzang

Vogelenzang steht für anspruchsvolles Wohnen, gewachsenes Kulturerbe und eine enge Gemeinschaft. Seine erstklassigen Anwesen, das stilvolle Lebensumfeld und die Nähe zu kosmopolitischen Angeboten machen den Ort zum diskreten, lebendigen Ziel für internationale Familien und erfahrene Investoren.