VENLO
Monseigneur Boermansstraat 11 - 5911 BA
Niederlande

Don Willems profile image
Don Willems
Makelaar
€898,750 k.k.
Wohnfläche
225m2
Grundstücksgröße
240m2
Schlafzimmer
5

Beschreibung

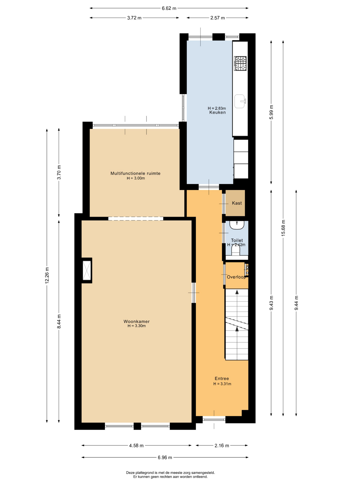
Das Townhouse Venlo ist ein herausragendes Beispiel für Architektur der 1920er Jahre im Herzen der Stadt. Es vereint historischen Charakter mit zeitgemäßem Komfort und bietet einen privilegierten Blick über das Rosarium. Die Residenz erstreckt sich über 225 m² auf drei Ebenen und umfasst fünf Schlafzimmer, zwei Bäder und eine Fülle an natürlichem Licht. Vom großzügigen Eingangsbereich mit Bianco Carrara Marmorfliesen bis zum weitläufigen Wohnraum, ausgestattet mit französischem Eichenparkett im Fischgrätmuster, strahlt jeder Raum stille Raffinesse und Authentizität aus.

Die Hauptebene besticht durch einen unverbaubaren Blick auf das Rosarium, hohe Decken mit originalen Stuckverzierungen, einen Gaskamin sowie nahtlos integrierte Technik inklusive Klimaanlage und dimmbarer Beleuchtung. Französische Türen im hinteren Bereich führen in den vom Architekten gestalteten Garten, einen privaten Rückzugsort mit mehreren Terrassen, Decking aus Padauk-Holz, gepflastertem Patio und einem beheizten Swimmingpool. Umschlossen von Mauern genießen Sie hier absolute Privatsphäre, nur wenige Minuten vom Zentrum Venlos entfernt.

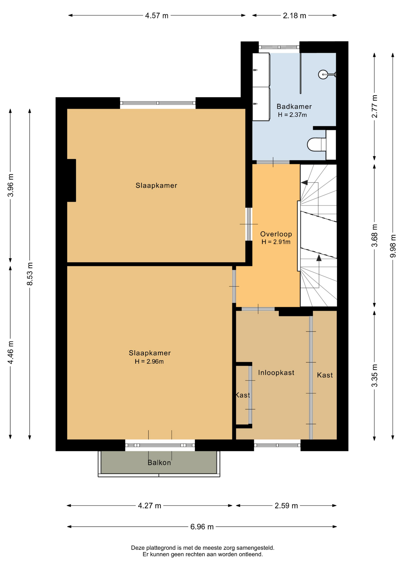
Im Obergeschoss öffnet sich die großzügige Master-Suite zu einem Balkon mit Blick auf die Stadtgärten. Flexible Räume bieten Platz für weitere Schlafzimmer oder ein Arbeitszimmer. Die Bäder, renoviert mit Fußbodenheizung und erlesenen Armaturen, schaffen eine Atmosphäre diskreter Luxusqualität. Für Energieeffizienz sorgt das A++-Label, 15 Solarpaneele mit 6.000 kWh Jahresleistung, eine Wärmepumpe und dreifach verglaste Fenster – Seltenheiten in einer Immobilie dieser Herkunft.

Mit praktischen Vorzügen wie einem Keller für Stauraum, Fußbodenheizung in den Bädern, Klimaanlage und optionaler Garagenanmietung erfüllt dieses luxuriöse Stadthaus in Venlo höchste Ansprüche an diskretes Wohnen im Zentrum – dort, wo Design, Privatsphäre und urbaner Komfort aufeinandertreffen.

Entdecken Sie Venlo mit Baerz, Ihrem vertrauenswürdigen persönlichen Immobilienfinder & Berater

Für Premium-Transaktionen sind fundierte Marktkenntnisse, Einblicke ins lokale Angebot, Planungsrecht und anstehende Entwicklungen entscheidend. Erfahrene Berater verschaffen Zugang zu exklusiven Off-Market-Objekten, handeln diskret und sichern so den entscheidenden Vorsprung für Ihre Investments. Professionelle Begleitung ist essenziell, um die architektonisch wertvollsten Immobilien zu sichern oder optimale Vertragskonditionen zu verhandeln.

Vermeiden Sie häufige Fallstricke

Internationale Käufer verschwenden oft wertvolle Zeit mit doppelten, veralteten oder irreführenden Online-Angeboten, insbesondere da fast 30% der Luxusimmobilien nie auf dem öffentlichen Markt erscheinen. Verkäufermakler vertreten die Interessen des Verkäufers, nicht die des Käufers. Selbst die Anfrage nach Informationen zu einer Immobilie kann dazu führen, dass ein Verkäufermakler Sie ohne Ihre Zustimmung als seinen „Kunden“ registriert.
Mit Baerz Property Finders & Advisors vermeiden Sie all diese Fallstricke vollständig. Wir arbeiten ausschließlich in Ihrem Auftrag, bieten unabhängige Vertretung, klare Beratung und Zugang zu allen verfügbaren Immobilien, einschließlich Off-Market-Möglichkeiten, die andere nie zu sehen bekommen.

Interessiert an einem Personal Property Advisor?

Wir zeigen Ihnen alle verfügbaren Häuser an einem Ort. Kontaktieren Sie uns gerne, um zu erfahren, wie wir Ihre Bedürfnisse erfüllen und Ihre Interessen exklusiv schützen können.

Merkmale

Schwimmbad
Solarmodule
Klimaanlage
Eigentumsübertragung
Angebotspreis
€ 898.750 k.k.
Status
verkocht onder voorbehoud
Annahme
in overleg
Bau
Art des Hauses
Herenhuis
Gebäudetyp
tussenwoning
Bauzeitraum
1926
Energieeffizienzklasse
A++
Dachtyp
samengesteld dak
Schlafzimmer
5
Badezimmer
2
Oberflächen und Volumen
Wohnfläche
225 m2
Anderer Innenbereich
36 m2
Außenbereich am Gebäude angebaut
2 m2
Volumen in Kubikmetern
807 m3
Grundstücksgröße
240 m2
Einrichtungen
Mechanische ventilatie
Zwembad
Airconditioning
Dakraam
Zonnepanelen
Aan rustige weg
In centrum
Baerz & Co Property Brochure

Broschüre

Videos

VeTeBe

Grotestraat 84a
5931 CX Tegelen

info@vetebe.nl
+31 77 3262600

www.vetebe.nl

Information / Besichtigungsanfrage

Don Willems profile image
Don Willems
Makelaar

Kauf einer Luxusimmobilie in Venlo

Venlo bietet eine gelungene Verbindung aus Tradition, moderner Lebensart und internationaler Erreichbarkeit. Die lebendige Community, das kulturelle Angebot und maßgeschneiderte Immobiliendienstleistungen erfüllen höchste Ansprüche internationaler Käufer und Familien.