VEENENDAAL
Zandstraat 35 - 3901 CJ
Niederlande

Wistik Zonnenberg profile image
Wistik Zonnenberg
Register Makelaar Taxateur/ Eigenaar
€894,500 k.k.
Wohnfläche
180m2
Grundstücksgröße
340m2
Schlafzimmer
4

Beschreibung

Das freistehende Haus in Veenendaal lädt Sie an eine Adresse ein, an der Geschichte und Komfort aufeinandertreffen – zurückgezogen an der Zandstraat am Rande des Zentrums von Veenendaal gelegen. Dieses denkmalgeschützte Stadthaus aus dem Jahr 1908 mit einer Wohnfläche von 180 m² strahlt von Beginn an Präsenz und Wärme aus. Jeder Raum wird durch originale Details wie dekorative Stuckverzierungen, maßgefertigte Einbauten, massives Eichenparkett im Fischgrätmuster sowie hohe Decken mit besonderer Ausstrahlung belebt und gleichzeitig durch moderne Ausstattungen abgerundet. Die Aufteilung umfasst sechs Zimmer, darunter vier Schlafzimmer und zwei elegante Badezimmer, die gleichermaßen Privatsphäre und Gemeinsamkeit ermöglichen.

Das Erdgeschoss begrüßt Sie mit einer großzügigen Diele, die zu einem Wohn- und Essbereich mit historischen Kaminen führt. Sonnenlicht durchflutet den Raum durch hohe Sprossenfenster mit originalen Fensterläden. Moderne Annehmlichkeiten wie integrierte Geräte und ein nahtloser Anbau sind harmonisch integriert. Die gartenseitige Küche vereint klassische Elemente mit praktischer Funktionalität und öffnet sich zum sonnigen, breiten und nach Süden ausgerichteten Garten. Dort genießt man die Ruhe zwischen Spalierlinden und einem Walnussbaum. Verschiedene Sitzbereiche laden zu geselligen Stunden oder ruhigen Momenten ein. Ein rückwärtiges Doppeltor und Stellplätze auf dem Grundstück bieten seltenen städtischen Komfort.

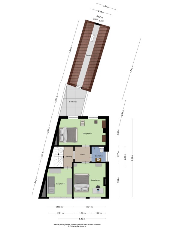
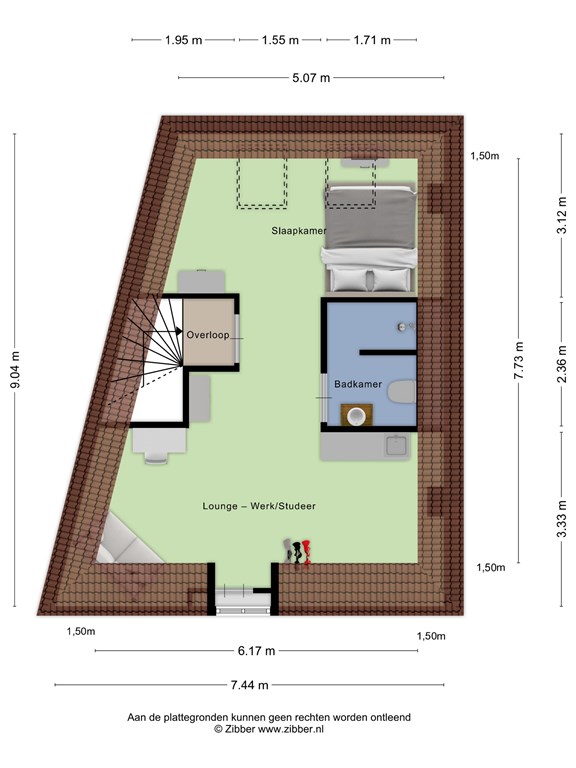
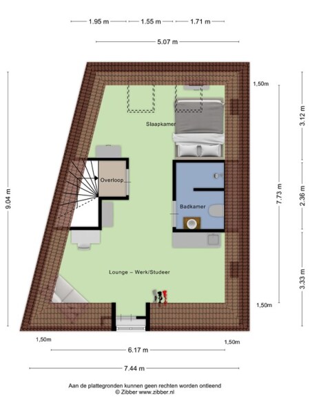
In den oberen Etagen sind die lichtdurchfluteten Schlafzimmer durchdacht angeordnet. Eine Dachterrasse und das großzügige Dachgeschoss mit eigener Pantry und Bad bieten zusätzlichen Wohnkomfort. Robustem Eichenholz und Naturfliesen stehen freiliegende Deckenbalken zur Seite, während moderne Technik wie effiziente Zentralheizung und Glasfaserinternet dezent traditionelle und zeitgemäße Elemente vereint. Mindestens zwei Parkplätze befinden sich auf dem 340 m² großen Grundstück. Die Annehmlichkeiten der Stadt, Cafés, Schulen und die grünen Landschaften des Utrechtse Heuvelrug sind in wenigen Minuten erreichbar.

Für Interessenten an einem luxuriösen Stadthaus in Veenendaal vereint dieses Anwesen zeitlose Architektur und modernen Wohnkomfort im Herzen der Niederlande auf höchstem Niveau.

Entdecken Sie Veenendaal mit Baerz, Ihrem vertrauenswürdigen persönlichen Immobilienfinder & Berater

Anspruchsvolle Käufer profitieren von individueller Beratung beim Einstieg in den vielschichtigen Markt von Veenendaal. Ortsansässige Experten bieten Zugang zu diskreten Angeboten und geschützten Netzwerken, navigieren durch regulatorische Details und entdecken Objekte, die selten öffentlich ausgeschrieben werden. Eine versierte Verhandlungsführung und regionales Fachwissen sorgen dafür, dass Ihre persönlichen und Investitionsziele optimal umgesetzt werden – bei maximaler Sicherheit.

Vermeiden Sie häufige Fallstricke

Internationale Käufer verschwenden oft wertvolle Zeit mit doppelten, veralteten oder irreführenden Online-Angeboten, insbesondere da fast 30% der Luxusimmobilien nie auf dem öffentlichen Markt erscheinen. Verkäufermakler vertreten die Interessen des Verkäufers, nicht die des Käufers. Selbst die Anfrage nach Informationen zu einer Immobilie kann dazu führen, dass ein Verkäufermakler Sie ohne Ihre Zustimmung als seinen „Kunden“ registriert.
Mit Baerz Property Finders & Advisors vermeiden Sie all diese Fallstricke vollständig. Wir arbeiten ausschließlich in Ihrem Auftrag, bieten unabhängige Vertretung, klare Beratung und Zugang zu allen verfügbaren Immobilien, einschließlich Off-Market-Möglichkeiten, die andere nie zu sehen bekommen.

Interessiert an einem Personal Property Advisor?

Wir zeigen Ihnen alle verfügbaren Häuser an einem Ort. Kontaktieren Sie uns gerne, um zu erfahren, wie wir Ihre Bedürfnisse erfüllen und Ihre Interessen exklusiv schützen können.

Merkmale

Eigentumsübertragung
Angebotspreis
€ 894.500 k.k.
Status
Available
Annahme
In Concert
Referenz
08144
Bau
Art des Hauses
Mansion
Gebäudetyp
Detached House
Bauzeitraum
1908
Dachtyp
composite
Schlafzimmer
4
Badezimmer
2
Oberflächen und Volumen
Wohnfläche
180 m2
Anderer Innenbereich
5 m2
Außenbereich am Gebäude angebaut
10 m2
Externer Stauraum
5 m2
Volumen in Kubikmetern
654 m3
Grundstücksgröße
340 m2
Einrichtungen
Cable Tv
Fluetube
Fibreopticcable
Not Furnished
Garden
Internetconnection
Phoneline
Skylight
Storageroom
Not Upholstered
Ventilation
Baerz & Co Property Brochure

Broschüre

Videos

Grundrisse

Zonnenberg Makelaardij

Kerkewijk 108
3904 JG Veenendaal

info@zonnenbergmakelaardij.nl
+31 318 559600

www.zonnenbergmakelaardij.nl

Information / Besichtigungsanfrage

Wistik Zonnenberg profile image
Wistik Zonnenberg
Register Makelaar Taxateur/ Eigenaar

Kauf einer Luxusimmobilie in Veenendaal

Veenendaal bietet eine harmonische Mischung aus Ruhe, urbanem Flair und vielfältigen Annehmlichkeiten. Die Gemeinschaft legt Wert auf Privatsphäre, grünes Wohnen und internationale Verbindungen – unterstützt von hochwertigen Immobiliendienstleistungen für eine anspruchsvolle, globale Klientel.