ROTTERDAM
Plasoord 13 - 3054 LJ
Die Niederlande

Joris van Oosten profile image
Joris van Oosten
Real estate agent
€1,250,000 k.k.
Wohnbereich
119m2
Grundstücksgröße
226m2
Schlafzimmer
4

Beschreibung

Pictures say more than 1000 words and this sublime location needs no further description.

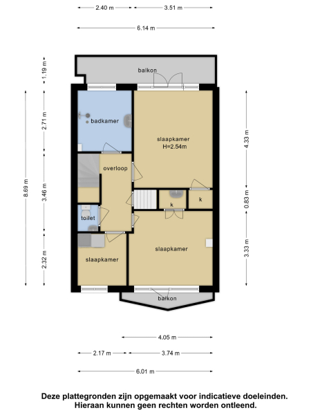
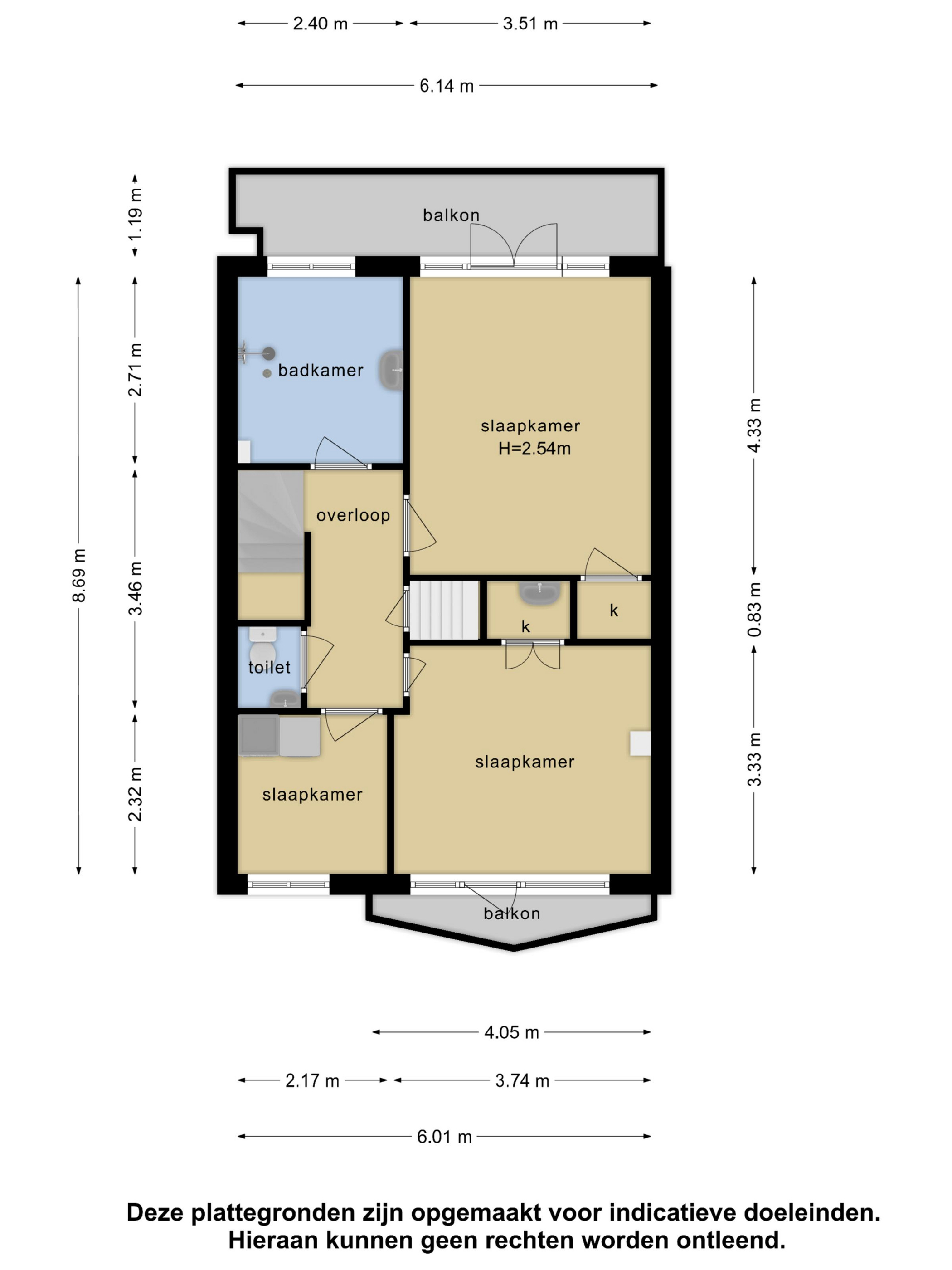
Of the 29m2 remaining indoor space, 7m2 is the basement and 22m2 is the surface of the 2nd floor. If the current dormer window at the rear is raised a few cm, the 22m2 will count as living area.

By installing a dormer window at the front, the usable living area will increase even further, even if the dormer window at the back is not increased.

Particularities:
- built in 1927
- located on 226m2 of private land
- possibility to moor a sloop in the backyard
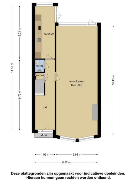
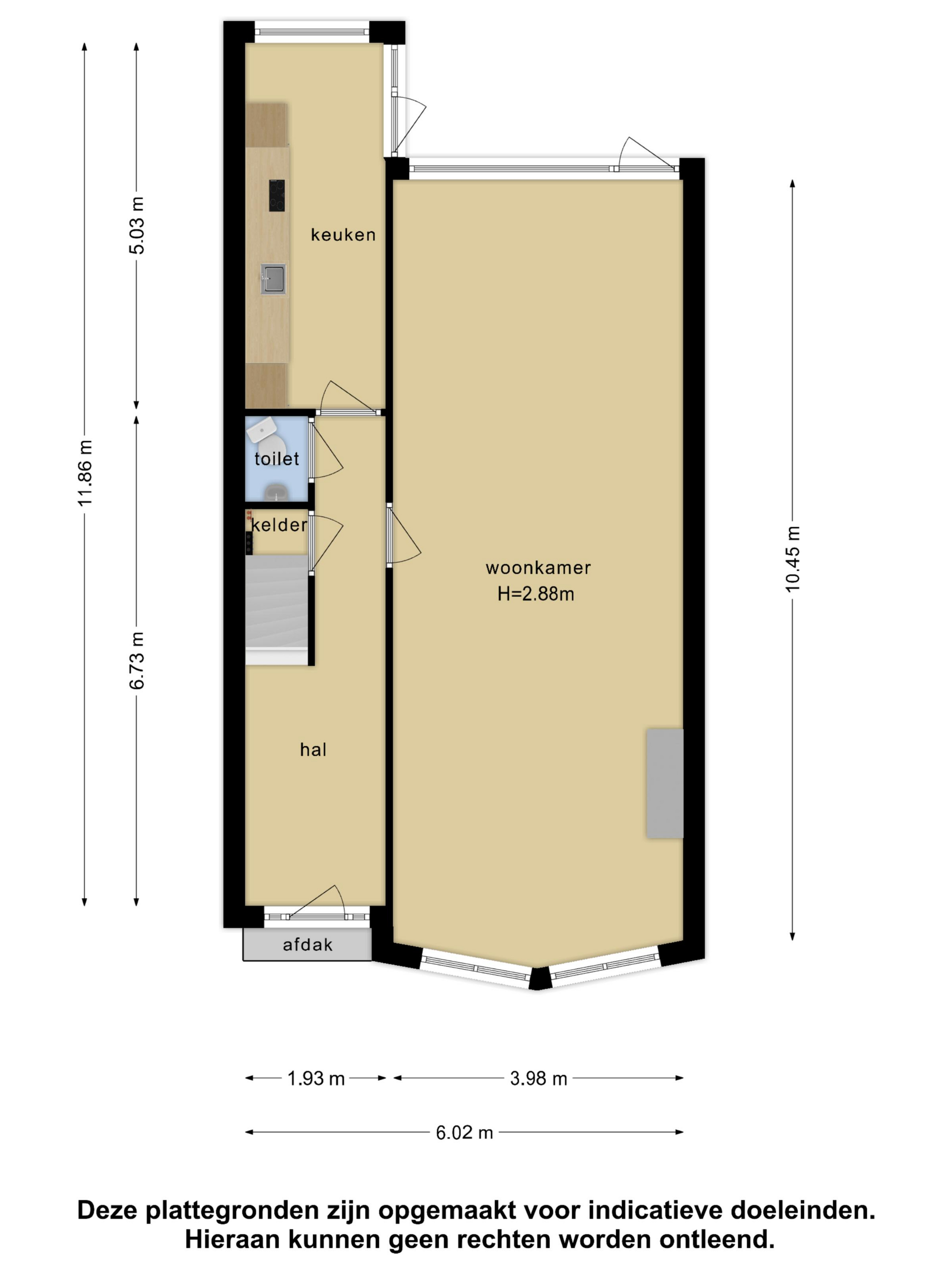
- living area of ??approx. 119 m2 (in accordance with NEN-2580)
- usable area of ??other indoor space approx. 29 m2 (in accordance with NEN-2580)
- building-related outdoor space approx. 10 m2 (in accordance with NEN-2580)
- partly fitted with double glazing
- hot water and heating via central heating combi boiler from 2021
- energy label D

Delivery in consultation.

For additional information about this property, you can visit its own website (address + house number).

J.J. van Oosten Makelaardij is the seller's NVM broker. We advise you to engage your own NVM broker to represent your interests when purchasing this object.
No rights can be derived from this offer text.

The Measurement Instruction is based on NEN2580. The Measuring Instruction is intended to apply a more unambiguous method of measuring to provide an indication of the usable surface. The Measurement Instruction does not completely exclude differences in measurement results, for example due to differences in interpretation, rounding off or limitations in carrying out the measurement.

Entdecken Sie Rotterdam mit Baerz, Ihrem vertrauenswürdigen persönlichen Immobilienfinder und Berater

Die Navigation auf dem dynamischen Rotterdamer Immobilienmarkt erfordert erfahrene Berater, die lokale Expertise mit internationalem Kundenservice verbinden. Diskreter Zugang zu Off-Market-Angeboten, gezielte Verhandlungsstrategien und vertieftes regulatorisches Wissen ermöglichen es anspruchsvollen Käufern und Verkäufern, kluge Entscheidungen zu treffen. Diese Kompetenz optimiert Renditechancen und sichert Interessen über alle Phasen hinweg.

Merkmale

Eigentumsübertragung
Verkaufspreis
€ 1.250.000 k.k.
Status
beschikbaar
Annahme
in overleg
Bau
Art des Hauses
Eengezinswoning
Gebäudetyp
tussenwoning
Bauzeitraum
1927
Energieausweis
D
Dachtyp
zadeldak
Schlafzimmer
4
Badezimmer
1
Flächen und Volumen
Wohnbereich
119 m2
Andere Innenräume
29 m2
Außenbereich am Gebäude
10 m2
Volumen in Kubikmetern
522 m3
Grundstücksgröße
226 m2
Einrichtungen
Tv kabel
Buitenzonwering
Aan water
In woonwijk
Vrij uitzicht
Aan vaarwater
Baerz & Co Property Brochure

Broschüre

Videos

Grundrisse

J.J. Van Oosten Makelaardij BV

Straatweg 225
3054 AG Rotterdam

info@vanoostenmakelaardij.nl
+31 10 422 11 00

www.vanoostenmakelaardij.nl

Information / Besichtigungsanfrage

Joris van Oosten profile image
Joris van Oosten
Real estate agent