ROERMOND
Beemdenlaan 4 - 6041 NM
Niederlande

Jos van Rey profile image
Jos van Rey
Registermakelaar
€950,000 k.k.
Wohnfläche
235m2
Grundstücksgröße
945m2
Schlafzimmer
3

Beschreibung

Villa Roermond präsentiert eine seltene Verbindung aus niederländischer Mid-Century-Architektur und zeitgemäßer Nachhaltigkeit auf einem privaten Grundstück von 945 m² im begehrten Roer-Zuid. Diese Immobilie vereint gestalterische Exzellenz mit modernem Komfort auf 235 m² Wohnfläche, eingerahmt von reifen Gärten und fußläufig zum Stadtzentrum.

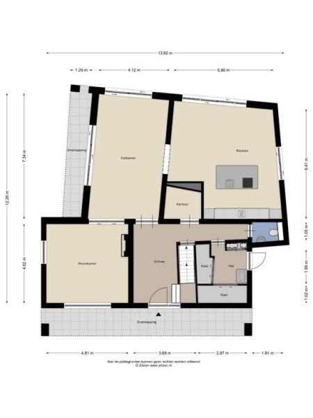
Im Inneren erwarten Sie versetzte Wohnbereiche, die auf Licht und Wohnqualität setzen. Großzügige Schiebetüren verbinden jedes elegante Zimmer harmonisch mit dem nach Westen ausgerichteten Garten. Die Ausstattung wechselt zwischen dezenter Sichtbeton- und klassischer Fischgrätparkett-Optik, während die Küche mit zentraler Kochinsel und modernen Einbaugeräten zum Herzstück des Hauses avanciert. Das variable Erdgeschoss bietet Wohn- und Essbereiche mit Gartenblick, ein gemütliches Fernsehzimmer mit Kamin, einen Hauswirtschaftsraum sowie ein diskretes Büro.

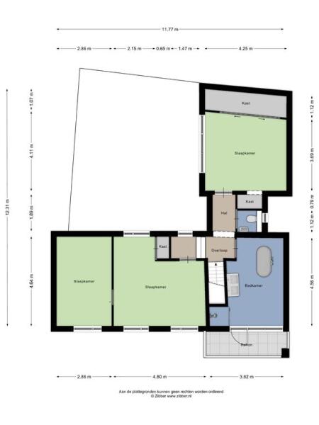
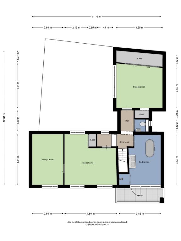
Im Obergeschoss betonen drei vollwertige Schlafzimmer Ruhe und Stauraum, das großzügige, lichtdurchflutete Badezimmer bietet eine Badewanne, Doppelwaschbecken, separate Dusche und einen französischen Balkon. Ein A+-Energieausweis wird durch umfassende Dämmung und Solarpanels gewährleistet.

Neben der Hauptvilla bietet ein separates Gästehaus 20 m² für Besucher oder Arbeiten – mit eigenem Eingang, Küchenzeile und überdachter, privater Terrasse. Gartenleben wird durch den neuen Swimmingpool, üppige Bepflanzung und mehrere Terrassen zusätzlich bereichert.

Mit freistehender Garage, Nähe zum Park Hattem und schnellem Anschluss an die Hauptverkehrsadern verspricht die Villa Roermond entspannte Wohnqualität und urbane Annehmlichkeiten in unmittelbarer Umgebung.

Entdecken Sie Roermond mit Baerz, Ihrem vertrauenswürdigen persönlichen Immobilienfinder & Berater

Der diskrete Immobilienmarkt Roermonds verlangt lokales Know-how und internationale Perspektive. Ein erfahrener Berater verschafft Zugang zu Off-Market-Objekten, begleitet sensible Verhandlungen und antizipiert neue Entwicklungen. Fundiertes Wissen zu kulturellen und juristischen Rahmenbedingungen sichert reibungslose Transaktionen – von der Suche bis zum Abschluss. Gerade bei wachsender Marktdynamik bleibt individuelle Beratung für anspruchsvolle Käufer und Verkäufer unverzichtbar.

Vermeiden Sie häufige Fallstricke

Internationale Käufer verschwenden oft wertvolle Zeit mit doppelten, veralteten oder irreführenden Online-Angeboten, insbesondere da fast 30% der Luxusimmobilien nie auf dem öffentlichen Markt erscheinen. Verkäufermakler vertreten die Interessen des Verkäufers, nicht die des Käufers. Selbst die Anfrage nach Informationen zu einer Immobilie kann dazu führen, dass ein Verkäufermakler Sie ohne Ihre Zustimmung als seinen „Kunden“ registriert.
Mit Baerz Property Finders & Advisors vermeiden Sie all diese Fallstricke vollständig. Wir arbeiten ausschließlich in Ihrem Auftrag, bieten unabhängige Vertretung, klare Beratung und Zugang zu allen verfügbaren Immobilien, einschließlich Off-Market-Möglichkeiten, die andere nie zu sehen bekommen.

Interessiert an einem Personal Property Advisor?

Wir zeigen Ihnen alle verfügbaren Häuser an einem Ort. Kontaktieren Sie uns gerne, um zu erfahren, wie wir Ihre Bedürfnisse erfüllen und Ihre Interessen exklusiv schützen können.

Merkmale

Schwimmbad
Solarmodule
Eigentumsübertragung
Angebotspreis
€ 950.000 k.k.
Status
beschikbaar
Annahme
in overleg
Bau
Art des Hauses
Eengezinswoning
Gebäudetyp
vrijstaande woning
Bauzeitraum
1957
Energieeffizienzklasse
A+
Dachtyp
samengesteld dak
Schlafzimmer
3
Badezimmer
1
Oberflächen und Volumen
Wohnfläche
235 m2
Anderer Innenbereich
16 m2
Außenbereich am Gebäude angebaut
47 m2
Externer Stauraum
24 m2
Volumen in Kubikmetern
934 m3
Grundstücksgröße
945 m2
Einrichtungen
Tv kabel
Zwembad
Rookkanaal
Schuifpui
Frans balkon
Glasvezel kabel
Zonnepanelen
Aan rustige weg
In woonwijk
Beschutte ligging
Baerz & Co Property Brochure

Broschüre

Videos

Grundrisse

Jack Frenken Makelaars & adviseurs

Graaf Reinaldstraat 1
6041 XB Roermond

info@jackfrenken.nl
+31 475335225

www.jackfrenken.nl/

Information / Besichtigungsanfrage

Jos van Rey profile image
Jos van Rey
Registermakelaar

Kauf einer Luxusimmobilie in Roermond

Roermond vereint kulturelle Raffinesse, internationale Vernetzung und exklusive Immobilienleistungen. Die lebendige Gemeinschaft und das Leben am Wasser faszinieren internationale Käufer und bieten attraktive Perspektiven für anspruchsvolle Anleger.