Apartment zu verkaufen in Rhenen

Rhenen Hofstraat 6 - 3911 KX Niederlande


Wistik Zonnenberg profile image
Wistik Zonnenberg
Real Estate Agent
+31 318 559600
info@zonnenbergmakelaardij.nl

Zonnenberg Makelaardij
Kerkewijk 108
3904 JG Veenendaal
NETHERLANDS
+31 318 559600
www.zonnenbergmakelaardij.nl
info@zonnenbergmakelaardij.nl

Wohnbereich
240m2
Grundstücksfläche
217m2
Schlafräume
3

Beschreibung

Luxe penthouse met eigen parkeergarage en stadstuin.

Gelegen in een rustige en charmante straat, midden in het levendige centrum van Rhenen, bevindt zich dit unieke en royale penthouse met stadstuin, eigen parkeergarage op de begane grond, twee parkeerplaatsen voor het penthouse en een interne lift. Deze exclusieve woning biedt het comfort en de luxe van een penthouse, gecombineerd met de ruimte en flexibiliteit van een meerlaags woonhuis.

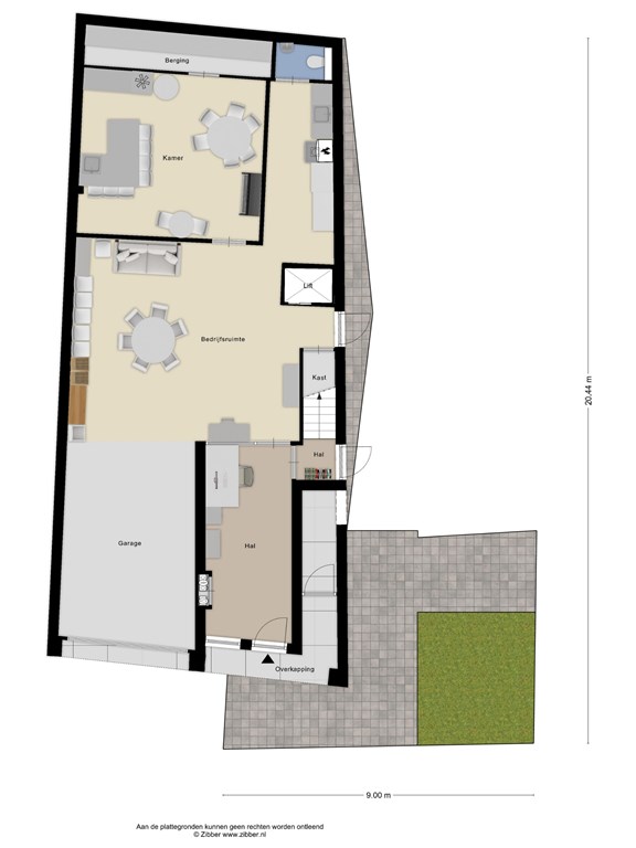
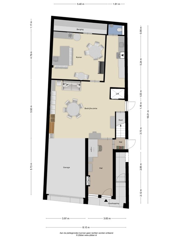
Begane grond
Bij binnenkomst treft u een multifunctionele ruimte die uitstekend kan dienen als mantelzorgwoning of kantoorruimte / bedrijfsruimte. De begane grond is bijzonder veelzijdig, mede doordat hier eenvoudig een zelfstandig appartement gerealiseerd kan worden. Alle benodigde aansluitingen zijn reeds aanwezig, wat een zorgeloze en snelle inrichting mogelijk maakt. De woning is volledig rolstoelvriendelijk dankzij de drempelloze toegang en de aanwezigheid van een lift, wat bijdraagt aan optimaal comfort en toegankelijkheid.
Aangrenzend ligt de royale garage, bereikbaar via een elektrische overheaddeur, met ruimte voor meerdere auto's. Achterin de garage bevinden zich een praktisch keukenblok en een toiletruimte met fontein.

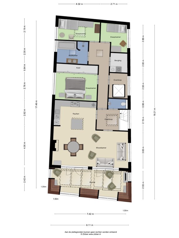
Eerste verdieping
Op de eerste verdieping komt u via de trap of de geplaatste lift in de hal. Door de hal kom je bij de riante living met open keuken die is voorzien van een stijlvolle natuurstenen vloer. Het kookeiland in de keuken biedt meer dan voldoende werkruimte en geeft een fraai uitzicht op de eethoek. De open keuken is voorzien van een modern kookeiland en uitgerust met luxe apparatuur, waaronder een Boretti gasfornuis.
De grote glazen deuren leiden naar een extra kamer, die gebruikt kan worden als zitkamer of serre. Dankzij de lichtstraat en grote glazen ramen is er volop natuurlijk licht. De ramen zijn voorzien van elektrisch screens. Aan de achterzijde van de woning zijn drie slaapkamers te vinden, evenals een luxe badkamer. Alle kamers zijn voorzien van airconditioning.

Sanitair
De ruime badkamer biedt meerdere faciliteiten om heerlijk tot rust te komen. Zo is er een royale stortdouche, en een comfortabel bubbelbad waarin u kunt genieten van een ontspannen moment na een lange dag. Het wastafelmeubel is voorzien van een dubbele wastafel, waardoor u voldoende ruimte heeft om samen de dag te beginnen.
Daarnaast is de badkamer uitgerust met vloerverwarming, zodat u altijd een aangename temperatuur ervaart, zelfs tijdens de koudere maanden. Het gehele sanitair is van topkwaliteit en uitgevoerd in een moderne stijl, wat perfect aansluit bij de rest van de woning. De aandacht voor detail en het gebruik van hoogwaardige materialen zorgen ervoor dat het sanitair niet alleen functioneel, maar ook een luxe ervaring is.
Tuin
De zonnige stadstuin, ideaal gelegen op het zuiden, biedt volop mogelijkheden om te genieten van lange zomerse dagen. Dankzij de gunstige ligging profiteert u de hele dag van zonlicht, waardoor de tuin een heerlijke plek is om te ontspannen, te eten of gezellig samen te zijn met familie en vrienden. De tuin is grotendeels betegeld, wat niet alleen zorgt voor een moderne, strakke uitstraling, maar ook voor weinig onderhoud. Hierdoor kunt u zonder al te veel moeite het hele jaar door van uw buitenruimte genieten. De tuin is voorzien van een buitenhaard en een BBQ.
Het betegelde terras biedt meer dan genoeg ruimte voor verschillende zitgedeeltes. U kunt er bijvoorbeeld een comfortabele loungehoek creëren voor ontspannen avonden, of een royale eettafel plaatsen voor zomerse diners in de buitenlucht. Naast de betegelde vlakken is er een fraai kunst grasveld, perfect voor kinderen om op te spelen of voor huisdieren om rond te rennen. Dit stukje groen voegt een speels element toe aan de tuin en zorgt voor een natuurlijke overgang naar de meer functionele gedeelten.

Algemene gegevens
- Type woning: penthouse
- Bouwjaar: 2005
- Aantal kamers: 6
- Aantal slaapkamers: 3
- Aantal badkamers: 1
- Parkeerruimte: inpandige garage en twee plekken voor de woning
- Aanwezig: berging. garage, personenlift en binnentuin
- Ligging tuin: zuid/west
- Tuin bereik: opzij

Technische gegevens
- Warmwatervoorziening: (Nieuw) Remeha combi cv-ketel (nieuw)
- Verwarmvoorziening: Remeha combi cv-ketel (nieuw) en heather
- Vloerverwarming: aanwezig
- Zonnepanelen: 12 stuks
- Voorzieningen: airco op de gehele verdieping/buitenzonwering middels screens
- Mechanische ventilatie: aanwezig
- Isolatie: dak/spouw/vloer
- Dubbel glas: geheel
- Glasvezel kabel en TV kabel
- Kozijnen: hout

WILT U EVEN BINNEN KIJKEN?

Voor meer informatie omtrent deze woning, kunt u contact opnemen met ons kantoor in Rhenen.

U bent van harte welkom! De beste indruk van deze woning krijgt u natuurlijk tijdens een bezichtiging. Wij proberen onze bezichtigingen altijd in samenspraak met verkoper en koper te plannen en nemen ruim de tijd, zodat u op uw gemak de woning kan bekijken en ervaren.
N.B. Aan de samenstelling van deze gegevens is maximale zorg besteed. Aan onvolkomenheden in de vermelde gegevens en tekeningen kunnen geen rechten en aanspraken worden ontleend.

Eigenschaften

Übertragung
Preisvorstellung
€ 875.000 k.k.
Status
Available
Akzeptanz
In Concert
Referenz
08077
Bauwesen
Typ des Wohnhauses
Apartment
Art der Konstruktion
Penthouse
Jahr der Errichtung
2005
Energieklasse
B
Typ des Daches
composite
Schlafräume
3
Bäder
1
Fläche und Inhalt
Wohnbereich
240 m2
Andere Innenräume
23 m2
Gebäudebezogene Freiflächen
10 m2
Inhalt
931 m3
Grundstücksfläche
217 m2
Anlagen
Airco
Alarm
Cable Tv
Elevator
Fluetube
Not Furnished
Garage
Garden
Internetconnection
Outdoorawnings
Phoneline
Skylight
Not Upholstered
Ventilation
Baerz & Co Property Brochure

Brochure

Informationen / Besichtigungsanfrage

Videos

Fotos

Grundrisse