OLDENZAAL
Hoge Haerlaan 29 - 7573 BV
Niederlande

€1,215,000
Wohnfläche
244m2
Grundstücksgröße
751m2
Schlafzimmer
5

Beschreibung

Das freistehende Haus Oldenzaal befindet sich in erstklassiger Lage und verbindet die großzügigen Linien der Architektur der 1930er Jahre mit zeitgemäßem Wohnkomfort. Entworfen von C. Hardeman und im Jahr 2003 umfassend renoviert, bietet diese freistehende Residenz eine Wohnfläche von 244 m² auf einem großzügigen Grundstück von 751 m². Bereits auf den ersten Blick überzeugt die zeitlose Ausstrahlung, im Inneren bereichern authentische Details und außergewöhnlicher Lichteinfall alle Räume.

Wohnen an der Hoge Haerlaan bedeutet Ruhe und Freiraum zu genießen, während die täglichen Annehmlichkeiten in unmittelbarer Nähe liegen. Das Erdgeschoss empfängt Sie mit einem überdachten Eingang und einer großzügigen Diele und führt in ein Home-Office, das von einem stilvollen Erkerfenster eingerahmt wird. Die großflächigen Fenster und der Wintergarten des Wohnzimmers lassen reichlich Tageslicht herein und öffnen sich zum ruhigen, südöstlich ausgerichteten Garten mit mehreren Terrassen und vielseitiger Bepflanzung. Die mit Kamin ausgestattete Küche verfügt über hochwertige Einbaugeräte und führt auf eine überdachte Terrasse. Funktionale Bereiche wie ein Vorratskeller, ein Hauswirtschaftsraum und eine großzügige Garage komplettieren das Raumangebot.

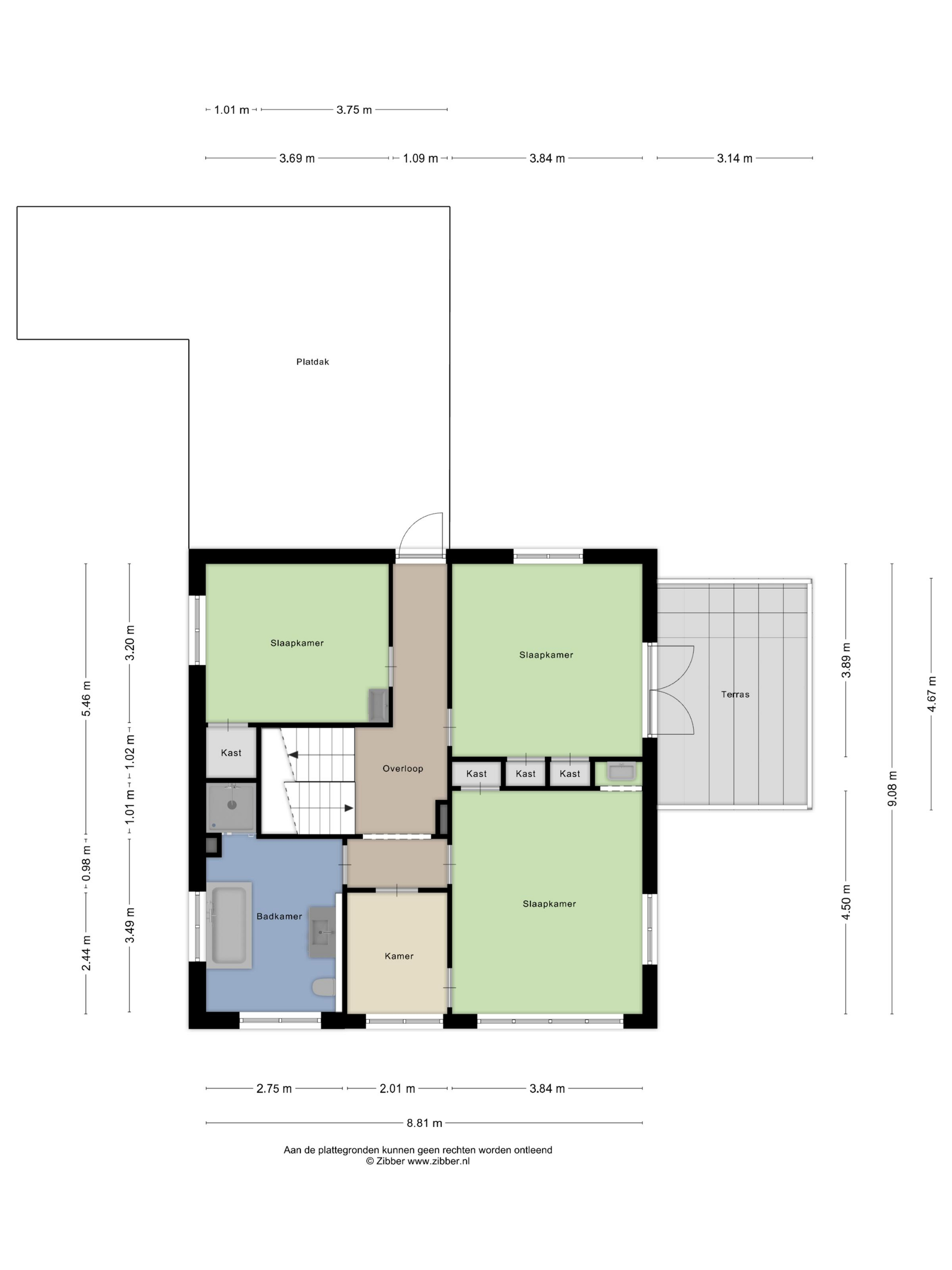
Das Haus bietet fünf Schlafzimmer auf drei Etagen, darunter eine Mastersuite mit Balkon und Ausblick auf die umliegende Landschaft. Zwei Bäder sorgen für Komfort, während originale Tischlerarbeiten, teilweise Fußbodenheizung, Solarpaneele, umfassende Dämmung sowie Energieklasse C das Gesamtbild abrunden. In allen Bereichen spürt man Privatsphäre, architektonische Qualität und Kontinuität.

Entdecken Sie Oldenzaal mit Baerz, Ihrem vertrauenswürdigen persönlichen Immobilienfinder & Berater

Der Luxusmarkt in Oldenzaal verlangt Fingerspitzengefühl und Insiderwissen, denn Spitzenimmobilien werden häufig diskret vermittelt. Erfahrene Berater bieten Zugang zu exklusiven Objekten, führen kompetente Verhandlungen und leiten Sie sicher durch rechtliche und kulturelle Besonderheiten – für einen reibungslosen, vertraulichen Ablauf.

Vermeiden Sie häufige Fallstricke

Internationale Käufer verschwenden oft wertvolle Zeit mit doppelten, veralteten oder irreführenden Online-Angeboten, insbesondere da fast 30% der Luxusimmobilien nie auf dem öffentlichen Markt erscheinen. Verkäufermakler vertreten die Interessen des Verkäufers, nicht die des Käufers. Selbst die Anfrage nach Informationen zu einer Immobilie kann dazu führen, dass ein Verkäufermakler Sie ohne Ihre Zustimmung als seinen „Kunden“ registriert.
Mit Baerz Property Finders & Advisors vermeiden Sie all diese Fallstricke vollständig. Wir arbeiten ausschließlich in Ihrem Auftrag, bieten unabhängige Vertretung, klare Beratung und Zugang zu allen verfügbaren Immobilien, einschließlich Off-Market-Möglichkeiten, die andere nie zu sehen bekommen.

Interessiert an einem Personal Property Advisor?

Wir zeigen Ihnen alle verfügbaren Häuser an einem Ort. Kontaktieren Sie uns gerne, um zu erfahren, wie wir Ihre Bedürfnisse erfüllen und Ihre Interessen exklusiv schützen können.

Merkmale

Solarmodule
Eigentumsübertragung
Angebotspreis
€ 1.215.000
Status
beschikbaar
Annahme
in overleg
Bau
Art des Hauses
Eengezinswoning
Gebäudetyp
vrijstaande woning
Bauzeitraum
1928
Energieeffizienzklasse
C
Dachtyp
tentdak
Schlafzimmer
5
Badezimmer
2
Oberflächen und Volumen
Wohnfläche
244 m2
Anderer Innenbereich
11 m2
Außenbereich am Gebäude angebaut
34 m2
Externer Stauraum
29 m2
Volumen in Kubikmetern
948 m3
Grundstücksgröße
751 m2
Einrichtungen
Tv kabel
Glasvezel kabel
Zonnepanelen
Natuurlijke ventilatie
Aan rustige weg
In woonwijk
Baerz & Co Property Brochure

Broschüre

Videos

360°-Panoramen

360°
360 Panorama - Hoge Haerlaan 29
360°
360 Panorama - Hoge Haerlaan 29
360°
360 Panorama - Hoge Haerlaan 29
360°
360 Panorama - Hoge Haerlaan 29
360°
360 Panorama - Hoge Haerlaan 29
360°
360 Panorama - Hoge Haerlaan 29
360°
360 Panorama - Hoge Haerlaan 29
360°
360 Panorama - Hoge Haerlaan 29
360°
360 Panorama - Hoge Haerlaan 29
360°
360 Panorama - Hoge Haerlaan 29
360°
360 Panorama - Hoge Haerlaan 29
360°
360 Panorama - Hoge Haerlaan 29
360°
360 Panorama - Hoge Haerlaan 29
360°
360 Panorama - Hoge Haerlaan 29
360°
360 Panorama - Hoge Haerlaan 29
360°
360 Panorama - Hoge Haerlaan 29
360°
360 Panorama - Hoge Haerlaan 29
360°
360 Panorama - Hoge Haerlaan 29
360°
360 Panorama - Hoge Haerlaan 29
360°
360 Panorama - Hoge Haerlaan 29
360°
360 Panorama - Hoge Haerlaan 29
360°
360 Panorama - Hoge Haerlaan 29
360°
360 Panorama - Hoge Haerlaan 29
360°
360 Panorama - Hoge Haerlaan 29

Grundrisse

KockvanBenthem Makelaars

Bisschopstraat 18
7571 CZ Oldenzaal

bk@kvbm.nl
+31 541 52 20 22

www.kvbm.nl

Information / Besichtigungsanfrage

Bert Kock profile image
Bert Kock
Real Estate Agent

Kauf einer Luxusimmobilie in Oldenzaal

Oldenzaal verbindet Privatsphäre, kulturelle Vielfalt und hochwertige Angebote zu einem exklusiven Wohnumfeld. Die besonderen Häuser, eine engagierte Gemeinschaft und internationale Offenheit ziehen anspruchsvolle Bewohner an, die Komfort, Sicherheit und Understatement schätzen.