LISSE
Heereweg 304 - 2161 BV
Niederlande

Miranda van der Wagt-Waasdorp profile image
Miranda van der Wagt-Waasdorp
Real estate agent
€1,695,000 k.k.
Wohnfläche
321m2
Grundstücksgröße
610m2
Schlafzimmer
4

Beschreibung

Das Townhouse Lisse steht als kommunales Denkmal und bietet 321 m² anspruchsvollen Wohnraum auf einem 610 m² großen Grundstück im Herzen des Ortes. Diese stattliche, freistehende Immobilie wurde umfassend und charaktergerecht renoviert; originale Details wurden bewahrt und zugleich höchste Maßstäbe modernen Wohnkomforts integriert.

Beim Betreten empfängt Sie eine imposante, hohe Eingangstür, die in einen langen Flur mit authentischem Granitoboden führt und weiter in die großzügige Wohnküche. Dort bringt eine mattweiße, maßgefertigte Küche mit Frühstücksbar aus Holz, integrierten Geräten und Weinkühlschrank das Herz des Hauses zum Leben; ergänzt durch einen Gaskamin und französische Türen, die in den sonnenverwöhnten Garten führen. Angrenzend liegen ein formelles Wohnzimmer und ein flexibler Raum im Obergeschoss, ideal zum Arbeiten oder Spielen – sie runden das Erdgeschoss ab. Ein elegant gestaltetes Arbeitszimmer, ein erhaltener Originalkeller und eine große, integrierte Garage werten das tägliche Wohnen weiter auf.

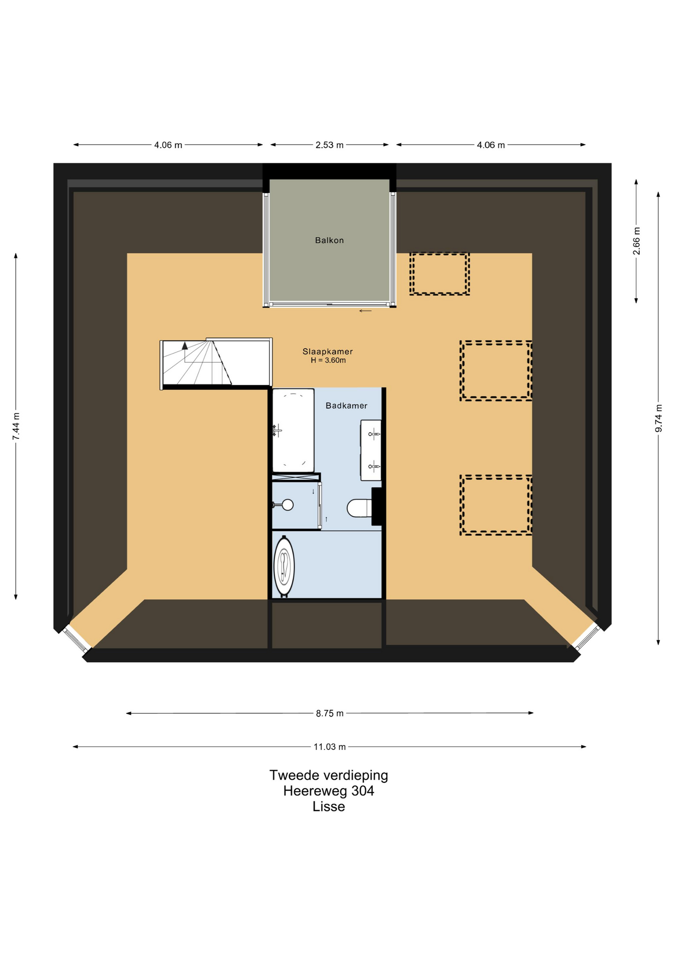
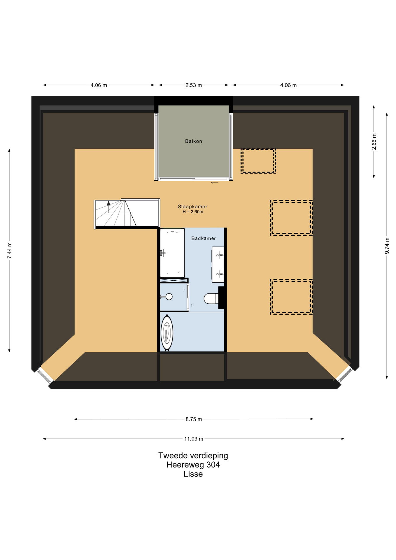
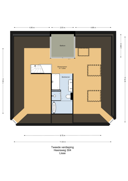
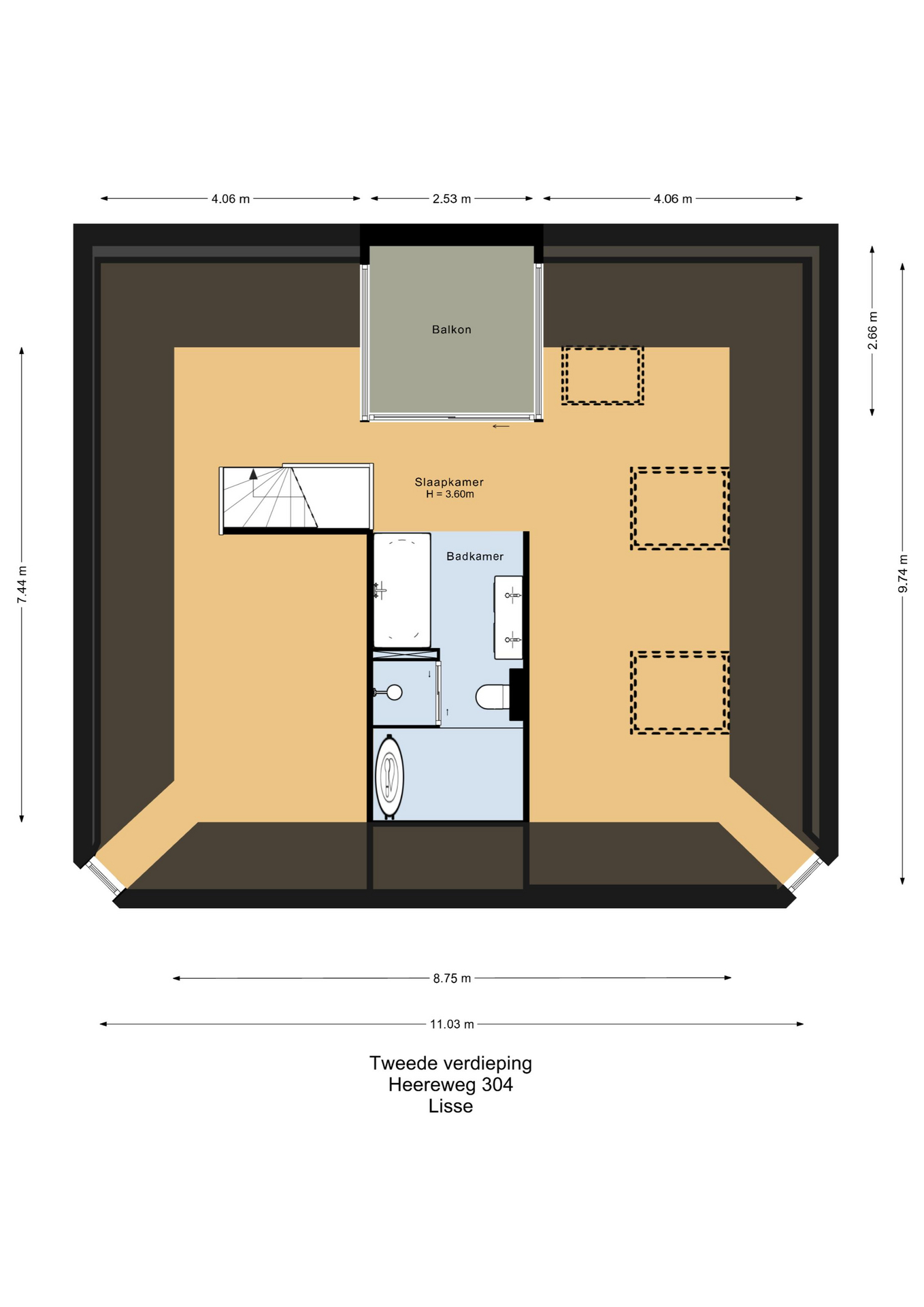
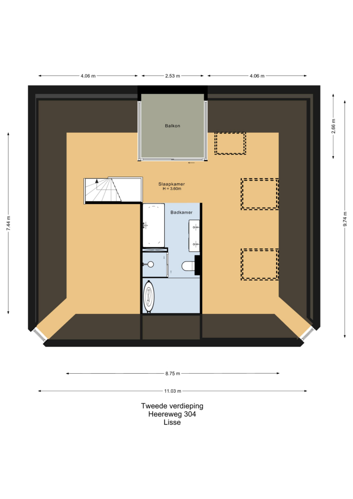
Im ersten Obergeschoss erwarten Sie drei großzügige Schlafzimmer, ein luxuriöses Bad mit begehbarer Dusche, freistehender Badewanne und Doppelwaschbecken sowie ein vielseitig nutzbarer Hauswirtschafts- oder Arbeitsraum. Das gesamte Dachgeschoss dient als ruhige Mastersuite mit nach Westen gerichteter Loggia, begehbarem Kleiderschrank und zweitem, privaten Badezimmer.

Das Anwesen ist umgeben von schmiedeeisernem Zaun, ausgewachsenen Buchen und strukturiert angelegtem Garten – Privatsphäre und Ruhe sind garantiert. Nachhaltigkeit wird durch Wand- und Dachdämmung, isolierte Verglasung, 32 Solarpaneele und zwei moderne Brennwertkessel gewährleistet. Alarmanlage, Deckenspots, maßgefertigte Einbauten und äußerst hochwertig verlegte Eichenböden unterstreichen die durchdachte Modernisierung und machen dieses Townhouse in Lisse zu einer harmonischen Verbindung von historischem Charme und anspruchsvollem Wohnen.

Entdecken Sie Lisse mit Baerz, Ihrem vertrauenswürdigen persönlichen Immobilienfinder & Berater

Der exklusive Markt in Lisse zeichnet sich durch selektiven Zugang und fein austarierte Käufer-Verkäufer-Beziehungen aus. Persönliche Immobilienberater bieten echten Mehrwert, ermöglichen Zugang zu unveröffentlichten Objekten und begleiten diskrete Verhandlungen. Ihr Expertenwissen stellt sicher, dass Privatsphäre, Qualität und Zeitplanung stets im Einklang mit den Erwartungen stehen und schützen Interessen durch gründliche Prüfungen und individuelle Vertragsgestaltung.

Vermeiden Sie häufige Fallstricke

Internationale Käufer verschwenden oft wertvolle Zeit mit doppelten, veralteten oder irreführenden Online-Angeboten, insbesondere da fast 30% der Luxusimmobilien nie auf dem öffentlichen Markt erscheinen. Verkäufermakler vertreten die Interessen des Verkäufers, nicht die des Käufers. Selbst die Anfrage nach Informationen zu einer Immobilie kann dazu führen, dass ein Verkäufermakler Sie ohne Ihre Zustimmung als seinen „Kunden“ registriert.
Mit Baerz Property Finders & Advisors vermeiden Sie all diese Fallstricke vollständig. Wir arbeiten ausschließlich in Ihrem Auftrag, bieten unabhängige Vertretung, klare Beratung und Zugang zu allen verfügbaren Immobilien, einschließlich Off-Market-Möglichkeiten, die andere nie zu sehen bekommen.

Interessiert an einem Personal Property Advisor?

Wir zeigen Ihnen alle verfügbaren Häuser an einem Ort. Kontaktieren Sie uns gerne, um zu erfahren, wie wir Ihre Bedürfnisse erfüllen und Ihre Interessen exklusiv schützen können.

Merkmale

Solarmodule
Alarmsystem
Eigentumsübertragung
Angebotspreis
€ 1.695.000 k.k.
Status
beschikbaar
Annahme
in overleg
Bau
Art des Hauses
Herenhuis
Gebäudetyp
vrijstaande woning
Bauzeitraum
1898
Energieeffizienzklasse
C
Schlafzimmer
4
Badezimmer
2
Oberflächen und Volumen
Wohnfläche
321 m2
Anderer Innenbereich
62 m2
Außenbereich am Gebäude angebaut
9 m2
Volumen in Kubikmetern
1349 m3
Grundstücksgröße
610 m2
Einrichtungen
Mechanische ventilatie
Alarminstallatie
Zonnepanelen
In centrum
Baerz & Co Property Brochure

Broschüre

Videos

Grundrisse

Wilbrink & v.d. Vlugt Makelaars

Heereweg 231
2161 BG Lisse

info@wilbrinkvandervlugt.nl
+31 252 41 90 49

www.onsaanbod.nl

Information / Besichtigungsanfrage

Miranda van der Wagt-Waasdorp profile image
Miranda van der Wagt-Waasdorp
Real estate agent

Kauf einer Luxusimmobilie in Lisse

Lisse bietet ein harmonisches Lebensumfeld, in dem Tradition und moderne Raffinesse verschmelzen. Exklusive Immobilien, eine lebendige Kulturszene und optimale Anbindungen machen Lisse attraktiv für internationale Familien, Investoren und anspruchsvolle Käufer.