LEPELSTRAAT
Kerkstraat 57 - 4664 BP
Niederlande

Tristan Helmig profile image
Tristan Helmig
Makelaar / Taxateur
€1,250,000 k.k.
Wohnfläche
570m2
Grundstücksgröße
771m2
Schlafzimmer
6

Beschreibung

Das Multi-Use-Gebäude Lepelstraat bietet eine seltene Gelegenheit, ein kommunales Denkmal mit ausgeprägtem historischem Charakter in den Niederlanden zu erwerben. Die vielfältige Geschichte des Anwesens – vom Kloster über eine Mädchenschule bis hin zu einer Bibliothek – hat seine heutige Identität als wandelbare Immobilie geprägt, die Wohnen und Arbeiten gelungen miteinander verbindet. Die Gesamtwohnfläche beträgt 570 m², das Grundstück umfasst 771 m²; der flexible Grundriss integriert Büroräume, Besprechungssäle und separate Wohnbereiche.

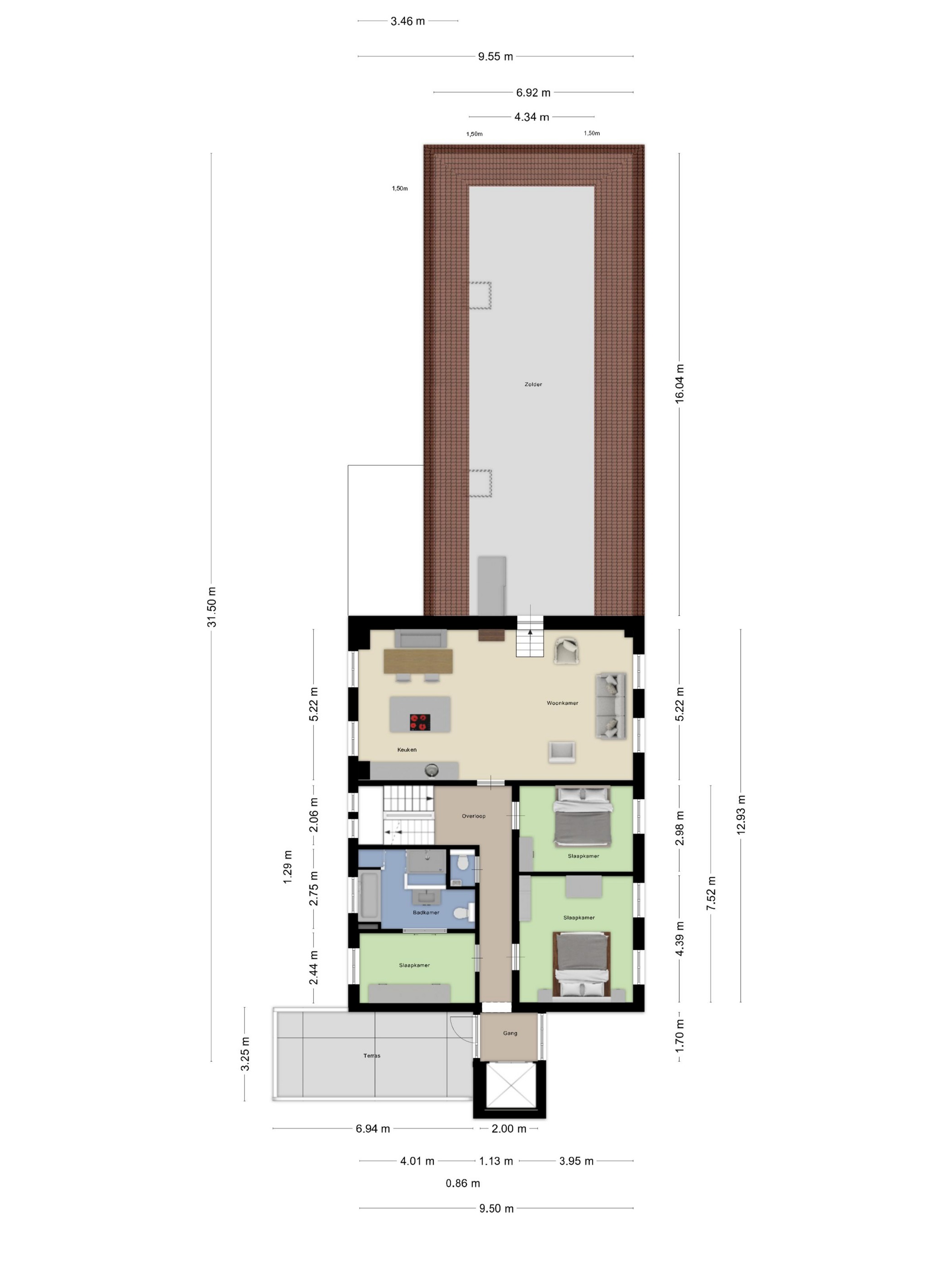
Im Erdgeschoss ermöglichen mehrere Büros, Sanitäranlagen, eine Küche und ein multifunktionaler Saal ein breites Nutzungsspektrum – von kreativen Arbeitsplätzen bis zu Einzelhandel oder Gastronomie –, unterstützt durch ein großzügiges und gut zugängliches Raumangebot. Das Obergeschoss ist als komfortables Apartment gestaltet und bietet ein geräumiges Wohnzimmer mit offener Küche, drei Schlafzimmer sowie ein modernes Bad. Der Dachboden eröffnet weitere Möglichkeiten für Arbeit, Hobbys oder zusätzliche Übernachtungsgäste. Die zweite Etage beherbergt ein unabhängiges Apartment im offenen Stil, ausgestattet mit einem Velux-Balkonfenster und einem en-suite Bad. Komfort und Geselligkeit werden durch eine Klimaanlage sowie einen Barbereich zusätzlich gesteigert.

2020 erfolgte eine umfassende Renovierung: 24 Solarpaneele, moderne Klimaanlage und neue Dämmungen führten zur Einstufung in Energieklasse B. Sicherheit und Zugang werden durch ein elektronisches Schließsystem, Alarmanlage und ein Kameranetzwerk gewährleistet. Der gärtnerisch gestaltete Außenbereich beinhaltet ein Boule-Feld und Parkmöglichkeiten, komplett umzäunt für maximale Privatsphäre. Das Multi-Use-Gebäude Lepelstraat beeindruckt durch außergewöhnliche Flexibilität: ideal für die Verbindung von Wohnen und Arbeiten, Mehrgenerationenwohnen oder geschäftliche Zwecke und verkörpert eine harmonische Verbindung von Geschichte und zeitgemäßer Ausstattung.

Entdecken Sie Lepelstraat mit Baerz, Ihrem vertrauenswürdigen persönlichen Immobilienfinder & Berater

Der diskrete Markt verlangt tiefgehendes Verständnis, strategische Zugänge und Verhandlungsstärke. Vertrauenswürdige Berater vermitteln Off-Market-Objekte, kennen den lokalen Wert und begleiten vertrauliche Transaktionen für beste Ergebnisse. Ihre maßgeschneiderte Herangehensweise ist in einer Kultur der Diskretion und Individualität unverzichtbar.

Vermeiden Sie häufige Fallstricke

Internationale Käufer verschwenden oft wertvolle Zeit mit doppelten, veralteten oder irreführenden Online-Angeboten, insbesondere da fast 30% der Luxusimmobilien nie auf dem öffentlichen Markt erscheinen. Verkäufermakler vertreten die Interessen des Verkäufers, nicht die des Käufers. Selbst die Anfrage nach Informationen zu einer Immobilie kann dazu führen, dass ein Verkäufermakler Sie ohne Ihre Zustimmung als seinen „Kunden“ registriert.
Mit Baerz Property Finders & Advisors vermeiden Sie all diese Fallstricke vollständig. Wir arbeiten ausschließlich in Ihrem Auftrag, bieten unabhängige Vertretung, klare Beratung und Zugang zu allen verfügbaren Immobilien, einschließlich Off-Market-Möglichkeiten, die andere nie zu sehen bekommen.

Interessiert an einem Personal Property Advisor?

Wir zeigen Ihnen alle verfügbaren Häuser an einem Ort. Kontaktieren Sie uns gerne, um zu erfahren, wie wir Ihre Bedürfnisse erfüllen und Ihre Interessen exklusiv schützen können.

Merkmale

Solarmodule
Klimaanlage
Eigentumsübertragung
Angebotspreis
€ 1.250.000 k.k.
Status
beschikbaar
Annahme
in overleg
Bau
Art des Hauses
Eengezinswoning
Gebäudetyp
vrijstaande woning
Bauzeitraum
1922
Energieeffizienzklasse
B
Dachtyp
zadeldak
Schlafzimmer
6
Badezimmer
2
Oberflächen und Volumen
Wohnfläche
570 m2
Anderer Innenbereich
32 m2
Außenbereich am Gebäude angebaut
32 m2
Volumen in Kubikmetern
2231 m3
Grundstücksgröße
771 m2
Einrichtungen
Mechanische ventilatie
Airconditioning
Dakraam
Zonnepanelen
Natuurlijke ventilatie
In centrum
In woonwijk
Baerz & Co Property Brochure

Broschüre

Videos

Grundrisse

Helmig Makelaardij en Taxatieburo o.z. B.V.

Dorpsstraat 107
4661 HN Halsteren

info@helmigmakelaardij.nl
+31 164-685925

www.helmigmakelaardij.nl

Information / Besichtigungsanfrage

Tristan Helmig profile image
Tristan Helmig
Makelaar / Taxateur

Kauf einer Luxusimmobilie in Lepelstraat

Lepelstraat spricht all jene an, die Diskretion, ein ruhiges Umfeld und Traditionsbewusstsein schätzen, unterstützt durch professionelle Beratung und eine enge Gemeinschaft. Das Dorf zieht internationale Käufer an, die nach anspruchsvollen Immobilien und authentischem Landleben suchen.