LEIDEN
Dwars Koornbrugsteeg 8 - 2311 EL
Die Niederlande

Michiel de Jong RM profile image
Michiel de Jong RM
NVM Register Makelaar - Partner
€1,375,000 k.k.
Wohnbereich
332m2
Grundstücksgröße
204m2
Schlafzimmer
8

Beschreibung

A beautiful home in a prime location with a stunning view!

This beautiful monumental property is located in the heart of Leiden. Originally, the house consisted of two front houses overlooking the Rhine and a rear house with an alleyway entrance. The current owners have combined them into one, offering a wealth of possibilities. Not only in terms of living space, but also in terms of layout:

- There are no fewer than seven bedrooms, five of which each have their own bathroom. No queues for showers in the morning, and overnight guests can also enjoy their own time in the morning.

- Ample outdoor space, a rare commodity in the city center. In addition to the spacious roof terrace adjacent to the kitchen/diner, there are two more roof terraces.

- A paradise for food and cooking enthusiasts. Not only because of the very spacious kitchen/diner and the fully equipped second kitchen, but especially because of the location: a butcher, (French) baker, Asian grocery store, cheese shop, cooking shop, wine shops, and much more are within walking distance. And even more importantly: there's a market right outside on Wednesdays and Saturdays!

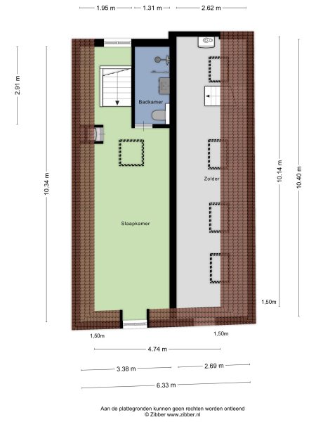
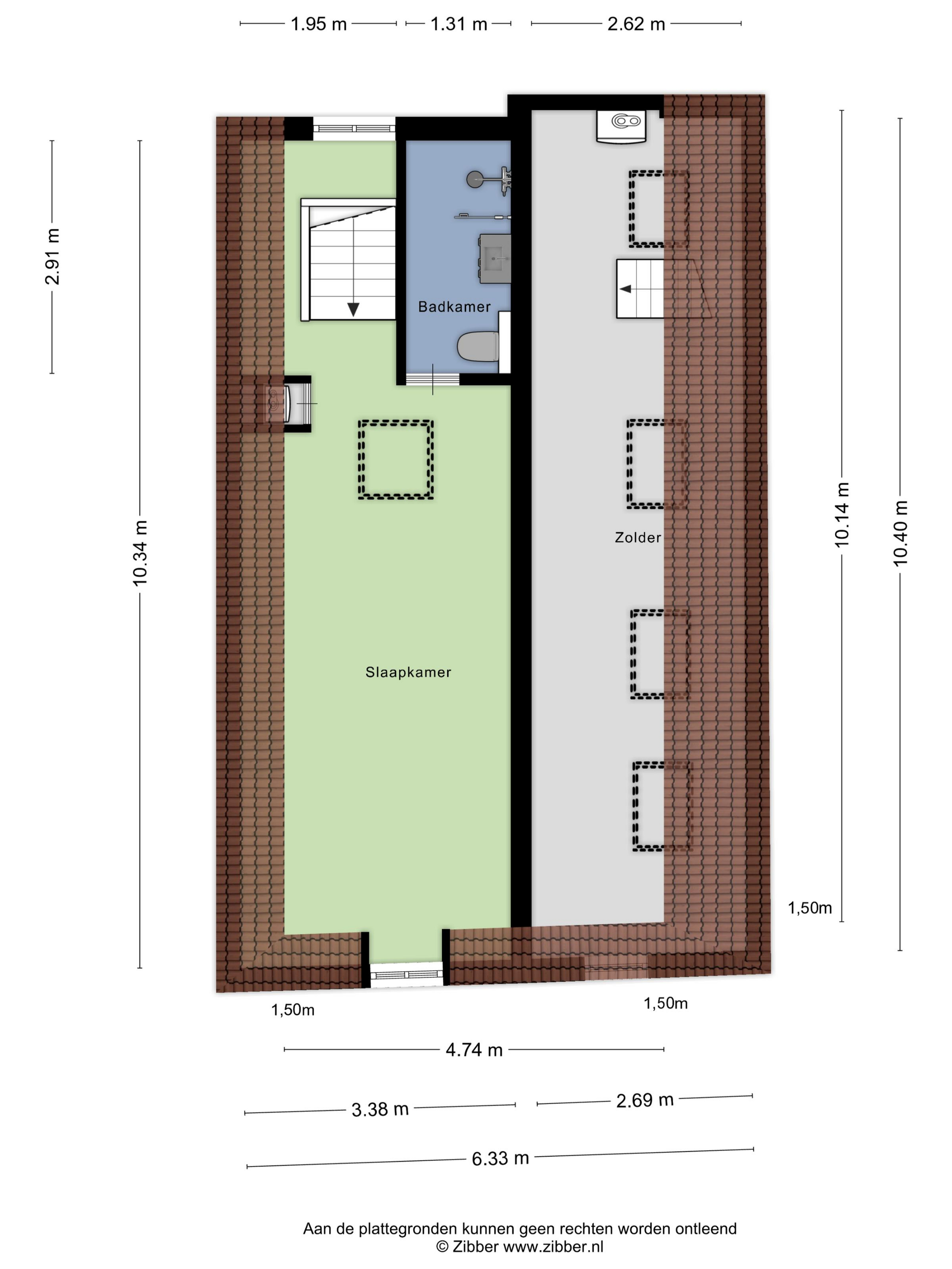
- (A great deal of) storage space. Not only is there a basement currently used as a workshop, but also a cellar. And then there's a very spacious attic. These add another dimension to the 332 m² of living space.

The house is large with spacious rooms, high ceilings, and plenty of natural light, yet it's laid out in such a way that every space feels homely. It takes a little getting used to, but that's precisely what makes the house so charming and more than worth discovering for yourself.
SPECIAL FEATURES

- National monument (subsidy options available!)
- Protected cityscape
- Ouderdomsclausule applies
- Independent technical inspection available
- The house will be converted into a single apartment by means of a Splitsingsakte

Entdecken Sie Leiden mit Baerz, Ihrem vertrauenswürdigen persönlichen Immobilienfinder und Berater

Für den Markterfolg in Leiden ist fundiertes Wissen zu lokalen Traditionen, Rechtsrahmen und diskreten Off-Market-Angeboten essenziell. Erfahrene Berater verschaffen Zugang zu exklusiven Portfolios, verhandeln geschickt und bieten ganzheitliche Unterstützung bei der Strukturierung der Transaktion. Ihr Gespür für Markttrends, ihre Fähigkeit zur Identifikation seltener Gelegenheiten und ihr umfassender Schutz der Kundeninteressen sichern entscheidende Vorteile und Ruhe während des Erwerbsprozesses.

Merkmale

Eigentumsübertragung
Verkaufspreis
€ 1.375.000 k.k.
Status
beschikbaar
Annahme
in overleg
Bau
Art des Hauses
Grachtenpand
Gebäudetyp
tussenwoning
Bauzeitraum
1650
Dachtyp
samengesteld dak
Schlafzimmer
8
Badezimmer
5
Flächen und Volumen
Wohnbereich
332 m2
Andere Innenräume
49 m2
Außenbereich am Gebäude
26 m2
Volumen in Kubikmetern
1400 m3
Grundstücksgröße
204 m2
Einrichtungen
Mechanische ventilatie
Tv kabel
Rookkanaal
Glasvezel kabel
Aan water
In centrum
In woonwijk
Vrij uitzicht
Baerz & Co Property Brochure

Broschüre

Videos

Grundrisse

Graal Makelaardij

Rapenburg 4
2311 EV Leiden

info@graalmakelaardij.nl
+31 (0)71 51 61 000

www.graalmakelaardij.nl

Information / Besichtigungsanfrage

Michiel de Jong RM profile image
Michiel de Jong RM
NVM Register Makelaar - Partner