Herenhuis zu verkaufen in KRIMPEN AAN DE LEK

KRIMPEN AAN DE LEK Dorpsstraat 12 - 2931 AE Niederlande


Xandra Bek profile image
Xandra Bek
Real Estate Agent
+31 653634909
xbek@vanherk.nl

Van Herk Makelaars Excellent
Oudehoofdplein 4
3011 TM Rotterdam
NETHERLANDS
+31 102581855
www.vanherk.nl/excellent/
excellent@vanherk.nl

Wohnbereich
511m2
Grundstücksfläche
1425m2
Schlafräume
5

Beschreibung

VERY CHARACTERISTIC MANSION WITH ENDLESS POSSIBILITIES

Are you a lover of character, history, and space? Then Dorpsstraat 12 in Krimpen aan de Lek might be exactly what you're looking for. This detached mansion, dating back to 1650, radiates authenticity and, with its former coach house, beautiful conservatory, separate garage, and impressive walled garden, offers countless possibilities to combine living and working. With over 500 m² of living space, approximately 1,870 m³ in volume, and a 1,425 m² plot, there is an abundance of space for a home with a shop, a large family, a B&B, or a home-based practice.

A HOME FULL OF HISTORY AND AUTHENTIC DETAILS

Step into a house where you can feel the history. The vestibule with mosaic floor and cut-glass door, the imposing staircase, original granito floors, antique fireplaces, decorative ceilings, and the beautiful Art Deco conservatory and garage—all breathe the charm of a bygone era.
In addition to these stunning details, essential modern upgrades have been made, including new roofing and zinc work, replacement window frames with HR++ glass, 23 solar panels (2023), and a new Nefit HR combi boiler (2025).

SELLER’S WORD
We have thoroughly enjoyed the beautiful years spent in this unique, historic property.
Both privately and professionally, we’ve created unforgettable memories here.
The house exudes character, warmth, and inspiration.
We hope the new residents will experience as much happiness here as we have.
A place to come home to, to dream, and to make new memories.

SPACE FOR EVERYONE AND EVERY PURPOSE

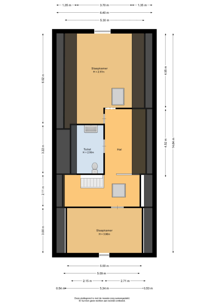
The house has a very practical layout spread over multiple levels.
At dike level, you’ll find the charming living room with fireplace and ceiling mural, a dining room connected to the stunning conservatory via sliding doors, a bedroom, and a bathroom with an antique bathtub.
The first floor offers spacious bedrooms, including one with its own pantry and views of the river Lek — perfect for a B&B or private apartment.
The second floor features a large, atmospheric attic room with new windows.
In the basement, there’s a country-style kitchen, a cozy garden room with French doors to the garden, several cellar rooms, and a wine cellar.
The current retail space spans 250 m² across the ground floor and part of the upper levels, but the property is also perfectly suited for other uses.
Think of a charming B&B or guest house, a prestigious office, a welcoming practice at home, or simply as a wonderfully spacious family residence.

WALLED GARDEN WITH PRIVATE FINNISH COTTAGE

The walled garden is an oasis of peace and harmony, perfectly in tune with the grandeur of the home.
Characterful chestnut trees, winding gravel paths, a pond, and several terraces create a unique experience.
At the back of the garden, there’s a Finnish cottage with a fireplace — an ideal spot to relax or entertain guests.
The garden also has a convenient side exit leading to adjacent parking spaces and the footpath to nearby shops and schools.

LIVING IN THE HEART OF KRIMPEN AAN DE LEK

Dorpsstraat 12 is located in the historic village center of Krimpen aan de Lek.
Here, you live in a central location with all amenities within walking distance: schools, shops, restaurants, and public transport are just steps away.
The ferry to Kinderdijk and Ridderkerk is also nearby.
Krimpen aan de Lek combines the charm of a village with the proximity to cities like Rotterdam, Gouda, and Dordrecht.
The surrounding area offers endless opportunities for walking and cycling along the Lek dike and through the green landscape of the Krimpenerwaard.
A perfect place for families, entrepreneurs, and those seeking tranquility — with quick access to the Randstad.

KEY FEATURES:

Asking price: € 1,495,000 (costs for buyer)

Volume: approx. 1,870 m³

Living area: approx. 500 m²

Plot size: 1,425 m² of private land

Year built: Originally 1650, with extensions in 1850 and 1920

Number of floors: 4

Number of rooms: 12+

Bedrooms: 6+

No energy label required due to monument status

Delivery: In consultation

Curious about this truly unique property with so many possibilities?
We’d be delighted to give you a personal tour of this special place!

Eigenschaften

Übertragung
Preisvorstellung
€ 1.495.000 k.k.
Status
beschikbaar
Akzeptanz
in overleg
Bauwesen
Typ des Wohnhauses
Herenhuis
Art der Konstruktion
vrijstaande woning
Jahr der Errichtung
1650
Energieklasse
E
Typ des Daches
samengesteld dak
Schlafräume
5
Bäder
3
Fläche und Inhalt
Wohnbereich
511 m2
Andere Innenräume
0 m2
Externer Speicherplatz
38 m2
Inhalt
1873 m3
Grundstücksfläche
1425 m2
Anlagen
Rookkanaal
Dakraam
Glasvezel kabel
Zonnepanelen
In centrum
Vrij uitzicht
Baerz & Co Property Brochure

Brochure

Informationen / Besichtigungsanfrage

Videos

Video Dorpsstraat 12

Fotos

Grundrisse