KOSTRENA
Kroatien

Mateja Funtek Derča profile image
Mateja Funtek Derča
Personal Property Advisor
€850,000
Wohnbereich
250m2
Grundstücksgröße
N/A
Schlafzimmer
4

Beschreibung

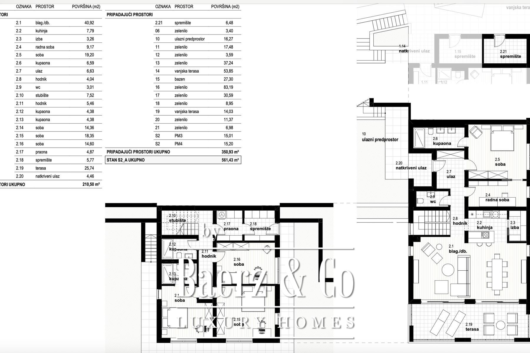
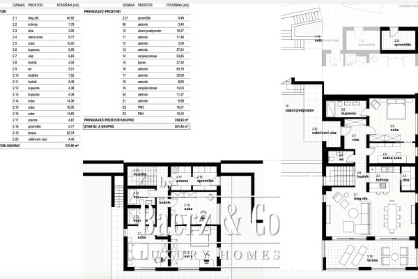
Das Apartment Kostrena setzt einen neuen Maßstab für anspruchsvolles Wohnen an Kroatiens Kvarner-Küste. Diese 250 m² große Residenz erstreckt sich über zwei Ebenen innerhalb eines modernen zweigeschossigen Gebäudes und verfügt über vier Schlafzimmer sowie weitläufige Meerblicke. Die Grundrissgestaltung ist auf Alltagstauglichkeit und unaufdringlichen Luxus ausgelegt – der 42,20 m² große Wohn- und Essbereich geht fließend in eine zeitgemäße Küche mit 7,73 m² über und schafft einen harmonischen Rahmen für gesellige Runden oder Momente der Ruhe.

Jedes der vier Schlafzimmer überzeugt mit Großzügigkeit und Ausgewogenheit, wobei das Hauptschlafzimmer 21,91 m² misst und die drei weiteren jeweils 14,20 m² groß sind. Hochwertige Details wie drei elegante Bäder, ein begehbarer Kleiderschrank, Hauswirtschaftsraum, Vorratsraum und Abstellfläche sorgen für zusätzlichen Komfort. Eine überdachte Terrasse mit 26,14 m² holt das Panorama der Adria in den Alltag, ergänzt durch weitere Terrassen im Freien und einen gestalteten Garten.

Zu den Ausstattungsmerkmalen des Apartments zählen ein privater Swimmingpool, zwei fest zugeordnete Stellplätze und ein separater Abstellraum mit 6,48 m². Hochwertige Oberflächen, Fußbodenheizung mittels Wärmepumpe, Klimaanlage, modernste Sicherheitstechnik und ALU BEN Aluminium-Fenster sowie Smart-Home-Integration bieten höchsten Komfort und Kontrolle. Mit nur 1.118 Metern Entfernung zum Meer ist der Zugang zu Stränden und Promenaden schnell gewährleistet. Die Immobilie wird schlüsselfertig, inklusive Mehrwertsteuer, angeboten; der Käufer ist von der Immobilienerwerbsteuer befreit. Das Apartment Kostrena steht für einen Lebensstil, der von Ruhe, Design und Küstennähe geprägt ist.

Entdecken Sie Kostrena mit Baerz, Ihrem vertrauenswürdigen persönlichen Immobilienfinder und Berater

Das Premiumsegment des Kostrena-Marktes ist vielschichtig und verlangt strategische Beschaffung und diskrete Verhandlung. Lokale Berater bieten wertvollen Zugang zu Off-Market-Objekten und begleiten ihre Klienten kenntnisreich durch alle regulatorischen Details sowie beziehungsbasierte Transaktionen. Ihre Kompetenz sichert optimale Bedingungen und schützt Vermögen wie Reputation während des gesamten Prozesses.

Merkmale

Eigentumsübertragung
Verkaufspreis
€ 850.000
Referenz
535186
EUR
Bau
Art des Hauses
apartment
Schlafzimmer
4
Badezimmer
4
Flächen und Volumen
Wohnbereich
250 m2
Grundstücksgröße
0 m2
Baerz & Co Property Brochure

Broschüre

Videos

Information / Besichtigungsanfrage

Mateja Funtek Derča profile image
Mateja Funtek Derča
Personal Property Advisor

Buying a Luxury Property in Kostrena

Kostrena bietet einen exklusiven Küstenlebensstil mit einer Balance aus Privatsphäre, Kultur und Zugang zu erstklassigen Dienstleistungen. Internationale Attraktivität und starke Gemeinschaftsbande verbinden sich mit anspruchsvoller Ausstattung und treffen so gezielt die Ansprüche global orientierter Käufer.