DEN ILP
Den Ilp 96 - 1127 PJ
Niederlande

Niels Eering profile image
Niels Eering
Real Estate Agent
€2,295,011 k.k.
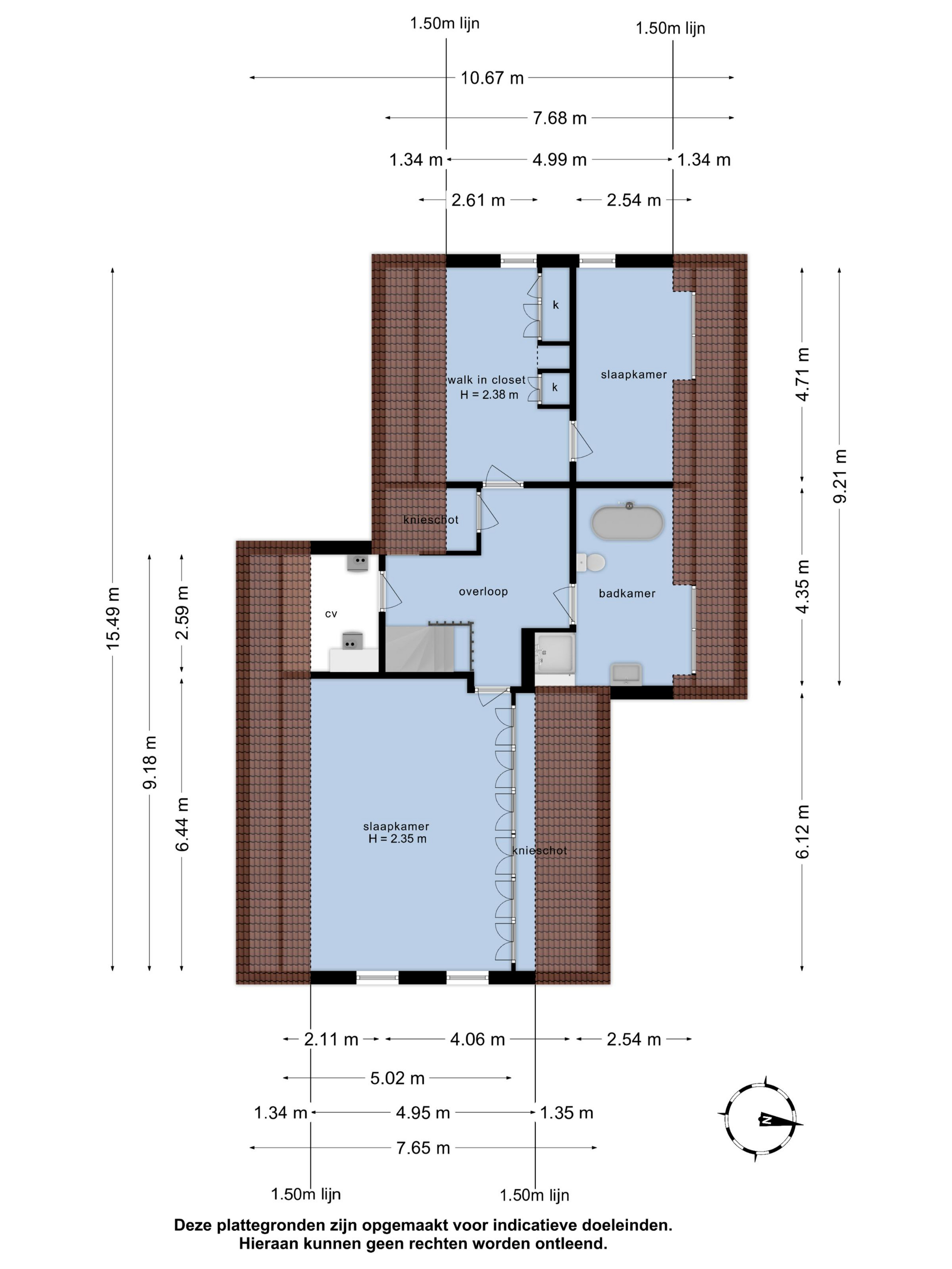
Wohnfläche
273m2
Grundstücksgröße
3835m2
Schlafzimmer
4

Beschreibung

Die Villa Den Ilp mit Gästehaus und privatem Bootshaus steht beispielhaft für außergewöhnliche Großzügigkeit und Raffinesse am ruhigen Rand von Het Twiske, nahe Amsterdam. Diese freistehende Villa befindet sich auf einem 3.835 m² großen Privatgrundstück, eingefasst von Wasser und Natur. Das Anwesen umfasst 273 m² sorgfältig instand gehaltene Wohnfläche und überzeugt durch klare Linien, hochwertige Ausstattung und entspannte Westausrichtung mit Blick ins Grüne.

Die Eingangshalle lässt Weite spüren und verbindet Wohnbereich, Wintergarten, Fernsehzimmer und eine elegante Küche mit großzügiger Kochinsel und erstklassigen Einbaugeräten. Im ersten Obergeschoss befinden sich drei Schlafzimmer sowie ein luxuriöses Bad mit bodengleicher Dusche und Badewanne. Großzügige Fensterfronten durchfluten die Räume mit Licht und eröffnen Panoramaausblicke auf den angelegten Garten und die Gewässer.

Ein separates Nebengebäude steht dem Haupthaus in nichts nach und bietet ein zusätzliches Schlafzimmer, eine moderne offene Küche sowie eine Doppelgarage. Das Gästehaus eignet sich sowohl als Privatunterkunft, Home-Office oder Rückzugsort. Im Außenbereich rahmen ausgewachsene Bäume und elegante Terrassen das Anwesen ein, während das private Bootshaus direkten Zugang zu Amsterdams Wasserstraßen eröffnet. Die Lage schafft eine seltene Balance zwischen ländlicher Ruhe und schneller Stadtanbindung—das Zentrum Amsterdams ist in zwanzig Minuten erreichbar. Erweiterte technische Ausstattung mit mechanischer Belüftung, Alarm- und Videoüberwachungssystemen, Klimatisierung und umfassender Isolierung unterstreichen den Luxus: Die Villa Den Ilp ist ein Refugium, in dem hoher Wohnkomfort, Naturverbundenheit und luxuriöse Ausstattung kompromisslos verschmelzen.

Entdecken Sie Den Ilp mit Baerz, Ihrem vertrauenswürdigen persönlichen Immobilienfinder & Berater

Exklusivität und feine Marktmechanismen in Den Ilp erfordern erfahrene Beratung. Persönliche Immobilienberater verschaffen Zugang zu Off-Market-Angeboten und pflegen Beziehungen zu Eigentümern und Behörden. Ihre Verhandlungskompetenz schützt die Privatsphäre und optimiert Ergebnisse – besonders in einem diskreten und kulturell sensiblen Umfeld wie diesem. Hoch spezialisierte Beratung sichert, dass der Erwerb sowohl Lebensstil als auch rechtlichen Anforderungen entspricht.

Vermeiden Sie häufige Fallstricke

Internationale Käufer verschwenden oft wertvolle Zeit mit doppelten, veralteten oder irreführenden Online-Angeboten, insbesondere da fast 30% der Luxusimmobilien nie auf dem öffentlichen Markt erscheinen. Verkäufermakler vertreten die Interessen des Verkäufers, nicht die des Käufers. Selbst die Anfrage nach Informationen zu einer Immobilie kann dazu führen, dass ein Verkäufermakler Sie ohne Ihre Zustimmung als seinen „Kunden“ registriert.
Mit Baerz Property Finders & Advisors vermeiden Sie all diese Fallstricke vollständig. Wir arbeiten ausschließlich in Ihrem Auftrag, bieten unabhängige Vertretung, klare Beratung und Zugang zu allen verfügbaren Immobilien, einschließlich Off-Market-Möglichkeiten, die andere nie zu sehen bekommen.

Interessiert an einem Personal Property Advisor?

Wir zeigen Ihnen alle verfügbaren Häuser an einem Ort. Kontaktieren Sie uns gerne, um zu erfahren, wie wir Ihre Bedürfnisse erfüllen und Ihre Interessen exklusiv schützen können.

Merkmale

Alarmsystem
Klimaanlage
Eigentumsübertragung
Angebotspreis
€ 2.295.011 k.k.
Status
beschikbaar
Annahme
direct
Bau
Art des Hauses
Villa
Gebäudetyp
vrijstaande woning
Bauzeitraum
1983
Energieeffizienzklasse
C
Dachtyp
zadeldak
Schlafzimmer
4
Badezimmer
2
Oberflächen und Volumen
Wohnfläche
273 m2
Anderer Innenbereich
95 m2
Außenbereich am Gebäude angebaut
29 m2
Externer Stauraum
42 m2
Volumen in Kubikmetern
1365 m3
Grundstücksgröße
3835 m2
Einrichtungen
Mechanische ventilatie
Alarminstallatie
Rolluiken
Tv kabel
Buitenzonwering
Airconditioning
Rookkanaal
Schuifpui
Dakraam
Cctv
Aan water
Vrij uitzicht
Aan vaarwater
Baerz & Co Property Brochure

Broschüre

Videos

11 Makelaars - Waterland

Nieuwe Gouw 10-12
1121 GX Landsmeer

info@11makelaars.nl
+31 20 20 50 208

www.11makelaars.nl

Information / Besichtigungsanfrage

Niels Eering profile image
Niels Eering
Real Estate Agent

Kauf einer Luxusimmobilie in Den Ilp

Den Ilp bietet privilegierten Zugang zu stilvollem Landleben, einer einladenden Gemeinschaft und erstklassigen Dienstleistungen. Die Region zieht weltoffene Menschen an, die Wert auf Privatsphäre, Authentizität und Nähe zu kulturellen Angeboten legen.