DELFT
Oostsingel 183 - 2612 HL
Niederlande

Jan Paul van Daal profile image
Jan Paul van Daal
Real estate agent
€6,250 p.m.
Wohnfläche
322m2
Grundstücksgröße
879m2
Schlafzimmer
5

Beschreibung

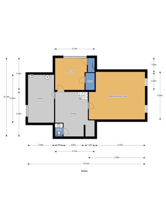
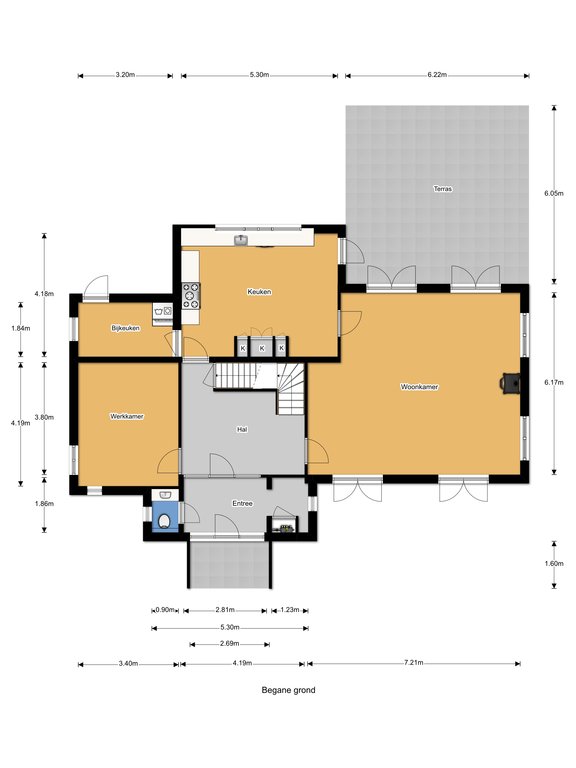
Die freistehende Villa Delft begrüßt Sie in einer stilvollen Residenz an einer ruhigen, von Bäumen gesäumten Straße nahe dem lebendigen Stadtzentrum von Delft. Diese freistehende Villa bietet 332 m² Wohnfläche mit fünf großzügigen Schlafzimmern, zwei Bädern sowie einem vollständig unterkellerten Geschoss mit Fitnessraum, Sauna und reichlich Stauraum. Jedes Detail zeugt von hochwertiger Handwerkskunst, von Fischgrätparkettböden bis zur raffinierten Siematic-Küche, ausgestattet mit erstklassigen Geräten und großzügigen Flächen.

Durch zahlreiche französische Türen fällt Tageslicht in die Wohnbereiche und verbindet sie mit dem umliegenden Garten und der 6,05 x 6,22 m großen Terrasse – einladende Bereiche zum Entspannen und für gesellige Anlässe entstehen. Auf allen Ebenen sorgt Fußbodenheizung für Wohlbefinden, ergänzt durch einen offenen Kamin und ein geothermisches Heizsystem für ganzjährigen Komfort. Auf dem Grundstück befinden sich diskret angelegte, private Stellplätze für drei Fahrzeuge. Die Villa ist vollständig eingerichtet, inklusive Vorhängen und Beleuchtung, und bereit, Mietern, die Ruhe, Großzügigkeit und Nähe zu Delfts Annehmlichkeiten suchen, ein Zuhause zu bieten.

Nur wenige Gehminuten entfernt befinden sich das Erholungsgebiet Delftse Hout und nahegelegene Sporteinrichtungen. Die International School of The Hague ist mit dem Auto in 20 Minuten erreichbar; eine neue internationale Schule wird bald in Delft eröffnet. Diese luxuriöse Villa zur Miete in Delft ermöglicht einen ausgewogenen Lebensstil, der Privatsphäre, urbanen Komfort und ein elegantes Ambiente miteinander vereint.

Entdecken Sie Delft mit Baerz, Ihrem vertrauenswürdigen persönlichen Immobilienfinder & Berater

Das Navigieren im exklusiven Delfter Markt verlangt Diskretion und tiefgehendes Fachwissen. Erfahrene Berater eröffnen Zugang zu verborgenen Off-Market-Schätzen, steuern strategische Verhandlungen und verfügen über umfassende Kenntnisse der lokalen Kultur und Regularien. Ihre Expertise ist unverzichtbar für Käufer, die außergewöhnliche Objekte und reibungslose Abläufe suchen.

Vermeiden Sie häufige Fallstricke

Internationale Käufer verschwenden oft wertvolle Zeit mit doppelten, veralteten oder irreführenden Online-Angeboten, insbesondere da fast 30% der Luxusimmobilien nie auf dem öffentlichen Markt erscheinen. Verkäufermakler vertreten die Interessen des Verkäufers, nicht die des Käufers. Selbst die Anfrage nach Informationen zu einer Immobilie kann dazu führen, dass ein Verkäufermakler Sie ohne Ihre Zustimmung als seinen „Kunden“ registriert.
Mit Baerz Property Finders & Advisors vermeiden Sie all diese Fallstricke vollständig. Wir arbeiten ausschließlich in Ihrem Auftrag, bieten unabhängige Vertretung, klare Beratung und Zugang zu allen verfügbaren Immobilien, einschließlich Off-Market-Möglichkeiten, die andere nie zu sehen bekommen.

Interessiert an einem Personal Property Advisor?

Wir zeigen Ihnen alle verfügbaren Häuser an einem Ort. Kontaktieren Sie uns gerne, um zu erfahren, wie wir Ihre Bedürfnisse erfüllen und Ihre Interessen exklusiv schützen können.

Merkmale

Alarmsystem
Eigentumsübertragung
Mietpreis
€ 6.250 p.m.
Status
beschikbaar
Annahme
in overleg
Bau
Art des Hauses
Villa
Gebäudetyp
vrijstaande woning
Bauzeitraum
2009
Energieeffizienzklasse
A
Dachtyp
zadeldak
Schlafzimmer
5
Badezimmer
2
Oberflächen und Volumen
Wohnfläche
322 m2
Anderer Innenbereich
48 m2
Außenbereich am Gebäude angebaut
42 m2
Volumen in Kubikmetern
1221 m3
Grundstücksgröße
879 m2
Einrichtungen
Mechanische ventilatie
Alarminstallatie
Beschutte ligging
Baerz & Co Property Brochure

Broschüre

Videos

Grundrisse

Van Daal Makelaardij

Voldersgracht 33
2611 ED Delft

janpaul@vandaalmakelaardij.nl
+31 (0)15 - 212 73 00

www.vandaalmakelaardij.nl

Information / Besichtigungsanfrage

Jan Paul van Daal profile image
Jan Paul van Daal
Real estate agent

Kauf einer Luxusimmobilie in Delft

Delft steht für ein außergewöhnliches künstlerisches Erbe, einen kultivierten Lebensstil und erstklassige Urbanität. Die Gemeinschaft zieht anspruchsvolle Bewohner und Investoren an und bietet individuelle Residenzen, Zugang zu exklusiven Dienstleistungen und florierende internationale Verbindungen.