BERGSCHENHOEK
Rottekade 165 - 2661 JT
Niederlande

Dominique Blom profile image
Dominique Blom
Register Makelaar Taxateur
€950,000 k.k.
Wohnfläche
123m2
Grundstücksgröße
311m2
Schlafzimmer
3

Beschreibung

Das Doppelhaus in Bergschenhoek erstreckt sich entlang der Rotte, eingebettet zwischen dem offenen Wasser und den weitläufigen Grünflächen der Rottemeren sowie des Lage Bergse Bos. Mit einer Wohnfläche von 123 m² bietet dieses Zuhause eine seltene Privatsphäre und ungehinderte Aussichten; vom nach Norden ausgerichteten Garten führt ein eigener Bootssteg direkt in das ruhige Gewässer.

Die Architektur legt den Fokus auf Licht und Großzügigkeit: Eine geräumige Auffahrt, die zur Garage und in die einladende Eingangshalle führt, empfängt Bewohner und Gäste. Das Wohnzimmer, von großen Fensterflächen erhellt, vermittelt mit Fußbodenheizung und Kamin eine ruhige Atmosphäre, während der Blick über die Rotte stets präsent bleibt. Direkt angrenzend sorgt die moderne Küche in L-Form mit integrierten Geräten – darunter Geschirrspüler, Kombi-Ofen, Kühl-Gefrier-Kombination, Induktionskochfeld und Dunstabzugshaube – für Komfort und praktischen Zugang zum Balkon, der von einer elektrischen Markise beschattet wird.

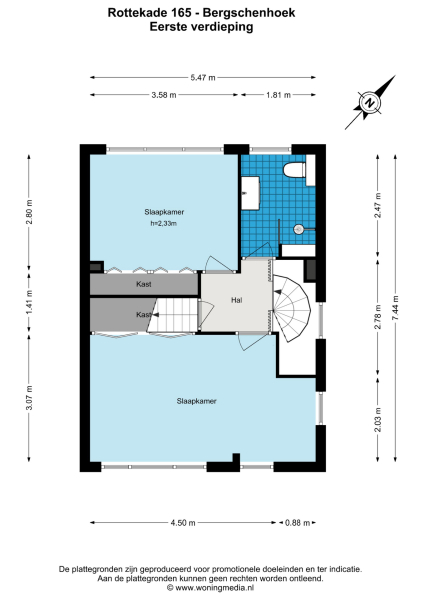
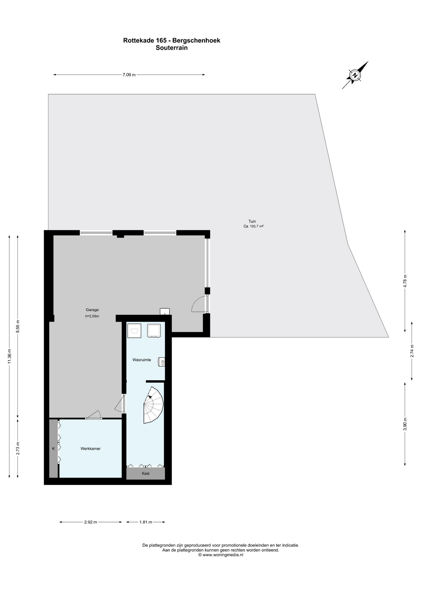
Im Obergeschoss sind drei Schlafzimmer mit Einbauschränken untergebracht, wobei das Hauptschlafzimmer von einer Klimaanlage und beruhigenden Ausblicken profitiert. Das Badezimmer ist mit einer begehbaren Dusche, einem Waschbecken und WC ausgestattet. Im Untergeschoss befinden sich praktische Räumlichkeiten wie ein großer Hauswirtschafts- und Abstellraum, mit direktem Zugang zur Garage sowie ein abgeschiedenes Büro.

Die umliegende Landschaft fördert einen aktiven Lebensstil: Ob Radfahren und Reiten durch die nahen Wälder oder Wassersport auf der Rotte – hier ist alles möglich. Die Nähe zu Cafés, Sporteinrichtungen und täglichen Versorgungsmöglichkeiten in Bergschenhoek, Ommoord und Hillegersberg unterstützt einen harmonischen Wechsel zwischen urbanem und ländlichem Lebensstil. Dieses Doppelhaus in Bergschenhoek vereint offene Naturschönheit mit durchdachtem Komfort im Innenbereich und schafft ein dauerhaftes Gefühl von Rückzug.

Entdecken Sie Bergschenhoek mit Baerz, Ihrem vertrauenswürdigen persönlichen Immobilienfinder & Berater

Der Einstieg in den oberen Immobilienmarkt in Bergschenhoek erfordert Erfahrung, lokale Marktkenntnisse und belastbare Netzwerke. Ein erfahrener Berater ermöglicht diskreten Zugang zu exklusiven Angeboten und verhandelt auch komplexe Bedingungen souverän. Ihre detailreiche Marktkenntnis ist besonders bei individuellen Bauvorhaben, Potenzialabschätzungen für Sanierungen und Bewertung der Nachbarschaft essenziell. Beratende Begleitung gewährleistet zudem eine reibungslose Koordination über rechtliche, technische und finanzielle Aspekte hinweg, auch bei anspruchsvollen Transaktionen.

Vermeiden Sie häufige Fallstricke

Internationale Käufer verschwenden oft wertvolle Zeit mit doppelten, veralteten oder irreführenden Online-Angeboten, insbesondere da fast 30% der Luxusimmobilien nie auf dem öffentlichen Markt erscheinen. Verkäufermakler vertreten die Interessen des Verkäufers, nicht die des Käufers. Selbst die Anfrage nach Informationen zu einer Immobilie kann dazu führen, dass ein Verkäufermakler Sie ohne Ihre Zustimmung als seinen „Kunden“ registriert.
Mit Baerz Property Finders & Advisors vermeiden Sie all diese Fallstricke vollständig. Wir arbeiten ausschließlich in Ihrem Auftrag, bieten unabhängige Vertretung, klare Beratung und Zugang zu allen verfügbaren Immobilien, einschließlich Off-Market-Möglichkeiten, die andere nie zu sehen bekommen.

Interessiert an einem Personal Property Advisor?

Wir zeigen Ihnen alle verfügbaren Häuser an einem Ort. Kontaktieren Sie uns gerne, um zu erfahren, wie wir Ihre Bedürfnisse erfüllen und Ihre Interessen exklusiv schützen können.

Merkmale

Klimaanlage
Eigentumsübertragung
Angebotspreis
€ 950.000 k.k.
Status
onder bod
Annahme
in overleg
Bau
Art des Hauses
Eengezinswoning
Gebäudetyp
twee onder een kapwoning
Bauzeitraum
1960
Energieeffizienzklasse
F
Dachtyp
zadeldak
Schlafzimmer
3
Badezimmer
1
Oberflächen und Volumen
Wohnfläche
123 m2
Anderer Innenbereich
69 m2
Außenbereich am Gebäude angebaut
6 m2
Volumen in Kubikmetern
628 m3
Grundstücksgröße
311 m2
Einrichtungen
Buitenzonwering
Airconditioning
Schuifpui
Aan bosrand
Aan water
Vrij uitzicht
Aan vaarwater
In bosrijke omgeving
Baerz & Co Property Brochure

Broschüre

Videos

Grundrisse

DB Makelaars

Dorpsstraat 79
2661 CE Bergschenhoek

dominique@dbmakelaars.nl
+31 107850833

www.dbmakelaars.nl

Information / Besichtigungsanfrage

Dominique Blom profile image
Dominique Blom
Register Makelaar Taxateur

Kauf einer Luxusimmobilie in Bergschenhoek

Bergschenhoek bietet eine exklusive Gemeinschaft mit maßgeschneiderten Services, grünen Landschaften und internationalem Denken – ein ideales Umfeld für alle, die Wert auf gehobenen Lebensstil und nachhaltigen Wert legen.