BERGSCHENHOEK
Oltmansstraat 17 - 2662 AA
Niederlande

Dominique Blom profile image
Dominique Blom
Register Makelaar Taxateur
€998,000 k.k.
Wohnfläche
174m2
Grundstücksgröße
635m2
Schlafzimmer
4

Beschreibung

Dieses Doppelhaus in Bergschenhoek überzeugt durch ein ausgewogenes Verhältnis von Raum und Licht und bietet 174 m² liebevoll gestalteten Wohnraum. Der sonnige, nach Westen ausgerichtete Garten wird von einem Wasserlauf flankiert, was dem Anwesen einen fließenden Rhythmus und eine Privatsphäre verleiht, die in einem Familienumfeld selten zu finden ist. Das Haus liegt ruhig am Ende einer familienfreundlichen Sackgasse und garantiert so erholsame Ruhe bei gleichzeitig schneller Erreichbarkeit des lebendigen Zentrums von Bergschenhoek.

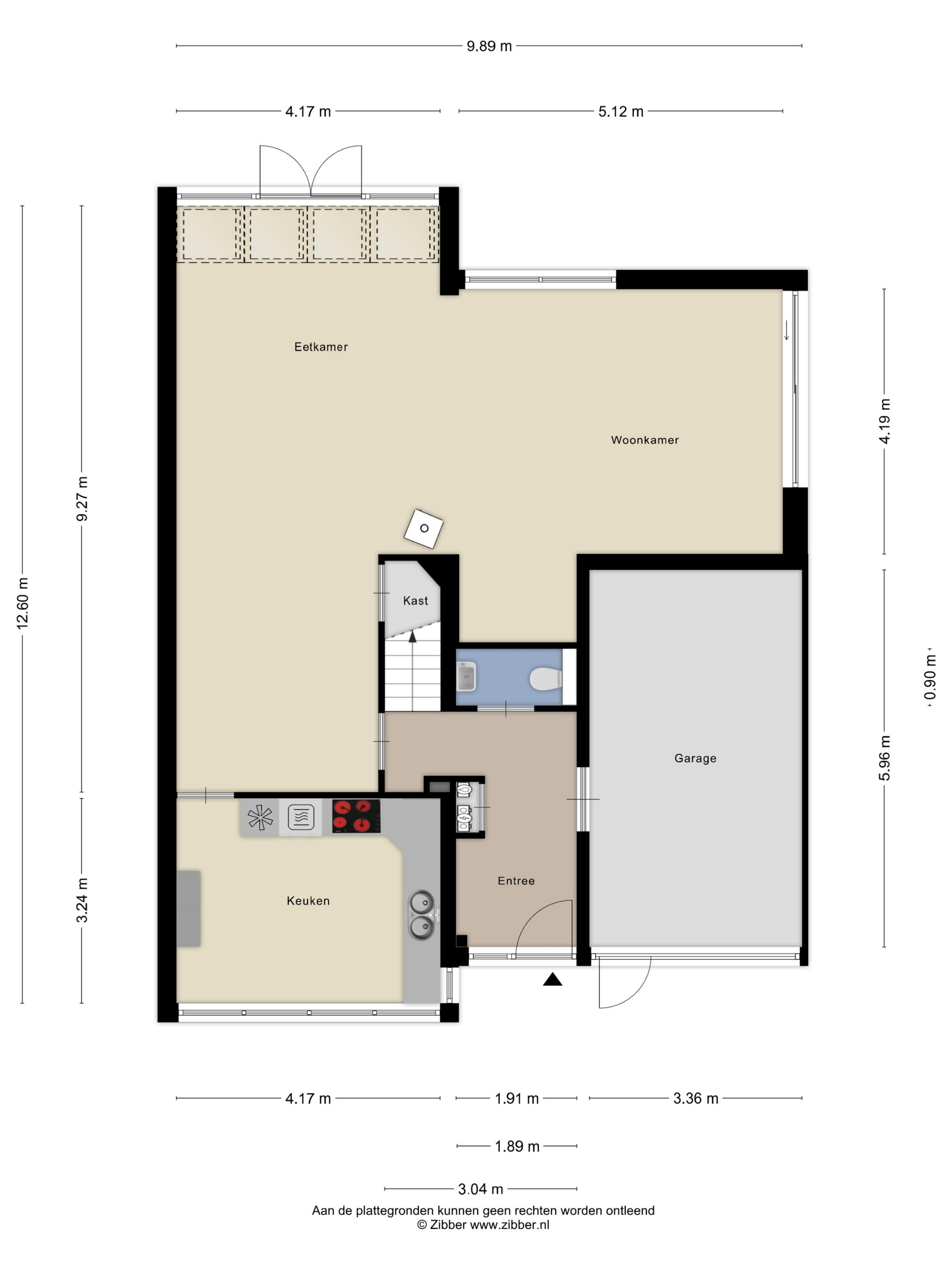
Beim Betreten empfängt Sie eine geflieste Diele, die in das großzügige Wohnzimmer führt. Hier schaffen Fußbodenheizung und bodentiefe Fenstertüren einen entspannten, lichtdurchfluteten Rückzugsort. Die kürzlich erneuerte L-förmige Küche ist mit Einbaugeräten und Doppelspüle ausgestattet und punktet mit Funktionalität und Komfort. Der direkte Zugang zur Terrasse ermöglicht einen nahtlosen Übergang zwischen Innenraum und privatem Garten.

Vier Schlafzimmer, jeweils mit französischem Balkon, bieten flexible Nutzungsmöglichkeiten für Familie oder Gäste. Das moderne Badezimmer verfügt über eine Badewanne, eine begehbare Dusche, Fußbodenheizung und sorgfältig ausgewählte Oberflächen. Stauraum und Hauswirtschaft sind im zweiten Obergeschoss optimal untergebracht, während Details wie elektrisch gesteuerte Rollläden und außenliegender Sonnenschutz den Wohnkomfort unterstreichen. Das 635 m² große Grundstück bietet eine private Zufahrt für drei Fahrzeuge sowie eine angebaute Garage. Schulen, Parks und öffentliche Verkehrsmittel befinden sich in unmittelbarer Nähe und sorgen so für einen entspannten, vernetzten Alltag. Wer in Bergschenhoek ein Doppelhaus zum Kauf sucht, findet hier ein zurückhaltend exklusives und zugleich einladendes Zuhause.

Entdecken Sie Bergschenhoek mit Baerz, Ihrem vertrauenswürdigen persönlichen Immobilienfinder & Berater

Der Einstieg in den oberen Immobilienmarkt in Bergschenhoek erfordert Erfahrung, lokale Marktkenntnisse und belastbare Netzwerke. Ein erfahrener Berater ermöglicht diskreten Zugang zu exklusiven Angeboten und verhandelt auch komplexe Bedingungen souverän. Ihre detailreiche Marktkenntnis ist besonders bei individuellen Bauvorhaben, Potenzialabschätzungen für Sanierungen und Bewertung der Nachbarschaft essenziell. Beratende Begleitung gewährleistet zudem eine reibungslose Koordination über rechtliche, technische und finanzielle Aspekte hinweg, auch bei anspruchsvollen Transaktionen.

Vermeiden Sie häufige Fallstricke

Internationale Käufer verschwenden oft wertvolle Zeit mit doppelten, veralteten oder irreführenden Online-Angeboten, insbesondere da fast 30% der Luxusimmobilien nie auf dem öffentlichen Markt erscheinen. Verkäufermakler vertreten die Interessen des Verkäufers, nicht die des Käufers. Selbst die Anfrage nach Informationen zu einer Immobilie kann dazu führen, dass ein Verkäufermakler Sie ohne Ihre Zustimmung als seinen „Kunden“ registriert.
Mit Baerz Property Finders & Advisors vermeiden Sie all diese Fallstricke vollständig. Wir arbeiten ausschließlich in Ihrem Auftrag, bieten unabhängige Vertretung, klare Beratung und Zugang zu allen verfügbaren Immobilien, einschließlich Off-Market-Möglichkeiten, die andere nie zu sehen bekommen.

Interessiert an einem Personal Property Advisor?

Wir zeigen Ihnen alle verfügbaren Häuser an einem Ort. Kontaktieren Sie uns gerne, um zu erfahren, wie wir Ihre Bedürfnisse erfüllen und Ihre Interessen exklusiv schützen können.

Merkmale

Eigentumsübertragung
Angebotspreis
€ 998.000 k.k.
Status
beschikbaar
Annahme
in overleg
Bau
Art des Hauses
Eengezinswoning
Gebäudetyp
geschakelde woning
Bauzeitraum
2001
Energieeffizienzklasse
A
Dachtyp
lessenaardak
Schlafzimmer
4
Badezimmer
1
Oberflächen und Volumen
Wohnfläche
174 m2
Anderer Innenbereich
20 m2
Externer Stauraum
2 m2
Volumen in Kubikmetern
685 m3
Grundstücksgröße
635 m2
Einrichtungen
Mechanische ventilatie
Rolluiken
Buitenzonwering
Frans balkon
Glasvezel kabel
Aan water
In woonwijk
Beschutte ligging
Baerz & Co Property Brochure

Broschüre

Videos

Grundrisse

DB Makelaars

Dorpsstraat 79
2661 CE Bergschenhoek

dominique@dbmakelaars.nl
+31 107850833

www.dbmakelaars.nl

Information / Besichtigungsanfrage

Dominique Blom profile image
Dominique Blom
Register Makelaar Taxateur

Kauf einer Luxusimmobilie in Bergschenhoek

Bergschenhoek bietet eine exklusive Gemeinschaft mit maßgeschneiderten Services, grünen Landschaften und internationalem Denken – ein ideales Umfeld für alle, die Wert auf gehobenen Lebensstil und nachhaltigen Wert legen.