BERGEN (NH)
Kerkedijk 142 - 1862 BE
Niederlande

Angeline Croonen profile image
Angeline Croonen
Real Estate Agent
€4,495,000 k.k.
Wohnfläche
456m2
Grundstücksgröße
12125m2
Schlafzimmer
3

Beschreibung

Das Bauernhaus Bergen NH bietet eine seltene Gelegenheit für all jene, die zurückhaltenden Luxus und offenes, ländliches Wohnen suchen. Mit einer Wohnfläche von 456 m² auf einem großzügigen Grundstück von 12.125 m² verbindet dieses Anwesen die Nähe zum Dorfleben von Bergen mit der Ruhe eigener Wiesen. Das Bauernhaus wurde mit größter Sorgfalt renoviert und vereint alle wichtigen Annehmlichkeiten im Erdgeschoss mit einem harmonischen Übergang zwischen Wohnraum und Landschaft.

Der Eingangsbereich führt in einen großzügigen Flur. Ein Seitenflügel beherbergt zwei flexible Schlafzimmer, von denen eines sich perfekt als privates Arbeitszimmer eignet, während der andere in das weitläufige Wohnzimmer führt. Hier sorgen die imposante Deckenhöhe, eine zeitgemäße Farbgestaltung, ein Kamin und bodentiefe, französische Türen mit Blick in den Garten für Licht, Weite und eine Atmosphäre zum Innehalten oder für großzügige Gastlichkeit. Die offene Küche ist ausgestattet mit einem Boretti-Achtflammenherd, einem amerikanischen Kühlschrank mit integriertem Kaffeeautomat und Tellerwärmer, einem Backofen sowie einer Geschirrspülmaschine – jedes Detail ist sorgfältig ausgewählt und verbindet Funktion mit Genuss.

Die Mastersuite verfügt über eine begehbare Ankleide und ein offenes Bad mit Blick auf den Pool, das zusätzlich Ruhe und Erholung vermittelt. Die Empore darüber eröffnet weitere Möglichkeiten als Arbeitsplatz oder privaten Rückzugsort. Überall gewährleisten Fußbodenheizung, eine Wärmepumpe und Dämmung der Energieklasse A – am Dach, an den Wänden, am Boden und mit HR-Verglasung – ganzjährigen Wohnkomfort.

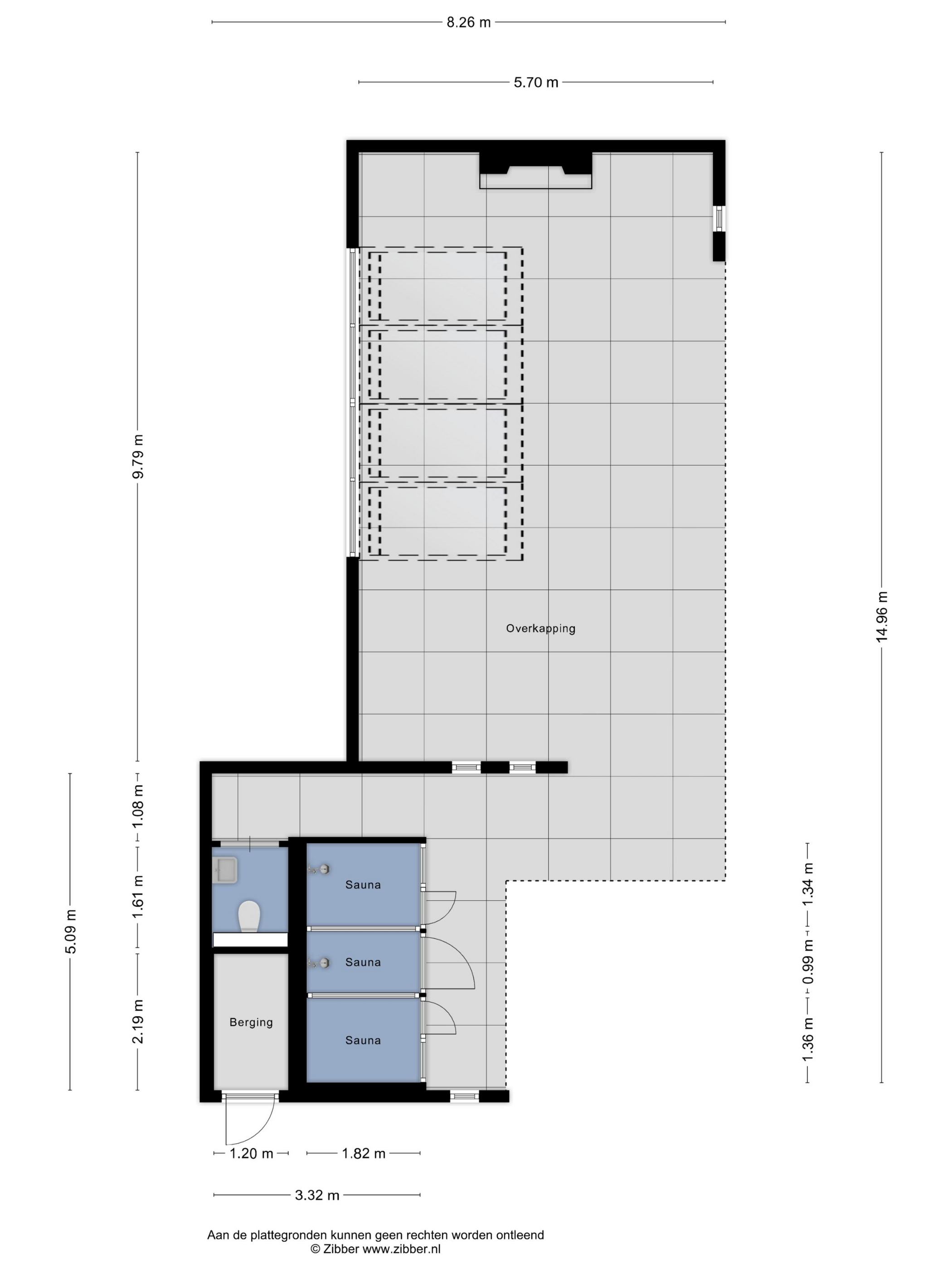
Zu den Nebengebäuden gehören ein multifunktionales Gästehaus zur Nutzung als Büro, Atelier oder Hausmeisterwohnung, eine Garage mit drei Toren und zusätzlichem Stauraum sowie ein geschützter Stall auf der hinteren Wiese – ideal für Pferdeliebhaber oder Sammler. Der Garten bietet einen Swimmingpool, Whirlpool, Sauna, Dampfbad und großzügige Loungebereiche, die private Wellness-Momente ermöglichen.

Als ausgewiesenes Provinzialdenkmal ist dieses zum Verkauf stehende Bauernhaus in Bergen NH nicht nur ein Zuhause, sondern ein friedlicher Landsitz in fußläufiger Entfernung zu den Restaurants und Geschäften von Bergen – und verbindet harmonisch Privatsphäre mit der Nähe zum Dorfleben.

Entdecken Sie Bergen (Nordholland) mit Baerz, Ihrem vertrauenswürdigen persönlichen Immobilienfinder & Berater

Der Immobilienmarkt in Bergen ist geprägt von Diskretion, lokalen Besonderheiten und exklusiven Off-Market-Angeboten. Persönliche Berater ermöglichen Zugang zu selten öffentlich ausgeschriebenen Immobilien, führen versiert durch Verhandlungen und kennen sich mit denkmalrechtlichen Aspekten bestens aus. Ihr Netzwerk eröffnet zudem Zugang zu Architekten, Juristen und bewährten Dienstleistern, sodass jeder Schritt des Erwerbs und Besitzes präzise und vertraulich begleitet wird.

Vermeiden Sie häufige Fallstricke

Internationale Käufer verschwenden oft wertvolle Zeit mit doppelten, veralteten oder irreführenden Online-Angeboten, insbesondere da fast 30% der Luxusimmobilien nie auf dem öffentlichen Markt erscheinen. Verkäufermakler vertreten die Interessen des Verkäufers, nicht die des Käufers. Selbst die Anfrage nach Informationen zu einer Immobilie kann dazu führen, dass ein Verkäufermakler Sie ohne Ihre Zustimmung als seinen „Kunden“ registriert.
Mit Baerz Property Finders & Advisors vermeiden Sie all diese Fallstricke vollständig. Wir arbeiten ausschließlich in Ihrem Auftrag, bieten unabhängige Vertretung, klare Beratung und Zugang zu allen verfügbaren Immobilien, einschließlich Off-Market-Möglichkeiten, die andere nie zu sehen bekommen.

Interessiert an einem Personal Property Advisor?

Wir zeigen Ihnen alle verfügbaren Häuser an einem Ort. Kontaktieren Sie uns gerne, um zu erfahren, wie wir Ihre Bedürfnisse erfüllen und Ihre Interessen exklusiv schützen können.

Merkmale

Schwimmbad
Solarmodule
Eigentumsübertragung
Angebotspreis
€ 4.495.000 k.k.
Status
beschikbaar
Annahme
in overleg
Bau
Art des Hauses
Woonboerderij
Gebäudetyp
vrijstaande woning
Bauzeitraum
1877
Energieeffizienzklasse
A
Dachtyp
tentdak
Schlafzimmer
3
Badezimmer
3
Oberflächen und Volumen
Wohnfläche
456 m2
Anderer Innenbereich
46 m2
Außenbereich am Gebäude angebaut
45 m2
Externer Stauraum
147 m2
Volumen in Kubikmetern
1862 m3
Grundstücksgröße
12125 m2
Einrichtungen
Mechanische ventilatie
Zwembad
Jacuzzi
Stoomcabine
Rookkanaal
Dakraam
Sauna
Zonnepanelen
Natuurlijke ventilatie
Aan rustige weg
Vrij uitzicht
Beschutte ligging
Landelijk gelegen
Baerz & Co Property Brochure

Broschüre

Videos

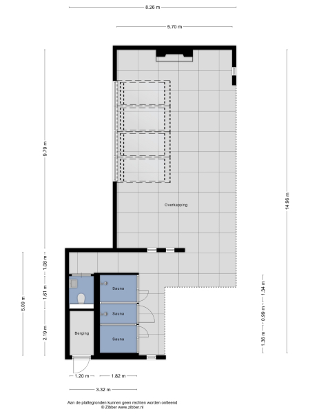
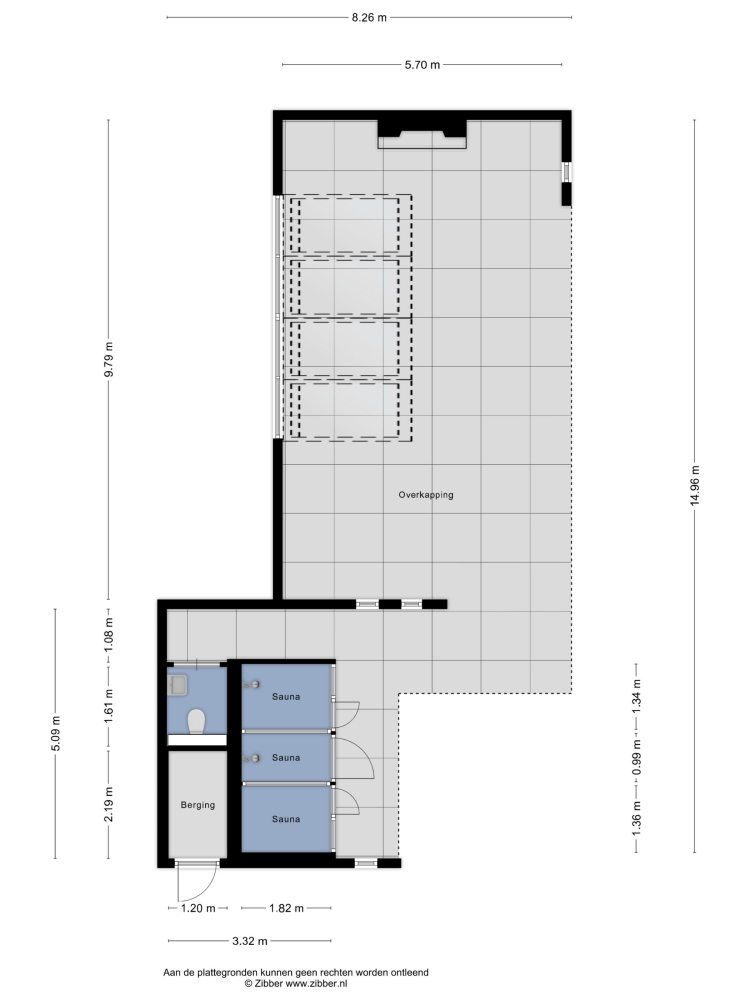
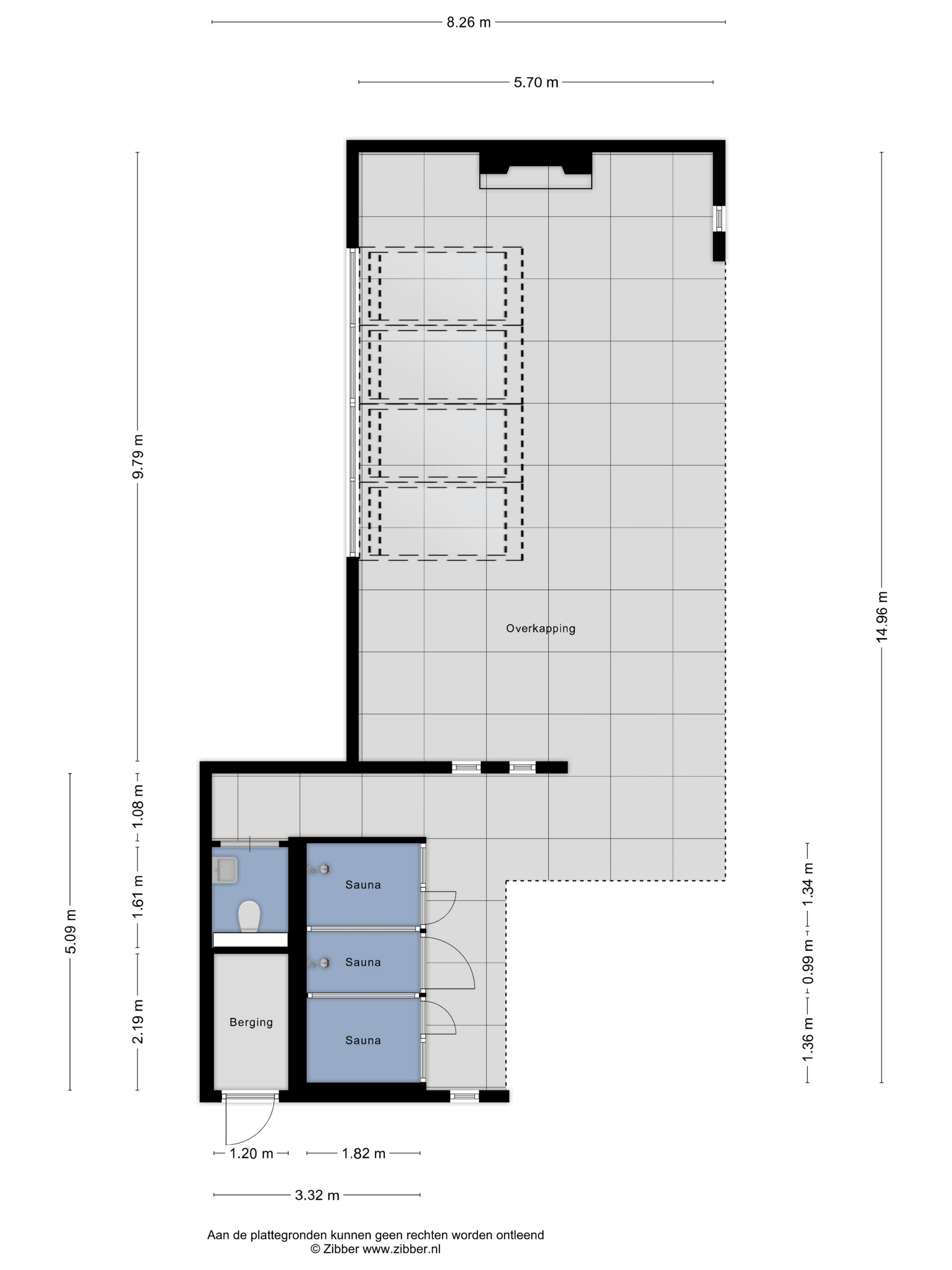
Grundrisse

Croon Makelaars

Breelaan 41
1861 GD Bergen

info@croonmakelaars.nl
+31 (0)72 743 32 44

www.croonmakelaars.nl

Information / Besichtigungsanfrage

Angeline Croonen profile image
Angeline Croonen
Real Estate Agent

Kauf einer Luxusimmobilie in Bergen (Nordholland)

Bergen vereint eine gehobene, doch einladende Gemeinschaft mit landschaftlicher Schönheit und kultureller Tiefe. Bewohner genießen erstklassige Annehmlichkeiten, maßgeschneiderte Services und ein harmonisches Miteinander von Privatsphäre und gesellschaftlicher Teilhabe – ein herausragendes Ziel für internationale Immobilieninteressenten mit hohen Ansprüchen.