BERGEN (NH)
Herenweg 57 - 1861 PB
Niederlande

Angeline Croonen profile image
Angeline Croonen
Real Estate Agent
€1,695,000 k.k.
Wohnfläche
N/A
Grundstücksgröße
9122m2
Schlafzimmer
N/A

Beschreibung

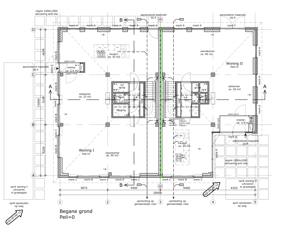
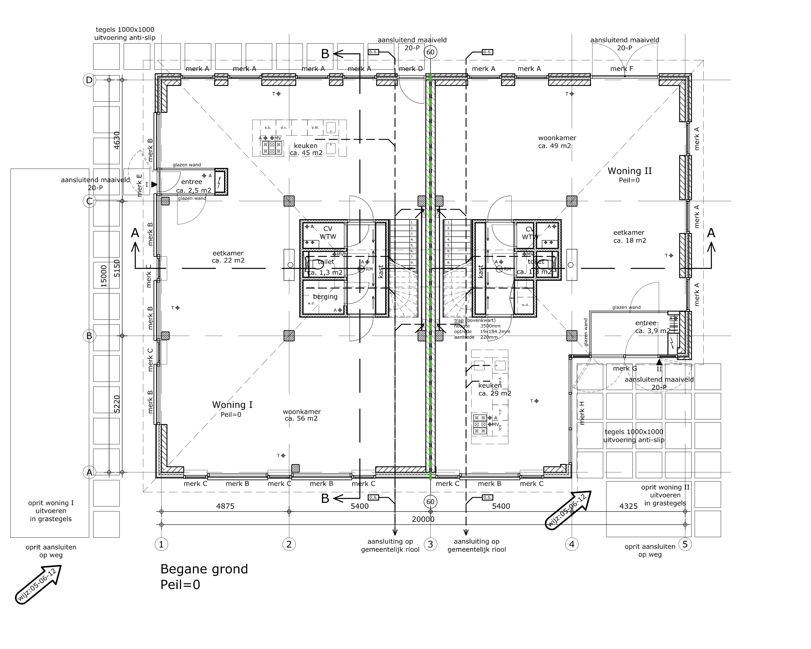
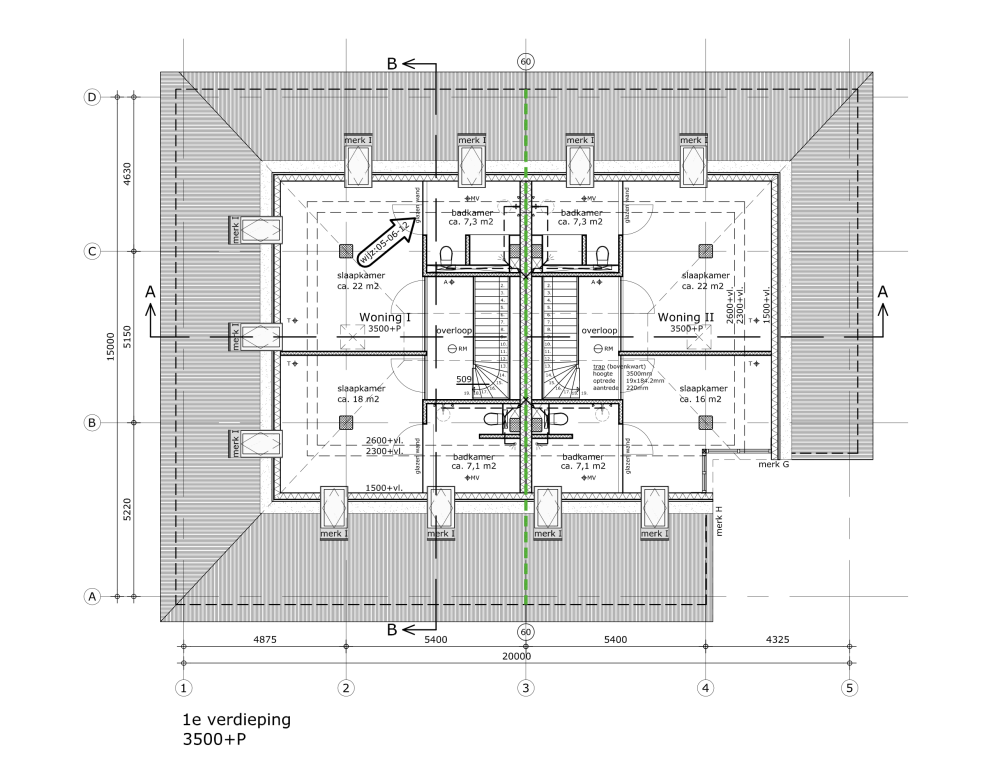
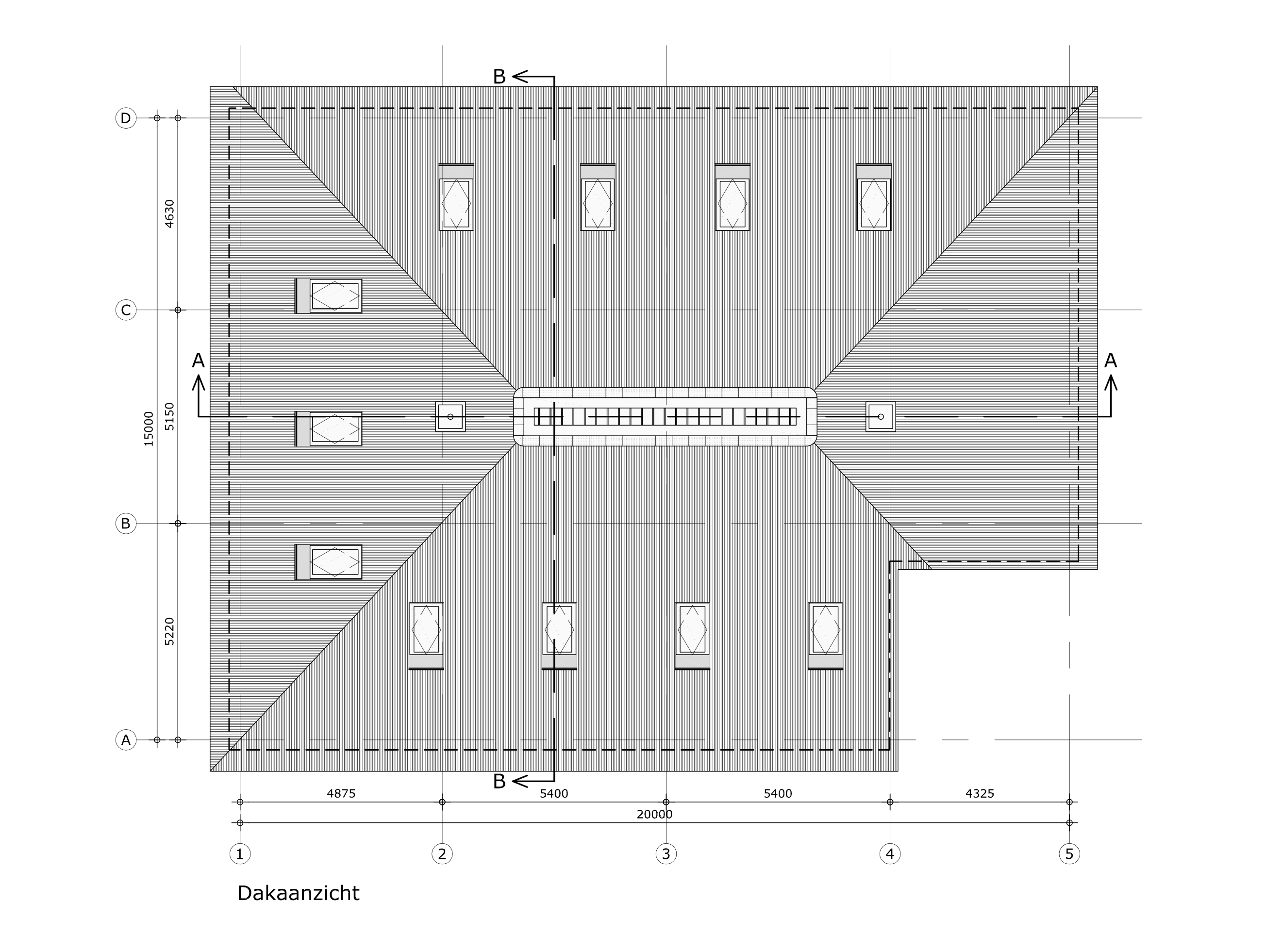
Baugrundstück in Bergen NH mit Baugenehmigung bietet eine exklusive Gelegenheit für alle, die in den Niederlanden Raum und Ruhe suchen. Das 9.122 m² große Grundstück liegt idyllisch an der Herenweg und genießt eine herausragende Lage zwischen dem lebendigen Ort Bergen und dem Küstencharme von Egmond. Genehmigte Baupläne und architektonische Zeichnungen sind enthalten, sodass der Bau eines zukünftigen Zuhauses unmittelbar umgesetzt werden kann.

Die Umgebung besticht durch freie, unverbaute Ausblicke über weitläufige Wiesen, und die ruhigen Rhythmen der Landschaft verleihen dem Alltag eine besondere Gelassenheit. Die einzigartige Verbindung aus ländlicher Privatsphäre und der bequemen Nähe zu den Ortszentren und der Küste schafft ein unverwechselbares Wohngefühl. Die Lage am Waldrand bietet direkten Zugang zu Wander- und Fahrradrouten; Dünen und Nordsee sind schnell erreichbar.

Der Entwurf des Hauses ist sorgfältig darauf abgestimmt, sich harmonisch in die Umgebung einzufügen, Licht optimal zu nutzen und Ausblicke zu maximieren. Das Grundstück wird als Gesamteinheit angeboten; eine Teilung ist möglich. Sämtliche Genehmigungen für eine reibungslose Umsetzung vom Entwurf bis zur Fertigstellung sind enthalten. Dies ist eine Einladung, ein einzigartiges Refugium mitten in der Natur zu schaffen – Offenheit, Ruhe und Zugänglichkeit vereinen sich an einem der schönsten Orte von Bergen.

Entdecken Sie Bergen (Nordholland) mit Baerz, Ihrem vertrauenswürdigen persönlichen Immobilienfinder & Berater

Der Immobilienmarkt in Bergen ist geprägt von Diskretion, lokalen Besonderheiten und exklusiven Off-Market-Angeboten. Persönliche Berater ermöglichen Zugang zu selten öffentlich ausgeschriebenen Immobilien, führen versiert durch Verhandlungen und kennen sich mit denkmalrechtlichen Aspekten bestens aus. Ihr Netzwerk eröffnet zudem Zugang zu Architekten, Juristen und bewährten Dienstleistern, sodass jeder Schritt des Erwerbs und Besitzes präzise und vertraulich begleitet wird.

Vermeiden Sie häufige Fallstricke

Internationale Käufer verschwenden oft wertvolle Zeit mit doppelten, veralteten oder irreführenden Online-Angeboten, insbesondere da fast 30% der Luxusimmobilien nie auf dem öffentlichen Markt erscheinen. Verkäufermakler vertreten die Interessen des Verkäufers, nicht die des Käufers. Selbst die Anfrage nach Informationen zu einer Immobilie kann dazu führen, dass ein Verkäufermakler Sie ohne Ihre Zustimmung als seinen „Kunden“ registriert.
Mit Baerz Property Finders & Advisors vermeiden Sie all diese Fallstricke vollständig. Wir arbeiten ausschließlich in Ihrem Auftrag, bieten unabhängige Vertretung, klare Beratung und Zugang zu allen verfügbaren Immobilien, einschließlich Off-Market-Möglichkeiten, die andere nie zu sehen bekommen.

Interessiert an einem Personal Property Advisor?

Wir zeigen Ihnen alle verfügbaren Häuser an einem Ort. Kontaktieren Sie uns gerne, um zu erfahren, wie wir Ihre Bedürfnisse erfüllen und Ihre Interessen exklusiv schützen können.

Merkmale

Eigentumsübertragung
Angebotspreis
€ 1.695.000 k.k.
Status
beschikbaar
Annahme
in overleg
Bau
Art des Hauses
Bouwgrond
Zimmer
N/A
Oberflächen und Volumen
Grundstücksgröße
9122 m2
Einrichtungen
Aan rustige weg
Vrij uitzicht
Beschutte ligging
Buiten bebouwde kom
In bosrijke omgeving
Baerz & Co Property Brochure

Broschüre

Videos

Croon Makelaars

Breelaan 41
1861 GD Bergen

info@croonmakelaars.nl
+31 (0)72 743 32 44

www.croonmakelaars.nl

Information / Besichtigungsanfrage

Angeline Croonen profile image
Angeline Croonen
Real Estate Agent

Kauf einer Luxusimmobilie in Bergen (Nordholland)

Bergen vereint eine gehobene, doch einladende Gemeinschaft mit landschaftlicher Schönheit und kultureller Tiefe. Bewohner genießen erstklassige Annehmlichkeiten, maßgeschneiderte Services und ein harmonisches Miteinander von Privatsphäre und gesellschaftlicher Teilhabe – ein herausragendes Ziel für internationale Immobilieninteressenten mit hohen Ansprüchen.