BERGEN (NH)
Groene Hof 3 - 1861 PK
Niederlande

Angeline Croonen profile image
Angeline Croonen
Real Estate Agent
€2,250,000 k.k.
Wohnfläche
202m2
Grundstücksgröße
2847m2
Schlafzimmer
2

Beschreibung

Die Barn Villa Bergen NH liegt eingebettet in die zauberhaften Wiesen von Bergen in den Niederlanden, wo sich Architektur und Landschaft in stiller Harmonie vereinen. Das Haus umfasst 202 m² wohldurchdachtes Design auf einem 2.847 m² großen Grundstück, das sich in märchenhafte Gärten, leuchtend grüne Flächen und ruhige Ausblicke entfaltet. In dieser Architektenvilla bringen bodentiefe Fenster die Natur ins Haus, öffnen den Blick weit über Wiesen und Gärten und sorgen für eine lichtdurchflutete, ruhige Atmosphäre.

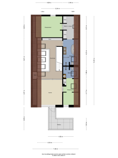
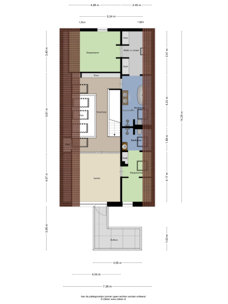
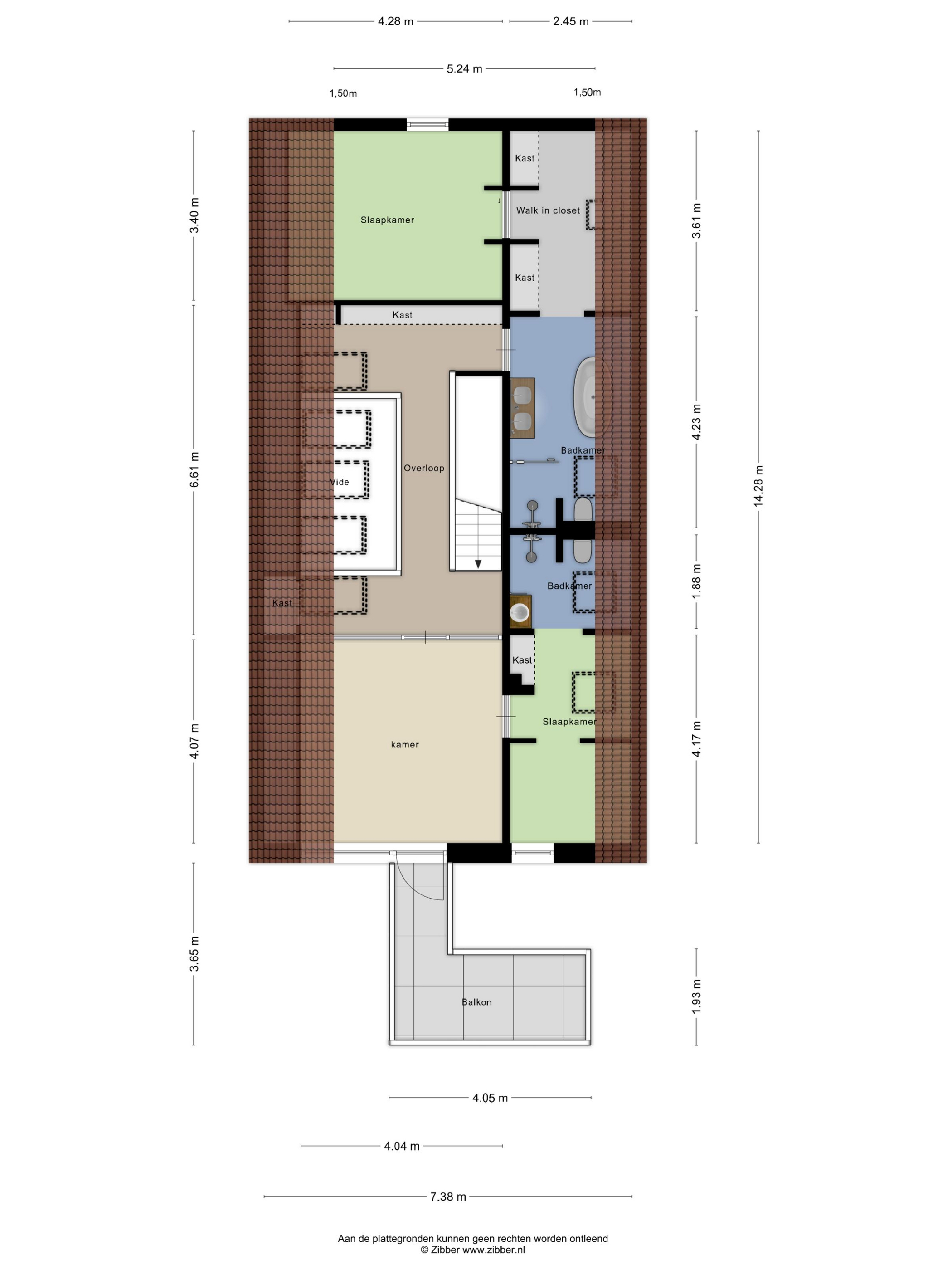
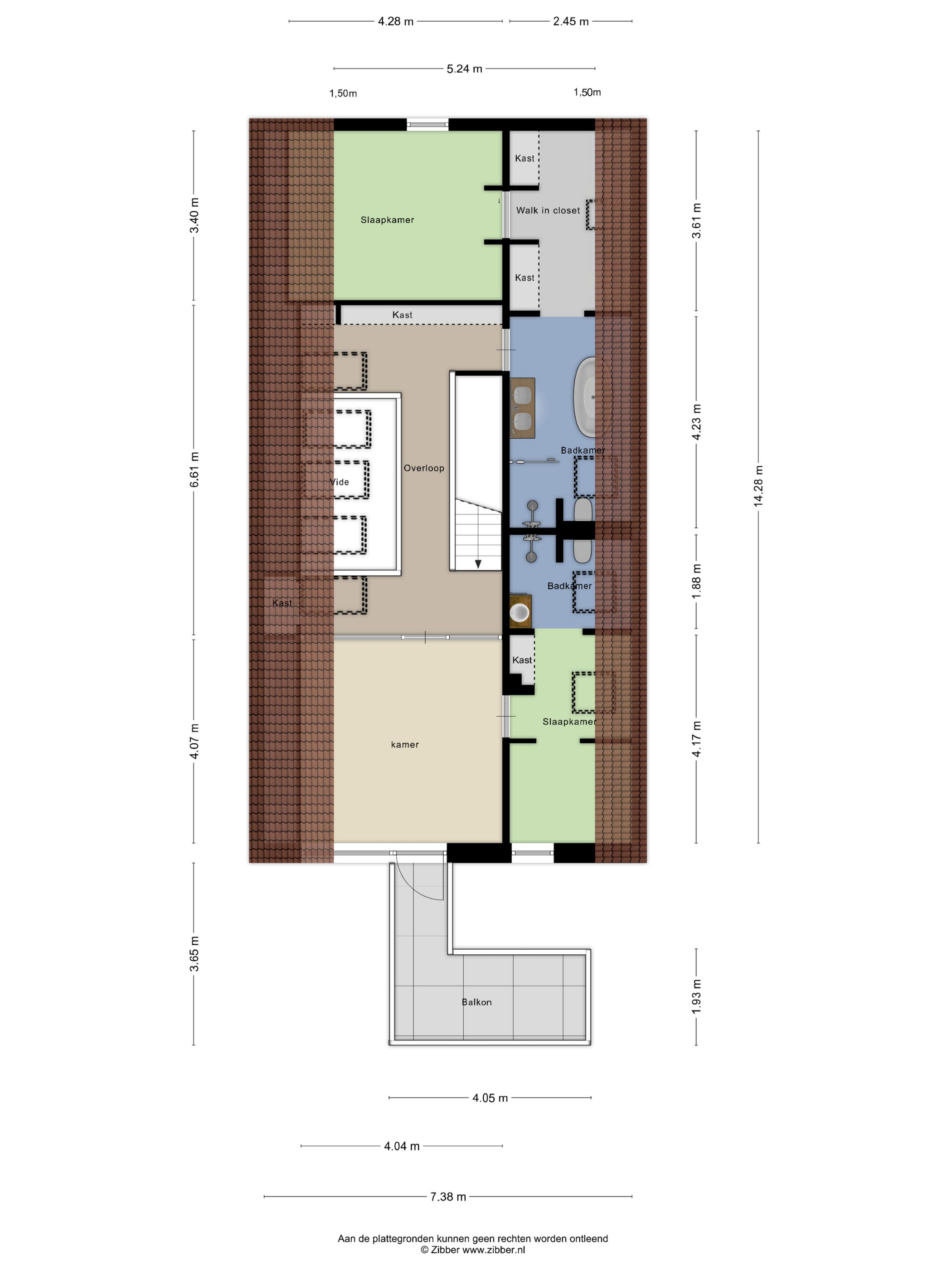
Der Eingangsbereich führt in einen offen gestalteten Wohnraum und eine voll ausgestattete Küche – ideal für alle, die Genuss am Kochen und geselligen Beisammensein finden. Der räumliche Rhythmus des Hauses wird durch eine markante Treppe bestimmt, die in das Obergeschoss leitet: Hier erwarten Sie zwei ruhige Schlafzimmer und zwei stilvolle Bäder, die auf alltäglichen Komfort zugeschnitten sind. Maßgefertigte Einbauschränke und ein separater Arbeitsplatz ergänzen das offene Loftkonzept und vermitteln ein nahtloses Raumgefühl.

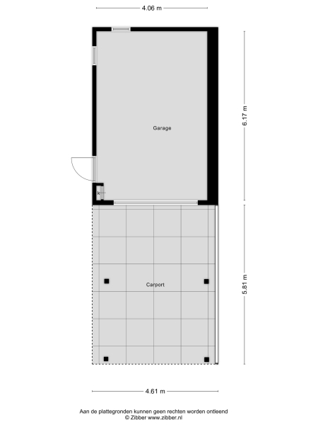
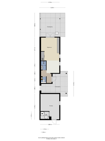
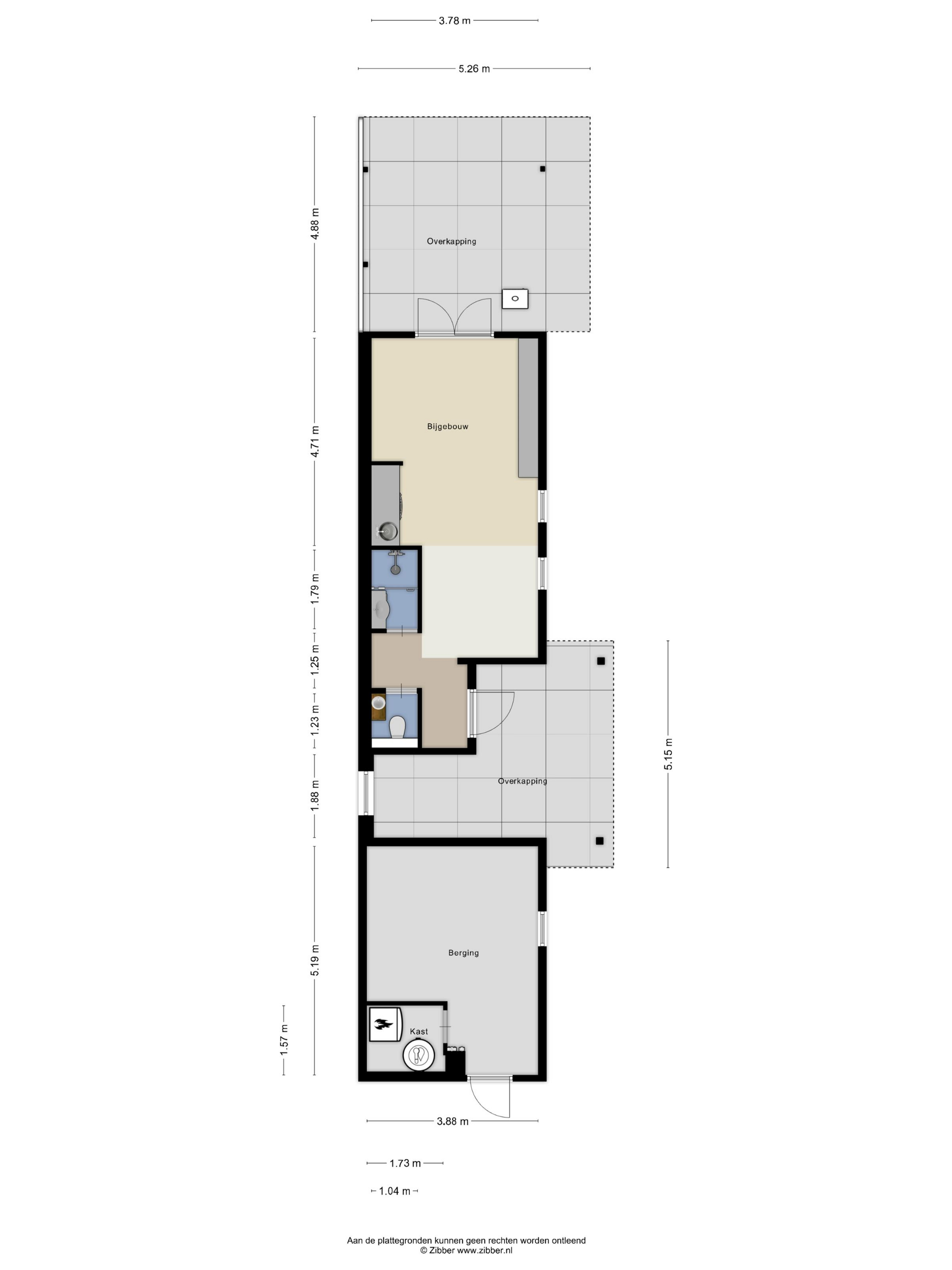
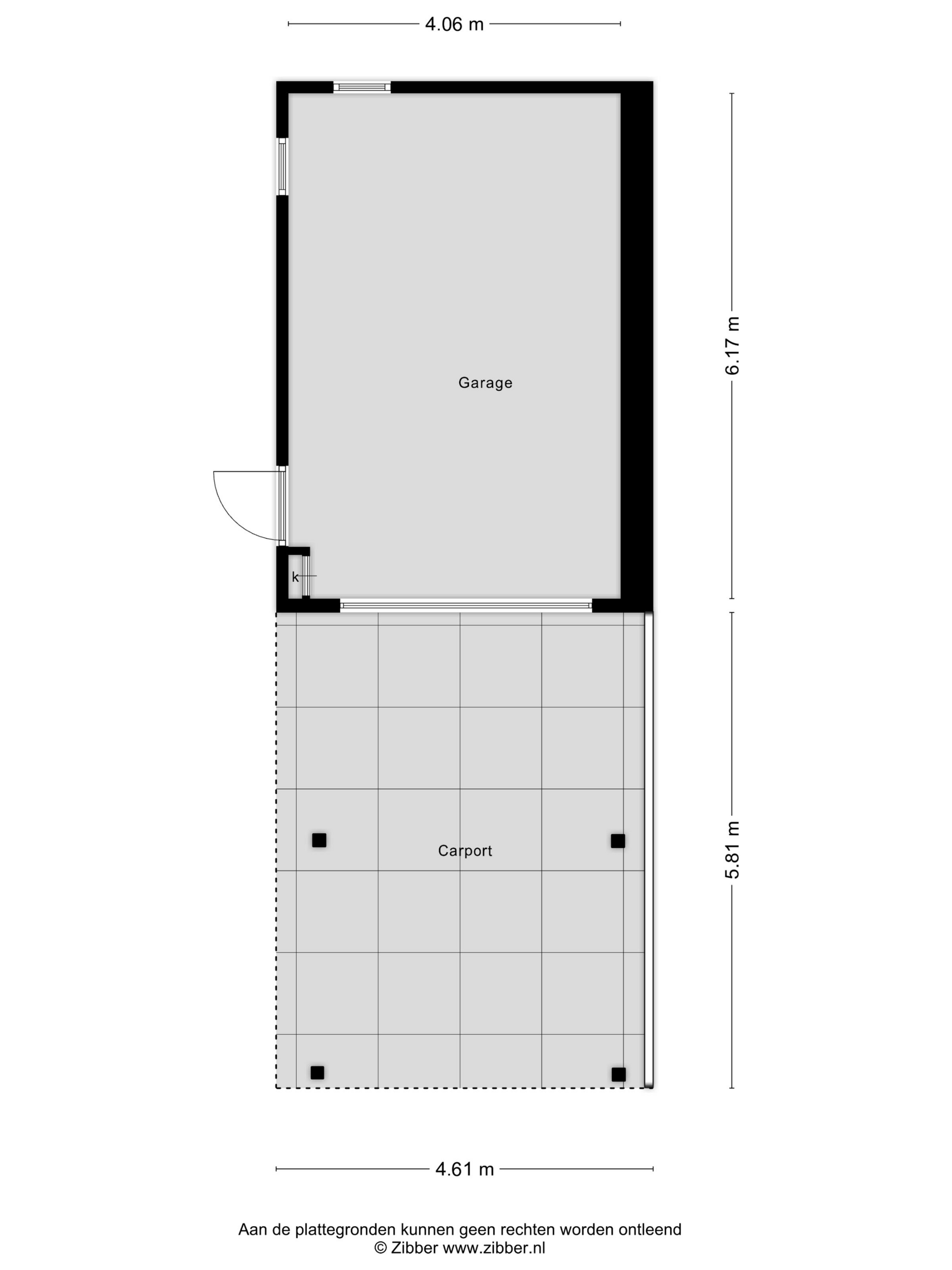
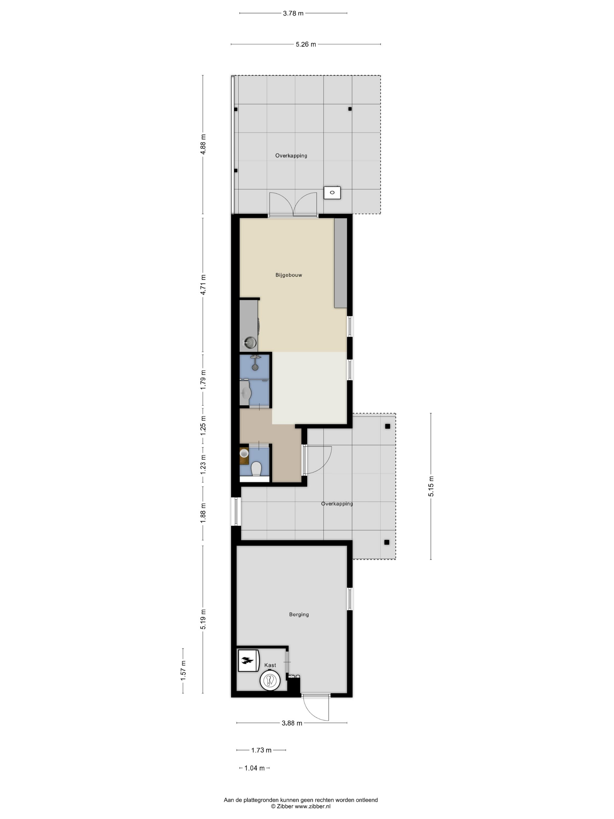
Ein multifunktionales Nebengebäude deckt flexible Bedürfnisse ab – als Atelier, Gästezimmer oder Sportbereich. Separater Garage und überdachter Carport bieten großzügigen Platz für Fahrzeuge oder Werkstatt. Die Liegenschaft ist zukunftssicher mit Energieklasse A++++, Wärmepumpe, 62 Solarpaneelen, Dreifachverglasung und Fußbodenheizung; für nahezu null Energiekosten und höchsten Komfort das ganze Jahr über.

Die gestalteten Außenanlagen bieten Rückzugs- und Inspirationsbereiche: ein Gewächshaus, Küchengarten, Hühnerstall und eine geräumige Terrasse für das Leben im Freien. Von hier schweift der Blick über eine grüne, unverbaute Weite – friedvoll und voller kontemplativer Schönheit.

Das Umfeld lädt zu regelmäßigen Spaziergängen ins lebendige Zentrum von Bergen ein; mit Cafés, Boutiquen, Schulen und Sportmöglichkeiten. Natur, Kunst und Kultur verschmelzen hier zu einer seltenen Form ländlicher Lebensqualität in den Niederlanden. Wer eine außergewöhnliche Barn Villa in Bergen NH sucht, findet hier Privatsphäre, Herkunft und nachhaltige Gelassenheit.

Entdecken Sie Bergen (Nordholland) mit Baerz, Ihrem vertrauenswürdigen persönlichen Immobilienfinder & Berater

Der Immobilienmarkt in Bergen ist geprägt von Diskretion, lokalen Besonderheiten und exklusiven Off-Market-Angeboten. Persönliche Berater ermöglichen Zugang zu selten öffentlich ausgeschriebenen Immobilien, führen versiert durch Verhandlungen und kennen sich mit denkmalrechtlichen Aspekten bestens aus. Ihr Netzwerk eröffnet zudem Zugang zu Architekten, Juristen und bewährten Dienstleistern, sodass jeder Schritt des Erwerbs und Besitzes präzise und vertraulich begleitet wird.

Vermeiden Sie häufige Fallstricke

Internationale Käufer verschwenden oft wertvolle Zeit mit doppelten, veralteten oder irreführenden Online-Angeboten, insbesondere da fast 30% der Luxusimmobilien nie auf dem öffentlichen Markt erscheinen. Verkäufermakler vertreten die Interessen des Verkäufers, nicht die des Käufers. Selbst die Anfrage nach Informationen zu einer Immobilie kann dazu führen, dass ein Verkäufermakler Sie ohne Ihre Zustimmung als seinen „Kunden“ registriert.
Mit Baerz Property Finders & Advisors vermeiden Sie all diese Fallstricke vollständig. Wir arbeiten ausschließlich in Ihrem Auftrag, bieten unabhängige Vertretung, klare Beratung und Zugang zu allen verfügbaren Immobilien, einschließlich Off-Market-Möglichkeiten, die andere nie zu sehen bekommen.

Interessiert an einem Personal Property Advisor?

Wir zeigen Ihnen alle verfügbaren Häuser an einem Ort. Kontaktieren Sie uns gerne, um zu erfahren, wie wir Ihre Bedürfnisse erfüllen und Ihre Interessen exklusiv schützen können.

Merkmale

Solarmodule
Alarmsystem
Eigentumsübertragung
Angebotspreis
€ 2.250.000 k.k.
Status
beschikbaar
Annahme
in overleg
Bau
Art des Hauses
Villa
Gebäudetyp
vrijstaande woning
Bauzeitraum
2018
Energieeffizienzklasse
A++++
Dachtyp
zadeldak
Schlafzimmer
2
Badezimmer
2
Oberflächen und Volumen
Wohnfläche
202 m2
Anderer Innenbereich
0 m2
Außenbereich am Gebäude angebaut
58 m2
Externer Stauraum
59 m2
Volumen in Kubikmetern
749 m3
Grundstücksgröße
2847 m2
Einrichtungen
Mechanische ventilatie
Alarminstallatie
Tv kabel
Rookkanaal
Schuifpui
Dakraam
Zonnepanelen
Aan water
Aan rustige weg
Vrij uitzicht
Buiten bebouwde kom
In bosrijke omgeving
Landelijk gelegen
Baerz & Co Property Brochure

Broschüre

Videos

Grundrisse

Croon Makelaars

Breelaan 41
1861 GD Bergen

info@croonmakelaars.nl
+31 (0)72 743 32 44

www.croonmakelaars.nl

Information / Besichtigungsanfrage

Angeline Croonen profile image
Angeline Croonen
Real Estate Agent

Kauf einer Luxusimmobilie in Bergen (Nordholland)

Bergen vereint eine gehobene, doch einladende Gemeinschaft mit landschaftlicher Schönheit und kultureller Tiefe. Bewohner genießen erstklassige Annehmlichkeiten, maßgeschneiderte Services und ein harmonisches Miteinander von Privatsphäre und gesellschaftlicher Teilhabe – ein herausragendes Ziel für internationale Immobilieninteressenten mit hohen Ansprüchen.