BERGEN AAN ZEE
Elzenlaan 30 - 1865 BM
Niederlande

Angeline Croonen profile image
Angeline Croonen
Real Estate Agent
€1,795,000 k.k.
Wohnfläche
126m2
Grundstücksgröße
768m2
Schlafzimmer
4

Beschreibung

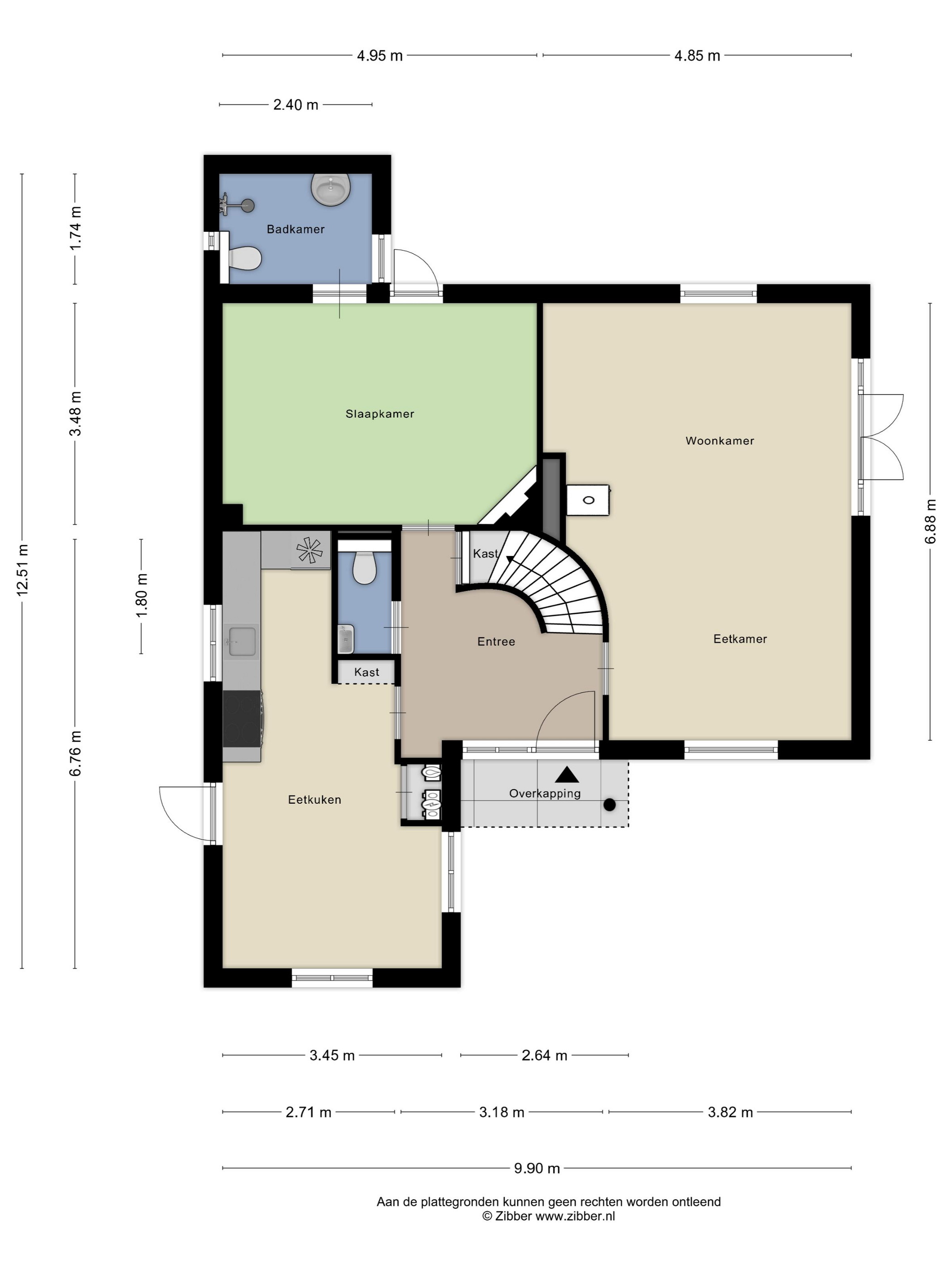
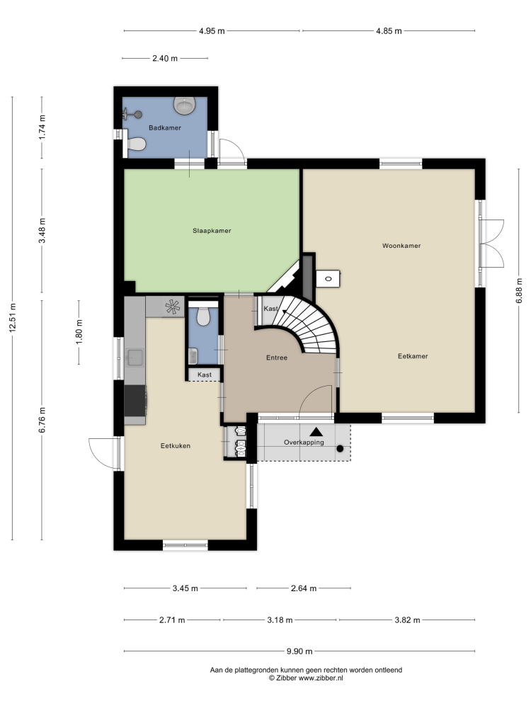
Dieses Familienhaus in Bergen aan Zee vereint unaufdringlichen Charakter und zeitlose Funktionalität an der Elzenlaan, einem Standort, der durch die Nähe zum Waldrand, zu den Dünen und zum Nordseestrand geprägt ist. Das freistehende Haus bietet 126 m² Wohnfläche auf einem 768 m² großen Grundstück und verbindet Mehrgenerationenwohnen mit Privatsphäre und gehobenem Komfort.

Im Jahr 2022 umfassend renoviert und nachhaltig aufgewertet, verfügt die Immobilie über Dach- und Doppelverglasungsdämmung, eine neue Küche sowie eine moderne Zentralheizung der Energieklasse D. Das Wohnzimmer empfängt mit originalem Holzparkett, Kaminofen und französischen Türen, die in den eingewachsenen Garten führen. Maßgefertigte Einbauten vereinen Funktionalität und Stil. Im Erdgeschoss erleichtern ein Schlafzimmer mit eigenem Bad den Zugang und bieten komfortables Wohnen auf einer Ebene.

Im Obergeschoss stehen drei Schlafzimmer jeweils mit Waschbecken und Einbauschrank bereit. Mehrere Gauben sorgen für reichlich Tageslicht. Ein zweites Bad mit Wanne, Dusche, WC und Dachfenster unterstützt das Familienleben.

Ein separates Nebengebäude, aktuell als Garage genutzt und für Freizeitzwecke ausgewiesen, erweitert die Nutzungsoptionen. Es umfasst eine Küchenzeile, ein Bad, einen Waschmaschinenanschluss sowie einen Dachboden mit separatem Zugang. Obwohl hier Modernisierungsspielraum besteht, bietet das Nebengebäude großes Potenzial für Käufer, die in Bergen aan Zee eine luxuriöse Villa mit flexibler Gästebeherbergung suchen.

In einer ruhigen, privaten Lage gelegen, eignet sich dieses Haus sowohl als dauerhafter Wohnsitz als auch als diskreter Rückzugsort – nur wenige Schritte vom Meer und dem stillen Wald entfernt.

Entdecken Sie Bergen Aan Zee mit Baerz, Ihrem vertrauenswürdigen persönlichen Immobilienfinder & Berater

Die Begleitung durch einen lokalen Berater in Bergen Aan Zee ermöglicht Einsichten in einen Markt mit ausgeprägtem Fokus auf Privatsphäre, komplexe Vorschriften und selektive Angebote. Berater verschaffen Zugang zu diskreten Objekten, schaffen vertrauensvolle Kontakte und begleiten durch sensible Verhandlungen. Ihr Know-how zu Denkmalschutz, baurechtlichen Vorgaben und Kundenbedürfnissen garantiert einen reibungslosen Erwerb im Einklang mit künftigen Zielen.

Vermeiden Sie häufige Fallstricke

Internationale Käufer verschwenden oft wertvolle Zeit mit doppelten, veralteten oder irreführenden Online-Angeboten, insbesondere da fast 30% der Luxusimmobilien nie auf dem öffentlichen Markt erscheinen. Verkäufermakler vertreten die Interessen des Verkäufers, nicht die des Käufers. Selbst die Anfrage nach Informationen zu einer Immobilie kann dazu führen, dass ein Verkäufermakler Sie ohne Ihre Zustimmung als seinen „Kunden“ registriert.
Mit Baerz Property Finders & Advisors vermeiden Sie all diese Fallstricke vollständig. Wir arbeiten ausschließlich in Ihrem Auftrag, bieten unabhängige Vertretung, klare Beratung und Zugang zu allen verfügbaren Immobilien, einschließlich Off-Market-Möglichkeiten, die andere nie zu sehen bekommen.

Interessiert an einem Personal Property Advisor?

Wir zeigen Ihnen alle verfügbaren Häuser an einem Ort. Kontaktieren Sie uns gerne, um zu erfahren, wie wir Ihre Bedürfnisse erfüllen und Ihre Interessen exklusiv schützen können.

Merkmale

Eigentumsübertragung
Angebotspreis
€ 1.795.000 k.k.
Status
beschikbaar
Annahme
in overleg
Bau
Art des Hauses
Villa
Gebäudetyp
vrijstaande woning
Bauzeitraum
1950
Energieeffizienzklasse
D
Dachtyp
zadeldak
Schlafzimmer
4
Badezimmer
2
Oberflächen und Volumen
Wohnfläche
126 m2
Anderer Innenbereich
0 m2
Außenbereich am Gebäude angebaut
3 m2
Externer Stauraum
44 m2
Volumen in Kubikmetern
467 m3
Grundstücksgröße
768 m2
Einrichtungen
Mechanische ventilatie
Tv kabel
Rookkanaal
Dakraam
Natuurlijke ventilatie
Aan bosrand
Aan rustige weg
Beschutte ligging
In bosrijke omgeving
Baerz & Co Property Brochure

Broschüre

Videos

Grundrisse

Croon Makelaars

Breelaan 41
1861 GD Bergen

info@croonmakelaars.nl
+31 (0)72 743 32 44

www.croonmakelaars.nl

Information / Besichtigungsanfrage

Angeline Croonen profile image
Angeline Croonen
Real Estate Agent

Kauf einer Luxusimmobilie in Bergen Aan Zee

Bergen Aan Zee bietet eine elegante Gemeinschaft, bekannt für Privatsphäre, natürliche Schönheit und eine lebendige Kulturszene. Käufer und Bewohner genießen stilvolles Küstenleben, unterstützt durch professionelle Beratung und ein internationales, exklusives Ambiente.