AMSTERDAM
Tweede Jan Van Der Heijdenstraat 82 1 - 1074 XX
Die Niederlande

Michiel Floberg profile image
Michiel Floberg
Real estate agent
€1,865,000 k.k.
Wohnbereich
223m2
Grundstücksgröße
N/A
Schlafzimmer
4

Beschreibung

Tweede Jan van der Heijdenstraat 82-1, 1074 XX Amsterdam

Extremely charming, bright, and spacious apartment (approx. 223 m²) spread over three floors plus a generous rooftop terrace! This expansive apartment is located on one of the most prestigious streets in De Pijp and features high ceilings, a large living room and kitchen equipped with luxury built-in appliances, four bedrooms, two balconies, a walk-in wardrobe, and a home office! The rooftop terrace (approx. 23 m²) is the perfect spot to enjoy the sun until late in the evening and offers stunning views over both the city and the Amstel River. Furthermore, the property is located on freehold land, so no ground lease applies.

Location & Accessibility

Tweede Jan van der Heijdenstraat is situated in the heart of the vibrant De Pijp neighbourhood, one of Amsterdam's most popular districts. The street lies just a stone’s throw from Sarphatipark and the famous Albert Cuyp Market, where you can find fresh produce and street food daily. In the immediate vicinity, you'll discover numerous trendy bars and restaurants such as CT Coffee & Coconuts, Brouwerij Troost, Little Collins, Spaghetteria, and De Japanner, all favourite gathering spots for locals for coffee, brunch, or dinner. The area enjoys excellent transport links: the North/South metro line is within walking distance and offers a direct connection to Central Station and the Zuidas business district. Multiple tram and bus lines also cross the neighbourhood. By bike, you can reach the city centre or Museumplein within ten minutes. Parking in this zone (South 3.1) is permit-based, but several public car parks are nearby, including the Albert Cuyp garage and Q-Park Museumplein, as well as ample paid street parking for visitors.

Layout

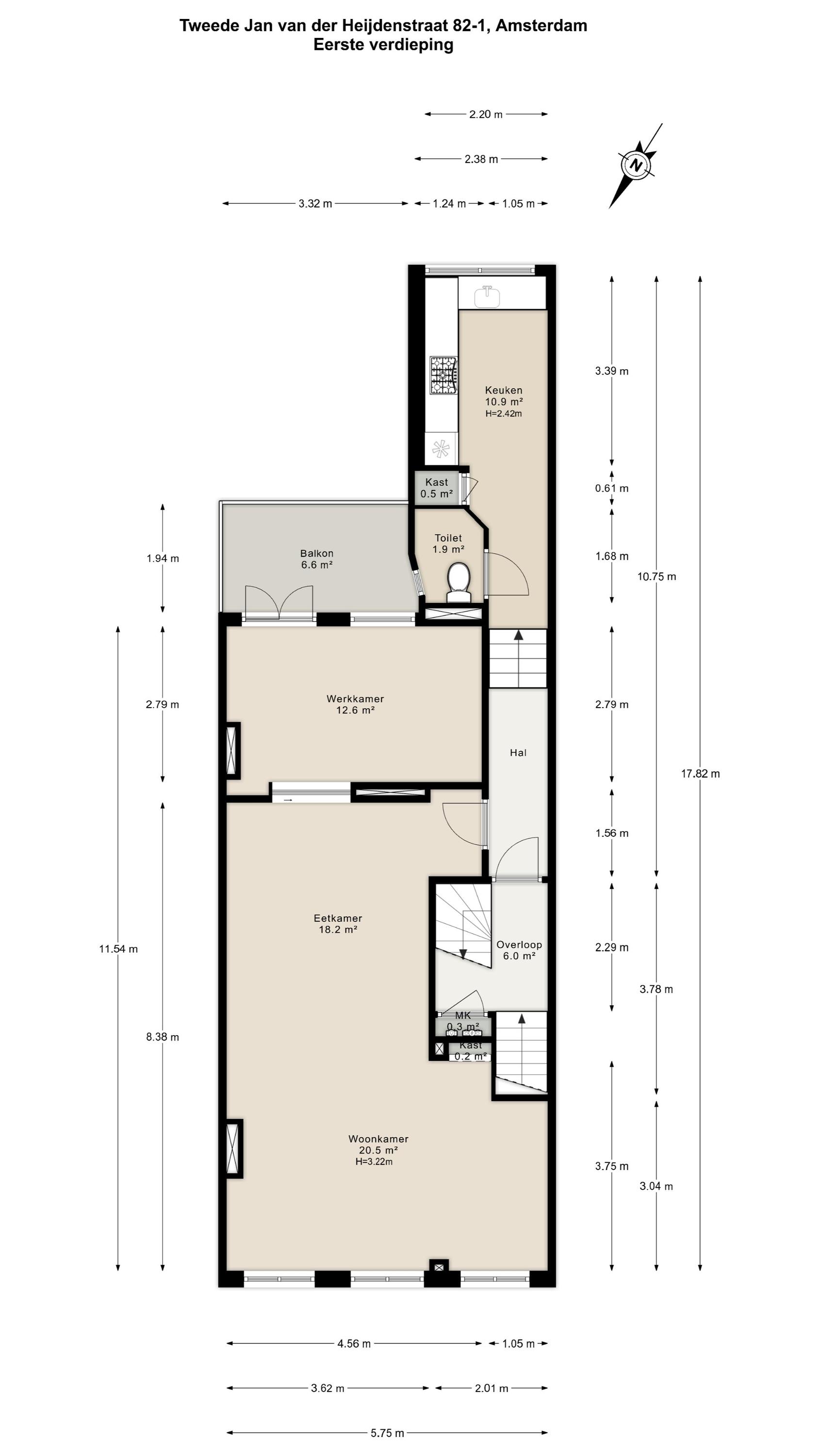
Private entrance on the ground floor, with a staircase leading up to the apartment.

First Floor

From the spacious hallway, you have access to the generous living room located at the front of the apartment. The living room boasts high ceilings with beautiful detailing and large windows; the first bedroom is en-suite. This bedroom, situated at the rear of the property, is accessible via built-in sliding doors from the living room and offers access to a deep balcony of approx. 7 m², facing south-east. The kitchen, also located at the rear, is fitted with luxury built-in appliances including a five-burner gas hob with extractor fan, a wide oven, fridge/freezer combination, and dishwasher. Electric shutters are installed along the entire rear side of the apartment. Adjacent to the kitchen is a separate toilet with washbasin and a convenient storage room.

Second Floor

A staircase leads to the landing on the second floor. At the front, you’ll find the second generously sized bedroom, complete with practical built-in wardrobes and air conditioning. This room also offers access to the spacious walk-in wardrobe of approx. 9 m², also located at the front of the apartment and accessible from the central landing. At the rear lies the master bedroom with French doors leading to a delightful balcony, again facing south-east. From the landing, you can access the raised bathroom at the rear, which includes a large bathtub, walk-in shower, double washbasin with vanity unit, a toilet, urinal, and connections for a washing machine and dryer. Electric shutters are also present at the rear on this level. The two bedrooms on this floor are connected via a central landing with ample built-in cupboards. A second staircase leads you to the third and top floor of the apartment.

Third Floor

The second staircase takes you directly into the living room on the third floor, which features a kitchenette, two large storage rooms, air conditioning, and an additional bathroom. This bathroom includes a washbasin with vanity unit, a shower, and a toilet. At the front of this floor, you'll find a fourth generously sized bedroom with an adjoining office space, both equipped with air conditioning. These rooms are accessible via the central stairwell on the right side of the property. From the living room, you can ascend to the sun-drenched rooftop terrace, where you can enjoy the sun until the late evening hours. The rooftop terrace spans more than 23 m² – a true rarity in the city!

Key Features:

- Apartment right of approx. 223 m² (measured in accordance with NEN2580 guidelines)
- Spread across three floors
- Four generously sized bedrooms
- Lovely rooftop terrace (approx. 23 m²)
- Two balconies (approx. 13 m² in total)
- Fitted with double glazing
- Located on freehold land, no ground lease
- Foundation repair 2012
- Healthy Owners’ Association, consisting of 2 members
- Long-term maintenance plan available
- Monthly service charges: €237.48
- Transfer in consultation

This information has been compiled with the utmost care. However, we accept no liability for any incompleteness, inaccuracy, or otherwise, or for the consequences thereof. All specified measurements and surface areas are indicative. The buyer has a duty to investigate all matters that may be important to him or her. Regarding this property, the estate agent acts on behalf of the seller. We advise you to engage a professional (NVM) estate agent to assist you with the purchase process. If you have specific requirements concerning the property, we recommend making these known to your purchasing agent in a timely manner and conducting your own investigations. If you choose not to engage a professional representative, you acknowledge that you are sufficiently expert by law to oversee all relevant matters yourself.

Entdecken Sie Amsterdam mit Baerz, Ihrem vertrauenswürdigen persönlichen Immobilienfinder und Berater

Der Zugang zum Luxusimmobilienmarkt von Amsterdam erfordert tiefgreifendes lokales Know-how, Diskretion und Verhandlungsgeschick. Erstklassige Berater verschaffen Zugang zu privaten Angeboten, erklären komplexe Besitzrechte und erkennen Werte in einem Markt, in dem Opportunitäten selten sichtbar werden. Beratungsteams prüfen jedes Objekt sorgfältig und vertreten Ihre Interessen souverän – sie stärken Ihre Verhandlungsposition, begleiten Transaktionen nahtlos und wahren Ihre Privatsphäre.

Besondere Merkmale

Klimaanlage

Merkmale

Eigentumsübertragung
Verkaufspreis
€ 1.865.000 k.k.
Status
beschikbaar
Annahme
in overleg
Bau
Art des Hauses
Bovenwoning
Gebäudetyp
appartement
Bauzeitraum
1880
Energieausweis
C
Schlafzimmer
4
Badezimmer
2
Flächen und Volumen
Wohnbereich
223 m2
Andere Innenräume
0 m2
Außenbereich am Gebäude
36 m2
Volumen in Kubikmetern
772 m3
Einrichtungen
Rolluiken
Buitenzonwering
Airconditioning
Natuurlijke ventilatie
Aan rustige weg
In woonwijk
Baerz & Co Property Brochure

Broschüre

Videos

Heeren Makelaars

Stadionweg 75
1077 SE Amsterdam

info@heerenmakelaars.nl
+31 204702255

www.heerenmakelaars.nl

Information / Besichtigungsanfrage

Michiel Floberg profile image
Michiel Floberg
Real estate agent