AMSTERDAM
Prof. Tulpstraat 42 - 1018 HA
Niederlande

Sander Bovenkerk profile image
Sander Bovenkerk
Real estate agent
€995,000 k.k.
Wohnfläche
101m2
Grundstücksgröße
N/A
Schlafzimmer
2

Beschreibung

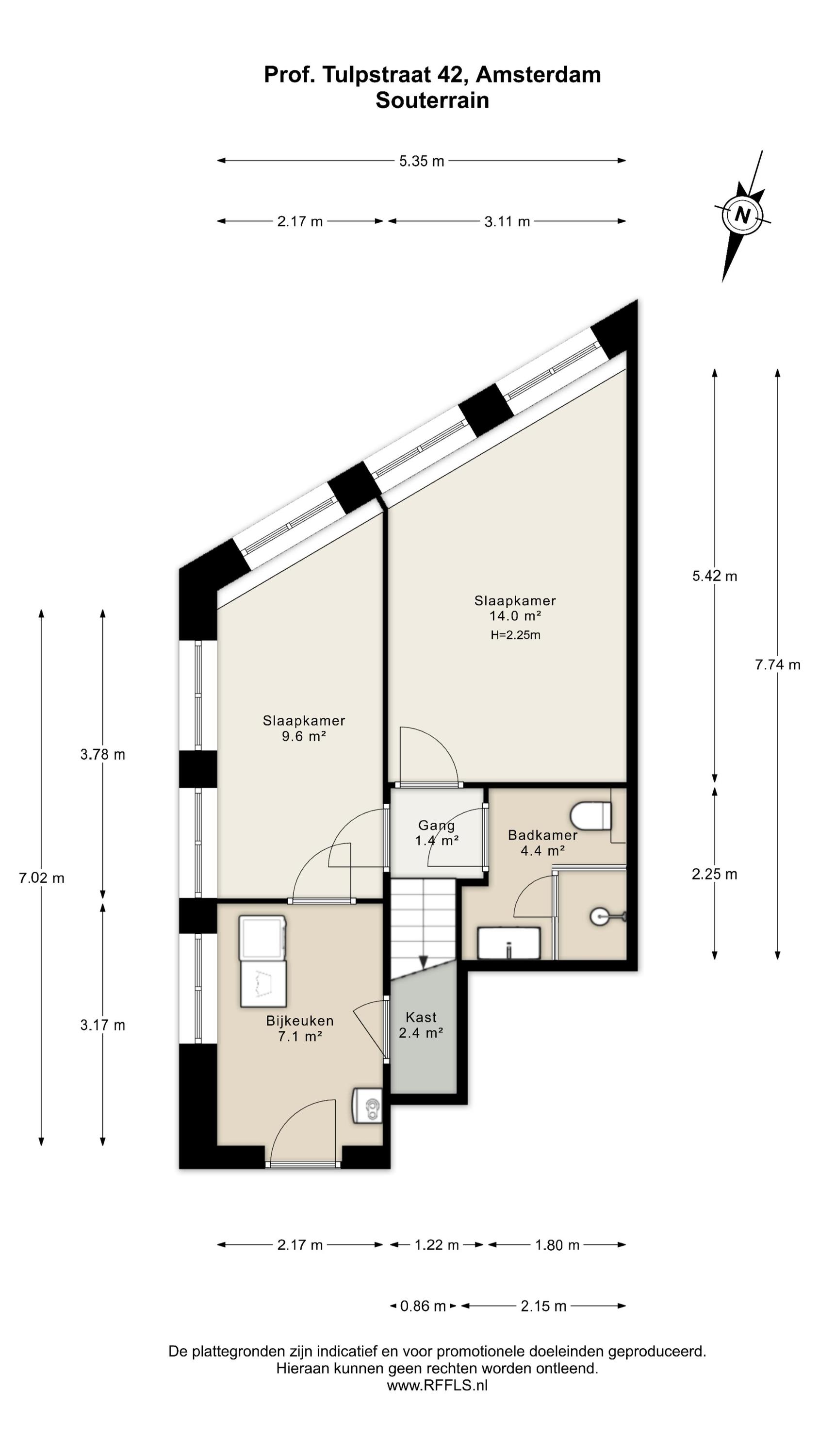
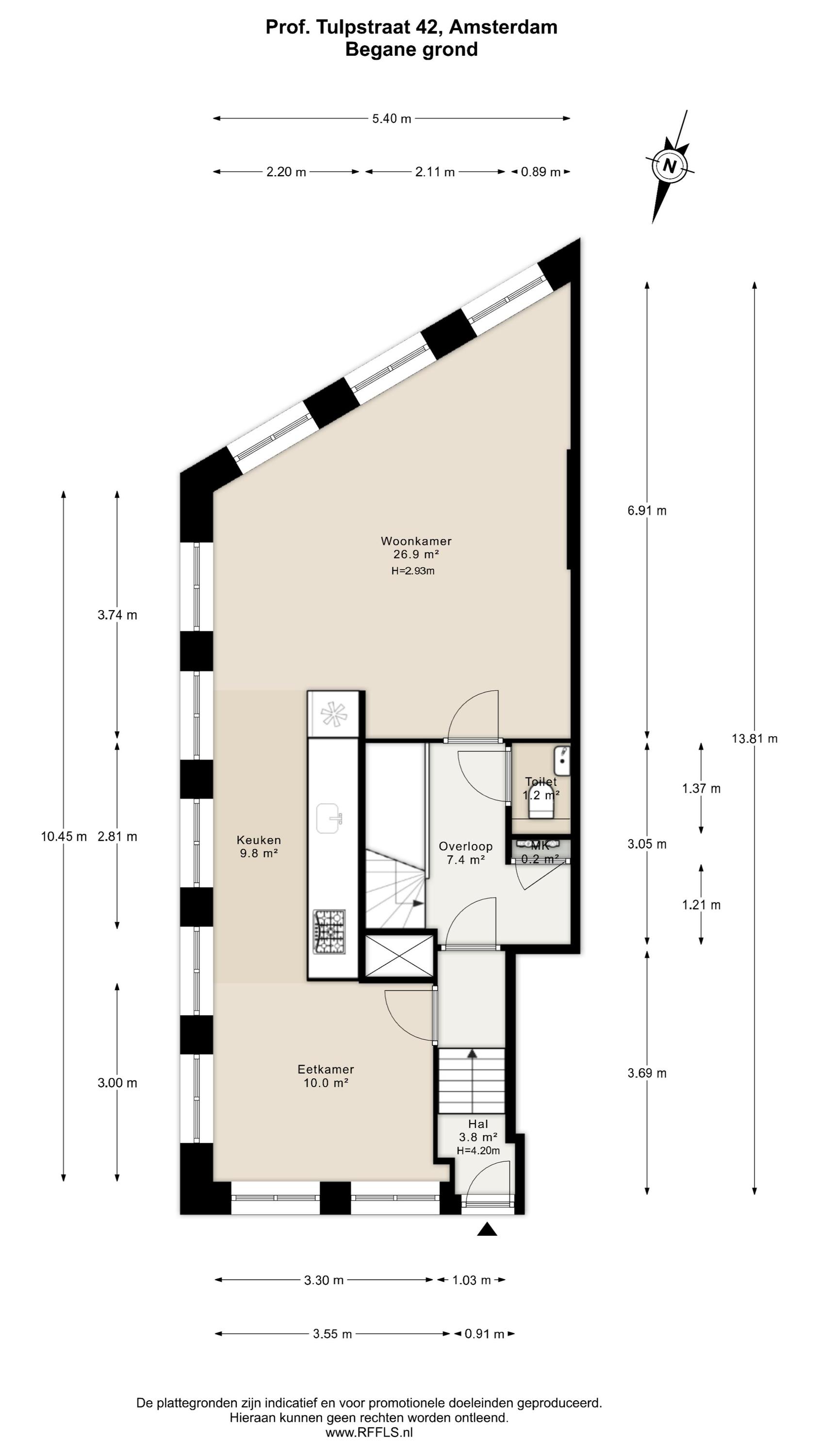
Apartment Amsterdam stands discreetly along Prof. Tulpstraat, a rare opportunity behind the Amstel Hotel on the tranquil water of the Singelgracht. This remarkable lower ground apartment, offered for the first time in over twenty years, flows across 101 m² with a souterrain. Sixteen windows infuse the dual-level residence with natural light, creating an atmosphere of openness and calm throughout the day.

A private entrance and high ceilings enhance the sense of seclusion, while expansive water views and an elegant oak floor unify the space with warmth and character. The souterrain, brightened by unusually generous windows, offers a non-traditional sense of airiness and comfort.

The main floor features a living and dining room in direct connection, anchored by a functional kitchen with modern appliances, and practical storage. Downstairs, two full bedrooms and an additional multi-purpose space share a central bathroom and separate utility room. The building itself was completed in 2006, housing only seven exclusive residences.

Set within a quiet, characterful street at the heart of Amsterdam, this apartment's outlook channels privacy, unobstructed views, and immediate access to celebrated city amenities. Notable surroundings, excellent connectivity, and an active owners association add to the enduring appeal of this unique address.

Merkmale

Eigentumsübertragung
Angebotspreis
€ 995.000 k.k.
Status
beschikbaar
Annahme
in overleg
Bau
Art des Hauses
Benedenwoning
Gebäudetyp
appartement
Bauzeitraum
1850
Energieeffizienzklasse
C
Dachtyp
zadeldak
Schlafzimmer
2
Badezimmer
1
Oberflächen und Volumen
Wohnfläche
101 m2
Anderer Innenbereich
0 m2
Volumen in Kubikmetern
395 m3
Einrichtungen
Tv kabel
Natuurlijke ventilatie
Aan water
Aan rustige weg
In centrum
Aan vaarwater
Baerz & Co Property Brochure

Broschüre

Grundrisse

Heeren Makelaars

Stadionweg 75
1077 SE Amsterdam

info@heerenmakelaars.nl
+31 204702255

www.heerenmakelaars.nl

Information / Besichtigungsanfrage

Sander Bovenkerk profile image
Sander Bovenkerk
Real estate agent

Kauf einer Luxusimmobilie in Amsterdam

Amsterdam bietet einen kosmopolitischen Lebensstil, geprägt von Tradition, Vernetzung und diskretem Luxus. Bewohner profitieren von einer starken internationalen Gemeinschaft, maßgeschneiderten Dienstleistungen und lebendiger Kultur. Der andauernde Reiz der Stadt resultiert aus der Mischung aus Historie, Raffinesse und fortschrittlichem Geist.