AMSTERDAM
Korte Ouderkerkerdijk 1 P 3 - 1096 AC
Niederlande

Eran Hausel profile image
Eran Hausel
Real estate agent
€1,850,000 k.k.
Wohnfläche
157m2
Grundstücksgröße
2974m2
Schlafzimmer
3

Beschreibung

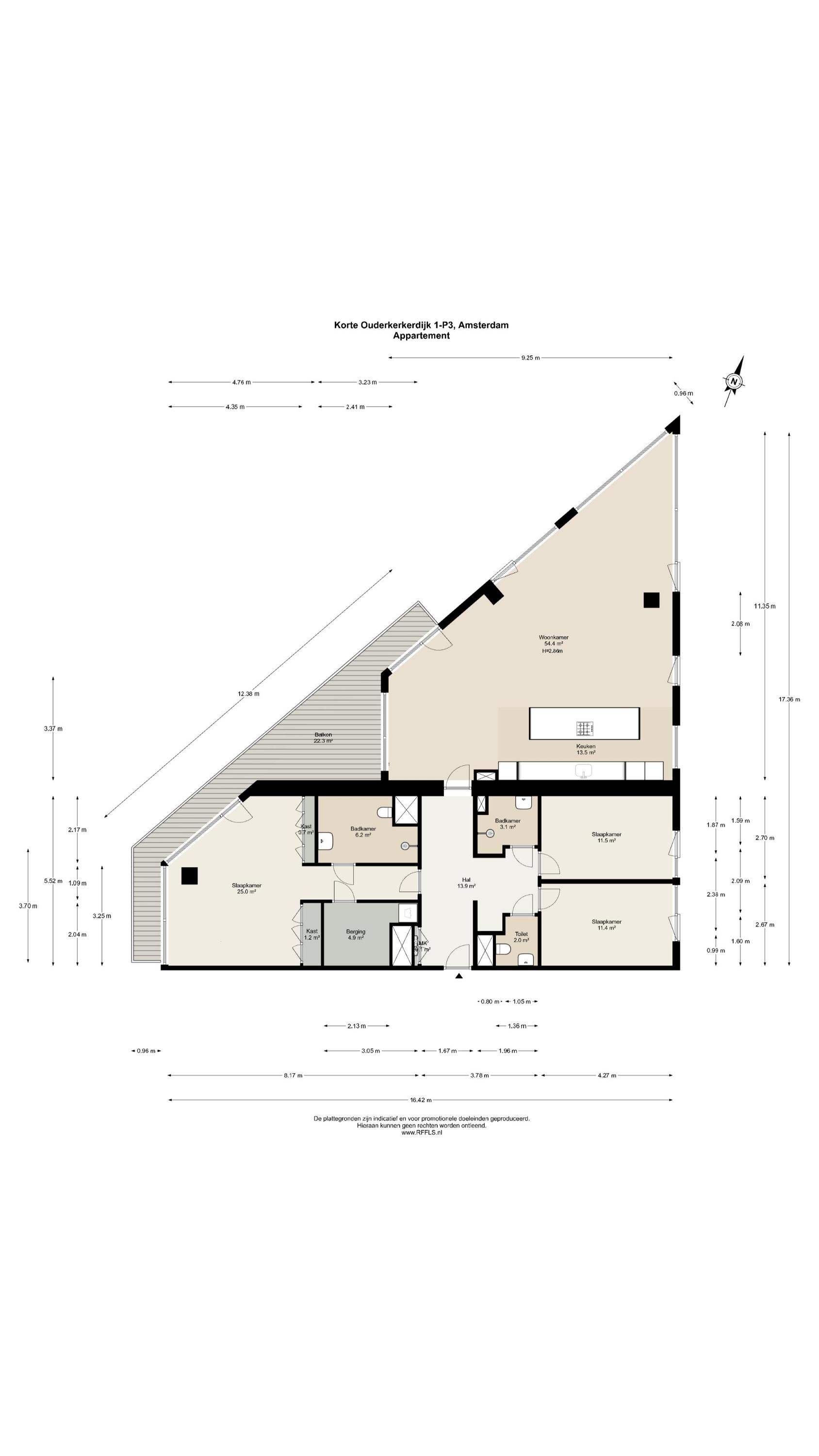
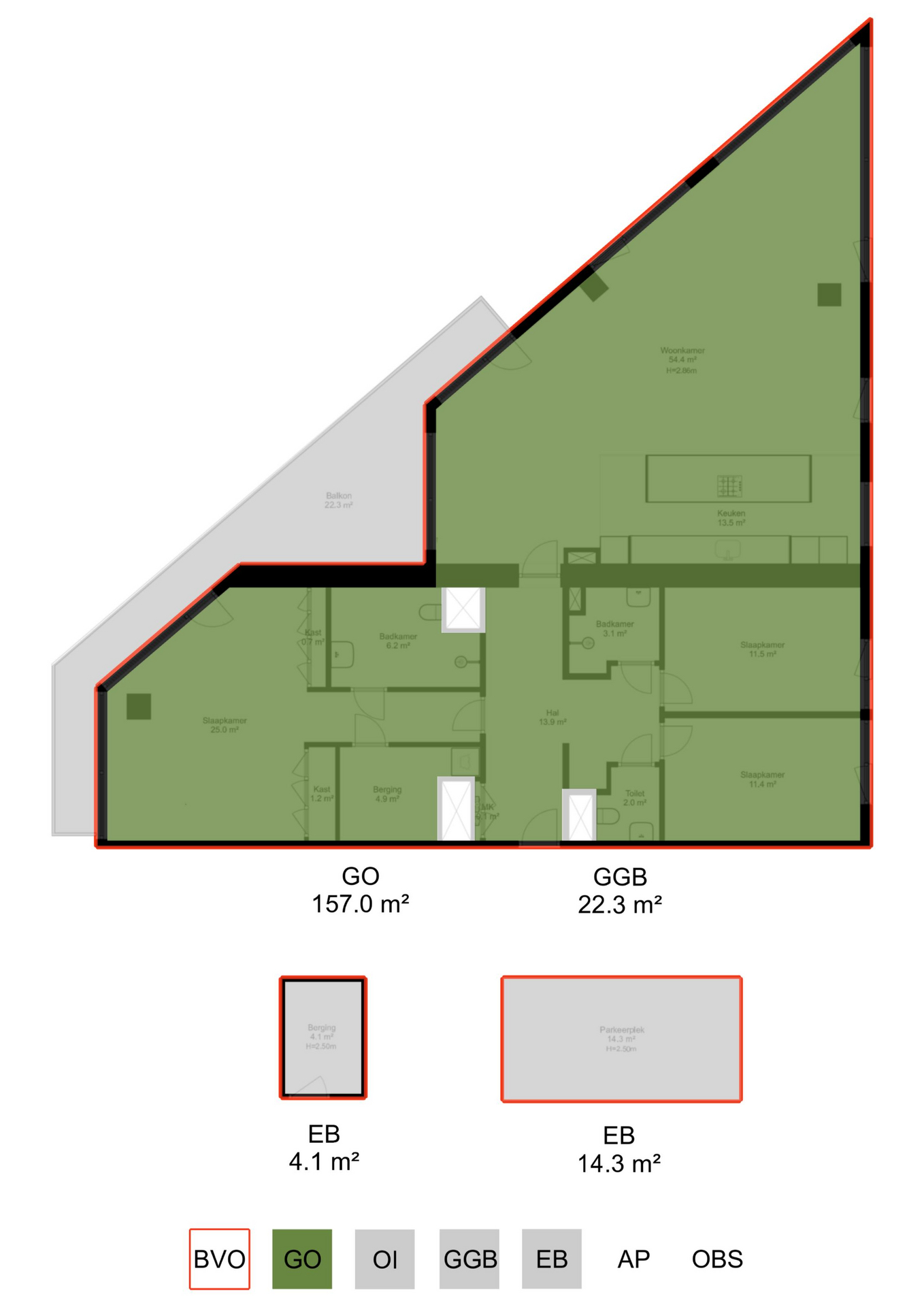
Das Apartment Amsterdam setzt neue Maßstäbe für nachhaltige Eleganz in einem der renommiertesten zeitgenössischen Gebäude der Stadt. Diese Residenz erstreckt sich über ca. 157 m² im dreizehnten Stock des HAUT und bietet drei Schlafzimmer, zwei Badezimmer sowie einen lichtdurchfluteten, dreieckigen Wohnbereich mit stets wechselndem Blick auf die Stadt. Der Hauptwohnbereich wird durch raumhohe Fenster geprägt, die auf einen großzügigen, überdachten Balkon von 22 m² führen und das besondere Licht von Amsterdam sowie dessen Beziehung zur Amstel einfangen. Eine moderne offene Küche mit integriertem Induktionskochfeld, Gaggenau-Öfen und einem klimatisierten Weinschrank verbindet funktionale Raffinesse mit wohnlicher Eleganz.

Die Mastersuite verfügt über ein eigenes Bad mit begehbarer Dusche, während ein zweites Badezimmer die beiden weiteren Schlafzimmer optimal ergänzt – ideal für Privatsphäre oder Gäste. Dieses Apartment im HAUT, das 2023 als bestes Gebäude der Niederlande ausgezeichnet wurde, profitiert von A++ Energieeffizienz, moderner Dämmung, Fußbodenheizung sowie einem privaten Stellplatz mit Ladestation und überdachtem Fahrradabstellraum. Ein externer Abstellraum von 4 m² bietet zusätzlichen praktischen Stauraum.

Den Bewohnern stehen eine lebendige Auswahl an Restaurants, Flussparks und die wesentlichen Einkaufsmöglichkeiten in der nahegelegenen Rijnstraat direkt zur Verfügung. Öffentliche Verkehrsmittel und Hauptverkehrswege verbinden auf angenehme Weise urbanes Leben mit ruhigen Grünflächen – ideal für ein ausgeglichenes Stadtleben oder Rückzugsort. Das Apartment wird im Erbbaurecht gehalten; das Eigentum an Wohnung und Stellplatz ist gesichert und wird durch eine professionell verwaltete Eigentümergemeinschaft betreut. Dieses luxuriöse Apartment zum Verkauf in Amsterdam bietet eine seltene Verbindung von Design, Komfort und pulsierendem Stadtleben.

Entdecken Sie Amsterdam mit Baerz, Ihrem vertrauenswürdigen persönlichen Immobilienfinder & Berater

Der Zugang zum Luxusimmobilienmarkt von Amsterdam erfordert tiefgreifendes lokales Know-how, Diskretion und Verhandlungsgeschick. Erstklassige Berater verschaffen Zugang zu privaten Angeboten, erklären komplexe Besitzrechte und erkennen Werte in einem Markt, in dem Opportunitäten selten sichtbar werden. Beratungsteams prüfen jedes Objekt sorgfältig und vertreten Ihre Interessen souverän – sie stärken Ihre Verhandlungsposition, begleiten Transaktionen nahtlos und wahren Ihre Privatsphäre.

Vermeiden Sie häufige Fallstricke

Internationale Käufer verschwenden oft wertvolle Zeit mit doppelten, veralteten oder irreführenden Online-Angeboten, insbesondere da fast 30% der Luxusimmobilien nie auf dem öffentlichen Markt erscheinen. Verkäufermakler vertreten die Interessen des Verkäufers, nicht die des Käufers. Selbst die Anfrage nach Informationen zu einer Immobilie kann dazu führen, dass ein Verkäufermakler Sie ohne Ihre Zustimmung als seinen „Kunden“ registriert.
Mit Baerz Property Finders & Advisors vermeiden Sie all diese Fallstricke vollständig. Wir arbeiten ausschließlich in Ihrem Auftrag, bieten unabhängige Vertretung, klare Beratung und Zugang zu allen verfügbaren Immobilien, einschließlich Off-Market-Möglichkeiten, die andere nie zu sehen bekommen.

Interessiert an einem Personal Property Advisor?

Wir zeigen Ihnen alle verfügbaren Häuser an einem Ort. Kontaktieren Sie uns gerne, um zu erfahren, wie wir Ihre Bedürfnisse erfüllen und Ihre Interessen exklusiv schützen können.

Merkmale

Eigentumsübertragung
Angebotspreis
€ 1.850.000 k.k.
Status
beschikbaar
Annahme
in overleg
Bau
Art des Hauses
Bovenwoning
Gebäudetyp
appartement
Bauzeitraum
2021
Energieeffizienzklasse
A++
Dachtyp
plat dak
Schlafzimmer
3
Badezimmer
2
Oberflächen und Volumen
Wohnfläche
157 m2
Anderer Innenbereich
0 m2
Außenbereich am Gebäude angebaut
22 m2
Externer Stauraum
18 m2
Volumen in Kubikmetern
623 m3
Grundstücksgröße
2974 m2
Einrichtungen
Tv kabel
Balansventilatie
Aan water
Vrij uitzicht
Baerz & Co Property Brochure

Broschüre

Videos

Grundrisse

Heeren Makelaars

Stadionweg 75
1077 SE Amsterdam

info@heerenmakelaars.nl
+31 204702255

www.heerenmakelaars.nl

Information / Besichtigungsanfrage

Eran Hausel profile image
Eran Hausel
Real estate agent

Kauf einer Luxusimmobilie in Amsterdam

Amsterdam bietet einen kosmopolitischen Lebensstil, geprägt von Tradition, Vernetzung und diskretem Luxus. Bewohner profitieren von einer starken internationalen Gemeinschaft, maßgeschneiderten Dienstleistungen und lebendiger Kultur. Der andauernde Reiz der Stadt resultiert aus der Mischung aus Historie, Raffinesse und fortschrittlichem Geist.