Penthouse zu verkaufen in AMSTERDAM

AMSTERDAM Dam 5 U - 1012 JS Niederlande


Steijn Schothorst profile image
Steijn Schothorst
Real Estate Agent
+316 53436695
info@heerenmakelaars.nl

Heeren Makelaars
Stadionweg 75
1077 SE Amsterdam
NETHERLANDS
+31 0204702255
www.heerenmakelaars.nl
info@heerenmakelaars.nl

Wohnbereich
165m2
Grundstücksfläche
N/A
Schlafräume
3

Beschreibung

A Remarkable Apartment in the Heart of Amsterdam

A distinctive apartment of approximately 165 m², featuring concierge service, valet parking for multiple cars, and located at one of the most prestigious addresses in the very center of Amsterdam. This fully furnished appartment overlooks the Royal Palace and Dam Square, with the city’s historic canals just a short stroll away.

Living at this level has long been rare in Amsterdam and was mainly reserved for world cities such as New York, Paris, Singapore, or London. Thanks to the five-star services of the adjacent Grand Hotel Krasnapolsky, you can now experience the same international standard of comfort here. Room service, housekeeping, and a wide range of hotel facilities are at your disposal. This makes the apartment equally appealing as a pied-à-terre for international residents and for Amsterdammers seeking ultimate ease and luxury.

The large glass façades allow you to fully embrace the vibrant city life outside or close it off entirely to enjoy privacy and tranquility. The high-quality materials and finishes ensure a refined and comfortable living experience. The interior has been designed under the supervision of internationally renowned interior architect Pieter Laureys and finished to the highest standards. The apartment is offered including new, carefully selected bespoke furniture.

Location & Accessibility

Living on Dam Square means residing in the absolute heart of Amsterdam, at a location known and admired worldwide. Here you are surrounded by luxury department stores such as De Bijenkorf, designer boutiques, and flagship stores. On the culinary front, you will find everything from trendy cafés and cosmopolitan cocktail bars to Michelin-starred restaurants and refined international cuisines.

Despite the dynamic city life, there are also plenty of green spaces nearby. Within minutes, you can walk to the Rokin, the tranquil canals, or towards the Plantage district and the Vondelpark – perfectly combining the city’s energy with the opportunity to unwind in nature.

Accessibility is excellent: all major tram lines stop right outside, metro station Rokin with the North/South line is just steps away, and Amsterdam Central Station is within walking distance. Both Schiphol Airport and the Zuidas business district can be reached within 15 minutes. Parking is equally well arranged: as a resident, you enjoy valet parking in the private garage of the adjacent Krasnapolsky hotel. Simply drive up, and your car will be parked for you and returned whenever you need it – an exceptional convenience in the very center of Amsterdam.

Layout

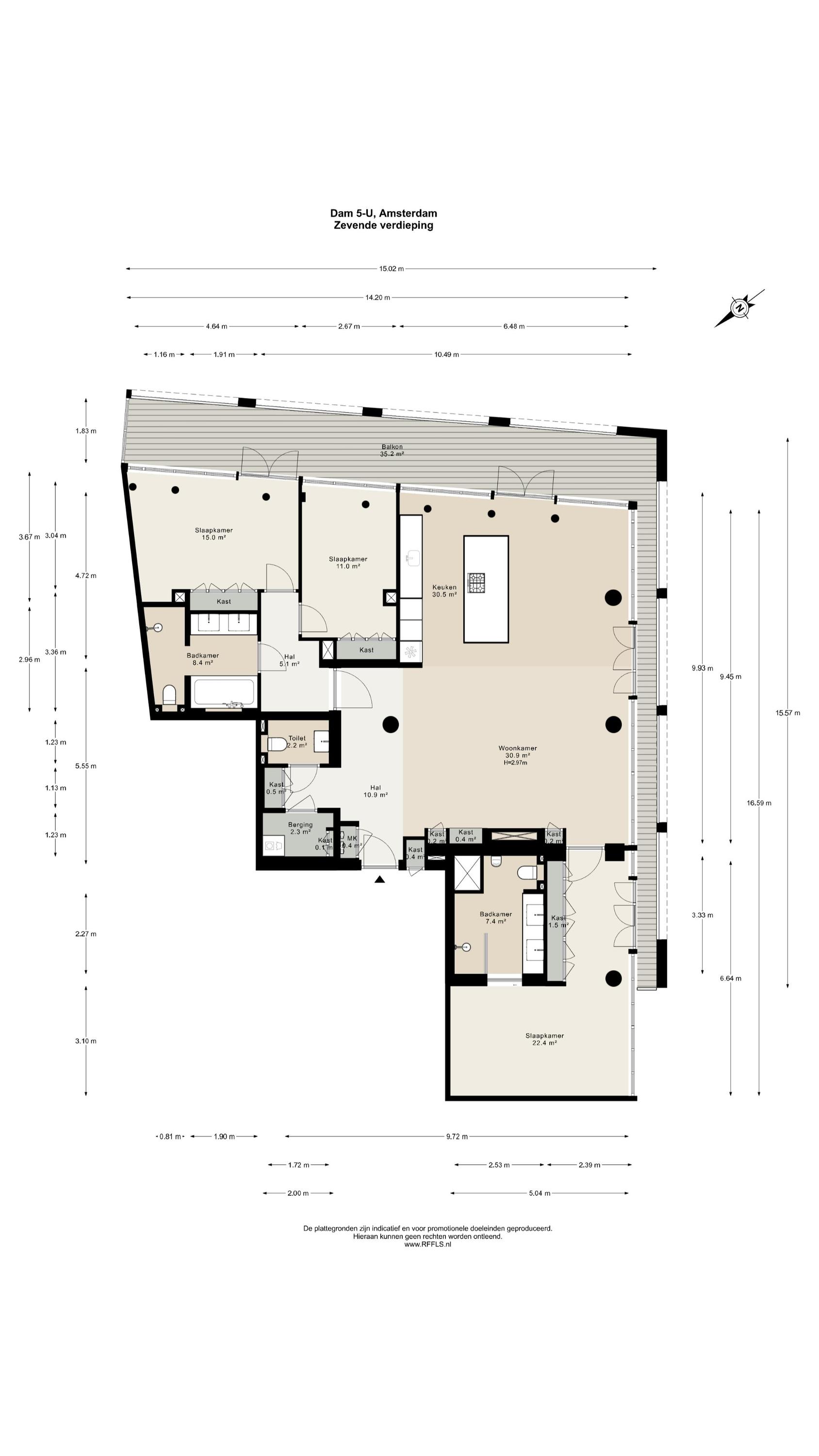
Via the communal entrance and elevator, you reach the seventh floor. The spacious hallway with separate guest toilet leads into the bright living room, featuring a fireplace and striking steel-framed doors with smoked glass.

The open-plan kitchen with cooking island forms the heart of the home. Fully equipped with premium Miele appliances, including a wine cooler, steam oven, and coffee machine, it flows into the dining area and the large terrace, where you can enjoy a truly unique view over Dam Square.

The apartment offers three bedrooms, each furnished with luxury Hästens beds. The master suite includes a private walk-in closet and a luxurious bathroom finished in marble and mosaic, featuring a bathtub, double washbasin, walk-in shower, and separate toilet. The second bathroom, designed in warm earthy tones, is also fully equipped and smartly laid out. Throughout the apartment lies a beautiful wooden floor, combined with underfloor and ceiling heating and cooling, recessed lighting, and electric sun blinds. A private storage room, as well as a technical and laundry room, are also included.

Key Features:

- Apartment of approx. 165 m² (measured in accordance with NEN2580)
- Situated on the 7th floor
- Separate storage room of approx. 6 m²
- Valet parking in the Krasnapolsky garage
- Freehold property (no ground lease)
- Three bedrooms and two adjoining luxury bathrooms
- Spacious south-facing terrace with impressive views over Dam Square
- Finished to the highest international standards
- Equipped with a practical home automation system
- Generous, comfortable living areas
- Exclusive five-star residential services from the adjacent Grand Hotel Krasnapolsky
- Monthly HOA contribution: € 2,004.57
- Underfloor and ceiling heating with cooling function
- Elevator access
- Option to include exclusive bespoke furniture in the sale
- Designed by internationally acclaimed architect Cees Dam
- Delivery in consultation

This information has been compiled with the utmost care. However, no liability is accepted for any incompleteness, inaccuracies, or consequences thereof. All measurements and surfaces are indicative. Buyers are responsible for carrying out their own investigation into all matters that are important to them. The real estate agent represents the seller. We recommend engaging a qualified (NVM) purchasing agent to guide you through the acquisition process. If you have specific requirements regarding the property, we advise you to inform your agent in time and conduct independent research. If you choose not to engage a professional representative, you will be deemed legally competent to oversee all relevant matters yourself. NVM conditions apply.

Eigenschaften

Übertragung
Preisvorstellung
€ 3.900.000 k.k.
Status
beschikbaar
Akzeptanz
in overleg
Bauwesen
Typ des Wohnhauses
Penthouse
Art der Konstruktion
appartement
Jahr der Errichtung
2017
Schlafräume
3
Bäder
2
Fläche und Inhalt
Wohnbereich
165 m2
Andere Innenräume
0 m2
Gebäudebezogene Freiflächen
46 m2
Externer Speicherplatz
6 m2
Inhalt
579 m3
Anlagen
Mechanische ventilatie
Alarminstallatie
Buitenzonwering
Lift
Airconditioning
Schuifpui
Domotica
In centrum
Vrij uitzicht
Baerz & Co Property Brochure

Brochure

Informationen / Besichtigungsanfrage

Videos

Video Dam 5 U

Fotos

Grundrisse