AMSTERDAM
Alexander Boersstraat 37 H - 1071 KW
Niederlande

Igor Veendrick profile image
Igor Veendrick
Real estate agent
€2,600,000 k.k.
Wohnfläche
216m2
Grundstücksgröße
N/A
Schlafzimmer
4

Beschreibung

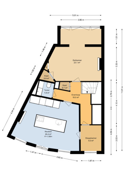
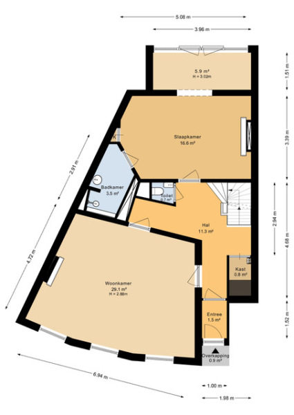
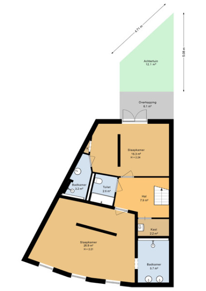
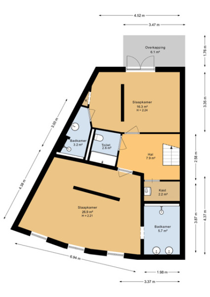
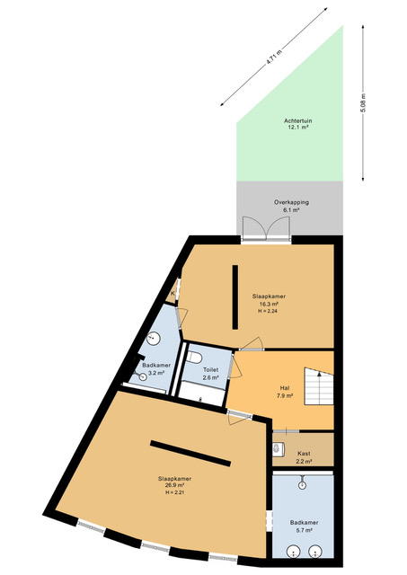
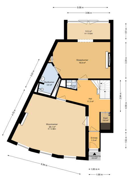
Diese Erdgeschosswohnung in Amsterdam bietet eine seltene Gelegenheit im Museumsviertel, an der Ecke Alexander Boersstraat und Van Eeghenstraat. In diesem denkmalgeschützten Gebäude erstreckt sich das dreistöckige Zuhause über etwa 216 m² und vereint vier Schlafzimmer, drei edle Bäder sowie die Präsenz erhaltener historischer Details. Die rund 9 Meter breite Fassade und zahlreiche Originalelemente verleihen dem Anwesen eine unverwechselbare Eleganz, wie sie in Amsterdam Zuid nur selten zu finden ist.

Der Eingang führt in ein großzügiges, von Tageslicht durchflutetes Wohnzimmer, während sich die Schlafzimmer über alle Etagen verteilen und so Flexibilität und Privatsphäre bieten. Die Wohnküche beeindruckt mit dunklen Eichenfronten, einer Arbeitsplatte aus Verbundmaterial und hochwertigen Siemens StudioLine Geräten. Die Kücheninsel mit Bartresen bildet das Herzstück. Balkone holen die angrenzenden Gärten und das Abendlicht ins Wohnerlebnis, einer davon schließt über eine faltbare Glasfassade nahtlos an den Wohnbereich an und schafft einen fließenden Übergang zum Außenraum. Der rückwärtige, etwa 18 m² große Westgarten lädt zu entspannten Nachmittagen ein.

Lokale Annehmlichkeiten wie renommierte Restaurants, exklusive Boutiquen und bedeutende Museen befinden sich in unmittelbarer Nähe und unterstreichen die internationale Ausstrahlung und Familienfreundlichkeit dieses Standorts. Die Immobilie steht unter kommunalem Denkmalschutz, wurde kürzlich renoviert, verfügt über mechanische und natürliche Belüftung sowie über eine Zentralheizung. Es handelt sich um ein Eigentumsgrundstück mit einer diskreten Eigentümergemeinschaft aus zwei Mitgliedern.

Entdecken Sie Amsterdam mit Baerz, Ihrem vertrauenswürdigen persönlichen Immobilienfinder & Berater

Der Zugang zum Luxusimmobilienmarkt von Amsterdam erfordert tiefgreifendes lokales Know-how, Diskretion und Verhandlungsgeschick. Erstklassige Berater verschaffen Zugang zu privaten Angeboten, erklären komplexe Besitzrechte und erkennen Werte in einem Markt, in dem Opportunitäten selten sichtbar werden. Beratungsteams prüfen jedes Objekt sorgfältig und vertreten Ihre Interessen souverän – sie stärken Ihre Verhandlungsposition, begleiten Transaktionen nahtlos und wahren Ihre Privatsphäre.

Vermeiden Sie häufige Fallstricke

Internationale Käufer verschwenden oft wertvolle Zeit mit doppelten, veralteten oder irreführenden Online-Angeboten, insbesondere da fast 30% der Luxusimmobilien nie auf dem öffentlichen Markt erscheinen. Verkäufermakler vertreten die Interessen des Verkäufers, nicht die des Käufers. Selbst die Anfrage nach Informationen zu einer Immobilie kann dazu führen, dass ein Verkäufermakler Sie ohne Ihre Zustimmung als seinen „Kunden“ registriert.
Mit Baerz Property Finders & Advisors vermeiden Sie all diese Fallstricke vollständig. Wir arbeiten ausschließlich in Ihrem Auftrag, bieten unabhängige Vertretung, klare Beratung und Zugang zu allen verfügbaren Immobilien, einschließlich Off-Market-Möglichkeiten, die andere nie zu sehen bekommen.

Interessiert an einem Personal Property Advisor?

Wir zeigen Ihnen alle verfügbaren Häuser an einem Ort. Kontaktieren Sie uns gerne, um zu erfahren, wie wir Ihre Bedürfnisse erfüllen und Ihre Interessen exklusiv schützen können.

Merkmale

Eigentumsübertragung
Angebotspreis
€ 2.600.000 k.k.
Status
beschikbaar
Annahme
in overleg
Bau
Art des Hauses
Dubbel benedenhuis
Gebäudetyp
appartement
Bauzeitraum
1894
Energieeffizienzklasse
A
Schlafzimmer
4
Badezimmer
3
Oberflächen und Volumen
Wohnfläche
216 m2
Anderer Innenbereich
0 m2
Außenbereich am Gebäude angebaut
7 m2
Volumen in Kubikmetern
761 m3
Einrichtungen
Mechanische ventilatie
Tv kabel
Natuurlijke ventilatie
Aan rustige weg
In woonwijk
Vrij uitzicht
Baerz & Co Property Brochure

Broschüre

Videos

Heeren Makelaars

Stadionweg 75
1077 SE Amsterdam

info@heerenmakelaars.nl
+31 204702255

www.heerenmakelaars.nl

Information / Besichtigungsanfrage

Igor Veendrick profile image
Igor Veendrick
Real estate agent

Kauf einer Luxusimmobilie in Amsterdam

Amsterdam bietet einen kosmopolitischen Lebensstil, geprägt von Tradition, Vernetzung und diskretem Luxus. Bewohner profitieren von einer starken internationalen Gemeinschaft, maßgeschneiderten Dienstleistungen und lebendiger Kultur. Der andauernde Reiz der Stadt resultiert aus der Mischung aus Historie, Raffinesse und fortschrittlichem Geist.