ALMEN
Lage Lochemseweg 31 a - 7218 PA
Die Niederlande

Jenne de Haan profile image
Jenne de Haan
Real Estate Agent
€2,445,000 v.o.n.
Wohnbereich
438m2
Grundstücksgröße
70635m2
Schlafzimmer
3

Beschreibung

Fabulously beautiful, NSW estate Besselink on the Berkel

Good wine does not need a crown, as the saying goes. And, to be fair, it is almost impossible to describe Erve Besselink in a way that captures the beauty and class of this giant. Just the location alone, on the Berkel, at the weir, with its own fish ladder around the house, is one and all romance.
This beautiful farmhouse, with a living area of 438 m² and a capacity of over 2,500 m³, forms with the surrounding land of approximately 7.5 ha a frankly imposing ensemble. There is a lot of variety in the picture; an oak forest, a beech forest, grassland, flower meadow, a fish ladder, a dream of an ornamental garden... And, rumor has it that an amorous pair of beavers even built a love nest by the water. Romance at its finest! At the heart is the beautiful farmhouse, overlooking the Berkel River.

In 1382 - yes really, so long ago already - there was mention in the registers about “Erve Besselink” here near Almen. This is how long people have lived here and the history of this place goes back much further. In 1800 this giant of a T-farm was built; the large main house with the part where the cows were, the young cattle barn or schöppe, where later the beautiful tea garden was housed, and the stoltenberg, the haystack with barn.

After a long life - centuries - in 2011 this beautiful farmstead was converted into a high-quality finished and optimally preserved residence. Because the agricultural use was removed, the landscape was also changed. For example, it was decided at the time to restore the historic moat and route it around the house again.

The farm itself underwent a true transformation and although on the outside it still tells of the nostalgia of the early 19th century - with the shutters, the windows with rods and the facade layout, it has been modernized from top to toe on the inside, and you step into an extremely luxurious and beautifully designed home.

Want to work from home and need office space? The completely renovated part - with an insanely cool loam stove with pizza oven, a brand new roof and thatched roof - offers plenty of space, enough for several people to work here. There is also a beautiful studio downstairs, so sleeping and bathing on the first floor is also an option.

Almen
Almen looks like it was conceived by a poet, with winding paths and roads, a ancient church, a village school, stately avenues of trees and bulbous ash trees, a church path, a little store, a tennis court and a cute swimming pool for fun on hot days. And all in the loving embrace of the meandering Berkel River. The grass is greener here - we're sure - and yet less than ten minutes from the bustling Hanseatic city of Zutphen. In 15 minutes you are on the A1, which then takes you into the Randstad in 45 minutes.

Erve Besselink is currently not open, there is plenty of walking, canoeing, biking and horseback riding around the estate, should you choose to open the estate to the public - for the benefit of the public - then these benefits apply 100%, rather than partially.

NSW estate
The house and land are ranked under the 1928 Natural Beauty Act, which means it meets a number of requirements, such as that:
- it is at least 5 hectares in size;
- it consists of at least 50% woodland (forest) or natural areas.
A cinch for Erve Besselink, because it is all nature there. But, there is more, because why would one want to own an NSW estate now? In a nutshell, the answer is that there are great advantages for the owner: namely, he or she enjoys tax benefits from ownership in terms of income tax, corporate income tax, transfer tax, gift and inheritance tax and real estate tax.

Ground Floor
Through the large wooden gate, into the yard. The huge Bentheimer feeding trough, now serving only as a landscape embellishment, stands like an art object in front of the orchard. The large barn doors offer a friendly view. To the left is the main entrance. All the woodwork is thickly varnished (natural wood varnishes based on linseed oil allowing the wood to breathe) and looks absolutely fantastic. Inside, too, it quickly becomes clear that no expense was spared, and only the best materials were used.
In the hall on the floor, the travertine Vieux de Bourgogne dales, which also make their reappearance in the kitchen and hallway. On the wall, a very tasteful linen structure wallpaper in a fine taupe color, which provides a beautiful background for any type of interior. Modern rustic was chosen here and all the elements work together in full harmony to create a wonderful composition. On the left the stairs to the floor, on the right the WC - out of the art with gorgeous glazed Portuguese tiles and matte black ceramic plumbing in the form of hanging closet and sink arrangement- and the access to the studio. To the left is the spacious basement.

The living room has a magnificent floor; it is an old castle floor from the French chateau of the previous owners. The current residents had it beautifully sanded and coated with a refined gray floor oil, blending seamlessly into the contemporary interior. The music room is a room en-suite, separated from the living room by sliding doors, and now has the role of an old-fashioned art cabinet, but one whose indoor climate can be adjusted entirely as desired. If you do not have a Steinway or art collection to display here, then this is a wonderful study, library, cinema or dining room. To the left, overlooking the garden and side terrace, is the upstairs room, which shares a gas fireplace with the living room. A lovely corner to crawl away with a good book.

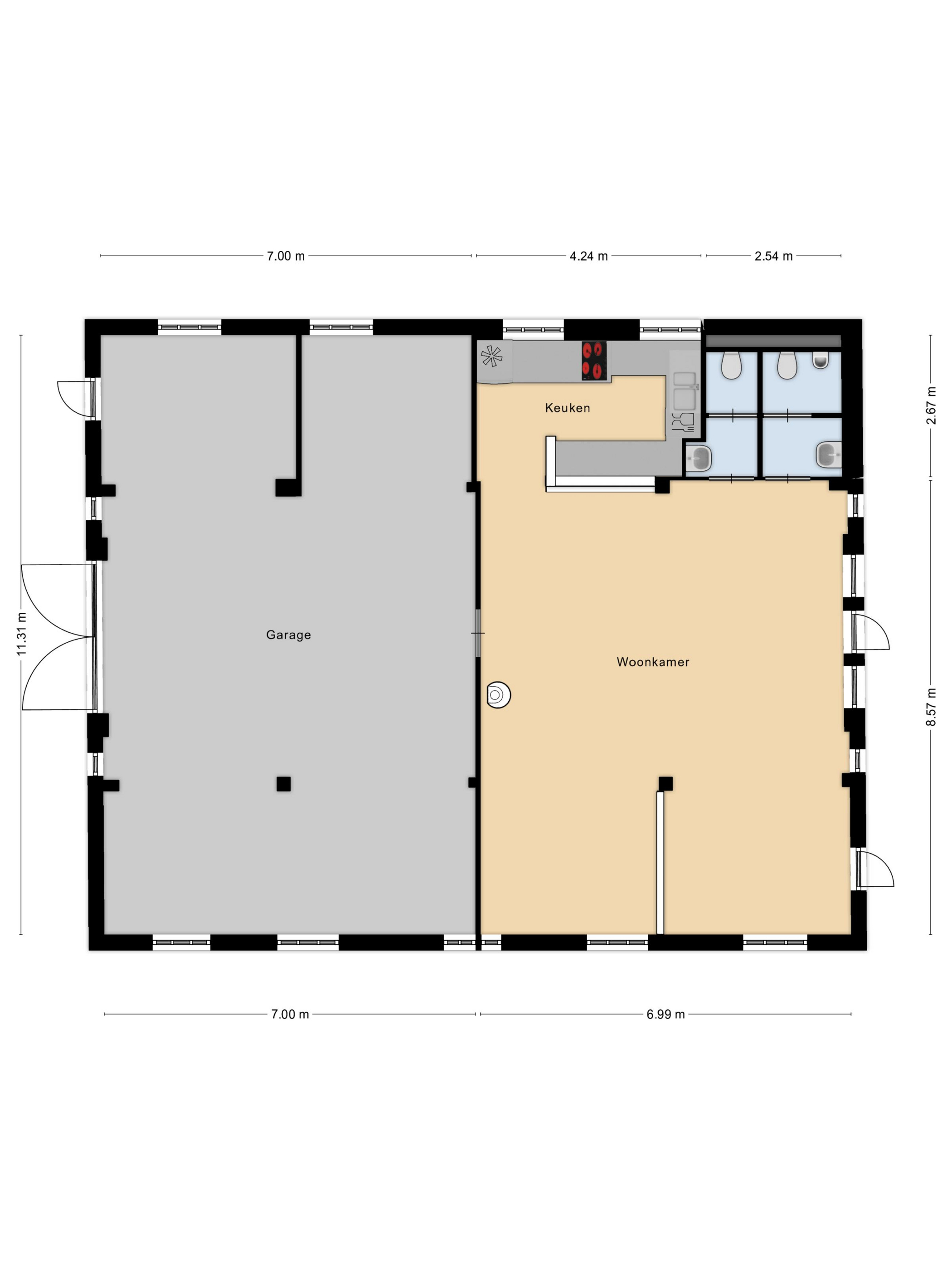
The Barn
The part, where the cows used to ruminate, has been transformed into a super cool space; the rafters and the thick reed package (there is still insulation material in between) have been left in sight and the space is nice and light through the skylights. The concrete floor - ready for the installation of floor heating -, the beautiful loam stove and the staircase (forge Oldenhave from Vorden) give it a raw, industrial edge. Downstairs, two separate toilets have been installed. Upstairs, the billiard room will be realized.

This part could become anything: the superlative of a mancave, a sitting room with play area, a large B&B or business space for your steward's office, architectural firm, dental or physical therapy practice. We're just listing a few cross streets, because you can still completely pour your own sauce over this. The only thing that cannot be changed is the grandiose character of this space: it is ingrained in the house.

The kitchen is truly one of a kind: completely custom made and put together by a kitchen studio. The large kitchen features heavy oak fronts and granite countertops. All built-in appliances are by Gaggenau, which guarantees optimal design and function. There is an appliance wall with double refrigerators and a steam and a convection oven. On the other side, overlooking the sunny side terrace a large worktop with double sink and a five-in-one boiling water faucet. Up front, in the contemporary cove, the stove with wok burner, plancha and four large gas burners.
The studio features a spacious living room with a floor of oiled smoked oak. In the hallway to the left is a handmade built-in closet in a lovely lime green, and to the right is the bedstead, with sliding doors and space for a large television. Following this is the large bathroom with double sink, WC and walk-in shower, and the first approach to the door to the part.

Upper floor
On the upper floor a sunny landing with two magnificent bedrooms, walk-in closet, the WC and the technical room.
The master bedroom is accessed through the bathroom: with the allure of an exclusive resort, it features a double shower with rain shower, a freestanding bathtub overlooking the garden, and a large double sink.
The walk-in closet has flamed wooden sliding doors and the bedroom is bright due to the large windows. The sleek design gives this room a particularly serene feel.

On the other side under the hood we find the second bedroom, now used as a study.

Outdoor space
When an agency like Eelerwoude gets involved in landscaping, you just know it's going to be okay. And so it did. The gardens around the house are once again bordered by the moat, through which the crystal-clear water of the Berkel gaily splashes. From the house, living is focused on the Berkel and the village beyond. On the right side you have a view of the beech forest, where you can go via the little bridge to take a walk; between the trees is a path.
On the opposite side are another oak forest, meadows and a flower meadow with orchard.
The ornamental garden is magnificent; fresh green lawns bordered with colorful borders and chock full of flower beds, rhododendrons and a large walnut tree.
In front of the kitchen is the lovely sun terrace, with rose bed and yew hedge. Perfect for sunny lunches and dinners, or just lounging all day in the lounge set.
There is an orchard with standard fruit trees, for your pies and jams.
In its previous life, the schöppe was a well-attended catering establishment. Now it is a wonderful place to unwind, to sit by the wood stove with friends or to commit your life story to paper. Or perhaps to resume commercial activities after all, because the kitchen is ready for it. On the roof are solar panels.

In front of the barn is a large glass greenhouse in the starting blocks for your tomatoes, citrus fruits, potting table and cuttings. The vegetable garden, with its chestnut fences, offers more than enough space to be self-sufficient.
Near the gate is the large stoltenberg, hay barn with space for vehicles such as a tractor and lawnmower.

At the campsite
Across the street begins the long driveway to the quiet campground. This small-scale campground annually attracts lovers of nature and/or water sports. On warm days, people from the neighborhood come to swim in the Berkel and enjoy the sun on its banks.
Therefore, we asked the current residents what their experiences are with this. They answered us that, due to the character of the campsite - a silence campsite - they hardly experience any disturbance from visitors. On hot days, the sounds of water fun can be heard, but that can certainly not be called “disturbing. Partly because the living and life is so oriented on the Berkel, the great peace - interspersed with bird sounds and the occasional cow mooing - is the main part of the experience.

In short
Happiness can't be bought, but with NSW estate Erve Besselink you will come a long way. This beautiful estate with its voluminous, preserved farmhouse, offers optimal living comfort in a luxurious designer jacket. Have you become curious whether this estate is something for you? We would be happy to take you for a tour, and discuss with you the possibilities and what owning an NSW estate could mean for you.

General:
Year built : Originally built in 1800.
Maintenance : Excellent
Heating : Heating system, air conditioning, gas stoves & loam stove.
Location: Exceptionally beautifully situated with unique view of the Berkel
Parking : On private grounds.
Capacity : 2.564 m³
Living area : 438 m²
Other indoor space: 253 m²
External storage room: 94 m²
Land area : 70.635 m²
Energy label : Energy class C
Acceptance : In consultation

Price on request

Entdecken Sie Almen mit Baerz, Ihrem vertrauenswürdigen persönlichen Immobilienfinder und Berater

Der diskrete Luxusmarkt erfordert regionale Expertise und gute Kontakte. Bewährte Berater verschaffen Zugang zu nicht öffentlich gelisteten Objekten, begleiten Verhandlungen diskret und achten auf alle Details. Ihr Wissen über lokale Besonderheiten garantiert einen reibungslosen Kauf – von der ersten Besichtigung bis zur Betreuung nach Abschluss.

Besondere Merkmale

Solarmodule
Klimaanlage

Merkmale

Eigentumsübertragung
Verkaufspreis
€ 2.445.000 v.o.n.
Status
beschikbaar
Annahme
in overleg
Bau
Art des Hauses
Landgoed
Gebäudetyp
vrijstaande woning
Bauzeitraum
1890
Energieausweis
C
Dachtyp
samengesteld dak
Schlafzimmer
3
Badezimmer
2
Flächen und Volumen
Wohnbereich
438 m2
Andere Innenräume
253 m2
Externer Lagerraum
94 m2
Volumen in Kubikmetern
2564 m3
Grundstücksgröße
70635 m2
Einrichtungen
Buitenzonwering
Airconditioning
Rookkanaal
Dakraam
Zonnepanelen
Aan rustige weg
Vrij uitzicht
Buiten bebouwde kom
Aan vaarwater
Landelijk gelegen
Baerz & Co Property Brochure

Broschüre

Videos

360°-Panoramen

360°
360 Panorama - Lage Lochemseweg 31 a
360°
360 Panorama - Lage Lochemseweg 31 a
360°
360 Panorama - Lage Lochemseweg 31 a
360°
360 Panorama - Lage Lochemseweg 31 a
360°
360 Panorama - Lage Lochemseweg 31 a
360°
360 Panorama - Lage Lochemseweg 31 a
360°
360 Panorama - Lage Lochemseweg 31 a
360°
360 Panorama - Lage Lochemseweg 31 a

de Haan Schippers Makelaars

Larenseweg 53
7241 CM Lochem

dehaan@dehaanschippers.nl
+31 573 25 82 58

www.dehaanschippers.nl

Information / Besichtigungsanfrage

Jenne de Haan profile image
Jenne de Haan
Real Estate Agent